Bản vẽ mẫu nhà cấp 4 mái bằng đẹp đang được nhiều người Chọn. Với chủ đề hôm nay chúng tôi xin gửi đến bản vẽ miễn phí mẫu nhà cấp 4 hiện đại mang phong cách trẻ trung, tươi mới đang được nhiều người lựa chọn cho căn nhà của riêng mình.
Chúng tôi đã sưu tầm ý kiến của tất cả mọi người, đa số đánh giá mẫu nhà này được thiết kế theo ý tưởng phá cách, mang được vẽ đẹp tự nhiên của lối kiến trúc hiện đại. Sự khác biệt so với những mẫu thiết kế cũ, thì mái thái được được chuyển thành mái bằng.

♣ Thông tin chung:
- Diện tích: 8,5×24
- Chủ đầu tư: Phạm Anh Tuấn
- Địa chỉ: Biên Hòa – Đồng Nai
- Kiến trúc: Mẫu nhà cấp 4 mái bằng
- Năm thi công: 2018
Đây được coi là mẫu nhà cấp 4 mái bằng khá đẹp và phương án đề ra rất khoa học dành cho những gia đình có diện tích đất xây dựng lớn.

Phối cảnh bản vẽ nhà cấp 4 mái bằng

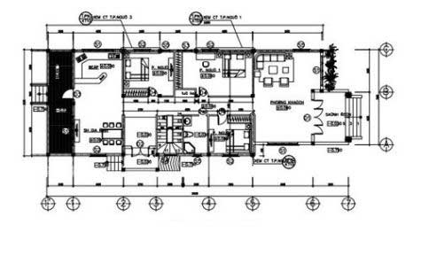
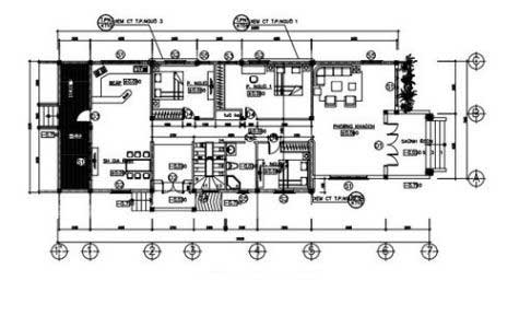
Mặt bằng trệt nhà cấp 4

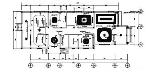
Mặt bằng lát gạch

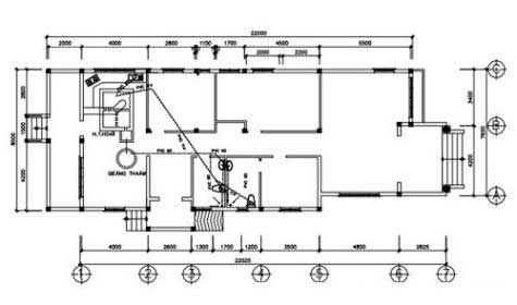
Hệ thống cấp thoát nước

Hệ thống cấp thoát nước

Hệ thống cấp thoát nước

Hệ thống cấp thoát nước

Hệ thống cấp thoát nước

Hệ thống cấp thoát nước

Chi tiết cửa

Mặt bằng mái
Theo chúng tôi được biết thì bản vẽ mẫu thiết kế nhà cấp 4 mái bằng ở nông thôn này theo lối kiến trúc hiện đại, chức năng sử dụng phù hợp với gia đình 4 – 5 người. Mẫu nhà đẹp giá rẻ mang hình dáng phá cách, độc đáo, hy vọng nội dung này sẽ cho bạn nhiều cảm nghĩ.



















