Mẫu nhà cấp 4 diện tích 6x12m đẹp, hiện đại là một trong những kiến trúc rất phổ biến hiện nay. Kiểu nhà này mang đến sự thông thoáng, hiện đại và sang trọng, không những thế xây dựng mẫu nhà cấp 4 còn có chi phí xây dựng hợp lý đáp ứng được yêu cầu sinh hoạt của các gia đình đông người. Với mong muốn mang đến một ngôi nhà cấp 4 diện tích 6x12m đẹp nên Xây Dựng Số đã tổng hợp mẫu nhà cấp 4 gửi đến bạn đọc thông qua bài viết này
Mẫu nhà cấp 4 diện tích 6x12m có gác lửng

Nếu gia đình bạn yêu thích sự pha trộn giữa phong cách hiện đại pha chút truyền thống thì mẫu tủ dưới đây chính là sự lựa chọn hoàn hảo. Ngôi nhà được xây dựng bằng bê tông cốt thép với hệ thống mái ngói đỏ truyền thống. Những gam màu rực rỡ này sẽ giúp ngôi nhà của bạn trở nên nổi bật trong không gian.
Điểm nhấn kiến trúc của mẫu nhà này chính là thiết kế gác lửng đẹp mắt. Thay vì sử dụng bê tông toàn bộ, các kiến trúc sư đã đặt những ô cửa kính cường lực dọc ngôi nhà để tạo sự thông thoáng cho không gian. Các cửa sổ này tận dụng ánh sáng tự nhiên và chống ồn tốt. Thông thường, mẫu nhà cấp 4 diện tích 6x12m có gác lửng gồm 3 phòng ngủ, 1 phòng khách, 1 phòng bếp + ăn, 2 nhà vệ sinh. Tuy nhiên, nếu gia đình bạn có nhu cầu sử dụng nhiều hơn thì tầng lửng hoàn toàn có thể bố trí hai phòng ngủ để nâng số phòng ngủ lên bốn. Nơi đây đáp ứng nhu cầu sinh hoạt và thư giãn của một gia đình 5 - 6 người. thành viên.
Phần tầng lửng có thể bố trí ban công bên ngoài giúp không gian thông thoáng và rộng rãi hơn. Chi phí xây dựng mô hình này thấp nên phù hợp với những ngôi nhà có diện tích nhỏ. Ngoài tổng quan về thiết kế ngoại thất đẹp thì nội thất của ngôi nhà cũng được các kiến trúc sư danh tiếng coi trọng và chú trọng. Các phòng bên trong được bố trí rất khoa học và hợp với phong thủy của gia chủ này. Hầu hết các phòng trong ngôi nhà đều có cửa để thông thoáng cho không gian bên trong ngay cả những ngày mưa gió.
Không giống như các tòa nhà bốn sao khác, ngôi nhà này tối giản các chủ đề trang trí và đẹp một cách đơn giản và nhẹ nhàng. Nếu cảm thấy trống trải, bạn có thể trồng một cây trước nhà để trang trí làm tăng thêm cảnh sắc sinh động trước nhà. Trồng cây trong nhà hoặc trước sân nhà cũng có thể làm giảm nhiệt độ mùa hè nóng nực bằng cách cải thiện không khí thông thoáng. Ngoài vẻ đẹp đơn giản nhưng tinh tế, ngôi nhà đẹp 4 sao này được thiết kế theo không gian mở để cặp vợ chồng hay cười này có thể thoải mái sinh hoạt.

Kiến trúc sư đề xuất mẫu nhà 1 tầng đơn giản rộng 6 m để ngăn cách không gian sân trước cho 1 - 2 ô tô và xe máy. Vì không có quá nhiều diện tích đất nên các kiến trúc sư đã tận dụng tối đa không gian và bố trí các phòng trong nhà một cách hợp lý. Có những đồ nội thất như bàn ghế kê sát tường để lối đi rộng hơn, tiết kiệm diện tích sử dụng mang đến sự thoải mái. Cải thiện không gian thông gió bằng cách giảm thiểu đồ trang trí và đồ nội thất không sử dụng ở đó.

Nhà cấp 4 hiện nay có nhiều kiểu kiến trúc khác nhau như nhà cấp 4 nông thôn, nhà cấp 4 truyền thống, nhà cấp 4 hiện đại, nhà cấp 4 hình chữ L, mái thái…Bạn sẽ có nhiều ý tưởng và sự lựa chọn trong việc xây dựng ngôi nhà mong muốn của mình
Mẫu nhà cấp 4 diện tích 6x12m bố trí ban công

Được xây dựng trên một khu đất khá rộng, ngôi nhà cấp bốn có kiến trúc độc đáo và màu sắc đẹp mắt. Đặc biệt là cách bố trí nội thất rất hoàn hảo. Vật liệu chính là bê tông nên ngôi nhà có độ cứng cáp, rất phù hợp với điều kiện thời tiết Việt Nam. Thay vì sử dụng tường bê tông như những mẫu nhà khác. Ngôi nhà cấp 4 này được đặt phào chỉ xung quanh để tạo điểm nhấn. Phong cách thiết kế này rất phù hợp với những gia chủ yêu thích sự nhẹ nhàng, tinh tế và phá cách.
Không gian chức năng bên trong gồm 3 phòng ngủ, 1 phòng khách, 1 phòng bếp + ăn và 1 phòng vệ sinh. Tất cả các phòng ngủ có diện tích từ 10-12 m2. Có ban công riêng trên tầng lửng. Kinh phí xây nhà cấp 4 6 × 12 khoảng 500 triệu đồng. Thiết kế nội thất theo hướng hiện đại
Mẫu nhà cấp 4 diện tích 6x12m mái bằng hiện đại

Nếu bạn thích thiết kế nhà hiện đại thì có thể lựa chọn kiến trúc nhà mái thái thiết kế đơn giản. Về màu sắc, bạn có thể chọn giữa màu nâu đỏ hoặc màu trắng mặc định của màu xám. Mặt tiền nên có cửa trước và cửa sổ kính cường lực, cũng như khung gỗ. Ý tưởng thiết kế của mẫu nhà đẹp này sẽ giúp ngôi nhà hài hòa và không gian thoáng đãng, yên tĩnh hơn.
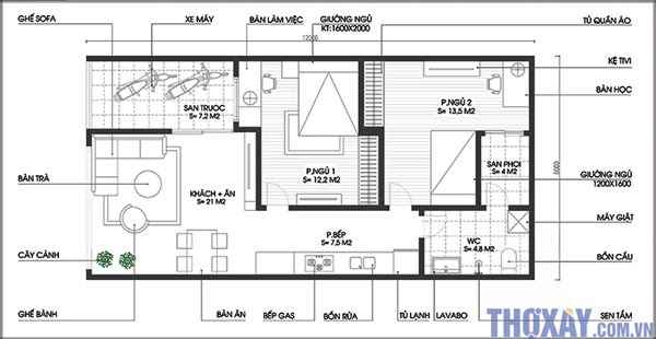
Bản vẽ xây dựng nhà cấp 4 diện tích 6x12m
Một ngôi nhà cấp bốn có kích thước 6x12 m là một phương án xây dựng được nhiều người lựa chọn. Là mẫu nhà cấp 4 diện tích 6 x 12 m với chi phí xây dựng tiết kiệm nhưng các công năng sử dụng vẫn được đảm bảo đầy đủ cho toàn bộ ngôi nhà. Nhiều gia chủ chọn cho mình tông màu xanh lam để mang đến sự thông thoáng trong những ngôi nhà nhỏ và hẹp. Nó cũng làm giảm tiếng ồn bằng cách đặt không gian trước nhà và làm cho ngôi nhà trở nên sinh động hơn bằng cách sử dụng một nhà để xe.

Nhà đẹp cấp 4 được bố trí không gian thiết kế hiện đại được tối giản và loại bỏ bớt sự rườm rà của các hoa văn theo phong cách cổ điển. Tuy nhiên, mẫu nhà vẫn giữ được nét đẹp kiến trúc truyền thống giản dị. Thiết kế mái ngói dốc bổ sung thêm phong cách và các lựa chọn sáng sủa để làm cho tiền sảnh trở thành một đường đua chào đón.
Bản vẽ với các sảnh chính và phụ được ghi rõ ở cuối nhà. Phòng khách ở sảnh chính đủ rộng để đón khách. Hai phòng ngủ được đặt gần nhau sử dụng phòng vệ sinh riêng để tiết kiệm diện tích. Phòng bếp kết hợp phòng ăn cuối nhà hướng ra sảnh phụ để lấy ánh sáng tự nhiên.
Mẫu nhà cấp 4 diện tích 6x12m mái thái ấn tượng

Đây là mẫu nhà cấp 4 diện tích 6x12m được xây dựng rộng rãi ở các vùng nông thôn Việt Nam. Ngôi nhà sử dụng hệ thống mái thái kết hợp với hệ thống đèn chiếu sáng độc đáo. Phần mái dốc hai bên khiến mẫu thiết kế nhà cấp 4 gác lửng càng thêm đẹp và ấn tượng. Bạn có thể xây nhà cấp 4 với màu trắng tinh tế. Có thể chọn cột từ cột tròn hoặc cột vuông. Bạn có thể tạo điểm nhấn bằng cách thêm một dòng ở cuối cột. Cửa kính cường lực phụ được bố trí ở phòng chính và phòng tiệc. Chúng sẽ giúp không gian đón được ánh sáng tự nhiên và giảm tiếng ồn tốt. Về cách bố trí phòng chức năng, diện tích 6x12m bạn sẽ có 3 phòng ngủ, 1 phòng khách, 1 phòng ăn kết hợp bếp, đủ diện tích cho nhà vệ sinh. Nếu cần sử dụng thêm phòng ngủ, bạn có thể làm thêm gác lửng.
Mẫu nhà cấp 4 diện tích 6x12m đẹp

Ngôi nhà có kiến trúc độc đáo với cách bố trí lệch tầng, toàn bộ ngoại thất ngôi nhà sử dụng gam màu trắng xám trang nhã. Cửa kính cường lực kết hợp với lan can kính giúp tạo điểm nhấn cho không gian, không gian phòng khách trở nên hài hòa và độc đáo hơn. Nếu bạn thích những căn phòng hiện đại, sang trọng thì có thể tham khảo mẫu nhà cấp 4 này. Từ kiểu dáng đến chất liệu cho đến nội thất chắc chắn bạn sẽ hài lòng về độ tinh xảo
Trên đây là mẫu nhà cấp 4 diện tích 6x12m mà Xây Dựng Số gửi đến bạn. Hy vọng bạn sẽ tìm được nhiều ý tưởng hay cho căn nhà sắp tới của mình nhé!


































