Ngoài việc bố trí tầng hầm của biệt thự làm gara ô tô, nó còn được tận dụng làm hầm rượu, hầm rượu, phòng sinh hoạt của gia đình. Với những đặc điểm trên, mẫu biệt thự có tầng hầm ngày càng trở nên được ưa chuộng. Thiết kế tầng hầm đóng vai trò rất quan trọng trong quá trình xây dựng vì nó giải quyết được chỗ để xe, tăng diện tích sử dụng và bảo vệ các tầng trên. Ngoài ra, tầng hầm biệt thự còn có nhiều tác dụng khác như làm gara ô tô, tầng hầm biệt thự còn được dùng làm hầm rượu, phòng sinh hoạt gia đình. Cũng vì vậy mà thiết kế biệt thự dưới mặt đất ngày càng được nhiều chủ nhân quan tâm. Cùng tham khảo ngay mẫu thiết kế biệt thự có tầng hầm đẹp thông qua bài dưới đây nhé!
1. Các kiểu thiết kế tầng hầm cho biệt thự

Tùy theo sở thích của gia chủ và sự phù hợp của cấu trúc biệt thự mà các kiến trúc sư thiết kế tầng hầm cho phù hợp. Có ba kiểu thiết kế tầng hầm chính.
- Thiết kế ngầm nổi
- Thiết kế tầng hầm dưới nước
- Thiết kế chìm dưới lòng đất (nửa tầng hầm)
Hiện nay, thiết kế tầng hầm của biệt thự được ưa chuộng hơn cả để đảm bảo an toàn và phù hợp với điều kiện khí hậu nước ta.
Thiết kế tầng hầm biệt thự sẽ bị phạt nếu không đảm bảo chất lượng từ khâu thiết kế đến thi công. Mặc dù thiết kế đẹp nhưng vẫn gặp khó khăn khi thi công hoặc gây bất tiện trong thực tế sử dụng do không có tính khả thi cao.
Một số vấn đề thường gặp khi thiết kế tầng hầm biệt thự:
- Vì tầng hầm có âm đất nên việc thi công khá khó khăn và vất vả.
- Vật liệu xây dựng nhà chung cư phải là loại đặc biệt để đảm bảo chất lượng và khả năng chống thấm.
- Việc thiết kế đường ngầm hay “vòng ngầm” đòi hỏi người thiết kế, kiến trúc sư phải nghiên cứu kỹ về lộ trình của đường dốc, thuận tiện cho xe ra vào, không quá cao hoặc quá thấp.
- Khả năng xảy ra ngập lụt cao nên cần có sự tính toán phù hợp.
- Thiếu không khí và ánh sáng
3. Một số điểm quan trọng khi thiết kế tầng hầm biệt thự của bạn

Sau đây, tôi xin tổng hợp một số điều gia chủ cần lưu ý khi thiết kế tầng hầm biệt thự để bạn đọc tham khảo. Đối với tầng hầm, việc thiết kế và thi công thường đòi hỏi kỹ thuật và phức tạp hơn các mặt bằng khác, vì vậy thiết kế tầng hầm đòi hỏi người thiết kế phải có năng lực và kinh nghiệm để đảm bảo chất lượng.
Lựa chọn thiết kế hầm phù hợp với đặc điểm thời tiết, khí hậu và địa hình của biệt thự. Trong điều kiện thời tiết nhiệt đới ở Việt Nam thì nên làm hầm nửa chìm (nửa hầm) chứ không nên làm hầm toàn bộ. Thiết kế kiểu ngầm nửa chìm (kiểu nửa chìm nửa nổi) có thể mang lại cảm giác thông thoáng và giải pháp kỹ thuật tốt hơn, đảm bảo an toàn.
Về mặt phong thủy, nên sử dụng loại bán hầm vì nó tạo thành lớp cách nhiệt ẩm và cải thiện chất lượng trường khí ở những không gian trên cao như phòng khách, bếp mà vẫn không bị bí. Thiết kế của tầng hầm nên được thực hiện theo kích thước tổng thể của biệt thự và nhu cầu của chủ thể. Khi thiết kế tầng hầm cần hợp lý, chú ý đến việc bố trí và sắp đặt vị trí của nó. Cách tiếp cận này tạo ra một vị trí phía trước và phía sau cao theo nguyên tắc Phong thủy truyền thống mà ngôi nhà được hỗ trợ mạnh mẽ.
Ngoài ra, cần lưu ý một số điều khác khi thiết kế tầng hầm biệt thự của bạn:
- Đối với những căn biệt thự nằm trên nền đất yếu thì thiết kế tầng hầm đóng vai trò quan trọng, nó được coi là móng bè giúp chống thấm, khi hoàn thiện nâng đỡ toàn bộ căn biệt thự tránh tình trạng lún không đều. Móng kiểu độc lập.
- Nên lắp đặt hệ thống thoát nước ở cửa hầm để tránh nước từ bên ngoài chảy vào gây ngập úng, đồng thời luôn có máy bơm hút nước từ trong ra ngoài.
- Sử dụng các biện pháp chống thấm an toàn. Đổ bê tông thành hầm (phần chìm dưới mặt đất) để chống rò rỉ từ bên ngoài vào.
- Không khí trong hầm: Giữa và sau hầm phải có giếng trời để thông gió, không nên làm hầm kín.
- Ánh sáng: Tầng hầm là nơi rất ẩm, nền ẩm nên rất cần ánh nắng chiếu trực tiếp để đảm bảo đủ ánh sáng mặt trời (ánh nắng) cho trường khí này phát triển mạnh. Nếu bạn không có đủ đèn trên cao, bạn có thể sử dụng gương phản xạ để cải thiện nó.
- Vị trí đặt bếp: Nếu bếp ở tầng hầm thì gian bếp phải cao hơn chỗ để xe hoặc khoảng thông tầng.
Nếu bạn muốn có một ngôi biệt thự đẹp có tầng hầm thì có thể tham khảo bộ sưu tập các mẫu thiết kế biệt thự đẹp có tầng hầm và tìm được mẫu thiết kế ưng ý theo đúng nhu cầu và quy định của mình. Lập mô hình khu đất.
Mẫu biệt thự có tầng hầm sang trọng

Khi cuộc sống phát triển, bạn cần một không gian sống đẳng cấp với đầy đủ tiện ích. Cùng chiêm ngưỡng mẫu biệt thự tân cổ điển sang trọng có tầng hầm. Biệt thự tân cổ điển với những đường nét thiết kế cầu kỳ, nguyên bản trông giống như những tòa lâu đài của vua chúa ngày xưa.
Bức phù điêu được làm nổi bật trên nền sơn trắng mịn, sạch sẽ. Tông màu trắng mang đến sự sang trọng và khác biệt cho căn biệt thự, giúp căn biệt thự toát lên vẻ sang trọng của Châu Âu mà không nền nã quá nặng nề. Hệ thống cột vuông của công trình cùng với khả năng nghiêng và chống đỡ vừa tạo sự chắc chắn cho công trình, vừa mang ý nghĩa trang trí cho chân và đầu cột tạo nên hoa văn hài hòa với tổng thể kiến trúc. Với việc kết hợp ấn tượng của mái vòm thanh lịch cổ kính, mái và tã và cửa bê tông giúp lấy sáng tự nhiên một cách hoàn hảo. Căn biệt thự có sân vườn đầy cây xanh. Mỗi tầng đều có ban công mang đến không gian thoải mái. Hệ thống cửa kính kết hợp gỗ tự nhiên cao cấp hài hòa với kiến trúc cổ kính.

Mặt bằng tầng 1: sảnh chính, phòng khách rộng rãi, bếp, phòng ăn, 1 phòng ngủ nhỏ, nhà kho và toilet

Mặt bằng tầng trệt: thông tầng, phòng khách, 3 phòng ngủ + toilet

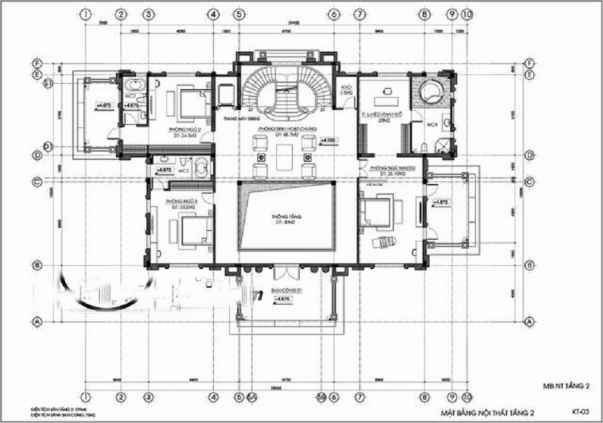
Công năng tầng 2: phòng sinh hoạt chung, nhà nguyện, phòng giải trí, 2 phòng ngủ, toilet

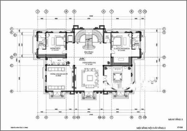
Đặc điểm của tầng áp mái bao gồm thư viện, sân hiên và phòng xông hơi ướt.
Mẫu biệt thự có tầng hầm hiện đại

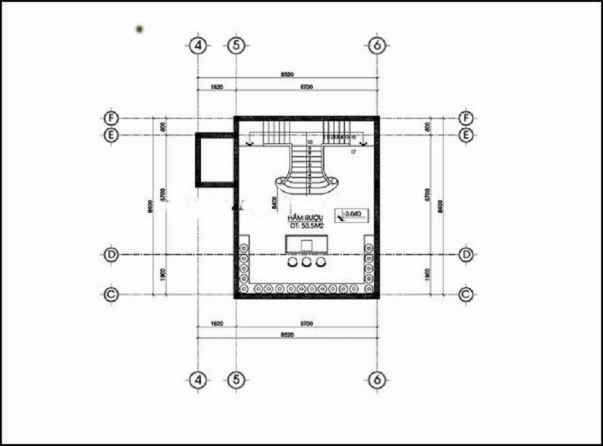
Mẫu thiết kế biệt thự có gara ô tô này đã được xây dựng và hoàn thiện. Công trình có kích thước 8x14m với kết cấu mái thái đặc trưng và đua ra hai bên tạo nên nét duyên dáng cho ngôi nhà. Chúng tôi sẽ tập trung vào nửa không gian dưới lòng đất bên dưới.
Mẫu thiết kế biệt thự có gara được thiết kế nửa tầng hầm vô cùng đẹp mắt như thế này. Diện tích xây dựng của chủ nhà cũng khá lớn và rộng rãi nhưng anh vẫn muốn làm một nửa tầng hầm để tiện sử dụng. Phần đất của gia đình anh thấp hơn nhiều so với mặt đường nên việc tận dụng để làm tầng bán hầm là rất hiệu quả. Tầng bán hầm vẫn có mặt tiền tiếp giáp với bãi đất trống bên dưới tạo thành bể bơi. Vì vậy, là nửa tầng hầm nhưng biệt thự vườn 1 tầng này vẫn có cửa sổ đón ánh sáng tự nhiên. Đến tầng nhà khác. Điều này thực sự đơn giản và phù hợp cho việc xây dựng các công trình. Nó cũng độc đáo mà không phải tất cả các thiết kế nhà đều may mắn.

Không gian tầng hầm được tận dụng làm không gian để xe, phòng ngủ, bếp và phòng ăn. Điều này thực sự phù hợp với nhu cầu sử dụng và nhu cầu xây dựng của gia chủ. Việc di chuyển, di chuyển trong nhà từ tầng hầm trở nên dễ dàng hơn rất nhiều với cầu thang dẫn lên tầng 1 nằm ở giữa. Thêm vào đó, cách bố trí công thái học và thoải mái giúp bạn di chuyển dễ dàng và linh hoạt hơn.
Trên đấy là mẫu biệt thự có tầng hầm đẹp mà Xây Dựng Số gửi đến bạn. Hy vọng bạn sẽ tìm được nhiều ý tưởng hay cho căn nhà sắp tới của mình nhé!
Xem thêm => Chi phí xây nhà có tầng hầm


































