Nếu bạn đang tìm kiếm ý tưởng tốt nhất cho mẫu biệt thự tương lai của gia đình mình thì không thể bỏ qua mẫu biệt thự mặt tiền 8m đẹp và sang trọng. Kiến trúc ngôi nhà theo lối thiết kế hiện đại pha chút cổ điển, tươi sáng với không gian sống hài hòa và cân đối nhất. Đây là một trong những mẫu nhà đẹp và ấn tượng được nhiều gia đình đặc biệt ưa thích mang một nét mới lạ độc đáo nhưng không thể thiếu sự hợp lý trong công năng sử dụng đã tạo cho ngôi biệt thự một vẻ đẹp đặc biệt. Cùng Xây Dựng Số khám phá ngay những tiện ích của ngoại thất và nội thất của mẫu biệt thự này nhé!
Mẫu biệt thự mặt tiền 8m sang trọng

Kiến trúc tân cổ điển chú trọng đến hình khối mà tỷ lệ của nó được phân chia theo con số vàng. Để tạo nên một kiến trúc ngoại thất trang nhã, sang trọng với sự hài hòa, mềm mại của các đường cong, kiến trúc sư đã xử lý không thể thiếu. Hệ thống cột ion được thiết kế thẳng hàng từ mặt tiền tầng 1 đến mặt tiền tầng 3. Thiết kế lan can ban công sử dụng kệ xi măng trắng sáng kết hợp với xử lý ban công phía trước tạo không gian rộng và thoáng hơn rất nhiều. Hình khối của biệt thự tân cổ điển vừa tạo cảm giác vững chãi, bền vững, an ninh vừa thể hiện được những đường nét tinh xảo, bề thế, khỏe khoắn của toàn bộ mẫu biệt thự tân cổ điển. Gờ phào chỉ trang trí ở phía trước và trên đầu và chân cột, được điều chỉnh tinh vi để hạn chế sự tinh vi để hình dáng được uyển chuyển, mượt mà. Khối tròn kết hợp kết cấu mái hình thang với mái vòm và họa tiết hình con sò cùng hệ thống cửa nhựa lõi thép, giúp không gian mặt tiền của công trình nhận được nhiều ánh sáng tự nhiên hơn.
Công năng sử dụng của mẫu thiết kế biệt thự tân cổ điển 3 tầng

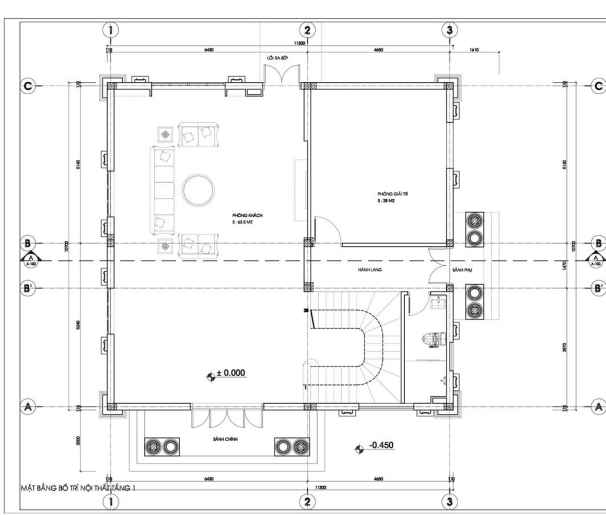
Ở tầng trệt của biệt thự được bố trí khu chức năng chính để tiếp khách và giải trí. Khoảng đệm từ sảnh chính đến gác chân nối thẳng sảnh với phòng khách, mở rộng diện tích từ đây đón luồng sinh khí từ phía trước chảy thẳng ra mặt tiền. Cầu thang thông tầng được bố trí phía bên phải, bên trong có phòng giải trí giúp các thành viên có thể xả stress sau khi làm việc mệt mỏi. Cầu thang xuyên tầng làm khu vệ sinh chung cho cả tầng.

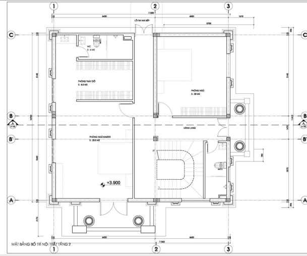
Phòng ngủ master của gia đình được bố trí trên tầng 2, hướng chính ban công phía trước, thiết kế có phòng thay đồ và vệ sinh khép kín đáp ứng nhu cầu sử dụng cá nhân của gia chủ.

Bên cạnh phòng ngủ chính bên phải, đối diện sảnh tầng là phòng ngủ con trai sử dụng vệ sinh chung ở tầng 2, ngay cạnh cầu thang. Thiết kế nó song song với phòng của quý ông của gia đình và ở phía bên kia. Phòng ngủ của người giúp việc được thiết kế phía trong, phòng vệ sinh chung vẫn theo cấu trúc chung của cả gia đình đi xuống cầu thang. Không gian công năng được tối ưu, kiến trúc sang trọng được tính toán kỹ lưỡng theo nhu cầu sử dụng và kinh phí đầu tư của gia đình.
Mẫu biệt thự mặt tiền 8m mái thái ấn tượng

Biệt thự được thiết kế theo kiểu dáng sang trọng cuốn hút mặt tiền 8m phong cách tân cổ điển kiểu Pháp được gia chủ yêu thích nhất. Do đó, từng họa tiết hoa văn được thêm thắt và tỷ lệ cột giả, tỷ lệ cửa, chiều cao nhà ... tạo nên sự hài hòa, dễ chịu cho mắt và đồng thời làm việc trên cơ sở cân đối. Cách phối màu cũng đặc biệt cẩn thận. Chính vì vậy, mặt tiền 8m được chia nhỏ đá tuyệt vời và thiết kế cột khỏe khoắn, tạo cảm giác bề thế cho ngoại thất. Chi tiết lan can cầu thang hoa sắt uốn cong ấn tượng, mang đậm nét cuốn hút với cửa và ban công hình vòm. Từng góc diện tích đều được gia đình tối ưu không gian sử dụng, bố trí từng phòng, chiều cao tầng, chiều rộng cửa,… đều được cân nhắc kỹ lưỡng để phù hợp với Phong thủy của gia chủ và các thành viên trong gia đình.
Mẫu biệt thự mặt tiền 8m đẹp lung linh

Mẫu thiết kế biệt thự 3 tầng mặt tiền 8m phong cách tân cổ điển sang trọng. Đường nét kết hợp với gam màu trắng nhẹ nhàng, họa tiết phù điêu tinh tế điểm thêm sắc vàng tươi mang đến vẻ đẹp đậm chất hoàng gia. Bên cạnh những đường nét, kết cấu cột vuông, vòm cong tinh tế, phần mái đỏ tươi nổi bật được xếp lớp trang nhã, phần mái và cửa sổ làm bằng gỗ kết hợp kính cao cấp, đảm bảo thông thoáng cho nội thất.
Biệt thự 3 tầng mặt tiền 8m phong cách tân cổ điển nổi bật với những đường nét mềm mại, màu sắc hài hòa sang trọng. Cửa được làm bằng sắt mỹ thuật tinh tế. Hệ thống cột trụ được ốp đá sang trọng, hệ lam chắn nắng phá cách trên mang đến sự mới lạ cho tổng thể công trình. Tuy là xu hướng được nhiều người yêu thích hiện nay nhưng mỗi mẫu thiết kế biệt thự 3 tầng mặt tiền 8 m cổ điển lại mang một vẻ đẹp riêng. Tại đây, các căn biệt thự được quản lý cẩn thận từng chút một, từ cổng rào, cột tròn nhẵn nhụi cho đến hệ thống mái hiên che phía trên sang trọng và đẳng cấp.
Khoác trên mình gam màu trắng nhẹ nhàng làm cho những đường nét, họa tiết phù điêu mang phong cách cổ điển càng thêm nổi bật và tinh xảo. Mặt bằng tầng 1 được thiết kế như một biệt thự 3 tầng đẹp với những mảng màu đa sắc riêng biệt hòa quyện với hệ thống cửa rào lệch tầng làm điểm nhấn cho toàn bộ công trình. Thay vào đó là thiết kế biệt thự mái thái mang đậm phong cách Châu Âu với mái thái mansard xanh da trời đẹp mắt, trên tầng thượng có cửa kính để đón nắng và gió tự nhiên từ trên cao xuống, mang đến sự thông thoáng, mát mẻ.
Mẫu thiết kế biệt thự 3 tầng tân cổ điển rộng 8 m trở nên thanh thoát hơn nhờ đơn giản hóa các đường nét họa tiết. Tầng trệt được ốp bằng đá cao cấp cùng những cột trụ tròn mềm mại cộng hưởng càng làm tôn lên vẻ uy nghiêm cho toàn bộ ngôi biệt thự. Biệt thự 2 mặt tiền có nhiều ưu điểm như nâng cao đẳng cấp của công trình nhờ tạo cảm giác thông thoáng, đường nét thiết kế kiến trúc hơn. Ở ngôi biệt thự này, kiến trúc sư đã khéo léo trang trí hai mặt tiền đẹp và sang trọng.
Nếu như sơn tường màu trắng nhẹ nhàng thường được sử dụng trong các công trình mang phong cách Châu Âu thì màu vàng tượng trưng cho công trình xưa của Việt Nam, màu đại diện cho bậc vương giả quyền quý. Các kiến trúc sư đã kết hợp ưu điểm của hai gam màu này để tạo nên một công trình đẹp và sang trọng. Không dừng lại ở đó, mẫu thiết kế biệt thự 3 tầng nổi bật với những họa tiết, phù điêu đắp nổi khéo léo, hệ thống cột trụ vững chãi kết hợp với mái thái được xây dựng thanh thoát trong không gian rộng lớn cho người nhìn. Bạn muốn ngắm nhìn vẻ đẹp của tòa nhà.
Mẫu thiết kế biệt thự 3 tầng tân cổ điển rộng 8m được nhiều người ưa chuộng hiện nay. Để hạn chế những đường nét, họa tiết đậm nét của nền biệt thự thoát khỏi sự đơn điệu của những bức tường vôi khô cứng, chúng tôi khéo léo giữ lại những đường kẻ dọc, đường nét nhỏ uyển chuyển. Mẫu thiết kế biệt thự 3 tầng phong cách cổ điển đẹp và sang trọng. Căn biệt thự hoàn hảo về kiến trúc và công năng khiến ai cũng phải mê mẩn.
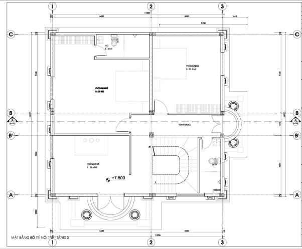
Mặt bằng công năng của mẫu biệt thự mặt tiền 8m



Công năng của không gian nội thất rất quan trọng, để mang đến không gian sống thoải mái và tiện nghi cho gia đình thì việc bố trí căn phòng và cách phân chia không gian phải hợp lý. Các phương án khác nhau tùy theo nhu cầu sử dụng, yếu tố phong thủy, khu đất mà các kiến trúc sư của công ty xây nhà đưa ra. Xem bản vẽ mặt bằng của mẫu thiết kế biệt thự 3 tầng cổ điển
Trên đây là mẫu biệt thự mặt tiền 8m mà Xây Dựng Số muốn gửi đến bạn. Hy vọng bạn sẽ tìm được nhiều ý tưởng hay, mới mẻ cho ngôi nhà trong mơ của mình nhé

































