Thay vì mẫu thiết kế mái thái thường thấy, lần này chúng tôi sẽ giới thiệu đến quý khách hàng mẫu nhà cấp 4 cấu trúc mái bằng độc đáo. So với mái thái thì kiến trúc này khó thi công hơn. Mẫu nhà 1 tầng mái bằng được xây dựng ở Phú Thọ trên diện tích 130m2. Phía trên phần mái bằng sẽ được lợp bằng tôn chống nóng. Nhằm tiết kiệm chi phí cho gia đình thì phương án làm mái bằng được áp dụng để bớt đi phần chi phí hợp mái và đổ riềm mái.
Mẫu thiết kế này được xây dựng cho gia đình anh Hưng ở Phú Thọ. Trước khi tìm đến chúng tôi, quỹ đất sử dụng căn nhà đã có sẵn. Vì muốn kiến tạo nên mái ấm cho bố mẹ, mang đến không gian thuận tiện, mới mẻ và khang trang hơn nên anh đã có lời đề nghị chúng tôi giúp đỡ, giới thiệu cho anh mẫu thiết kế nhà ấn tượng, vừa tiết kiệm được chi phí, đảm bảo được tính thẩm mỹ nhưng vẫn thật hợp lý, thuận tiện và đạt chất lượng tối ưu.
Trên cơ sở đáp ứng những yêu cầu của gia chủ, kết hợp với khả năng sáng tạo các kỹ trúc sư đã giới thiệu đến mẫu nhà mái bằng ấn tượng, độc đáo. Thiết kế này xây dựng trên lô đất có diện tích 1000m2 và diện tích xây dựng là 130m2, diện tích nhà 9x14m nên hầu hết không gian đều rộng rãi, thoáng mát. Chi phí xây dựng công trình cũng không quá đắt đỏ. Bởi so với không gian và thiết kế này thì chỉ với 600 triệu gia đình đã có thể tận hưởng cuộc sống bình yên, hạnh phúc trong ngôi nhà này.
Tổng quan phối cảnh mẫu nhà 1 tầng mái bằng trên diện tích 130m2

Phối cảnh mặt tiền nhà 1 tầng mái bằng đẹp
Màu vàng sẽ được sử dụng sơn tường, theo đó tông màu chủ đạo của toàn căn sẽ là vàng nhạt nhẹ nhàng và tinh tế. Điểm nhấn của thiết kế này là phần mái thái ở phần tiền sảnh. Không quá cầu kỳ hay nhiều chi tiết song yếu tố này góp phần điểm tô thêm cho không gian, giảm bớt sự đơn điệu cho căn nhà. Theo đó, phần mái thái khá cao, xây thêm lỗ thông gió bằng gạch bông gió che chắn cho phần mái tôn lợp chống nóng trên mái.

Góc nhìn bên hông
Tại góc nhìn này, quý khách hàng dễ thấy có phần thiết kế bố trí cao và ốp đá tự nhiên ở góc cạnh nhà. Đây là khu vực phòng vệ sinh, xây dựng tạo điểm nhấn cho toàn căn. Ở phần mái phía trên, các ô vuông được thiết kế đơn giản nhưng khá đẹp mắt, xem như yếu tố trang trí cho thiết kế này.

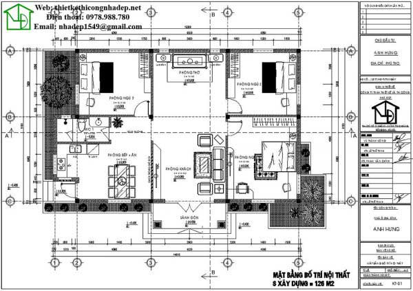
Mặt bằng nội thất
Mặt bằng nội thất nhà mái bằng ở Phú Thọ được nghiên cứu bố trí các không gian hợp lý bao gồm 3 phòng ngủ cho các thành viên, 1 phòng khách sau phần cửa chính, 1 phòng thờ, nhà ăn và khu vực bếp cùng 1 nhà vệ sinh được sắp xếp tại vị trí hợp lý, thuận tiện sinh hoạt. Đây là mẫu chúng tối giới thiệu đến quý khách hàng. Vì các không gian là tương đối nhau, phân chia khu vực sinh hoạt chung lẫn nơi riêng tư nên tùy vào nhu cầu và sở thích của gia chủ mà có thể bố trí sao cho hợp lý và thuận tiện đi lại, sinh hoạt cho cả gia đình.
Nguồn tin: https://thietkethicongnhadep.net/
Tin hot trong ngày:
- Mẫu nhà ống 1 tầng mái bằng đẹp
- Mẫu nhà cấp 4 mái bằng 1 tầng tum
- Bản vẽ thiết kế nhà cấp 4 mái bằng diện tích 8.5 x 24.025m

































