Mẫu nhà 2 tầng 3 phòng ngủ 5x15 với thiết kế hiện đại, sang trọng, trẻ trung cùng với không gian bên trong được bố trí hợp lý thông minh đang thiết kế được gia chủ sở hữu những diện tích tương tự vô cùng quan tâm. Mẫu nhà 2 tầng 3 phòng ngủ 5x15 nào đang nhận được sự quan tâm của gia chủ trong thời gian hiện nay, cùng với xu hướng thiết kế mẫu nhà này như thế nào?

Mẫu nhà 2 tầng 3 phòng ngủ 5x15 là mẫu nhà được xuất hiện phổ biến tại khu vực thành phố, nơi có phần diện tích hạn chế cùng với nhu cầu xây dựng nhà ở có diện tích nhỏ đang tăng cao. Nhu cầu ấy dẫn đến sự phát triển vô cùng lớn và sự ra đời của rất nhiều mẫu thiết kế nhà đẹp, ấn tượng. Trong bài viết này giới thiếu đến top 4 mẫu thiết kế mẫu nhà 2 tầng 3 phòng ngủ đang được quan tâm nhất hiện nay.
Mẫu nhà 2 tầng 3 phòng ngủ 5x15 hiện đại
Mẫu thiết kế theo phong cách hiện đại luôn được gia chủ dành sự quan tâm đặc biệt cho những ngôi nhà của mình bởi chi phí rẻ, thời gian thi công nhanh chóng và đạt hiệu quả cao trong quá trình sử dụng.

Với ngôi nhà 2 tầng 3 phòng ngủ 5x15 hiện đại sẽ được bố trí như sau:
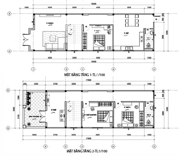
Tầng 1 bao gồm: 1 phòng khách, 1 phòng ngủ, 1 bếp kết hợp với bàn ăn và 1 nhà vệ sinh. Bước vào ngôi nhà là không gian phòng khách vị trí đầu tiên. Không gian này để gia chủ đón vị khách tới thăm nhà, người thân, bạn bè. Sau phòng khách sẽ là khu vực cầu thang rồi tiền đến phòng ngủ, sau cùng mới là không gian bếp và phòng ăn.
Gia chủ lựa chọn đặt phòng ngủ ngay sau vị trí cầu thang mà không phải không gian bếp để thuận tiện cho việc nghỉ ngơi thư giãn của chính mình. Lý do thứ hai để giảm thiểu mùi thức ăn từ không gian bếp, không ảnh hưởng đến hai không gian phòng khách và phòng ngủ. Ở cuối nhà, ngay tại vị trí phòng bếp bố trí cửa sau, vừa giảm thiểu được mùi thức ăn lại giúp lưu thông không khí từ đầu nhà cho đến cuối nhà.

Ở trong thiết kế này, gia chủ lựa chọn cầu thang để phân cách không gian với nhau để đảm bảo độ riêng tư cho từng không gian nhà. Không gian vệ sinh được đặt cuối nhà để tạo sự thoải mái, thuận tiện cho việc sử dụng. Tiếp đến khu vực tầng hai bố trí 1 sân thượng, 1 phòng thờ, 2 phòng ngủ và 1 nhà vệ sinh.
Không gian sân thượng bố trí ngay tại mặt tiền của ngôi nhà. Khu vực này bố trí thêm cây xanh vừa tạo được không gian xanh còn thiếu trong những ngôi nhà mặt phố, lại vừa là nơi để gia chủ thư giãn cùng với thiên nhiên ngày làm việc căng thẳng.
Phòng thờ được bố trí liền kề với sân thượng rất phù hợp với phong thủy bởi đây là vị trí cao nhất trong căn nhà hai tầng, lại vừa là không gian mặt trước của mặt tiền ngôi nhà.
Hai phòng ngủ được bố trí ngay đằng sau, ngăn cách bởi khu vực cầu thang ở giữa. Mỗi căn phòng đều có bố trí cửa sổ đi cùng để đáp ứng nhu cầu ánh sáng ban ngay, vừa giúp thông thoáng nguồn không khí trong nhà. Khu vực vệ sinh được bố trí cuối cùng, đáp ứng nhu cầu của hai phòng ngủ phía trước.
Phía bên trong ngôi nhà, gia chủ bố trí một cách thông minh và linh hoạt, lựa chọn nội thất lưu ý đến thiết kế nhỏ gọn đa tính năng. Vậy mặt tiền của những ngôi nhà này như thế nào?

Thiết kế mặt tiền cho mẫu nhà 2 tầng theo phong cách hiện đại vô cùng đơn giản, sử dụng khối hộp trong thiết kế nâng cao diện tích cho căn nhà. Ở khu vực tầng một thay vì sơn thông thường thì gia chủ lựa chọn ốp đá để tăng điểm nhấn cùng hệ thống cửa khung nhôm kính và cửa kéo.
Mẫu nhà 2 tầng 3 phòng ngủ 5x15 hiện đại kết hợp thiên nhiên
Mẫu thiết kế kết hợp thiên nhiên là phần còn thiếu trong những ngôi nhà có diện tích nhỏ hiện nay đang rất cần. Bố trí mặt bằng kiến trúc như sau: Khu vực tầng trệt: 1 phòng khách, 1 phòng bếp cùng bàn ăn, 1 phòng ngủ nhỏ và 1 nhà vệ sinh.

Khác với cách bố trí khu vực cầu thang ở mẫu thiết kế trước, mẫu thiết kế này đặt cầu thang song song với phòng khách. Điều này giúp gia chủ có diện tích sinh hoạt lớn hơn, những diện tích còn lại được bố trí xen kẽ với cây xanh.
Khu vực phòng khách nối thông với bếp để tạo nên không gian mở, gia chủ nâng được diện tích này lên rất nhiều. Khu vực này cũng có thể kết hợp kinh doanh mà không làm ảnh hưởng đến không gian phía sau nhà.
Tiến lên khu vực lầu hai bố trí không khác biệt quá nhiều so với mẫu trước: 1 ban công, 1 phòng thờ, 2 phòng ngủ trong đó có một phòng ngủ master, 1 nhà vệ sinh. Ngoài ra mẫu thiết kế này được bố trí thêm giếng trời để lấy áng sáng cho cả căn nhà, lưu thông không khí giữa các tầng. Khu vực ban công gia chủ có thể trồng cây xanh hay vườn rau mini cho cả gia đình.

Mặt tiền cuẩ thiết kế này gia chủ có thể lựa chọn nhiều phong cách khác nhau để áp dụng cho căn nhà. Ví dụ như phong cách tân cổ điển kết hợp với mái Thái kép. Kiến trúc này không quá nhiều họa tiết trang trí, điểm nhấn nằm ở hệ thống cột trụ của căn nhà, phấn mái Thái kép để tăng độ bề thế lên cho căn nhà.

Thiên nhiên xuất hiện ở kiến trúc theo phong cách hiện đại cho mẫu nhà 2 tầng 3 phòng ngủ 5x15 khi biến không gian này trở thành một vườn treo nhỏ. Khu vực này gia chủ lựa chọn một phần ghế thư giã để tự tạo cho mình một không gian nghỉ ngơi đúng nghĩa với không gian xanh được bao phủ.

Với thiết kế kết hợp thiên nhiên theo phong cách hiện đại, gia chủ có thể lựa chọn việc xây dựng một tum trên khu vực tầng thượng. Với thiết kế này, gia chủ có diện tích với thiên nhiên lớn hơn rất nhiều so với một ban công có diện tích hạn chế hơn.

Khu vực tầng thượng ngoài không gian cây xanh xung quanh, gia chủ thêm diện tích như không gian thờ phía trên để khu vực phía tầng dưới với không gian riêng được nâng lên lớn hơn. Khu vực này cũng có thể trở thành khu vực tụ tập bạn bè, người thân bên bàn ăn.
Mẫu nhà 2 tầng 3 phòng ngủ 5x15 có sân trước

Thiết kế này đáp ứng gia chủ một không gian là gara oto mà không phải tìm nơi để xe ở xa khu vực nhà. Ở khu vực tầng 1 có diện tích dành gara, sau đó phòng khách, 1 ngủ và 1 bếp và 1 nhà vệ sinh. Tiến lên khu vực tầng 2 là sân thượng với diện tích lớn, 2 phòng ngủ, 1 nhà vệ sinh và 1 sân phơi. Thiết kế tối đa được diện tích ở, đáp ứng gần như hoàn hảo nhu cầu sử dụng nhà ở hiện nay.

Sử dụng phong cách thiết kế hiện đại cho thiết kế này chính là giải pháp để gia chủ có được những phần diện tích hợp lý và rộng rãi. Phần gara được bố trí phía trước ngôi nhà để không gây ảnh hưởng đến diện tích sử dụng phía sau. Hệ thống cổng rào với thiết kế đơn giản, màu trắng trang nhã, phù hợp với tổng quan thiết kế của căn nhà.

Thiết kế kết hợp sân trước ở mẫu nhà này sẽ xuất hiện cả ở khu vực tầng hai. Không gian này gia chủ sử dụng để trồng cây xanh hay trở thành một vườn rau phục vụ nhu cầu cuộc sống. Hoặc có thể bố trí bàn ăn để gia chủ tụ tập bạn bè, người thân vào dịp cuối tuần.
Mẫu nhà 2 tầng 3 phòng ngủ 5x15 thiết kế mẫu nhà ống

Mẫu thiết kế cuối cùng vẫn luôn lọt top mẫu nhà 2 tầng 3 phòng ngủ 5x15 đó chính là thiết kế nhà ống. Đây được xem là giải pháp thiết kế cho những mẫu nhà phố hạn chế về diện tích như hiện nay.

Mẫu thiết kế đầu tiên trong mẫu nhà ống hiện nay sử dụng phong cách thiết kế hiện đại, phần mặt tiền được ứng dụng khối hộp để tạo nên sự bề thế về kích thước cho ngôi nhà. Không gian tầng hai được bố trí với hệ thống cửa kính cỡ lớn, bên trong có rèm bao phủ vừa để thông thoáng cho căn nhà vừa để lấy ánh sáng vào ban ngày nhưng hạn chế lượng nhiệt vào buổi sáng. Ban công được thiết kế thêm với hàng cây xanh là nét thiết kế khác biệt cho căn nhà.

Vẫn có mặt tiền tương tự mẫu thiết kế nhà ống thường thấy nhưng phần mái lại được chú trọng với mái bằng lệch bô cùng ấn tượng. Sử dụng phần mái lệch mang đến cảm giác về độ lớn của ngôi nhà nhưng cùng với đó là chính là sự thông thoáng, lưu thông khí còn thiếu trong những căn nhà ống này.
Xem thêm:


































