Mẫu nhà cấp 4 chưa bao giờ hết tuyệt vời đối với các gia đình tại Việt Nam. Mẫu nhà cấp 4 diện tích 8x13m đẹp, hiện đại và tiện ích được gia chủ và những người xung quanh đặc biệt yêu thích. Hãy cùng Xây Dựng Số tìm hiểu thêm về mẫu thiết kế nhà này qua bài viết dưới đây.
Mẫu nhà cấp 4 8x13m có 3 phòng ngủ đẹp

Bởi vì chiều rộng và chiều sâu hẹp, nó có thể được xem như một ngôi nhà bốn tầng, và mặt tiền rất đơn giản, được chia thành hai khối lớn đẩy lên một khối chính và ba khối nhỏ hơn. khối. Thiết kế này đơn giản với vẻ đồng quê mộc mạc, nhưng không quá cầu kỳ và trang nhã.
Màu nâu, cùng với màu trắng nhẹ nhàng, được coi là tông màu chính của thiết kế. Phần mái cũng được sử dụng màu nâu để hài hòa với tổng thể kiến trúc ngoại thất. Chỉ sử dụng hai gam màu nâu và trắng nhưng không hề mang đến vẻ đơn điệu mà ngược lại, những thiết kế với họa tiết trang trí trở nên trang nhã và rất phù hợp với mong muốn của gia chủ.
Để tạo điểm nhấn cho kiến trúc, chúng tôi thiết kế một thanh dọc bên trái ngôi nhà vừa để trang trí kiến trúc vừa giúp gia chủ trồng thêm những cây dây leo hoặc cây treo tường đẹp mắt. Cửa chính làm bằng gỗ hai cánh lớn giúp ngôi nhà trông cứng cáp và bề thế hơn, kết hợp với hệ thống cửa kính cường lực khung nhôm tăng hiệu quả thẩm mỹ.

Mẫu nhà cấp 4 mái thái có chiều sâu là 8 m chưa tính tầng 3, chiều rộng mặt bằng gần như là 13m được thiết kế là 3 phòng ngủ tiện nghi trong đó có 1 phòng ngủ master dành cho bố mẹ. Phòng khách sang trọng được đặt ở vị trí trung tâm của ngôi nhà đi qua không gian đệm thông thoáng trước nhà trước khi đến sảnh chính là không gian sinh hoạt và vui chơi của các thành viên trong gia đình.
Bếp đã có thể sử dụng bên ngoài nên bài viết này sẽ không đề cập đến. Nhưng nếu bạn thích mẫu này và muốn làm bếp tại nhà thì việc bài trí hoàn toàn có thể thực hiện được, vì có đủ diện tích cho việc thiết kế bếp và phòng ăn rất tiện nghi. Mẫu nhà cấp 4 diện tích 8x13m theo phong cách hiện đại nhưng rất thanh thoát, mềm mại phù hợp với không gian xung quanh. Thái Nguyên có rất nhiều mẫu kiến trúc nhà cấp 4 đẹp nhưng tôi tin rằng đây sẽ là một trong những mẫu thiết kế trung tâm của khu vực.
Mẫu nhà cấp 4 diện tích 8x13m hiện đại

Ngôi nhà là ngôi nhà, là nơi trở về sau một ngày rất quan trọng nên anh Tuấn chủ đầu tư mẫu nhà cấp 4 3 phòng ngủ đã nhiều lần trao đổi bản thiết kế cuối cùng dưới đây với kiến trúc sư của chúng tôi. Tôn trọng ý kiến và mong muốn của khách hàng đối với các nguyên tắc thiết kế cơ bản là mục tiêu luôn hướng tới của vtkong. Bởi khách hàng hiểu rằng họ muốn sở hữu những chi tiết dù là nhỏ nhất trong ngôi nhà của mình.

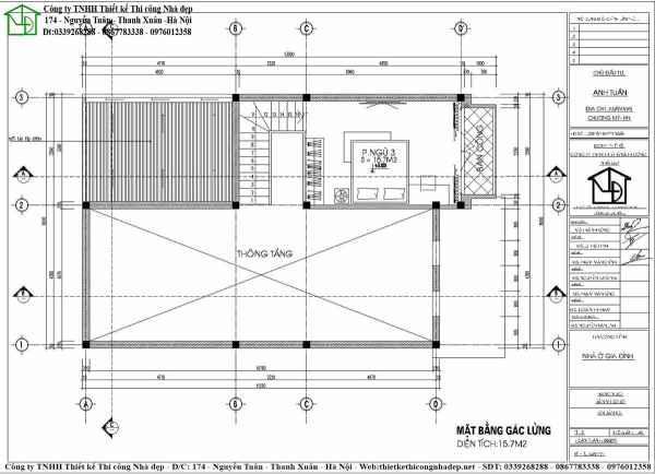
Cùng chúng tôi xem bản vẽ mặt bằng công năng sử dụng của mẫu nhà cấp 4 diện tích 8x13m hiện đại này nhé. Tầng 1: Không gian tầng 1 mẫu nhà cấp 4 8x13m được tận dụng tối đa và tiện lợi cho việc sinh hoạt. Từ sảnh chính bước vào là phòng khách rộng 17m2. Ở tầng trệt có 2 phòng ngủ cho gia đình. Phòng bếp kết hợp phòng ăn khá rộng và tiện nghi ở sân sau cạnh phòng vệ sinh chung.

Tầng lửng: Tầng lửng của mẫu nhà gác lửng thứ 4 này là một phòng ngủ rộng rãi bên cạnh ban công không quá công năng và có view cực đẹp. Khoảng trống còn lại để chúng tôi lau sàn tạo cho gia chủ một không gian cao và thoáng mát.

Mẫu thiết kế nhà cấp 4 8x13m mang phong cách hiện đại qua sự đơn giản của các góc tường vuông vắn thẳng tắp không có quá nhiều chi tiết cách điệu. So với mẫu nhà 2 tầng hiện đại, mẫu nhà cấp 4 gác lửng này không chỉ kém công năng sử dụng mà còn rất dễ gây nhầm lẫn về hình thức bên ngoài. Nhưng thực ra phần trên của ngôi nhà này chỉ sử dụng phần mái bên làm phòng ngủ, phần còn lại chỉ là phần để thông gió cho ngôi nhà.
Với hơn 10 năm kinh nghiệm thiết kế và thi công, ở mẫu nhà cấp 4 mới nhất hiện nay, gia chủ được khuyến khích sử dụng cửa kính cường lực khung nhôm. Cửa kiểu này giúp cho ngôi nhà luôn tràn ngập ánh sáng tự nhiên, kết hợp với rèm cửa giúp bạn dễ dàng điều chỉnh mức độ ánh sáng phù hợp với nhu cầu của mình. Phần trên của ngôi nhà có hai phần: mái chéo và mái bằng. Theo yêu cầu của gia chủ, phần mái tôn chỉ để lau sàn, không có nhu cầu sử dụng không gian này. Phần mái bằng là phòng ngủ và có ban công rất sáng tạo với lan can kính giúp mở rộng tầm nhìn.
Thiết kế mái che độc đáo nguyên bản, thẩm mỹ và hiệu quả trong quá trình sử dụng. Vào những ngày mưa, thiết kế mái thái dốc rất tốt. Vào mùa hè, khả năng chống nắng cho tầng trệt của mẫu nhà 4x13 m rất tốt, giúp không gian không bị nóng và mát mẻ. Trong thiết kế mẫu nhà cấp 4 8x13m này, gam màu sơn chủ đạo kết hợp gam màu sáng trắng xám tiếp thêm nguồn sinh khí cho ngôi nhà của bạn. Tuy nhiên, phối màu này được thiết kế theo ý muốn của gia chủ.
Mẫu nhà cấp 4 diện tích 8x13m mái thái truyền thống

Mẫu nhà đẹp cấp 4 ở nông thôn mái thái 8x13m được bố trí 3 gian hiện đại và trang nhã sẽ là không gian sống lý tưởng cho gia chủ ngoại thành. Mẫu nhà cấp 4 nông thôn hiện đại này được đội ngũ kiến trúc sư của anh Nguyên thiết kế theo phong cách kết hợp bố cục ba gian truyền thống với mái thái hiện đại. Đây là nét độc đáo mà công ty chúng tôi muốn giới thiệu đến các gia chủ.
Mẫu nhà cấp 4 diện tích 8x13m phong cách biệt thự

Bên trong mẫu biệt thự cổ điển là phòng bếp, bàn và phòng ăn rộng. Những bữa tiệc nhỏ cùng gia đình và bạn bè cũng được tổ chức trong những căn phòng ấm áp và tiện nghi này. Khu vực bếp và phòng ăn với sảnh phụ giúp không gian bên trong luôn lưu thông và mát mẻ. Từ phòng ăn đến phòng ngủ lớn 1. Phòng ngủ có vệ sinh riêng và thông thoáng tự nhiên nên cửa sổ lớn nhìn ra sân sau là nơi thư giãn, nghỉ ngơi lý tưởng.
Phòng ngủ 2 và phòng ngủ 3 với không gian tương tự nhau đều yên tĩnh và hướng ra thiên nhiên mang đến sự thư thái và thoải mái nhất. Ngoài ra, phòng vệ sinh chung sẽ giúp tiết kiệm diện tích sử dụng cho ngôi nhà có sân vườn đẹp, tiện nghi cũng là nơi được yêu thích trong thiết kế nhà đẹp. Phần mái của mẫu thiết kế biệt thự 1 tầng cổ điển diện tích 120 m2 được thiết kế tỉ mỉ mang đến công năng đồ sộ, bền vững và trường tồn cho toàn bộ công trình. Kết cấu mái được tạo nên của mẫu thiết kế biệt thự cổ điển Pháp là mái bê tông dán ngói, mái bê tông sang trọng thể hiện tính chất đẳng cấp và bề thế của toàn bộ kiến trúc ngôi nhà.
Nếu nhìn vào ngoại thất của ngôi biệt thự 1 tầng cổ điển với kết cấu 13,6x9m, bạn có thể dễ dàng nhận thấy thiết kế vững chãi của các cột tròn. Các cột tròn không chỉ nâng đỡ toàn bộ khối công trình đồ sộ mà còn tôn lên vẻ uy nghiêm, trang nghiêm của mẫu biệt thự 1 tầng kiểu pháp cổ điển đẹp. Bên ngoài ngôi nhà chủ yếu được sơn màu trắng và các chi tiết ngoại thất khác. Sự tinh tế trong thiết kế tổng thể, những chi tiết nhỏ tinh tế của mẫu biệt thự kiểu pháp được thể hiện rất rõ nét trên bản vẽ mặt đứng của mẫu nhà đẹp này, giúp bạn dễ dàng nhận ra. Ngoài ra, các chi tiết của cột, tường, cửa sổ và vòm che đều rất công phu.
Trong thiết kế biệt thự vườn mái thái, sự kết hợp hài hòa giữa hệ thống cột, khung cửa chính, cửa sổ và hệ phào chỉ trang trí cột và gờ cửa tôn lên những điểm nhấn mang đậm tính nghệ thuật, mẫu nhà 1 tầng có sân vườn đẹp lại càng là phong cách nhẹ nhàng, thanh thoát và đậm chất cổ điển. Mẫu thiết kế biệt thự 1 tầng cổ điển đẹp trên đây được rất nhiều gia chủ lựa chọn bởi sự đầy đủ và đẹp mắt của mọi công năng khi thiết kế.


































