Mẫu nhà phố 1 trệt 1 lầu 5x15 là thiết kế trong mấy năm trở lại đây luôn là top thiết kế được quan tâm nhiều nhất bởi sự hoàn hảo trong kiến trúc, phù hợp nhịp sống hiện đại, tạo không gian sống thoải mái cho thành viên trong gia đình.
Vì sao nên lựa chọn nhà phố 1 trệt 1 lầu 5x15?
Nhắc đến lý do đầu tiên phải kể đến tính phổ biến của thiết kế này trong đời sống hiện đại. Đây cũng chính là từ khóa lọt top tìm kiếm nhiều nhất bởi sự phù hợp với diện tích khiêm tốn của nhà phố và việc sử dụng hợp lý toàn bộ không gian sống đủ cho các thành viên trong gia đình.

Xây dựng nhà phố 1 trệt 1 lầu 5x15 tạo ra không gian đủ dùng trong một gia đình: tầng trệt tận dụng là khu sinh hoạt chung vui chơi cho cả gia đình, tầng 2 là không gian nghỉ ngơi, với phòng ngủ của các thành viên, đảm bảo không gian riêng tư nhất định cho mỗi người.
Dễ dàng thiết kế, thi công, tính ra chi phí cho một nhà cấp 4 giá rẻ thì mẫu thiết kế 1 trệt 1 lầu 5x15 này sang trọng, tiện nghi hơn rất nhiều. Chi phí bỏ ra để xây dựng một ngôi nhà như này rẻ hơn rất nhiều bởi việc sử dụng mái bằng thay cho mái dốc, mái thái bề thế.
Với diện tích nhỏ trên phố hiện nay việc xây dựng một ngôi nhà với thiết kế như thế này đem lại một cảm giác đầm ấm, cả gia đình quây quần sum họp và thích hợp cho gia đình ít thế hệ chung sống.
Mặt tiền nhà phố 1 trệt 1 lầu 5x15
Nhìn vào mặt tiền của mẫu thiết kế này là xu hướng thiết hiện đại kết hợp phong cách tân cổ điển, điển hình là mái thái. Cột trụ tròn trên tầng 1 đi cùng mái vòm biểu trưng thiết kế châu Âu được áp dụng. Phần cửa chính sử dụng khung nhôm xingfa kết hợp kính cường lực để lấy được ánh sáng tự nhiên cho ngôi nhà dạng này. Sử dụng vật liệu này khá phổ biến với thiết kế không chỉ bởi tính phù hợp mà chi phí khá rẻ.

Màu sắc lựa chọn là tone sáng, màu trắng kết hợp thêm màu vàng đòng, xám đen để tại điểm nhấn. Phần mái cũng được chú trọng hơn về màu sắc để ngôi nhà được thiết kế đúng chuẩn vừa hiện đại vừa mang hơi hướng tân cổ điển.

Ở nhà dạng này sẽ có vườn treo giúp mang đến không gian xanh cho ngôi nhà. Những ngôi nhà thiết kế khu vực phố thường thiếu đi không gian xanh, khiến ngôi nhà trở nên ngột ngạt, bí bách nhưng với khoảng vườn nhỏ ở khu vực tầng hai của ngôi nhà chắc chắn sẽ là chỗ thư giãn thoải mái cho gia chủ và cũng là nơi giúp không gian sống trở nên tươi mát hơn.
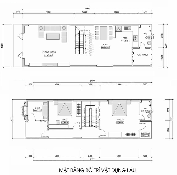
Mặt bằng chi tiết thiết kế nhà phố 1 trệt 1 lầu 5x15
Ở tầng 1 (tầng trệt) sẽ được bố trí 1 phòng khách, phòng bếp và sau cùng là nhà vệ sinh

Tiếp đến tầng hai, sẽ khoảng sân phía trước, có thể bố trí thêm cây xanh để tạo không gian thiên nhiên tại ngôi nhà, tiếp đến là phòng thờ hướng ra sân, tiếp đến khu vực cầu thang, 2 phòng ngủ kế tiếp và phòng vệ sinh chung.
Nội thất đi cùng thiết kế
Ngôi nhà với thiết kế này ưu tiên những nội thất hiện đại, nhỏ gọn nhưng đáp ứng đầy đủ những tính năng sử dụng. Màu sắc được sử dụng là không quá nổi bật, ví dụ như màu trắng, đen đi cùng với đó là việc sử dụng chất liệu gỗ trong không gian sống để tạo sự thân thiện, nét hoài cổ, tính thẩm mỹ trong ngôi nhà.
Bước vào ngôi nhà là phòng khách với bộ sofa với thiết kế đơn giản, phục vụ mục đích chủ yếu là tiếp khách của gia chủ. Kế ngay sau là cầu thang được ốp đá hoa cương màu sẫm tăng thêm tính sang trọng và khả năng chống chịu bền bỉ với thời gian. Tránh sự đơn điệu cho phần cầu thang được gia chủ chú trọng thêm việc ốp gỗ tạo sự hài hòa với không gian tổng.

Phân cách giữa bếp và phòng khách là những thanh lam bằng gỗ kết hợp cùng với những cây xanh nhỏ tạo nên không gian xanh trong chính ngôi nhà.

Phòng ngủ không trang bị nhiều nội thất cầu kỳ, chỉ bao gồm: giường ngủ, tủ quần áo, tủ đầu giường hay thêm 1 chiếc tivi phục vụ nhu cầu giải trí mỗi tối cũng giúp căn phòng ngăn nắp, tiện nghi và hiện đại.

Tất cả nội thất đi cùng gần như sử dụng vật liệu bằng gỗ để đồng nhất với thiết kế mang hơi hướng tân cổ điển được sử dụng ngay ở mặt tiền. Hơn nữa sử dụng gỗ giúp không gian ngôi nhà trở nên sang trọng, cổ điển.
Tuyển chọn những mẫu nhà phố 1 trệt 1 lầu 5x15 đẹp
1. Mẫu nhà phố 1 trệt 1 lầu 5x15 mái lệch
Điểm đáng chú ý của mẫu thiết kế này chính là phần mái của ngôi nhà với hai hình tam giác có kích thước khác nhau đặt cạnh vào nhau tạo nên sự mới lạ cho ngôi nhà.
Sự phá cách tại thiết kế ở tầng hai với những khối trụ dọc dài xếp cạnh nhau tại nên nhưng mảng không gian khác nhau kết hợp với phần lan can được làm từ kính và inox giúp cho ngôi nhà trở nên hiện đại hơn, không bó hẹp trong các thiết kể khuôn mẫu. Những mảng màu khác nhau cũng được đan xen trong thiết kế dạng này cũng đã góp phần làm cho ngôi nhà trở nên hiện đại hơn.

Phần không gian xanh cũng được chú trong nhiều hơn, không chỉ xuất hiện ở khoảng sân nhỏ góc nhà tầng hai nữa mà thay vào đó những tiểu cảnh cây xanh được bố trí từ tầng một lên khu vực tầng hai của ngôi nhà. Xen kẽ là hệ thống chiếu sáng được chú trọng lắp đặt bên ngoài ngôi nhà, tập trung chủ yếu vào khu vực chứa tiểu cảnh cũng là điểm nhấn giúp ngôi nhà trông nổi bật hơn và thêm phần lung linh vào buổi tối.
2. Mẫu nhà phố 1 trệt 1 lầu 5x15 đơn giản
Sự sáng tạo của con người là không có điểm dừng. Gần như vẫn giữ nguyên các thiết kế cơ bản của những ngôi nhà phố 1 trệt 1 lầu 5x15 nhưng cách lựa chọn gia chủ thiết kế nhà dưới đấy khiến nhiều người thấy lạ lẫm. Lựa chọn kiến trúc hiện đại, không pha lẫn phong cách tân cổ điển, tất cả cấu thành ngôi nhà đều không có họa tiết gì khó khăn hay tỉ mỉ. Nhưng điểm sáng kiến trúc này chính là khu vực sân thượng cao nhất.

Không sử dụng má thái hay mái lệch nhau như mẫu nhà thứ nhất, mẫu thiết kế thứ hai đảm bảo không gian xanh nhất định cho gia chủ. Nhìn lên vị trí cao nhất của căn nhà này chính là khu vực sân thượng được xây mở để tạo nên không gian xanh ngay tại chính ngôi nhà của mình. Tại các ngôi nhà mặt phố, để có một không gian tràn ngập cây xanh là điều cực kỳ hiếm thấy vậy tại sao ngay chính trong ngôi nhà của mình lại không tự tạo nên một không gian xanh như thế. Đó là lý do một không gian mở để trồng cây xanh ở mẫu thiết kế này ra đời.

Vị trí tầng 1 và tầng hai gần như gia chủ không sử dụng bất kỳ một tiểu cảnh nào để trang trí, phần diện tích được sử dụng tối đa cho diện tích ở. Màu sắc được lựa chọn cũng là gam màu tối giản, tone lạnh đáp ứng đúng chuẩn sự hiện đại từ chính màu sắc phối lên.
3. Mẫu nhà phố 1 trệt 1 lầu 5x15 hình học
Cuối cùng là thiết kế của hình học, từng khối hình học tưởng chừng như không thể hòa lẫn, kết hợp được với nhau thì nay trong mẫu nhà phố 1 trệt 1 lầu 5x15 điều đó hoàn toàn có thể xảy ra.

Nhìn vào khu vực tầng 1 và tầng 2 của thiết kế này là những khoảng không gian của hình học, từ hình vuông, hình chữ nhật từng khoảng không hiện ra với đầy đủ hình dáng, giúp ta tưởng tượng được rõ nét hình ảnh khối chân thực hơn bao giờ hết. Việc sử dụng khối hình học này mang lại cảm giác ngôi nhà của bạn rộng rãi hơn, không bó hẹp trong diện tích hạn chế của phố xá.

Thiết kế này không dừng lại ở đó, hãy nhìn lên phần mái của ngôi nhà, lại tiếp tục là thiết kế mái lệch hoặc là sự xếp chồng của khối hình với nhau. Điều này tiếp tục lại tấn công thị giác của những người nhìn bởi sự tò mò và thích thú với khối hình học.

Một điểm cần phải nhắc đến ở những ngôi nhà thiết kế dạng này đó là phần cửa sổ tầng một và tầng hai được phá cách với diện tích to hơn rất nhiều và sử dụng kính. Việc làm này giúp không gian căn nhà trở nên rộng rãi, đón được ánh sáng tối đa và khiến căn nhà trông sáng sủa hơn rất nhiều.
Tông màu chủ đạo ở đây là chủ yếu là trắng kết hợp với khu vực mái đen, thêm chút khung cửa sổ được sơn đen nữa thì chắc chắn ngôi nhà sẽ trở nên hoàn hảo hơn rất nhiều. Trên đây là những chia sẻ của chúng tôi về thiết kế mẫu nhà phố 1 trệt 1 lầu 5x15. Hy vọng những thông tin đó và hình ảnh gợi ý các mẫu thiết nhà phố đa dạng này sẽ giúp bạn dễ dàng định hình và lựa chọn được phong cách thiết kế phù hợp nhất cho ngôi nhà của mình.

















