Mẫu nhà phố 5x20m không còn quá xa lạ bởi đây là phần diện tích xuất hiện rất nhiều điển hình hẹp ngang dài sâu trong những mẫu nhà phố hiện nay. Vậy mẫu nhà này thường được các gia chủ lựa chọn xây dựng như thế nào và những thiết kế nào đang lọt top thiết kế nhà ở 5 x 20 hiện nay?
Mẫu nhà phố 5 x 20 nên xây dựng quy mô bao nhiêu?

Với một diện tích có phần hạn chế như thế này, gia chủ rất băn khoăn không biết nên lựa chọn xây dựng như thế nào trên phần diện tích, nên xây 2 tầng, 3 tầng hay 4 tầng,…?
Để có thể giải quyết được cây hỏi này, trước hết gia chủ phải xác định được nhu cầu sử dụng của gia đình: về diện tích sinh hoạt chúng cũng như diện tích sinh hoạt riêng của từng cá nhân. Ngoài ra, nhiều gia chủ xây dựng nhà phố ngoài mục đích dân sinh thì còn kết hơn thêm việc kinh doanh của gia đình hay cho thuê lại một phần căn nhà để thu lời.
Song song, gia chủ cũng cần xác định được ngân sách của gia đình mình cho việc xây dựng. Nguồn ngân sách quyết định rất lớn đến quy mô xây dựng của căn nhà bởi trên cùng một diện tích, nhưng quy mô khác nhau sẽ có chi phí xây dựng chênh lệch. Mỗi một tầng sẽ được tính 100% diện tích, như vậy xây dựng với quy mô càng lớn, chi phí xây dựng phần thô càng lớn, cụ thể xây dựng nhà 3 tầng chi phí xây dựng lớn hơn xây dựng nhà 2 tầng trên cùng diện tích 5 x 20. Tương tự xây dựng nhà 4 tầng, chi phí xây dựng lớn hơn xây dựng nhà 3 tầng, 2 tầng trên cùng diện tích 5 x 20. Về phần quy mô, tùy theo từng điều kiện cũng như nhu cầu sử dụng mà gia chủ lựa chọn xây dựng phù hợp.
Top thiết kế mẫu nhà phố 5x20m theo quy mô xây dựng

Để có thể mang đến cho gia chủ những câu trả lời xác đáng nhất bài viết mang đến những hình ảnh về từng mẫu nhà phố 5 x 20 theo từng quy mô phổ biến đang được áp dụng cũng như top mẫu thiết kế mặt tiền ấn tượng của những mẫu nhà này hiện nay phần phía dưới đây.
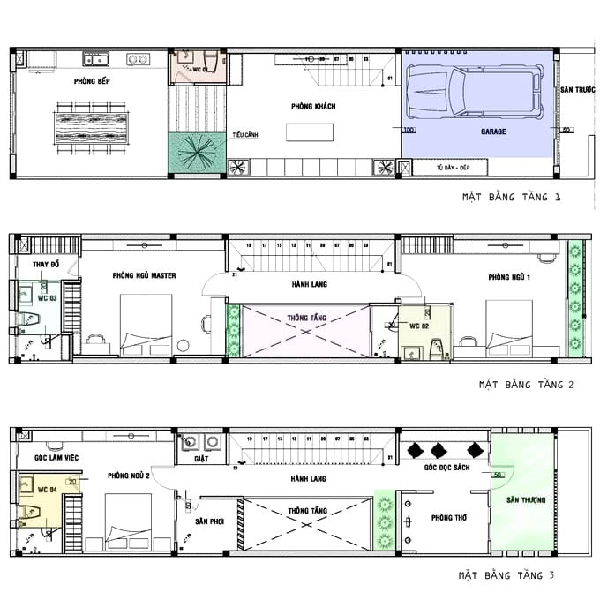
Mẫu nhà phố 5 x 20 quy mô xây dựng 2 tầng với chi phí từ 500 triệu đồng trở lên, phù hợp với thu nhập của đại đa số người Việt Nam hiện nay phục vụ nhu cầu gia đình từ 4 đến 6 người cùng sinh sống.

Trước tiên cùng xem lại bản thiết kế không gian trong mẫu nhà phố 5 x 20 quy mô xây dựng 2 tầng với bố trí như sau:
- Tầng 1 với: 1 phòng khách, 1 phòng ngủ, 1 bếp ăn, 1 nhà vệ sinh và 1 khu sinh hoạt chung (phần không gian sinh hoạt chung tùy theo nhu cầu của mỗi gia chủ, có thể có hoặc không, hoặc có thể đẩy phòng khách vào phía khu sinh hoạt chung, sử dụng phòng khách thành gara oto). Cầu thang ngăn cách hai không gian phòng khách và khu vực phía sau. Việc bố trí bếp ăn ở vị trí cuối cùng trong căn nhà giúp gia chủ có không gian phía trên riêng tư, và cũng ảnh hưởng bởi mùi thức ăn phía sau.
- Tầng 2 bố trí với: 1 sân thượng lớn ở phía trước nhà, 1 không gian thờ cúng, 2 phòng ngủ, 1 nhà vệ sinh chung, và 1 sân phơi với phía sau. Khu vực cầu thang bố trí phân cách 2 không gian ngủ với nhau.
Trên đây là cách bố trí không gian mẫu, tùy theo nhu cầu sử dụng mà gia chủ có thể điều chỉnh cho phù hợp. Với một không gian phía như vậy thì mặt tiền của ngôi nhà này như thế nào?

Phong cách hiện đại kết hợp mái bằng là mẫu thiết kế không thể không nhắc đến đầu tiên dành cho mẫu nhà phố 5 x 20 xây dựng 2 tầng. Không cầu kỳ về mặt thiết kế, sử dụng gam màu trung tính trắng, cùng với việc sơn giả gỗ kết hợp khối hộp giúp cho ngôi nhà trở nên hiện đại, thông minh. Ngôi nhà bố trí phần gara oto được bố trí bên hông nhà phục vụ nhu cầu gia chủ, giúp cho gia chủ không phải tìm chỗ đỗ xe cách xa nhà, gây bất tiện cho gia chủ.

Ban công ngôi nhà này sử dụng chất liệu bằng kính được bố trí phía sau nhà để tạo nên không gian xanh cho căn nhà. Ngôi nhà sử dụng hệ thống lam chống nắng được sơn gam màu trắng, tường bê tông được cách điệu với họa văn họa tiết đi cùng tạo nên điểm nhấn cho căn nhà.

Vẫn là thiết kế mái bằng nhưng được kiến trúc sư cách điệu phần mái chéo – phá vỡ thiết kế truyền thống và tạo nên không gian vô cùng thông thoáng cho ngôi nhà chính nhờ phần mái chéo này.
Đặc biệt là ngôi nhà có điểm nhấn phần cổng rào được làm sắt sơn đen tạo ra ấn tượng về sự mạnh mẽ, cá tính từ chính gia chủ. Ngôi nhà này hiện lên đầy đủ sự hiện đại, tiện nghi rất phù hợp với diện tích hẹp chiều ngang của những ngôi nhà mặt phố hiện nay.

Với mẫu thiết kế tiếp theo này của mẫu nhà phố 5 x 20 này sẽ mang đến gia chủ một không gian tràn ngập sắc xanh của thiên nhiên vào trong ngôi nhà bởi kiến trúc 2 tầng 1 tum – Top kiến trúc xanh cho những ngôi nhà tương lai.
Thay vì việc sử dụng mái bằng nhàm chán mà nhà phố nào cũng đang sử dụng thì gia chủ thay đổi bằng không gian tum với cây xanh được trông xung quanh vừa đem lại một không gian nghỉ ngơi, lại vừa đem lại một không gian xanh còn thiếu cho những ngôi nhà giữa lòng thành phố. Khu vực này còn được gia chủ tận dụng cho các mục đích khác như đặt không gian thờ tại vị trí cao nhất của ngôi nhà, kết hợp với khoảng sân phơi, hay một không gian bàn ăn dành cho việc tụ tập người thân, bạn bè vào dịp cuối tuần.

Diện tích nhỏ, ngân sách gia chủ hạn chế, nhưng nhu cầu sử dụng lớn, gia chủ không thể xây dựng quy mô lớn hơn thì giải pháp về một ngôi nhà phố 2 tầng 5 x 20 có gác lửng sẽ là giải pháp không thể bỏ qua. Với mẫu thiết kế này, phần gác lửng được bố trí khéo léo nên khi nhìn từ bên ngoài vào sẽ không thể thấy được phần không gian này, chỉ khi bước vào nhà mới thấy rõ được không gian này.
Gia chủ bố trí gara oto ngay trong ngôi nhà ở vị trí tầng một, gác lửng được bố trí tương tự như với bản thiết kế hoặc có thể bố trí gara oto cùng với không gian bếp ăn, phía trên là khu vực phòng khách và phòng ngủ.

Mẫu thiết kế cuối cùng cho mẫu nhà phố 5 x 20 quy mô 2 tầng kết hợp với mái Thái. Những ngôi nhà theo thiết kế này có thể lựa chọn phong cách hiện đại hoặc tân cổ điển để làm nên những nét cá tính riêng của gia chủ.
Phần mái Thái được sử dụng mang đến cho ngôi nhà một sự bề thế nhất định, nhìn từ phía mặt tiền không ai nghĩ rằng ngôi nhà chỉ sở hữu một diện tích khiêm tốn 5 x 20. Để đồng bộ thiết kế thì phần cổng nhà cũng có phần mái ngói sử dụng cho cổng chỉnh, cùng với họa tiết trang trí cho phần rào sử dụng vật liệu thép chế tạo. Nhìn tổng thể ngôi nhà này mang lại về cầu kỳ trong thiết kế sự cổ điển nhưng sang trọng đi cùng với sự hiện đại.
Mẫu nhà phố 5 x 20 quy mô xây dựng 3 tầng kiến trúc phổ biến đô thị kết hợp gara tiện nghi.

Với quy mô 3 tầng có thiết kế gần như không có sự thay đổi với quy mô 2 tầng chỉ khác về cách bố trí không gian từng khu vực được nâng lên rộng rãi hơn. Ở khu vực tầng 1 sẽ chỉ là không gian cho gara, phòng khách và bếp ăn và nhà vệ sinh. Lên khu vực tầng 2 là 2 phòng ngủ cùng với 2 nhà vệ sinh trong mỗi phòng tạo không gian riêng, trong đó có 1 phòng ngủ master. Lên khu vực tầng 3 sẽ gồm: 1 phòng thờ, 1 ngủ, 1 nhà vệ sinh, sân thượng cùng với sân phơi và giặt.

Mặt tiền nhà phố 5 x 20 quy mô 3 tầng theo phong cách hiện đại với khối hình liền từ trên xuống dưới. Sử dụng sơn giả gỗ ở mặt tiền giúp cho ngôi nhà này trở nên sang trong, mang đến cảm giác của sự ấm áp về một gia đình sinh sống. Khu vưc ban công giữa càng tầng sử dụng thép và kính đúng chuẩn một ngôi nhà được xây dựng theo kiến trúc hiện đại – sử dụng nguyên vậy liệu đa năng. Tại ban công được gia chủ tận dụng trở thành một không gian nghỉ ngơi, không gian đọc sách giữa cây xanh bố trí xung quanh.

Vẫn là quy mô 3 tầng nhưng ngôi nhà gây ấn tượng với người nhìn bởi chiều sâu của căn nhà nhờ việc sử dụng hệ thống tường rào. Không gian xanh không chỉ là những tiểu cây cảnh đặt ở mặt đất mà còn sử dụng cây dạng rủ để tạo nên điểm nhấn xanh trên nền gam màu trắng chủ đạo của căn nhà này.
Mẫu nhà phố 5 x 20 quy mô xây dựng 4 tầng, 5 tầng ấn tượng về quy mô lớn kết hợp với phong cách tân cổ điển.

Mẫu thiết nhà 4 tầng nhà phố 5 x 20 đầu tiên theo đúng thiết kế tân cổ kiến với phần mái Thái đồ sộ. Kiến trúc đối xứng giữa các tầng cùng hệ thống cổng với sự cầu kỳ trong họa tiết trang trí góp phần tôn nên vẻ cổ điển, sang trọng cho gia chủ.

Vẫn là diện tích 5 x 20 nhưng xây dựng 5 tầng thoe phong cách tân cổ điển nhưng lựa chọn mái bằng truyền thống. Sử dụng kiến trúc đối xứng giữa các tầng nhưng phanaf cột nhà chú trọng hơn cùng hệ thống lan can sử dụng họa tiết đi cùng. Cái hiện đại trong ngôi nhà này chính là việc sử dụng đan xen các nguyên vật liệu từ bê tông, sắt, khung nhôm kính cho căn nhà. Ngôi nhà có thiết kế này gây ấn tượng mạnh với người nhìn, gia chủ hoàn toàn có thể sử dụng kết hợp nhà ở với kinh doanh.


































