Với nhiều gia đình với số lượng thành viên đông, có thể dễ dàng hiểu được mong muốn của họ không gì khác chính là các chức năng sinh hoạt được linh hoạt với số lượng phòng ngủ lớn. Đó không phải là một điều khó khăn với các kiến trúc có diện tích lớn nhưng thực sự khó khăn với các công trình có diện tích hạn hẹp. Nếu như bạn đang có nhu cầu xây dựng với kiến trúc dựa theo các yêu cầu phía bên trên thì phương án nào sẽ được bạn ưu tiên lựa chọn ?

Có thể thấy mẫu nhà vườn đẹp 2 tầng là một phương án hiệu quả để giải quyết các nhu cầu đó một cách triệt để với kết cấu lên đến 2 mặt bằng. Từ những lợi thế đó, công trình có thể được triển khai theo lối khoa học và tận dụng được mọi góc nhà để có thể triển khai chúng một cách hiệu quả. Mà trong bài viết ngày hôm nay, chúng ta sẽ tìm hiểu về thiết kế từ mẫu nhà vườn 2 tầng 5 phòng ngủ để những ai có nhu cầu có thể tham khảo chúng cho ngôi nhà trong tương lai.
Hồ sơ thiết kế nhà vườn 2 tầng 5 phòng ngủ cho các gia đình có số lượng thành viên lớn :
Việc có cho mình từ một bộ hồ sơ xây dựng có thể xem như một phần quan trọng để tạo nên sự thành công của ngôi nhà. Bởi gia chủ có thể xem xét thông qua các bản vẽ kết cấu, phối cảnh mặt tiền hay công năng mà chúng mang đến để kịp thời sửa chữa, thay đổi cho công trình một cách hoàn thiện nhất. Mà theo các chuyên giá đánh giá thì chúng là một phần không thể thiếu cho các công trình với giá trị cao, nên mọi người cũng không nên bỏ qua bước “Định hình quan trọng này !

Thiết kế nhà vườn 2 tầng với chức năng từ 5 phòng ngủ
Thông tin sơ bộ về mẫu nhà vườn 2 tầng
- Dự án thiết kế : mẫu nhà vườn 2 tầng
- Chủ đầu tư : Lê Đình Phú sinh năm 1985
- Phong cách xây dựng : “Công trình nhà vườn mà gia đình tôi mong muốn cần có cho mình kết cấu từ 2 tầng, chức năng hoàn thiện và đầy đủ nhưng lưu ý từ số lượng phòng ngủ phải đạt con số 5 để các thành viên có cho mình một không gian riêng thoải mái nhất. Mong rằng kiến trúc sư sẽ mang đến một công trình hoàn thiện và bám sát theo những yêu cầu từ gia đình..” Theo yêu cầu từ chủ đầu tư.
- Địa chỉ : Quận 2 – thành phố Hồ Chí Minh
- Thời gian thi công : 3 tháng
Phối cảnh xung quanh của nhà vườn chức năng từ 5 phòng ngủ :
Từ những định hướng mà kiến trúc sư muốn ấn định cho ngôi nhà, mà dựa theo hồ sơ các gia đình có thể bàn bạc trước khi công trình được khởi công từ bố cục trang trí, phong cách tạo hình và quan trọng hơn hết là chức năng bên trong từ 5 phòng ngủ để ngôi nhà có thể trở nên hiệu quả với gia đình bạn. Để làm tốt được điều đó, chúng ta cần phải có cho mình từ một đội ngũ thiết kế xây dựng chuyên nghiệp từ khả năng làm việc thực tế của mình.

Nhà vườn thường có cho mình với khoảng sân vườn bao quanh kiến trúc, mà với góc nhìn này thì mọi người có thể cảm nhận được sự tiện nghi mà chúng mang đến cho gia đình. Đó là một lô đất rộng rãi, được thể hiện từ màu xanh tươi từ khoảng sân rộng mà hình thức trang trí cũng như việc tích hợp thêm các công năng sử dụng bên ngoài cũng trở nên sang trọng hơn rất nhiều từ các khoảng ô trống được trồng thêm các bụi hoa khi kết hợp với đèn chiếu sáng như tôn lên một vai trò quan trọng trong việc thiết kế.
Khi đó còn là khoảng sân sau vô cùng thông thoáng được kết hợp với các tiện ích như bàn ghế ngồi thư giãn, bàn ăn phía ngoài sân vườn, các khoảng sân nhỏ được tạo nên để tiện cho việc di chuyển. Mà các hoạt động phía bên ngoài cũng làm nên một phần quan trọng để gắn kết các thành viên trong gia đình một cách hiệu quả hơn từ sau cuối ngày.

Nhà vườn 2 tầng với chức năng từ 5 phòng ngủ có cho mình với một gam màu trắng sáng tinh tế khi được kết hợp với rất nhiều cửa kính như tạo nên một khả năng lấy sáng vô cùng hiệu quả mà khi mở những cảnh của đó ra, bạn sẽ cảm nhận được nguồn năng lượng tươi mới dồi dào phía bên ngoài được tràn vào không gian bên trong. Mà số lượng từ cửa ra vào hay cửa sổ cũng được nhân lên khá nhiều để tiện cho việc điều tiết nhiệt độ bên trong một cách hiệu quả nhất.
Nhà có cho mình với kết cấu từ phần mái thái khi kết hợp với kết cấu tạo nên một sự độc đáo cho công trình thêm với sức hút mà chúng mang đến. Mà vật liệu ngói từ bên trên cũng được ứng biến một cách hiệu quả cho khả năng cách nhiệt, chống nóng, cách âm hiệu quả nhất. Như một phần quan trọng để tránh đi các tác nhân từ thời tiết để đảm bảo cho sự bền bỉ mà công trình nhận được để chúng có thể tồn tại theo thời gian.

Từ mặt tiền của ngôi nhà, có thể thấy nét trang trí mang tính tối giản được để cao nhưng không vì thế chúng mất đi cho mình một sức hút riêng. Mà với các gia đình có độ tuổi cao thường khá quan tâm tới bởi họ không cần đến quá nhiều các chi tiết rườm rà chiếm nhiều chi phí mà cái họ quan tâm hơn hết chính là sự tiện nghi bên trong. Khi mặt tiền của kết cấu nhà vườn 2 tầng hoàn toàn làm nên được những giá trị mà chúng tôi vừa nhắc đến.
Nhà vườn 2 tầng còn có cho mình với gara để xe ô tô nằm cạnh bên hông công trình như nâng cao khả năng mà chúng mang đến cho người sử dụng. Mà từ vị trí đó có thể đi vào bên trong ngôi nhà thông qua một đường dẫn cụ thể. Giúp tính tiện nghi được thể hiện một cách rõ ràng hơn, vốn là những giá trị mà cuộc sống hiện đại ngày nay luôn mang đến cho các gia đình hay các chủ đầu tư để việc sinh sống trở nên đơn giản hơn bao giờ hết.
Theo những đánh giá từ quan điểm cá nhân, thì mặt tiền của ngôi nhà có kết cấu 2 tầng với hệ thống sân vườn này đã diễn đạt được tầm quan trọng mà chúng mang đến cho người sử dụng và cụ thể là chủ đầu tư Lê Đình Phú. Khi ngôi nhà được thiết kế rất tối giản, chủ yếu sử dụng các khoảng tường màu trắng theo khối hình học. Đây là điểm nhấn giúp ngôi nhà trở nên hiện đại và khỏe khoắn hơn rất nhiều mà với những ai yêu thích nét tối giản trong phong cách trang trí hoàn toàn là một sự lựa chọn phù hợp dành cho bạn.
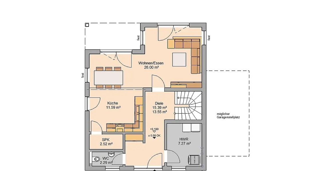
Bản vẽ kết cấu từng tầng của nhà vườn chức năng từ 5 phòng ngủ :

Kết cấu từ tầng 1 : Thông qua bản vẽ, mọi người có thể đọc được các chức năng từ các chi tiết gợi ý mà kiến trúc sư mang đến từ chức năng chính của chúng. Từ phía cửa ra vào là 1 nhà vệ sinh nằm đối diện là chức năng từ phòng ngủ số 1, kết cấu từ cầu thang để dẫn lên mặt bằng tiếp theo, 1 phòng khách, 1 nhà bếp và không thể thiếu sân sau nơi được đặt thêm một bàn ăn mà từ phối cảnh phía sau được kết hợp thêm 1 bàn ăn mà chúng ta đã nhắc đến.

Kết cấu từ tầng 2 : Thông qua bài viết chúng ta cũng nhận diện được kết cấu tiếp theo này sẽ hướng đến là gì. Không nằm ngoài dự đoán của chúng tôi khi ngôi nhà được triển khai với 4 gian phòng ngủ nằm theo 4 góc nhà để nâng chức năng này lên con số 5. Nhằm giải quyết cho những nhu cầu mà chủ đầu tư đã yêu cầu cho một không gian hoàn thiện từ phần kết cấu.
Với rất nhiều gia đình thì việc kết hợp từ số lượng với các gian phòng này thực sự không còn quá mới lạ nhưng với nhiều gia đình thì vẫn còn rất nhiều điều bỡ ngỡ. Nhưng theo nhìn nhận chung việc cân đối các vị trí sẽ được tạo nên từ chính những mong muốn đó để ngôi nhà trở nên hoàn thiện hơn để áp dụng vào cuộc sống thực tế mà gia đình bạn vẫn luôn mong muốn.
Gợi ý không gian nội thất từ nhà vườn chức năng từ 5 phòng ngủ :


Mặt tiền quan trọng cho nét tổng quan của ngôi nhà nhưng không gian nội thất lại mang đến với sức ảnh hưởng không hề nhỏ bởi đây là nơi mà gia đình bạn sinh hoạt, làm việc nên cần có cho mình với một công năng phù hợp. Nếu như phần diện tích là một lợi thế của ngôi nhà thì xin chúc mừng bạn chúng sẽ là ưu điểm cho việc sáng tạo nên nội thất bên trong có phần thoải mái hơn. Nhưng nếu diện tích xây dựng của bạn không quá lớn thì việc tìm một dáng vẻ phù hợp cho chúng thực sự sẽ là một phần hết sức nan giải.



Đó là những gợi ý thông qua các vị trí từ ngôi nhà 2 tầng kết hợp từ 5 phòng ngủ mà trong bài viết hôm nay chúng tôi mang đến cho mọi người cùng tham khảo. Mong rằng chúng sẽ là nguồn tư liệu hiệu quả cho những ý tưởng xây dựng của gia đình bạn trong tương lai và đừng quên đón xem các bài viết tiếp theo của chúng tôi !
Xem thêm :





























