Mẫu nhà cấp 4 đã trở nên rất quen thuộc với đời sống của người Việt Nam. Tuy nhiên, trước sự chuyển mình của ngành xây dựng và kiến trúc, mẫu nhà cấp 4 hiện nay đã cho ra đời rất nhiều mẫu mã, kiểu dáng đáp ứng nhu cầu thẩm mỹ ngày càng cao của gia chủ. Bài viết hôm nay Xây Dựng Số muốn giới thiệu đến chủ đầu tư mẫu nhà cấp 4 rộng 200 m2 hiện đại nhất hiện nay.
Mẫu nhà cấp 4 mái thái rộng 200m2
Các mẫu nhà cấp 4 mái thái hiện nay đã có mặt trên khắp các tỉnh thành trên cả nước. Mẫu nhà này được thiết kế theo kiểu nhà vườn ấn tượng. Mang đến một phong cách sống thực sự tiện nghi, hiện đại hay đơn giản là một không gian sống hòa mình và gần gũi với thiên nhiên. Ngôi nhà cấp 4 200m2 là nơi tuyệt vời để chúng ta sinh hoạt thoải mái với đầy đủ các phòng chức năng.

Trước nhà là khu vườn rộng. Bạn và các thành viên trong gia đình sau những giờ làm việc căng thẳng bên ngoài được trở về nhà để tự tay chăm chút cho ngôi nhà của mình những cây xanh, thảm cỏ, chậu hoa… quả là một thú vui thư giãn của nhiều người. Chính vì vậy, ngôi nhà này ghi dấu ấn bởi ngoại thất ấn tượng không gian xung quanh mang vẻ đẹp hiện thực của ngôi nhà. Hệ thống mái ngói xám sang trọng càng nổi bật trên nền trắng của ngôi nhà. Chắc chắn khi sở hữu ngôi nhà này bạn sẽ nhận được sự trầm trồ, khen ngợi của mọi người khi đến ngôi nhà này.

Quan sát bản vẽ mẫu này chúng ta có thể thấy mẫu nhà cấp 4 200m2 này được thiết kế chủ yếu với các phòng chức năng như sau: 1 phòng khách, 1 bếp kết hợp phòng ăn, 3 phòng ngủ và 2 phòng vệ sinh chung. Với 200m2 mái thái này được thiết kế với ý tưởng các phòng sinh hoạt chung như phòng khách và bếp, phòng ăn được thiết kế theo ý nghĩa không gian mở, nhằm mang đến một không gian sinh hoạt chung thực sự. Thoải mái, cho cả gia đình quây quần sinh hoạt, bàn bạc, nấu nướng ...Dù không gian khá rộng nhưng các phòng chức năng này vẫn được phân chia và bố trí hợp lý, gọn gàng cho không gian sinh hoạt chung rộng rãi. Bên cạnh các phòng sinh hoạt chung, mẫu nhà đẹp này được thiết kế với 3 phòng ngủ rộng rãi. Mỗi phòng ngủ đều được thiết kế thêm cửa sổ để đón ánh sáng tự nhiên và ngắm cảnh thiên nhiên bên ngoài khi nghỉ ngơi, giải trí.
Mẫu nhà cấp 4 rộng 200m2 hiện đại
Không khác gì một căn biệt thự sang trọng và đắt tiền. Thiết kế trên mang đến không gian sống lý tưởng cho gia đình dù đông người vẫn có không gian sống thoải mái. Mẫu nhà cấp 4 phong cách hiện đại, sang trọng được thiết kế và xây dựng với kiến trúc độc đáo mang đến không gian sống thoáng mát và tiện nghi cao cấp. Tiết kiệm chi phí hơn so với kiểu nhà cao tầng kiểu biệt thự cổ điển nhưng vẫn mang lại sự quy mô và đẳng cấp cho gia đình bạn, thuận tiện hơn trong quá trình di chuyển so với nhà cao tầng.

Ngôi nhà được thiết kế với mặt tiền rộng rãi, thoáng mát, có sân rộng rãi. Gam màu trắng sáng làm chủ đạo của ngôi nhà kết hợp với những gam màu trung tính tươi trẻ, hiện đại vừa là điểm nhấn cho ngôi nhà bằng những đường nét rất tinh tế, độc đáo cho tổng thể ngôi nhà. Mái ngói hiện đại hình chữ A được xếp chồng lên nhau theo độ dốc hợp lý, đây là nét độc đáo và mới lạ của mẫu nhà cấp 4 hiện đại so với những mẫu nhà cấp 4 trước đây. Toàn bộ hệ thống cửa từ cửa chính đến cửa sổ đều sử dụng gỗ tự nhiên nguyên khối kết hợp kính cường lực trong, góp phần tạo nên tổng thể ngôi nhà cấp 4 200m2 sang trọng khẳng định đẳng cấp của gia chủ. Bậc thềm, sân thượng cao ráo, thoáng mát được ốp đá hoa văn siêu sang, đồng thời xung quanh nhà được tận dụng những khoảng nhỏ trước nhà để trồng thêm cây xanh, trồng thêm hoa cho đẹp mắt. nơi trở về của mọi thành viên trong gia đình.

Trong khi mẫu nhà cấp 4 phong cách hiện đại có vẻ ngoài bắt mắt thì bên trong là sự hài hòa trong thiết kế các phòng chức năng với phòng khách, phòng thờ, phòng bếp + ăn, 4 phòng ngủ rộng rãi thông nhau. Mặt bằng bố trí công năng của mẫu nhà cấp 4 diện tích 200m2 thiết kế 4 phòng ngủ rộng rãi, hiện đại có vệ sinh độc lập thuận tiện cho việc sinh hoạt. Các sảnh tiếp khách trong nhà được bố trí nội thất khoa học, tận dụng tối đa diện tích hợp lý giúp quá trình di chuyển, nghỉ ngơi tuyệt vời hơn. Mẫu nhà cấp 4 phong cách hiện đại này được thiết kế với nhiều cửa sổ ở tất cả các phòng chức năng cũng như hệ thống cây xanh được bố trí ở các góc chết của ngôi nhà giúp tăng cường không khí thoáng đãng. Không khí trong lành cho cuộc sống của gia đình bạn.
Mẫu nhà cấp 4 rộng 200m2 phong cách cổ điển
Những mẫu thiết kế nhà cấp 4 phong cách cổ điển phóng khoáng ngày càng chiếm được cảm tình của người Việt. Do một vẻ đẹp tinh tế mà có một màu sắc rất độc đáo. Thiết kế này dành cho những gia chủ yêu thích một cuộc sống ngoạn mục với khung cảnh thiên nhiên. Phía trước ngôi nhà rộng 200m2 trải dài một màu xanh mướt của cỏ cây hoa lá giúp tô điểm thêm vẻ đẹp cho ngôi nhà cấp 4 phong cách cổ điển này.

Ngôi nhà với gam màu trắng chủ đạo xuất hiện làm nền nổi bật những điểm nhấn của ngôi nhà. Ngôi nhà này được thiết kế với hai lối vào nhà độc đáo và lối vào chính từ phòng ngủ. Khoảng sân trước có những khoảng trống để bạn có thể rảnh rỗi chăm sóc hoa hay nhâm nhi tách trà với những câu chuyện vui trong cuộc sống. Hệ thống cột trụ vững chãi trước nhà và hệ thống mái ngói màu xám sang trọng tạo thêm phần vững chãi cho ngôi nhà nhờ những tác động của thiên nhiên. Phần chân tường xung quanh mẫu nhà cấp 4 200m2 này được thiết kế bằng chất liệu gạch hoa cao cấp màu xám sạch sẽ và nổi bật trên nền trắng của toàn bộ ngôi nhà. Hệ thống cửa sử dụng chất liệu nhôm kính sơn tĩnh điện để ánh sáng tự nhiên có thể tràn vào nhà ở mọi không gian.

Về tổng thể, ngôi nhà này được thiết kế với phòng khách rộng rãi, phòng bếp liên thông với phòng ăn không có tường bao, 4 phòng ngủ và 2 phòng vệ sinh chung. Từ cửa chính ta sẽ đến ngay một phòng khách với diện tích đắc địa, không gian lý tưởng để gia đình bạn sum họp hay đón tiếp những vị khách quý về quê. Bên trong là phòng thờ vừa mang yếu tố phong thủy vừa thuận tiện cho việc thờ cúng. Phòng bếp và phòng ăn được bố trí riêng biệt để tiện cho việc nấu nướng hoặc không ảnh hưởng đến phòng khách và phòng thờ. Khu vực riêng tư là phòng ngủ được thiết kế để tận dụng tối đa không gian.
Nhà cấp 4 rộng 200m2 có gác lửng
Điểm nổi bật đầu tiên khi chúng ta chiêm ngưỡng mẫu thiết kế nhà 200m2 có gác lửng này có lẽ là chúng ta bị ấn tượng bởi phong cách thiết kế gần gũi với thiên nhiên mang tính thẩm mỹ cao. Với 2 cửa thực dụng, xung quanh 2 bên là bồn hoa, cây cỏ xanh tươi, mang đậm dấu ấn thiết kế cách tân, sang trọng, quý phái.

Ngôi nhà có sự kết hợp hài hòa giữa sự phối màu hài hòa, nhịp nhàng của màu mái ngói với màu sơn và các hoa văn trang trí. Tất cả góp phần tạo nên vẻ đẹp tổng thể hài hòa và cân đối cho ngôi nhà. Mẫu nhà cấp 4 có gác lửng này được thiết kế gồm 1 phòng khách, 1, 3 phòng ngủ và gác lửng tạo không gian thờ cúng yên tĩnh,
Mẫu nhà cấp 4 rộng 200m2 nông thôn đơn giản

Xây nhà cấp 4 10 × 10 có tốn kém và không nhận được nhiều sự quan tâm của các gia chủ. Với mẫu nhà dưới đây, chi phí xây dựng rẻ khoảng 600 triệu đúng kiểu nhà dành cho gia đình trẻ. Thiết kế nội thất căn hộ khoảng 3 phòng ngủ sang trọng theo phong cách hiện đại. Có một mô hình cột nhỏ từ tân cổ tạo kiến trúc sắc nét và tỉ mỉ. Màu sơn ấn tượng, hài hòa tạo nên sự kết hợp gọn gàng, tiện nghi.
Mẫu nhà cấp 4 rộng 200m2 có sân vườn xanh mát

Mẫu nhà cấp 4 đẹp 10 × 10 rộng 200m2 này mang phong cách nhà vườn độc đáo. Hít thở sự thoải mái, nhẹ nhàng và yên bình, ngay cả trong một khu phố bị lãng quên hoặc một thành phố lớn. Bên ngoài sân được trồng nhiều cây xanh mang lại không khí trong lành, mát mẻ vào bên trong ngôi nhà để gia chủ luôn cảm thấy mát mẻ khi về nhà, ngoài ra còn cảm nhận được thiên nhiên gần gũi với con người làm cho cuộc sống thêm sống động và quý giá.
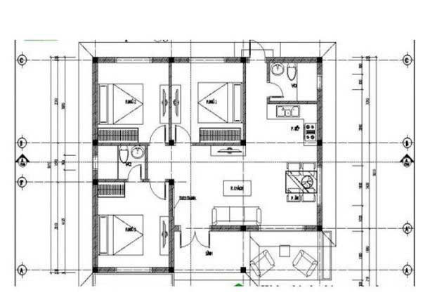
Mẫu nhà cấp 4 rộng 200m2 có 3 phòng ngủ tiện ích

Ngôi nhà được thiết kế hiện đại với cách bố trí mái thái màu đen kết hợp với sơn tường màu trắng sang trọng. Bản vẽ thiết kế nhà cấp 4 mái thái hiện đại thể hiện giải pháp thiết kế hiện đại, rộng rãi và thoáng mát. Đối diện phòng khách là phòng thờ và 3 phòng ngủ. Phòng bếp và phòng ăn được thiết kế lùi vào trong để tạo không gian thoải mái cho sinh hoạt và cuối cùng là khu vệ sinh.
Trên đây là những mẫu nhà cấp 4 rộng 200m2 mà Xây Dựng Số gửi đến bạn. Hy vọng bạn sẽ tìm được nhiều ý tưởng mới cho căn nhà trong mơ của mình nhé!














