Quận Tân Bình có vị trí tiếp giáp với cảng hàng không quốc tế sân bay Tân Sơn Nhất nên được rất nhiều du khách thập phương lựa chọn là địa điểm lưu trú của rất nhiều du khách khi đến với thành phố Hồ Chí Minh. Xây khách sạn tại quận Tân Bình như thế nào? Chi phi hết bao nhiêu?
Xây khách sạn tại quận Tân Bình nên xây dựng như thế nào?
Một trong những yếu tố để thu hút được vị khách đến lưu trú tại khách sạn tại quận Tân Bình thì trước tiên cần có một mặt tiền thu hút. Phối cảnh mặt tiền như thế nào để thu hút sự chú ý của khách hàng trong xây khách sạn tại quận Tân Bình.

Một phối cảnh mặt tiền trong xây khách sạn tại quận Tân Bình đầu tiên mà bài viết muốn giới thiệu đến với gia chủ tương lai áp dụng phong cách thiết kế hiện đại. Tại đây có thể nhìn thấy công trình này được làm nên bởi chính sự sáng tạo cùng cá nhân của gia chủ sở hữu, không một quy chuẩn nào được áp đặt lên trong công trình này. Không gian mặt tiền được chia thành 3 không gian khác nhau bao gồm: Sảnh chính lối dẫn vào khách sạn tại quận Tân Bình, hai bên là hai hệ thống cửa kính cỡ lớn để từ bên ngoài có thể nhìn thấy toàn bộ không gian lung linh, ấm áp bên trong được tạo nên từ ánh đèn vàng. Lên trên các tầng được bố trí với 3 phòng ở vị trí mặt tiền với khung cửa được làm nổi lên so với tường bên trong.
Tại mỗi khung cửa sử dụng kính cường lực chắc chắn để có thể lấy được ánh sáng vào trong không gian vào ban ngày, khi khách lựa chọn nghỉ tại đây hoàn toàn có thể ngắm nhìn toàn cảnh thành phố từ chính ô cửa sổ cỡ lớn này. Tại mỗi phòng cũng sẽ có ban công nhỏ, diện tích đủ cho 1 người đứng nhưng giúp vị khách hít thở đường hương vị Sài Gòn hoa lệ, tại đây hệ thống đèn led hắt lên trên tạo được sự lung linh cho toàn bộ không gian.

Một nét kiến trúc hiện đại, tiện nghi được xây dựng trên mặt tiền rộng thoáng tại quận Tân Bình sẽ là lựa chọn đứng đầu danh sách thiết kế khách sạn hiện nay. Khối hình hộp là đặc điểm nổi bật của những mẫu nhà như thế này đã áp dụng và tạo nên một tổng thể vững chắc, có kích thước lớn, gây ấn tượng mạnh cho mỗi người khi đi ngang qua mặt tiền của tòa nhà.
Xây khách sạn tại quận Tân Bình cũng không sử dụng họa tiết cầu kỳ, phức tạp nào, tối giản chính là phong cách mà kiến trúc sư sử dụng trong thiết kế này. Màu trắng, da cam và xám là 3 tone màu được nhắc đến ở vị trí mặt tiền khách sạn đủ để khách sạn ấy nổi bần bật giữa phố thị đông đúc tại Sài Gòn. Tầng 1 sử dụng kinh doanh quán café, tạo tiện ích nghỉ cho chính khách nghỉ dưỡng.

Nếu như gia chủ sở hữu một mặt tiền hạn chế hơn thì đừng bỏ qua phối cảnh mặt tiền như thế này nhé. Với một mặt tiền nhỏ 5m đến 7m thì đòi hỏi kiến trúc sư thiết kế vừa tối đa được diện tích sử dụng nhưng đáp ứng được đầy đủ công năng cần thiết cho gia chủ. Nhìn vào mặt tiền tầng 1, kiến trúc sư sử dụng toàn bộ hệ thống kính giúp đánh lừa thị giác hiệu quả khi mang đến một không gian rộng thoáng, lại có thể mang đến một ánh sáng đẹp vào ban ngày, giúp không gian khách sạn thu hút tầm nhìn hơn.
Lên trên tầng được bố trí 2 phòng song song với nhau, so le và sử dụng ô cửa kính cỡ lớn với mục đích để lấy được trọn ánh sáng vào ban ngày cũng như dòng chảy nhịp sống sôi động vào ban đêm của Sài Gòn, để mỗi vị khách khi đến với Sài Gòn đều cảm nhận được rõ nét nhất không khí và hòa mình vào không gian sống tại đây.

Một phối cảnh mặt tiền mang hơi hướng cổ điển kết hợp với hiện đại dành cho việc xây dựng khách sạn tại quận Tân Bình có một mặt tiền hạn chế áp dụng phong cách tân cổ điển. Nhìn tổng thể dù cho mặt tiền này cảm thấy sự cao ráo, thông thoáng so với những phối cảnh bên cạnh. Lý do chính bởi kiến trúc sư sử dụng hệ thống bậc tam cấp dễn lên sảnh chính, bên dưới bố trí tầng hầm để xe cho khách nghỉ vô cùng tiện lợi. Hệ thống bậc tam cấp được lát đá granit vàng mang đến sự sang trọng cho toàn bộ không gian khách sạn tại quận Tân Bình.
Không gian phía trên được thiết kế tối giản với hệ thống cột trụ được đặt chìm, thêm vài đường chỉ phào nhẹ nhàng đủ đê tạo được điểm nhấn. Tại mỗi ô cửa sổ có hệ khung làm nổi cùng với họa tiết đơn giản nhưng đủ để mang đến đến sắc thái cổ điển trong không gian.
Vị trí tầng thượng của căn nhà này được bố trí với không gian rộng đủ để gia chủ có thể thiết kế một không gian café trên cao để khách hàng của mình nhâm nhi ly café ngắm hoàng hôn, bình minh tại Sài Gòn.

Hoặc với một mặt tiền có chiều dài khá lớn như thế này thì gia chủ cũng nên cân nhắc phong cách thiết kế như vậy trong công trình xây khách sạn tại quận Tân Bình. Với một mặt tiền khá lớn thì chọn lựa sao cho thật khéo léo, không quá lố nhưng phải đủ để làm nổi bật thì phong cách kiến trúc tân cổ điển được xem là sự lựa chọn phù hợp.
Với thiết kế có sảnh phụ với hai cột trụ vững chắc, có hệ thống bậc tam cấp, ốp đá cùng với hệ thống chiếu sáng lung linh, giúp mỗi vị khách khi bước vào đây đều cảm nhận như đang được đón tiếp một cách trang trọng, lịch sự, tạo sự hứng khởi ban đầu đầy tươi vui.
Khu vực phía trên các tầng của xây khách sạn tại quận Tân Bình sở hữu những nét thiết kế đơn giản, nổi bật lên hình khối nhưng dưới tác động của ánh sáng không gian ấy trở nên lung linh với sắc màu đầy sang trọng. Một điểm cộng cho công trình này chính là ánh sáng vàng từ đèn led để mang đến không gian ánh sáng rực rỡ, lung linh muôn màu, và không thể thiếu sự sang trọng.
Lựa chọn nội thất như thế nào vừa gây ấn tượng cho khách nhưng hài lòng gia chủ
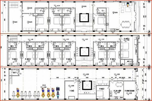
Một xây khách sạn tại quận Tân Bình thì không chỉ dừng lại là mặt tiền hấp dẫn mà ở đó còn là bố trí mặt bằng thiết kế thông minh, hợp lý, sau đây xin giới thiệu cách sắp xếp không gian phòng tham khảo cho các gia chủ như sau:

Với không gian tầng 1 được bố trí diện tích để phương tiện cá nhân, phòng kinh doanh nơi đón tiếp vị khách đến với khách sạn, phòng ăn + bếp, phòng ngủ và phòng thờ, cầu thang bộ và cầu thang máy.
Lên đến các tầng phía trên được bố trí giống nhau với 8 phòng ngủ trong đó: 7 phòng ngủ có diện tích giống như nhau và 1 căn phòng ngủ trong góc có diện tích lớn hơn, bố trí được 2 giường đôi trong không gian, cùng với một ban công rộng thoáng và từ đây có thể ngắm toàn cảnh thành phố.
Cuối cùng là không gian tầng thượng của khách sạn tùy theo từng gia chủ mà có thể xây dựng tum, hay bố trí 1 đến 2 phòng ngủ cùng không gian phòng ăn.

Cụ thể trong 1 không gian phòng khách sạn tại quận Tân Bình gợi ý cho gia chủ tham khảo như sau:
Trong không gian này kiến trúc sư sử dụng lối kiến trúc tân cổ điển với chiếc đêm có phần đầu bọc da, đồ nội thất với sơn gỗ nâu trầm, nội thất bọc da cổ điển. Phần tường của khách sạn sơn xanh than ấn tượng hay vẽ trang trí bắt mắt. Không gian này khá mở với cửa sổ kính lớn để lấy ánh sáng vào bên trong.

Với không gian hạn chế tại Sài Gòn như hiện nay thì phương án bố trí phòng đơn giản, đầy đủ tiện nghi như thế này được đánh giá cao. Mọi nội thất của không gian phòng được đặt ẩn vào trong tường để tiết kiệm diện tích nhất có thể, dễ dàng di chuyển. Màu sắc nội thất theo hướng tối giản hiện đại nhưng tiện nghi.
Chi phí xây khách sạn tại quận Tân Bình

Đơn giá xây dựng khách sạn 2 sao - 3 sao phần thô:
- Đơn giá xây dựng thô áp dụng đối với gói đầu tư trung bình khá: 3.600.000 đồng – 3.800.000đồng.
- Đơn giá xây dựng thô áp dụng đối với gói đầu tư khá: 3.900.000 đồng – 4.150.000 đồng.
- Đơn giá xây dựng thô áp dụng đối với gói đầu tư cao cấp: 4.350.000 đồng đến 4.550.000 đồng.

Đơn giá xây dựng phần hoàn thiện
- Đơn giá xây dựng khách sạn 2 - 3 sao hoàn thiện áp dụng đối với gói đầu tư trung bình khá: 6.200.000 – 7.500.000đồng.
- Đơn giá xây dựng hoàn thiện khách sạn áp dụng đối với gói đầu tư khá:7.500.000 - 8.500.000 đồng.
- Đơn giá xây dựng khách sạn 2 sao đến 3 sao hoàn thiện áp dụng đối với gói đầu tư cao cấp: 9.100.000 – 12.000.000 đồng.
Xem thêm chi tiết giá tại website: xaydungso.vn. Tại đây khách hàng có bất cứ thắc mắc gì về lĩnh vực xây dựng đều được giải đáp một cách nhanh chóng bởi đội ngũ chuyên nghiệp, những chuyên gia hàng đầu về lĩnh vực xây dựng tại Việt Nam hiện nay. Xây dựng số - Sàn giao dịch thương mại điện tử xây dựng số 1 Việt Nam.


































