Khi lập kế hoạch xây dựng ngôi nhà 1 trệt 2 lầu cho năm 2024 sắp tới điều làm gia chủ quan tâm nhiều nhất chính là báo giá chi phí xây dựng nhà 1 trệt 2 lầu trọn gói 2024 một cách chi tiết nhất để gia chủ nắm được. Tuy nhiên trong quá trình xây dựng chắc chắn sẽ xảy ra phát sinh ngoài dự toán. Để có thể giúp gia chủ có thể chủ động nguồn tiền cũng như cân đối tài chính. Bài viết cung cấp cho gia chủ tương lai báo giá trọn gói nhà 1 trệt 2 lầu một cách đơn giản nhất ở bên dưới đây.
Bố trí không gian cho xây dựng nhà 1 trệt 2 lầu mới nhất 2024
Mẫu nhà 1 trệt 2 lầu là mẫu nhà phổ biến tại khu vực thành phố hiện nay. Vì phù hợp với phần diện tích khá khiêm tốn mà các gia chủ tại thành phố đang sở hữu và với quy mô xây dựng như thế này đáp ứng được nhu cầu sinh hoạt cần thiết cho các thành viên trong gia đình sử dụng. Với kiến trúc này gia chủ hoàn toàn có thể sử dụng với nhiều mục đích như nhà ở, nhà ở kết hợp kinh doanh, có thuê hoặc để nguyên để cho thuê.

Với quy mô xây dựng nhà 1 trệt 2 lầu sẽ có hai phương án thiết kế và thi công để gia chủ có thể lựa chọn như sau:
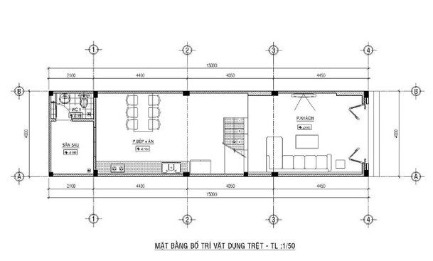
Phương án thứ nhất để gia chủ có thể lựa chọn cho ngôi nhà 1 trệt 2 lầu xây dựng với 4 phòng ngủ, phù hợp với gia đình có nhiều thế hệ cùng chung sống như hiện nay. Không gian tầng trệt bố trí với không gian phòng khách và khu vực bếp kết hợp cùng với bàn ăn. Nhà vệ sinh nếu như có đặt tại đây thì bố trí dưới khu vực cầu thang thông tầng. Không gian phòng khách và khu vực bếp nối thông nhau, ngăn cách bởi cầu thang. Việc làm như vậy giúp cho nối rộng hai không gian, nhấn mạnh vào chiều sâu của ngôi nhà, giúp gia chủ có thể tiếp đón vị khách tới chơi trong một không gian rộng lớn hơn. Với những ngôi nhà xây dựng theo mẫu 1 trệt 2 lầu thì phần cửa chính sẽ thiết kế với cửa kính cường lực khung nhôm hiện đại, cực kỳ chắc chắn. Sử dụng cửa kính này đón được lượng ánh sáng cần thiết vào không gian nhà, khắc phục được một trong những nhược điểm mà nhà phố hay gặp phải là thiếu đi ánh sáng cũng như lưu thông không khí cho ngôi nhà. Đây cũng được xem là giải pháp về mặt phong thủy, mang đến luồng khí dương cho ngôi nhà, tránh khỏi sự u ám. Bên trong khung cửa thường sẽ được lắp thêm hệ thống rèm với hai lớp, một lớp voan mỏng màu trắng, và lớp dày tùy theo nhu cầu của gia chủ mà lựa chọn màu sáng hoặc tối. Với việc thêm lớp rèm vải này giúp cho gia chủ giữ được nét riêng tư cho cuộc sống sinh hoạt bên trong của gia đình mình nhưng vẫn nhận được ánh sáng vào trong ngôi nhà.
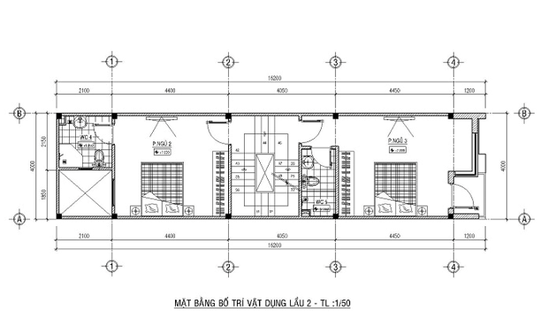
Khu vực tầng lầu thứ nhất của ngôi nhà 1 trệt 2 lầu được bố trí với hai phòng ngủ, trong đó có một phòng ngủ mater. Với phòng ngủ master này kiến trúc sư bố trí nhà vệ sinh bên trong để thành viên sử dụng có một không gian riêng tư tuyệt đối. Hai phòng ngủ này được ngăn cách với nhau bởi khu vực cầu thang.

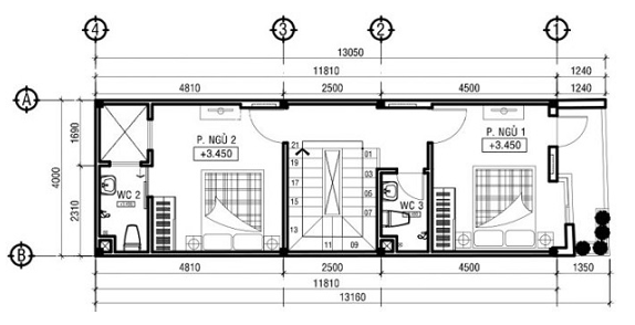
Cuối cùng khu vực tầng lầu thứ hai có bố trí tương tự như tầng lầu thứ nhất. Đồ nội thất được lựa chọn thông minh, hiện đại phù hợp với không gian phòng, đặc biệt là không gian phòng có diện tích khá nhỏ ở khu vực phố. Tại không gian như vực tầng lầu thứ 2 này, gia chủ hoàn toàn có thể lựa chọn thiết kế khác như sau:
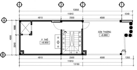
- Thiết kế thứ nhất bố trí một phòng ngủ và một không gian thờ cúng – phù hợp với nền văn hóa của người Việt, thờ cúng tổ tiên.
- Thiết kế thứ hai dành cho gia chủ có ít thành viên sinh sống, từ 3 – 4 thành viên sinh sống trong ngôi nhà. Tầng lầu sẽ được bố trí với không gian thờ và một không gian sân thượng. Với không gian sân thượng này gia chủ có thể bố trí một khoảng sân nhỏ với cây xanh bao quanh giải quyết được không gian xanh còn thiếu bắt buộc phải có trong ngôi nhà có diện tích từ 50m2 trở lên xây dựng ở khu vực thành phố hiện nay lại vừa tạo được khoảng không gian để tự thư giãn ở nhà. Hoặc gia chủ lựa chọn bố trí không gian bàn ăn nhỏ để tiếp đãi bữa thịt nướng hay bữa lẩu hay đơn giản là những bữa ăn quây quần bên những người thân, bạn bè vào dịp cuối tuần.
Đến với phương án thiết kế thứ hai dành cho mẫu nhà 1 trệt 2 lầu mới nhất 2024 là thiết kế 1 trệt 2 lầu 1 tum. Thiết kế cụ thể như thế nào?
Về không gian tầng trệt và 2 lầu sẽ được bố trí tương tự như phương án thứ nhất, chú ý đến tầng tum của thiết kế mẫu nhà này. Với khu vực tầng tum kiến trúc sư dành toàn bộ diện tích sàn của ngôi nhà để bố trí cây xanh. Phương án thiết kế này như đã nói ở phía bên trên được xem là giải pháp mang thiên nhiên đến cho ngôi nhà, đặc biệt là những ngôi nhà phố hiện nay. Với diện tích khá rộng như thế này gia chủ có nhiều ý tưởng đột phá, khác biệt mang đậm dấu ấn cá nhân của mình trong đó.

Một trong những thiết kế tiêu biểu của không gian này lấy ví dụ để gia chủ tham khảo là thiết kế với cây xanh bao quanh kết hợp bộ bàn ghế để gia chủ thư giãn sau những ngày làm việc mệt mọi ngay tại ngôi nhà của mình, trông chẳng khác gì một quán café trên cao sang chảnh. Một gợi ý khác cho gia chủ xây dựng mẫy nhà 1 trệt 2 lầu mới nhất 2024 này khá đặc biệt, chắc chắn gây thích thú cho các gia chủ. Đã bao giờ bạn nghĩ rằng sẽ sở hữu một bể bơi trên cao ngay tại ngôi nhà của mình hay chưa? Đúng vậy với gia chủ nào có diện tích sàn lớn thì hoàn toàn ở mẫu nhà 1 trệt 2 lầu có thể sử dụng thiết kế bể bơi mini tại khu vực tầng tum này. Một bể bơi mini, thêm tiểu cây xanh được bố trí xung quanh, bộ bàn ghế nằm nghỉ ngơi thư giãn như ở khu nghỉ dưỡng cao cấp. Chẳng cần phải đi đâu xa bạn đã sở hữu ngay một khu nghỉ dưỡng cao cấp ngay trong chính ngôi nhà của bạn.
Về ưu điểm không gian tầng tum này trước hết chính là khu vườn xanh, tràn ngập thiên nhiên như đã đề cập ở phía trên. Thêm một ưu điểm nữa chính là việc khắc phục được nhược điểm mà nhà mái bằng gặp phải đó là ứ đọng nước khi mưa lớn. Bạn cũng biết rằng mái bằng có độ dốc 3-5% nên khả năng thoát nước kém, mưa lớn nhiều ngày sẽ khó thoát nước, lâu dần xảy ra tình trạng ngấm nước vào khu vực trần nhà, gây ảnh hưởng đến đồ vật bên trong và ảnh hưởng chính sức khỏe người dùng. Với việc sử dụng tầng tum với hệ thống cây xanh góp phần hạn chế được việc này, giúp bảo vệ ngôi nhà cũng như giữ được tính thẩm mỹ cho ngôi nhà 1 trệt 2 lầu.
Mẫu nhà phố 1 trệt 2 lầu
Nhà phố 1 trệt hai lầu là một mô hình quen thuộc trong cuộc sống hiện đại ngày nay. Nó vừa giúp giảm bớt diện tích đất thành phố chật hẹp vừa mang lại những tiện ích riêng nhất định.Nếu như bạn có ý tưởng kinh doanh. Thì đây có thể là mẫu nhà để thiết kế kết hợp kinh doanh và nhà ở. Chỉ cần có sự khéo léo trong sự bố trí sắp xếp và thiết kế.

Công năng của mẫu nhà phố 1 trệt hai lầu bao gồm 3 tầng:
- Tầng 1: có thể dùng để phục vụ kinh doanh (bao gồm hệ thống WC)
- Tầng 2 là không gian riêng của gia chủ với bếp và bàn ăn lớn – đây cũng là nơi gia chủ tiếp khách thân mật. Cùng với 1 phòng ngủ, 2 WC.
- Tầng 3 bố trí 2 phòng ngủ, 2 WC.
Về thiết kế: Mẫu nhà phố 1 trệt hai tầng được xây dựng trên yêu cầu của chủ nhà. Tuy nhiên các nhà thiết kế cũng cần có những gơi ý cho gia chủ.
Mẫu nhà 1 trệt 2 lầu có giếng trời
Đây là mẫu thiết kế nhà dành cho những gia đình có phong cách trẻ trung hiện đại, gần gũi với thiên nhiên. Không quá cầu kì trong thiết kế nhưng nó phải đảm bảo được sự mới lạ, độc đáo, sáng tạo.

Đặc điểm nổi bật của thiết kế này chính là sự thông thoáng mát mẻ của không gian ngôi nhà. Kết hợp lấy khí trời trong không gian mới, hiện đại. Khi bước vào căn nhà sẽ khiến bạn không bị gò bó, bí bách mà hoàn toàn thoải mái, dễ chịu.
Về công năng:
- Gia đình 4 thành viên: Thiết kế 1 phòng khách, 1 phòng bếp, 2 PN, 1 phòng đa năng (phòng sách hoặc phòng ngủ cho ông bà), phòng gym, phòng giặt và sân thượng.
- Có không gian đọc sách, học tập cho các con.
- Có thể linh hoạt thay đổi sau này: biến khu vực sinh hoạt chung ở các tầng thành phòng riêng khi các con đã lớn.
Mẫu nhà 1 trệt 2 lầu 4x12m
Với diện tích ngôi nhà 4x12m, chúng ta có thể bắt gặp được rất nhiều các mẫu nhà 1 trệt 2 lầu đẹp với một không gian mở đầy mới lạ.

Thiết kế không gian có sự góp mặt của thiên nhiên như cây xanh, ưu tiên nguồn ánh sáng của tự nhiên thông qua các ô cửa sổ ở tất cả các phòng chức năng như phòng khách, phòng bếp và đặc biệt là phòng ngủ. Góp phần mang đến một không gian sống thoáng đãng, thoải mái.
Cần có sự kết hợp hài hòa sáng tạo và linh hoạt trong lối thiết kế. Không nên để có những vách ngăn kiên cố làm giảm đi sự thông thoáng của ngôi nhà.
Đặc điểm nổi bật của mẫu thiết kế này là không gian thực tế của ngôi nhà tuy bé nhưng nó vẫn khiến cho người sử dụng luôn thoáng mát rộng rãi bởi sự phối cảnh và sắp xếp nội thất quá hợp lí

Công năng sử dụng của mẫu nhà gồm:
- Tầng trệt: Phòng bếp+phòng ăn; phòng khách; hệ thống vệ sinh
- Tầng 2: Phòng ngủ và khu vực nghỉ ngơi thư giãn của gia đình.
- Tầng 3: Khu vực phòng thờ, phòng tập,..

Mẫu nhà 1 trệt 2 lầu 5x20m2 hiện đại
Nếu như bạn đang mong muốn lựa chọn các mẫu nhà 1 trệt 2 lầu đẹp thiết kế hiện đại, đầy đủ nhu cầu tiện nghi cho gia đình thì mẫu nhà 1 trệt 2 lầu 5x20m2 là một sự lựa chọn đáng chú ý.

Công năng của mô hình này bao gồm :
- Tầng trệt: gara, phòng khách, phòng bếp
- Tầng 1: phòng ngủ, phòng sinh hoạt chung
- Tầng 2 kết hợp sân thượng: Phòng thờ; phòng tập thể dục,..

Bản vẽ mẫu thiết kế tầng trệt nhà 1 trệt hai lầu hiện đại 5x20m

Bản vẽ thiết kế nhà hiện đại lầu 1

Bản vẽ thiết kế nhà hiện đại lầu 2 kết hợp sân thượng
Phương án thiết kế tiết kiệm dành riêng cho mẫu nhà 1 trệt 2 lầu cho năm 2024
Đây là phần mà gia chủ khi tiến hành xây dựng cho mẫu nhà 1 trệt 2 lầu mới nhất 2024 quan tâm rất lớn – Tiết kiệm chi phí xây dựng. Cùng theo dõi để thấy được lời khuyên của các chuyên gia lâu năm trong nghề đưa ra và áp dụng vào ngôi nhà tương lai của mình để vừa có được không gian đẹp về mặt thẩm mỹ, đầy đủ công năng nhưng lại vô cùng tiết kiệm.

Sử dụng không gian mở, hạn chế vách ngăn trong nhà ở vị trí không gian tầng trệt là giải pháp tiết kiệm cho mẫu nhà 1 trệt 2 lầu mới nhất 2024. Với cách bố trí như thế này hạn chế được kha khá vật liệu xây dựng và một khoản tiền nho nhỏ trở lại túi gia chủ và sử dụng cho mục đích khác. Việc bố trí này nếu như gia chủ chưa tưởng tượng ra thì có thể xem cách bố trí không gian ở mục phía trên của bài viết đã nêu rất rõ ràng cũng như ưu điểm mà giải pháp này đem lại cho căn nhà.
Thay thế cho vách ngăn hiện nay có rất nhiều phương án được kiến trúc sư đưa ra. Cách đầu tiên có thể đề cập đến đó là đặt một chiếc cầu thang ngầm tạo ra ngăn cách giữa hai không gian liền hề với nhau, kết hợp với song sọc gỗ vô cùng thân thiện và không ảnh hưởng đến việc lưu thông không khí trong căn nhà.
Phương án thứ hai thay thế cho vách ngăn chính là việc sử dụng thanh dọc. Với sự đa dạng trong nguyên vật liệu cấu thành cùng màu sắc bắt mắt, thanh dọc này được rất nhiều gia chủ lựa chọn. Trong số đó được làm từ nguyên vật liệu gỗ sơn cánh gián, đơn giản, không cầu kỳ nhưng đạt được hiểu quả thẩm mỹ cần thiết.
Phương án thứ ba sử dụng kệ tivi hoặc tủ trang trí. Phương án sử dụng rất phổ biến trong những mẫu nhà 1 trệt 2 lầu xây dựng tại khu vực thành phố - nơi có phần diện tích khá hạn chế, 1 đồ vật nhưng có nhiều công dụng khác nhau được kết hợp.

Tiết kiệm chi phí xây dựng nhà 1 trệt 2 lầu mới nhất 2024 thể hiện ở việc lựa chọn nguyên vật liệu xây dựng của chính gia chủ. Lời khuyên của chuyên gia trong việc này chính là không nên thấy rẻ mà ham mua bởi chất lượng của vật liệu này chưa chắc được đảm bảo, khi sử dụng ảnh hưởng đến công trình khác trong ngôi nhà. Và chỉ một thời gian ngắn rất có thể bạn đã phải tiến hành sửa chữa và thay mới, khi tính toán lại chi phí có khi đã bằng tiền với vật liệu chất lượng hoặc thậm chí lớn. Vì thế hãy lựa chọn nguyên vật liệu có chất lượng khá một chút để có thể đảm bảo chất lượng cho công trình của mình.
Tiết kiệm chi phí được chuyên gia đưa ra rằng gia chủ hoàn toàn có thể tận dụng đồ nội thất từ ngôi nhà cũ của mình, không nhất thiết phải mua mới hoàn toàn nếu như đồ nội thất ở nhà cũ vẫn còn sử dụng tốt và phù hợp không gian. Đây chính là giải pháp cực kỳ tiết kiệm cho gia chủ.

Trong thi công trọn gói mẫu nhà 1 trệt 2 lầu này để tiết kiệm chi phí tối đã nhất có lẽ nằm ở việc lựa chọn một đơn vị nhà thầu uy tín, chất lượng. Sự dày dặn, kinh nghiệm từng trải trong các công trình xây dựng nhà ở chính là điểm mấu chốt để tư vấn, thi công, hoàn thiện ngôi nhà của bạn đúng kế hoạch đề ra, đảm bảo chất lượng, độ thẩm mỹ. Vì bạn cũng biết rằng, nếu như thời gian kéo dài, tương đương với việc bạn mất thêm chi phí cho nhân công.
Trong mục tiết kiệm chi phí cho nhà 1 trệt 2 lầu mới nhất 2024 cần gia chủ chú trọng đến yếu tố mặt tiền của ngôi nhà. Rất nhiều gia chủ chú tâm việc tiết kiệm mà làm ảnh hưởng đến độ thẩm mỹ ở khu vực mặt tiền này. Dù có tiết kiệm chi phí thì khu vực mặt tiền của mẫu nhà 1 trệt 2 lầu cũng cần gia chủ chú trọng. Việc sử dụng gạch ốp, cửa kính cường lực được xem là cách làm hiệu quả, mang đến tính thẩm mỹ hiện đại cho mẫu nhà 1 trệt 2 lầu mới nhất 2024 hiện nay.
Yếu tố quyết định đến giá xây dựng nhà 1 trệt 2 lầu mới nhất 2024
Trước khi đến mục báo giá xây dựng nhà 1 trệt 2 lầu trọn gói mới nhất 2024 thì cần phải xác định được yếu tố quyết định đến chi phí xây dựng của mẫu nhà này.

Diện tích chính là yếu tố quyết định đến báo giá xây dựng nhà 1 trệt 2 lầu trọn gói mới nhất 2024. Cùng với quy mô xây dựng nhà 1 trệt 2 lầu nhưng diện tích càng lớn thì chi phí theo đó cũng tăng theo. Ngước lại diện tích nhỏ hơn thì chi phí chung giảm theo. Nếu như bạn chưa hiểu lý do vì sao thì trong công thức tính: Tổng chi phí xây dựng nhà 1 trệt 2 lầu mới nhất 2024 = Tổng diện tích ngôi nhà 1 trệt 2 lầu x Đơn giá thi công (tính theo đơn vị 1m2).
Tổng diện tích ngôi nhà 1 trệt 2 lầu = Phần móng + Diện tích sàn tầng trệt + Diện tích sàn lầu 1 + Diện tích sàn lầu 2 + Diện tích mái.
Yếu tố thứ hai quyết định báo giá xây dựng trọn gói nhà 1 trệt 2 lầu mới nhất 2024 nằm ở phong cách thiết kế của ngôi nhà. Nếu như bạn tìm hiểu về phong cách thiết kế thịnh hành và phổ biến tại Việt Nam hiện nay có 3 phong cách nổi bật: Hiện đại, cổ điển và tân cổ điển. Phong cách hiện đại với đặc điểm nổi bật tối giản trong thiết kế nhưng lại mang đến vẻ đẹp thông minh và vô cùng hợp thời. Tương tự đồ nội thất đi theo phong cách này cũng rất nhỏ gọn, chất liệu tạo thành cũng rất đa dạng, từ gỗ tự nhiên đến gỗ công nghiệp, nhựa cao cấp,… giá thành rất rẻ nhưng có độ bền cao, thẩm mỹ luôn đảm bảo. Đặc điểm một đồ vật có thể tích hợp nhiều công năng sử dụng. Rất phù hợp với những ngôi nhà có diện tích nhỏ hẹp tại phố.

Với phong cách tân cổ điển hay cổ điển lại là sự cầu kỳ trong từng chi tiết cấu thành. Có thể nhận thấy những đặc điểm tiêu biểu với những đường nét hoa văn vòm cổ kính, yểu điệu mang đậm nét đẹp từ Châu Âu thế kỷ 17 được lồng ghép khắp không gian, từ trong ra ngoài từ trên xuống dưới của ngôi nhà. Đặc biệt với không gian mái nhà rất được chú trọng, mái ngói với hệ vi kèo vô cùng chắc chắn được sử dụng mang lại sự đồ sộ trong thiết kế. Cùng với đó phần nội thất của ngôi nhà cũng có nét kiến trúc tỉ mỉ vô cùng, từ những chi tiết nhỏ nhất. Và hãy nhớ rằng tất cả đều được gia công thủ công từ đôi bàn tay khéo léo của người thợ lành nghề có rất nhiều năm trong nghề. Chẳng vậy mà những mẫu nhà 1 trệt 2 lầu mới nhất 2024, và mẫu nhà 1 trệt 2 lầu từ trước đến nay đều có mức giá khá cao so với những ngôi nhà theo phong cách hiện đại.
Nguyên vật liệu sử dụng trong xây dựng nhà trọn gói 1 trệt 2 lầu mới nhất 2024 là yếu tố quyết định đến chi phí chung của ngôi nhà. Nguyên vật liệu chia theo gói khác nhau tùy theo chất lượng, nêu rõ hơn trong mục báo giá xây dựng nhà 1 trệt 2 lầu trọn gói mới nhất 2024 dưới đây.

Phân chia không gian quyết định chi phí xây dựng nhà trọn gói 1 trệt 2 lầu mới nhất 2024. Phân chia phức tạp hay có quá nhiều không gian bên trong, thời gian thi công lâu và chi phí đi cùng cũng sẽ tăng lên. Ngược lại với ít không gian, không gian đồng nhất từ trên xuống dưới thì thời gian thi công nhanh chóng, dễ dàng thực hiện, chi phí theo đó giảm bớt.
Địa điểm xây dựng nhà cũng quyết định đến chi phí xây dựng. Nếu như xây dựng tại khu vực đường lớn, thuận tiện giao thông thì chi phí xây dựng sẽ ít tốn kém hơn so với những khu vực đường nhỏ, sâu trong ngõ, không thuận tiện giao thông.
Thời điểm xây dựng cũng là yếu tố quyết định đến báo giá xây dựng của ngôi nhà. Xây dưng nhà vào mùa khô nhanh chóng hơn cũng như tiết kiệm chi phí hơn so với mùa mưa bởi mùa mưa làm cho công trình bị ảnh hưởng, thời gian kéo dài hơn cùng với đó chi phí xây dựng cũng tăng hơn.
Báo giá chi phí xây dựng nhà 1 trệt 2 lầu trọn gói mới nhất 2024
Báo giá xây dựng nhà 1 trệt 2 lầu trọn gói mới nhất 2024 có báo giá như sau:

Cách tính diện tích sàn xây dựng nhà ở phổ biến hiện nay
Diện tích sàn xây dựng = diện tích sàn sử dụng + diện tích khác ( phần móng, sân, tầng hầm nếu có)
Trong đó:

Báo giá chi phí xây dựng nhà ở 1 trệt 2 lầu trọn gói 2024 mới nhất
Sau khi tính được tổng diện tích sàn xây dựng chính xác, bạn có thể dựa vào đó để dự toán được chi phí xây nhà dựa trên mét vuông. Phương pháp này đang được ưa chuộng vì khá đơn giản mà lại nhanh chóng, thuận tiện cho cả nhà thầu lẫn chủ đầu tư. Lưu ý, đối với cách tính này, bạn cần phải tính diện tích của tất cả các phòng trong nhà bao gồm tầng lầu (nếu có), thậm chí là phần mái hiên, sân thượng theo phần trăng diện tích đã nêu ở trên.
Theo đó, chi phí xây dựng nhà 1 trệt 2 lầu trọn gói có giá như sau:
- Đơn giá nhân công dao động từ 1.100.000 – 1.500.000đ/m2
- Đơn giá phần thô và nhân công hoàn thiện dao động từ 3.200.000 – 3.600.000đ/m2
- Đơn giá xây dựng nhà trọn gói bao gồm chi cả chi phí nhân công hoàn thiện:
+ Gói vật tư trung bình có chi phí khoảng 4.500.000VNĐ/m2
+ Gói vật tư trung bình khá có chi phí khoảng 4.800.000VNĐ/m2 -5.000.000 VNĐ/m2
+ Gói vật tư khá có chi phí khoảng 5.500.000VNĐ/m2
+ Gói vật tư tốt có chi phí khoảng 6.000.000VNĐ/m2
Nhìn vào đây chắc hẳn chủ đầu tư dễ dàng nhận thấy nếu bạn sử dụng vật tư càng chất lượng thì chi phí càng tốn kém. Tuy nhiên, bạn không nên vì thế mà chọn những loại vật liệu có chất lượng kém để tiết kệm ngân sách. Bởi, vật liệu chính là cốt lõi của công trình, cốt lõi có vững chắc thì công trình mới bền đẹp.
Ví dụ chi phí xây nhà 1 trệt 2 lầu diện tích 40m2 hiện nay.
Gia chủ yêu cầu xây dựng nhà 1 trệt 2 lầu với diện tích 4x10m gồm 1 trệt, 2 lầu, sân thượng, mái và sử dụng vật tư trung bình sẽ có cách tính cụ thể như sau:
Tổng diện tích nhà 1 trệt 2 lầu diện tích 40m2
+ Diện tích móng: 40m2 x 50% = 20m2
+ Diện tích tầng trệt: 40m2 x 100% = 40m2
+ Diện tích tầng 1: 40m2 x 100% = 40m2
+ Diện tích tầng 2: 40m2 x 100% = 40m2
+ Diện tích mái: 40m2 x 50% = 20m2
Như vậy tổng diện tích sàn cần thi công của nhà 1 trệt 2 lầu 40m2 là: 160m2
Nhân với đơn giá xây dựng hiện nay
- Đơn giá chi phí xây dựng phần thô: 160m2 x 3.500.000 VNĐ/m2 =560.000.000VNĐ (bao gồm phần thô và nhân công hoàn thiện)
- Đơn giá chi phí xây dựng trọn gói: 160m2 x 5.500.000 VNĐ/m2 = 880.000.000VNĐ (bao gồm phần thô, nhân công hoàn thiện và vật liệu hoàn thiện)
Như vậy, mức chi phí xây nhà 1 trệt 2 lầu sẽ dao động từ 560.000.000 VNĐ đến 880.000.000VNĐ tùy theo gói xây dựng mà chủ đầu tư lựa chọn.
Tóm lại, theo công thức trên là chủ đầu tư hoàn toàn có thể tự tính kinh phí dự trù khi xây nhà 1 trệt 2 lầu trọn gói là bao nhiêu. Lưu ý đơn giá này sẽ dao động khác nhau bởi phụ thuộc vào từng địa phương, giá vật tư xây dựng cũng như nhân công. Nhưng chủ đầu tư chỉ cần áp dụng đúng công thức trên là có thể tính được chi phí xây nhà mái bằng hay mái tôn.

Gia chủ muốn tìm hiểu hơn thì liên hệ đơn vị nhà thầu uy tín để được tự vấn chi tiết cụ thể cũng như nắm được chính sách khuyến mại. Chúc gia chủ lựa chọn xây dựng nhà 1 trệt 2 lầu trọn gói mới nhất 2024 sẽ sở hữu được một ngôi nhà đảm bảo chất lượng mà còn có kiến trúc đẹp mang đậm dấu ấn cá nhân. Biết đâu ngôi nhà của bạn lọt top thiết kế những mẫu nhà đẹp nhất năm 2024.


































