Một ngôi nhà có diện tích nhỏ, nhưng ấm áp và vẫn đáp ứng đầy đủ tiện nghi thành viên trong gia đình đang là lựa chọn cho những người đang có ý định xây nhà tại khu vực thành thị. Vậy chi phí xây nhà 1 trệt 1 lầu 4x12 là bao nhiêu tiền? để có câu trả lời thỏa đáng xin mời mọi người cùng tham khảo thông tin sau.
Cách tính chi phí xây nhà 1 trệt 1 lầu 4x12 với kinh phí đầu tư dưới 600 triệu
Để tính chi phí xây dựng nhà 1 trệt 1 lầu 4x12 có công thức sau:
- Chi phí xây dựng = diện tích ngôi nhà X đơn giá theo m2.
- Phần móng (chiếm 50%) = 4 x 12 x 50% = 24m2
- Tầng 1 (chiếm 100%) = 4 x 12 = 48m2
- Tầng 2 (chiếm 100%, bao nhiêu tầng thì 100% x với bấy nhiêu tầng) = 4 x 12 = 48m2
- Mái chia làm 3 loại thịnh hành trên thị trường hiện nay, và chiếm số lượng phần trăm khác nhau:
- Mái bằng (chiếm 70%) = 48m2 x 70% = 33.6m2
- Mái Thái (chiếm 50%) = 48m2 x 50% = 24m2
- Mái tôn (chiếm 30%) = 48m2 x 30% = 14,4m2

Nhà 1 trệt 1 lầu diện tích 4x12m kinh phí đầu tư chỉ với 600 triệu đồng.
Đơn giá hoàn thiện ngôi nhà 1 trệt 1 lầu 4x12 hiện nay theo khảo sát có hai cách tính như sau:
- Cách thứ nhất: Nhà thầu thi công, nhân công hoàn thiện có đơn giá từ 3 triệu đồng đến 3,5 triệu đồng với việc sử dụng nguyên vật liệu tầm trung.
- Áp dụng công thức này sử dụng mái bằng có đơn giá là: (24 + 48 + 48 + 33.6) x 3.000.000 triệu đồng/ m2 = 406.800.000 triệu đồng
=> Với đơn giá này đã đủ điều kiện tiêu chí ngay ban đầu xây dựng ngôi nhà dưới 600 triệu đồng hay chưa?
Tương tự với mái Thái và mái tôn, gia chủ có thể dễ dàng tính được chi phí hoàn thiện phần thô công trình của mình. Tùy thuộc vào từng điều kiện của vùng miền mà đơn giá thi công thay đổi ít nhiều.
- Cách thứ hai: Chia khóa trao tay, nhà thầu làm từ a đến z, đơn giá từ 4,5 triệu đồng đến 6 triệu đồng tùy từng nguyên vật liệu mà gia chủ lựa chọn.
- Áp dụng công thức sử dụng mái bằng có đơn giá là: (24 + 48 + 48 + 33.6) x 4.500.000 triệu đồng/ m2 = 691.200.000 triệu đồng
Đơn giá cho thi công này đắt hơn ít nhiều bởi gia chủ chỉ việc đến nhận nhà khi hoàn thành xong. Áp dụng tương tự với mái Thái và mái tôn, tùy từng vùng miền, địa phương cũng như nguyên vật liệu mà gia chủ lựa chọn sẽ ra được chi phí khác nhau.
Chi phí xây dựng nhà 1 trệt 1 lầu 4x12 bao gồm những yếu tố nào?
Nhìn những chi phí phía trên nhiều gia chủ chắc chắn sẽ thắc mắc chỉ bấy nhiêu thôi mà chi phí thi công phần thô lại lớn như vậy, liệu có những yếu tố nào tác động đến chi phí này. Cùng theo dõi phần phía dưới để hiểu hơn yếu tố tác động đến giá nhà 1 trệt 1 lầu 4x12 này.

Với diện tích 4x12m này rất phù hợp với những gia đình ở khu vực thành phố.
Điều nhắc đến đầu tiên trong mọi thiết kế công trình đó chính là hồ sơ thiết kế chuẩn. Không phải ngẫu nhiên một ngôi nhà có thể hoàn thành được, hay chỉ với ý tưởng của gia chủ mà có thể hoàn thiện căn nhà với đầy đủ diện tích. Để có thể hoàn thiện ngôi nhà cần phải có một hồ sơ thiết kế chuẩn. Hồ sơ thiết kế này bao gồm tất cả những điều liên quan đến ngôi nhà từ bản vẽ thiết kế chi tiết đến nguyên vật liệu được lựa chọn, phong cách thiết kế, chi phí nhân công,…. Tất cả đều được liệt kê đầy đủ chi tiết. Gia chủ nhìn vào hồ sơ này có thể ra được chính xác 90% chi phí xây dựng ngôi nhà của mình.
Với những ngôi nhà 1 trệt 1 lầu 4x12 tại các nhà thầu thi công sẽ có những hồ sơ mẫu vì vậy nếu như gia chủ có ý tưởng tương đồng với những hồ sơ này thì chỉ việc lựa chọn và sử dụng. Việc làm này giúp cho những gia đình có nguồn ngân sách hạn chế sẽ tiết kiệm khoản chi phí trong thiết kế ngôi nhà của mình, và tiết kiệm thời gian.
Ưu điểm của những hồ sơ này đó chính là những ngôi nhà đã được đưa vào thực tế sử dụng, các kiến trúc sư nhìn vào đó mà sửa chữa những phần chưa hợp lý trong ngôi nhà, cải thiện những phần ấy trở nên tốt hơn, đáp ứng tính năng của gia chủ.
Một trong những ưu điểm lớn cũng đã được đề cập ở phía trên đó chính là tiết kiệm thời gian và tiết kiệm chi phí xây dựng. Việc sử dụng này giúp gia chủ không phải đập đi xây dựng lại một hồ sơ mới với rất nhiều thứ đi kèm, phù hợp với gia chủ bận rộn hoặc gia chủ mà nguồn chi phí xây dựng không được dư dả.

Phong cách thiết kế đẹp chi phí đầu tư thấp sẽ là lựa chọn tuyệt vời.
Quy mô và diện tích xây dựng là yếu tố tác động trực tiếp đến chi phí xây dựng ngôi nhà. Như cách tính diện tích đã được đề cập phía trên, từng phần từng phân ngôi nhà được phân chia và có cách tính khác nhau, diện tích càng lớn thì chi phí bỏ ra càng lớn, càng nhiều tầng thì chi phí cho mỗi tầng là như nhau không có sự giảm bớt. Vì thế cần tính toán chính xác nhu cầu sử dụng của chính mình từ đó gia chủ cùng kiến trúc sư có thể có con số chính xác diện tích sử dụng.
Xây dựng móng cũng điểm để gia chủ lưu tâm khi xây dựng. Ngôi nhà có vững chãi hay không sẽ phụ thuộc rất nhiều vào phần móng. Để có thể đảm bảo chỉ số an toàn, đúng kỹ thuật cho ngôi nhà, gia chủ cũng tìm hiểu nền đất chính nơi xây dựng. Nếu như nền đất yếu, có khả năng sụt lún cao buộc gia chủ cải tạo đất, làm nền móng chắc chắn hơn với kỹ thuật phức tạp hơn. Nếu nền đất ấy khi xây dựng nhà gây khả năng lụt mỗi khi mưa đến thì cần gia chủ cùng kiến trúc sư tính toán nền móng cao hơn để đảm bảo cho ngôi nhà.
Phong cách thiết kế ảnh hưởng rất nhiều đến chi phí xây dựng nhà cửa. Không còn quá xa lạ với ba phong cách xây dựng nhà cửa hiện nay: phong cách hiện đại, phong cách cổ điển và phong cách tân cổ điển. Với từng phong cách khác nhau sẽ có chi phí thiết kế khác nhau, tùy thuộc vào nhu cầu, sở thích của gia chủ cũng như chi phí cho phần thiết kế để có thể lựa chọn phong cách thích hợp.
Nói một chút vì sao phong cách khác nhau lại có giá tiền khác nhau thì nhìn vào mặt tiền của những ngôi nhà với phong cách này. Phong cách hiện đại không quá chú trọng vào tiểu tiết hoa văn cầu kỳ, mà thay vào đó là sự kết hợp của khối hộp thì ngược lại hai phong cách cổ điển và tân cổ điển lại chú trọng vào từng hoa văn sử dụng. Chỉ với điểm này thôi thì những ngôi nhà theo hai phong cách đặc trưng của châu Âu đã phải tìm kiếm và thuê nhân công có kinh nghiệm trong lĩnh vực này để gia công cho phần này. Và đương nhiên, những người thợ lành nghề, có đôi bàn tay khéo léo thì đi cùng với đó là chi phí nhân công khá cao. Đó chính là để ngôi nhà phong cách châu Âu này có mức giá cao hơn.
Đó chỉ là mặt bên ngoài của căn nhà, tiếp đến phần bên trong căn nhà cùng với đồ nội thất đi cùng căn nhà ấy. Tiếp tục với những hoa văn sử dụng trong căn nhà thì chủ nhân của căn nhà này cũng cần những người thợ tiếp tục thi công để ngôi nhà hoàn thiện đúng chuẩn. Nội thất căn nhà này theo phong cách này cũng được thiết kế thi công rất tỉ mỉ, gần như tất cả đều được làm bằng thủ công, không sản xuất công nghiệp nên đơn giá khá cao. Hơn nữa, rất nhiều đồ nội thất không bán tại thị trường Việt Nam nên gia chủ thường phải tìm mua tại châu Âu, sau đó thuê công trở về theo đường biển.

Nhiều biến tấu khác nhau giúp gia chủ có thể tìm kiếm một thiết kế ưng ý
Với tất cả những lý do trên, thì chi phí để hoàn thiện căn nhà theo phong cách cổ điển và tân cổ điển sẽ khiến chi phí lớn hơn rất nhiều, vượt quá con số 600 triệu đồng.
Mái nhà là yếu tố tiếp theo ảnh hưởng chi phí xây dựng phần thô. Với từng cách thi công khác nhau mà những phần mái sẽ có những chi phí khác nhau, đề cập ở phía trên. Tùy theo ý kiến gia chủ mà lựa chọn phần mái nhà phù hợp.
Địa điểm và thời điểm thi công quyết định chi phí xây dựng. Địa điểm xây dựng ở những nơi xa trung tâm, không thuận tiện giao thông, trong gõ hẹp, hay vùng miền núi sẽ có chi phí cao hơn khi xây dựng nhà ở mặt đường, thuận lợi giao thông. Thời điểm thi công nếu như gặp mưa, bão sẽ ảnh hưởng tiến độ thi công và phát sinh chi phí. Vì vậy đây là hai điều mà gia chủ cần lưu tâm khi xây dựng nhà ở của mình.
Cuối cùng yếu tố nguyên vật liệu xây dựng. Nhắc đi nhắc lại từ đầu bài viết thì đây yếu tố quyết định lớn nhất đến chi phí xây dựng. Có rất nhiều lợi nguyên vật liệu khác nhau trên thị trường với đơn gia khác nhau để gia chủ lựa chọn. Tuy nhiên không nên ham rẻ làm ảnh hưởng chất lượng công trình.
Thiết kế nhà 1 trệt 1 lầu nhỏ nhưng đầy tiện nghi

Phối cảnh mẫu nhà 1 trệt 1 lầu đẹp xây dựng trên diện tích 4x12m
Với diện tích vô cùng hạn chế như này thì kiến trúc sư cũng cần tính toán khoa học và hợp lý để có thể làm nên căn nhà với đầy đủ diện tích, đáp ứng tiêu chuẩn tối thiếu không gian sinh hoạt cho từng thành viên. Có thể xem cách bố trí mẫu về căn nhà 1 trệt 1 lầu 4x12 như sau.
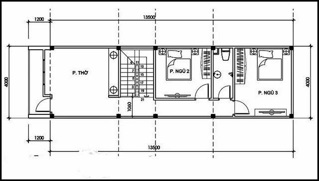
Vị trí tầng 1 sẽ là không gian nhỏ sân, tiếp đến phòng khách nối liên gian bếp, một nhà vệ sinh chung và không gian phòng ngủ nhỏ. Lên đến tầng 2 là ban công nhỏ, không gian thờ, 2 phòng ngủ và 1 nhà vệ sinh chung, cùng với khu vực bố trí cầu thang.

Mặt bằng tầng trệt
Tuy diện tích hạn chế, nhưng kiến trúc sư khéo léo bố trí để vừa đảm bảo không gian sinh hoạt nhưng cũng không thể thiếu khu vực nghỉ ngơi thư giãn cho gia chủ khi tận dụng diện tích tối đa để tạo nên khoảng ban công nhỏ ở khu vực tầng 2.
Nhưng ngôi nhà kiểu này sẽ thường thiếu đi không gian xanh thì đừng lo bởi thiết kế này đảm bảo tiểu cảnh nhỏ được bố trí đan xen giúp ngôi nhà có sắc xanh thiên nhiên hòa nhập. Phong cách thiết kế lựa chọn là phong cách hiện đại với những nội thất đi kèm nhỏ gọn nhưng đầy đủ công năng cần thiết khi sử dụng chính là điểm cộng lớn cho không gian nhỏ bé.

Mặt bằng lầu 1
Mọi thứ trong căn nhà đều được sắp xếp một cách gọn ngàng, ngăn nắp, khiến cho không gian trở nên rộng, tiện nghi và hiện đại. Và xây dựng nhà 1 trệt 1 lầu 4x12 chắc chắn sẽ là một kiểu dáng cực kỳ phù hợp đối với những gia đình nào có diện tích xây nhà không quá lớn nhưng vẫn muốn tạo nên một phong cách riêng cho ngôi nhà của mình. Chúng tôi dám chắc với một ngôi nhà nhỏ xinh với đầy đủ các công năng trong một căn phòng sẽ khiến gia đình bạn cũng như ai có dịp chiêm ngưỡng sẽ phải trầm trồ về mẫu nhà này đó nhé.
Và dĩ nhiên, có rất nhiều cách phối đồ nội thất phù hợp để mở rộng diện tích của căn phòng, khiến ngôi nhà tuy nhỏ nhưng vẫn mang một dáng dấp mới hiện đại và năng động hơn. Đó là bài học về phối đồ nội thất trong gia đình cho đến màu sơn nhà, màu chăn ga, gối đệm, tủ giường,… lựa chọn sao cho phù hợp. Các bạn có thể tham khảo thêm nhiều mẫu nhà cũng như nhiều cách phối khác nhau để xây dựng nhà 1 trệt 1 lầu 4x12 đẹp và ưng ý nhất nhé.
Xem thêm tin liên quan => Chi phí xây nhà 1 trệt 1 lầu 5x20 hết bao nhiêu tiền?























![[Dự toán] Chi phí xây nhà 1 trệt 2 lầu 4x10 chuẩn xác nhất 2024](/img.php?url=https%3A%2F%2Fxaydungso.vn%2F%2Fimg%2Fposts%2Fnha-1-tret-2-lau-40m20-200x160-2.jpg)








