Dù chúng ta có đi đâu, làm bất cứ việc gì ở nơi đâu thì nhà vẫn là nơi trở về, là bến đỗ bình an nhất của mỗi chúng ta. Sau những giờ phút căng thẳng, mệt mỏi bên công việc thì chúng ta sẽ trở về nhà nơi đó có gia đình, có sự ấm áp yêu thương. Để có được chốn bình yên như trong mơ đã có rất nhiều gia chủ băn khoăn về chi phí xây nhà 2 tầng 3 phòng ngủ hiện đại, mới mẻ.
Xây nhà là việc trọng đại của mỗi con người, nên chúng ta phải rất cẩn thận, kĩ lưỡng không được qua quýt, đại khái. Nếu gia chủ không nắm rõ cần tham khảo gia đình, người thân, bạn bè…Chúng tôi cũng đưa ra một số lưu ý cho các bạn khi xây nhà 2 tầng 3 phòng ngủ như sau:
- Điều đầu tiên là gia chủ phải dự trù được kinh phí xây nhà và chi phí phát sin có thể xảy ra. Sau khi đã lên được kế hoạch, dự trù được các khoản chi cần thiết để xây nhà thì bạn cần chặt chẽ hơn trong chi tiêu nhằm tránh những chi phí phát sinh quá nhiều so với dự tính ban đầu. Quan trọng nhất là bạn cần có chính kiến tránh nghe những lời bàn tán, góp ý từ bên ngoài xây chỗ nọ, đập chỗ kia thành ra chi phí sẽ bị vượt ra khỏi tầm kiểm soát của bạn.
- Tiếp đến là bạn cần nắm rõ quy trình xây dựng của ngôi nhà 2 tầng 3 phòng ngủ này. Vì công việc này sẽ giúp bạn chủ động hơn khi bắt tay vào công việc, để tránh những rắc rối về pháp lí, tránh gián đoạn công trình thi công. Theo quy định hiện hành thì việc xây nhà cần có sự giám sát của cơ quan nhà nước, nên để tránh mắc phải những vẫn đề về pháp luật bạn cần nắm rõ các quy định, giấy tờ ngay từ ban đầu.
- Một vấn đề nữa chúng tôi muốn lưu ý đến bạn là việc chọn nhà thầu và nắm rõ hợp đồng với nhà thầu. Việc xây nhà là việc hệ trọng cả cuộc đời nên bạn không nhất thiết là vì người quen mà hãy tìm hiểu và lựa chọn nhà thầu uy tín, đã thực hiện nhiều công trình thành công. Khi lựa chọn được nhà thầu bạn nên làm việc rõ ràng với nhà thầu tất cả giấy tờ, hợp đồng về giá cả cũng như thời gian thi công và hoàn thiện.
Mẫu nhà 2 tầng 3 phòng ngủ với những thông tin cần thiết

Không phải ngẫu nhiên mà hiện nay mẫu nhà 2 tầng 3 phòng ngủ lại được nhiều gia chủ lựa chọn đến vậy, đặc biệt là những đôi vợ chồng trẻ có nhu cầu xây nhà ở riêng. Hơn nữa, xây nhà 2 tầng 3 phòng ngủ chi phí không quá cao, tránh lãng phí cho gia đình ít người, phù hợp với kinh tế, tài chính của rất nhiều hộ gia đình. Chúng ta cùng đi tìm hiểu công năng của từng bộ phận trong mẫu thiết kế nhà 2 tầng 3 phòng ngủ này.

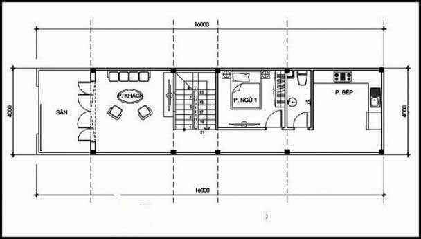
Đối với tầng 1 chúng tôi thiết kế phòng khách, 1 phòng ngủ, phòng bếp, phòng ăn và khu nhà vệ sinh chung. Ngoài ra bên ngoài bố trí sân nhà, nơi để xe tường bao quanh để tạo điểm nhấn cho ngôi nhà sẽ trồng hoa leo quanh tường rào, cùng với màu sơn nhẹ nhàng. Chỉ cần như vậy đã đủ để hớp hồn những du khách ghé qua nhà bạn.

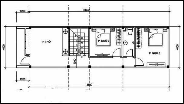
Theo lối cầu thang lên tầng 2 chúng tôi thiết kế 2 phòng ngủ, tạo không gian riêng tư cho từng thành viên trong gia đình. Phòng ngủ được thiết kế rộng, thoáng, có ban công để tận hưởng không khí trong lành từ thiên nhiên. Một phòng thờ được đặt trang nghiêm, yên tĩnh trên tầng 2 thể hiện sự tôn kính của gia chủ với ông bà tổ tiên. Và 2 phòng sẽ sử chung một nhà vệ sinh với đầy đủ thiết bị sang trọng, tiện nghi.
Cũng khó có thể để tính được chi tiết tổng chi phí của ngôi nhà 2 tầng 3 phòng ngủ là bao nhiêu. Vì còn phụ thuộc rất nhiều vào nhu cầu của gia đình, diện tích của ngôi nhà là to hay nhỏ. Nếu còn băn khoăn về mẫu mã, giá cả bạn hãy liên hệ với chúng tôi để chúng tôi giúp bạn thực hiện hóa ước mơ của mình.
Cách tính chi phí xây nhà 2 tầng 3 phòng ngủ tiết kiệm

Hiện nay trên thị trường nhu cầu xây nhà 2 tầng 3 phòng ngủ tăng ngủ tăng cao. Bởi một phần xã hội phát triển, đời sống của người dân tăng lên rất nhiều, nhu cầu xây dựng những ngôi nhà khang trang càng trở nên cần thiết. Mặt khác, những tiện ích của xây nhà 2 tầng 3 phòng ngủ không ai có thể phủ nhận.
Chính vì vậy mà khi người dân có nhu cầu xây nhà, từ khóa tìm hiểu về chi phí hót hơn bao giờ hết. Chi phí để xây nhà 2 tầng 3 phòng ngủ không quá cao, nếu tìm hiểu sâu, trong tay chỉ cần 600 triệu chưa bao gồm nội thất, bạn đã có thể sở hữu ngôi nhà như mong ước rồi.
Đó là chưa kể nếu dư giả hơn một chút, nhiều gia đình chi đến gần 1 tỷ hoặc hơn 1 tỷ để xây nhà, bao gồm cả nội thất. Điều này đã khiến cho xây nhà 2 tầng 3 phòng ngủ bước sang một diện mạo mới nguy nga và tráng lệ hơn rất nhiều.
Đối với những ai có mong muốn tìm hiểu đến công thức xây nhà 2 tầng 3 phòng ngủ hãy tìm đọc bài viết trước của chúng tôi, một công thức chung đã được đưa ra cho xây nhà 2 tầng bạn sẽ tham khảo. Tùy vào khu vực sinh sống nông thôn hay thành thị, thành phố mức giá sẽ khác nhau. Để biết rõ hơn hãy liên hệ với chúng tôi để sở hữu xây nhà 2 tầng 3 phòng ngủ với giá cả phải chăng nhất. Phù hợp với chi phí của gia đình bạn. Một lần nữa chúng tôi nhấn mạnh, ngoài 600 triệu, bạn hoàn toàn có thể xây nhà 2 tầng 3 phòng ngủ nhé!
Địa chỉ uy tín xây nhà 2 tầng 3 phòng ngủ

Con người đang từng ngày bước vào guồng quay của công việc, học tập và giải trí, dần chuyển mình sang những nhu cầu lớn hơn. Việc gửi gắm ngôi nhà của mình cho một địa chỉ thầu uy tín là cực kỳ quan trọng. Với chi phí không quá cao, bạn yên tâm gửi gắm ngôi nhà mơ ước của bản thân cho một chủ thầu uy tín.
Hiểu được điều này, hiểu được thị trường, hiểu được nỗi lòng của những con người hiện đại. Xaydungso.vn ra đời để đáp ứng điều đó. Với mong muốn là địa chỉ để khách hàng hoàn toàn yên tâm gửi gắm niềm tin, trong suốt những năm qua chúng tôi đã không ngừng nỗ lực, vươn lên, học hỏi và cố gắng để xứng đáng với niềm tin yêu của mọi người.
Trong thời đại công nghiệp 4.0 xây dựng số ra đời để đáp ứng điều đó, những gì mới mẻ, hiện đại nhất sẽ được chúng tôi áp dụng khi đến tay khách hàng. Hoàn toàn yên tâm và gửi gắm là mục tiêu lớn nhất của công ty chúng tôi. Trọn vẹn những điều tốt nhất, đến với xaydungso.vn chắc chắn sẽ khiến các quý khách hàng không những hài lòng mà sẽ giới thiệu cho anh em bạn bè cùng nhau tìm được địa chỉ uy tín số 1 trên thị trường.


































