Chi phí xây nhà 3 tầng 80m2 hết bao nhiêu tiền? Để giải đáp thắc mắc cho các hộ gia đình, hôm nay chúng tôi sẽ đưa ra một số gợi ý cần thiết để có được sự lựa chọn đúng đắn.
Bạn cần có đơn vị thiết kế đưa ra các hệ thống bản vẽ thiết kế nhà 3 tầng diện tích 80m2 gồm hình ảnh về phối cảnh 3D, mặt đứng, mặt cắt, thông số xây dựng cụ thể cung cấp cho đơn vị thi công hiểu rõ công trình của mình. Qua đó mới đưa ra được dự toán chi phí cho công trình của mình chính xác, để có sự chuẩn bị kỹ lưỡng về tài chính, giúp quá trình xây dựng được diễn ra suôn sẻ.
1. Đơn giá xây dựng nhà 3 tầng 80m2 tính trên 1 mét vuông

- Đơn giá nhân công xây dựng từ 1,4 – 1,7 triệu đồng /m2
- Chi phí xây nhà 3 tầng phần thô + nhân công hoàn thiện dao động từ 3,2 – 3,5 triệu đồng /m2
- Chi phí xây dựng nhà 3 tầng theo lựa chọn trọn gói:
- Vật tư trung bình: 5.000.000 đồng/m2
- Vật tư khá : 5.500.000 đồng/m2
- Vật tư tốt: 6.000.000 đồng/m2
Lưu ý đây là đơn giá dành cho nhà 3 tầng phổ biến hiện nay mang tính chất tham khảo. Tùy thuộc vào công trình thực tế, quy mô xây dựng, vị trí địa lý địa chất, vật liệu hoàn thiện….. sẽ có những mức giá khác nhau.
2. Chi phí xây nhà 3 tầng diện tích 80m2

Dưới đây chúng tôi sẽ hướng dẫn cách tính chi phí xây dựng nhà 3 tầng 80m2 bao gồm 1 trệt 2 lầu, mái ngói dùng bê tông cốt thép, nguyên vật liệu trung bình.
2.1. Tính diện tích:
- Móng bè: 80 x 50% = 40m2
- Tầng trệt: 80 x 100% = 80m2
- Lầu 1: 80 x 100% = 80m2
- Lầu 2: 80 x 100 % = 80m2
- Mái ngói bê tông cốt thép: 80 x 100% = 80m2
- Tổng diện tích sàn thi công là: 360m2
2.2. Nhân đơn giá:
- Phần thô: 360m2 x 3.300.000 = 1 tỷ 188 triệu đồng
- Trọn gói: 360m2 x 5.000.000 = 1 tỷ 800 triệu đồng. Bao gồm cả phần thô và phần ốp lát hoàn thiện chưa tính mua sắm lắp đặt nội thất.
Để có một cái nhìn tổng quan và chi tiết nhất về chi phí xây nhà 3 tầng hết tổng chi phí như thế nào thì các bạn nên tìm đến một công ty về xây dựng (nhà thầu hoặc bên tư vấn thiết kế) uy tín chuyên nghiệp, sở hữu những kiến trúc sư, kỹ sư chuyên môn cao. Tùy thuộc vào ngân sách của gia đình bạn mà kiến trúc sư sẽ tư vấn trao đổi để xây dựng một căn nhà đẹp, sang trọng, đảm bảo chất lượng và phù hợp với điều kiện của gia đình bạn.
3. Mẫu thiết kế nhà phố 3 tầng 80m2 với phong cách thiết kế đẹp
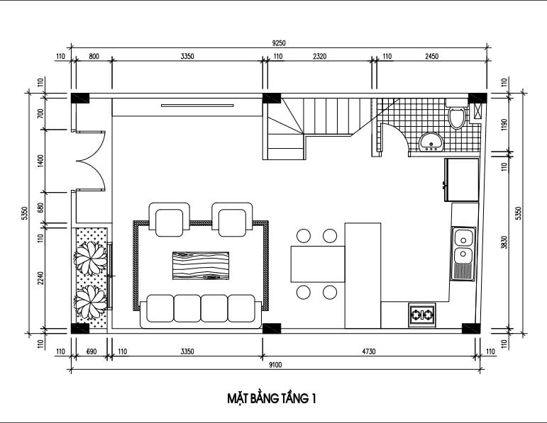
3.1. Không gian tầng 1 căn nhà phố 3 tầng 80m2
Đây là mẫu nhà phố hiện đại được nhiều gia đình trẻ lựa chọn, với thiết kế tầng 1 có không gian khá ấm cúng và sang trọng. Nhằm mục đích mang đến không khí trang nhã cho ngôi nhà khi gia chủ có dịp đón tiếp khách khứa bạn bè đến thăm.

Bạn có thể thấy sự tinh tế của gia chủ qua cách bài trí nội thất phòng khách với bàn kính, ghế sofa có cùng tông màu với màu sơn tường. Để căn phòng có thêm sinh khí, tránh sự nhàm chán, những chiếc gối tựa lưng cùng tranh treo tường trở thành điểm nhấn giúp không gian thêm nổi bật.

Bếp ăn và phòng khách kết hợp với diện tích khá rộng rãi, cùng với đó là đồ nội thất được gia chủ lựa chọn kỹ càng, tiện dụng trong sinh hoạt. Bức vách ngăn với họa tiết đơn giản được thêm vào để phân chia không gian các khu vực.
Để hoàn thiện tính mỹ quan cho tầng một ngôi nhà phố, bức vách ngăn với họa tiết đơn giản được thêm vào để phân chia không gian các khu vực với các kệ kính trang trí đồ vật, kết hợp cầu thang đúc cùng tay vịn thép toát lên vẻ đẹp sang trọng.
Cửa sổ được thiết kế để đảm bảo thông thoáng, thêm cửa ra vào lắp kính cho ánh sáng tự nhiên tràn ngập, và giúp không khí được lưu thống, tránh ám mùi thức ăn vào ngôi nhà. Ngoài ra, sân trước và sân sau thông thoáng, chủ nhà có thể trồng hoa, chưng cây cảnh để tăng thêm thẩm mỹ cho toàn bộ không gian nhà phố.
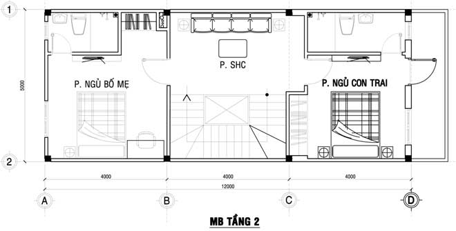
3.2. Không gian tầng 2 nhà phố 3 tầng 80m2
Toàn bộ tầng hai của ngôi nhà phố 80m2 được dành để làm không gian nghỉ ngơi, riêng tư cho gia đình. Thiết kế phòng ngủ của bố mẹ, phòng ngủ cho con cùng với phòng vệ sinh riêng để các thành viên gia đình được thoải mái trong sinh hoạt hàng ngày.

Phòng ngủ của bố mẹ được cách điệu cùng mảng tường đầu giường sơn tím, điều này giúp thổi bừng sức sống cho căn phòng, cũng như tạo sự lãng mạn cho không gian riêng của hai vợ chồng.

Phòng tắm được lựa chọn gam màu kem chủ đạo, lắp thêm kính tạo nên sự thoáng đãng và sạch sẽ cho không gian.

Vì là phòng ngủ dành cho con trai, nên gia chủ đã thể hiện sự tinh nghịch thông qua màu sắc, cách bài trí các bức tranh trên tường đầu giường đủ để biến không gian riêng tư của bé trở nên năng động.
Bên cạnh đó, phòng sinh hoạt chung của gia đình được bố trí ở giữa, kết hợp với giếng trời, giúp gia đình có những giây phút sum họp cùng nhau. Màu trắng chủ đạo giúp không gian phòng sinh hoạt chung thêm sáng hơn.
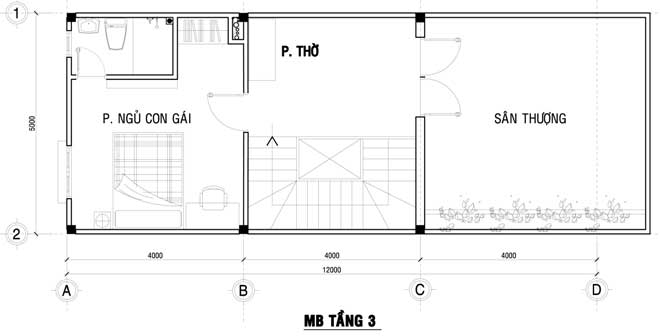
3.3. Không gian tầng 3 nhà phố 3 tầng 80m2
Riêng tầng 3, gia chủ đã cho bố trí phòng ngủ dành cho con, cùng phòng thờ và khoảng sân thượng rộng thoáng để trồng cây, làm nơi thư giãn thoải mái.

Cũng giống như hai phòng ngủ còn lại, phòng ngủ của con gái cũng được thiết kế phòng vệ sinh riêng để chủ nhân căn phòng có thể sự riêng tư, thuận tiện trong sinh hoạt hàng ngày.
Phòng ngủ của bé gái với màu xanh lá cây và họa tiết hoạt hình ngộ nghĩnh trên chăn, ga, gối. Hệ tủ lưu trữ được bố trí cùng góc học tập ngay đầu giường đầy tiện lợi cho bé.
Phòng thờ với nội thất gỗ đơn giản mà sang trọng, để tăng thêm sự trang trọng và phù hợp với phong thủy, gia chủ đã bố trí thêm tranh tứ quý đào cúc trúc mai.

Sân thượng được thiết kế như một công viên thu nhỏ với nhiều loại cây trồng được chủ nhà chăm chút từng tí một.
Xem thêm tin liên quan:

































