Dự toán chi phí xây dựng nhà 2 tầng dành cho ai đang muốn tìm hiểu để có kiến thức xây dựng cho riêng mình 1 căn nhà phù hợp với nhu cầu sinh sống và điều kiện kinh tế có sẵn.
Mẫu nhà phố đẹp này có một điểm nhấn nổi bật đó là mặt bằng có thiết kế mới lạ, mang được lối kiến trúc hiện đại, khuông viên rộng nên toàn công trình có một cái nhìn khá đẹp về mặt bằng toàn cảnh.
Phương án phối cảnh mặt tiền nhà đẹp để cho các bạn tham khảo, nếu muốn xây dựng theo kiểu nhà đẹp giá rẻ này bạn có thể chỉnh sửa sao cho phù hợp với nhu cầu sử dụng của gia đình nhé!

♣ Thiết kế nhà phố 2 tầng với chức năng gồm:
- 3 phòng ngủ
- 2 nhà vệ sinh
- 1 phòng làm việc
- Nhà bếp + phòng ăn
- Phòng khách và 1 phòng sinh hoạt chung

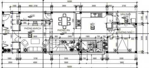
Mặt bằng tầng 1: Với khuông viên tầng 1 chúng tôi đã bố trí phòng khách – phòng ăn – nhà bếp và phòng ngủ ở phía trong cùng. Bên cạnh là phòng ngủ là sân phơi quần áo và phía trên tầng 2 là thông tầng.

Mặt bằng tầng 2: Được bố trí 2 phòng ngủ, phòng sinh hoạt chung của gia đình nằm đối diện với cầu thang, ngay cạnh phòng sinh hoạt chung là phòng làm việc, 1 phòng ngủ ở ngay bên ngoài và 1 phòng ngủ ở cuối tầng 2.
♣ Ước lượng kinh phí xây dựng nhà 2 tầng:
- Phần thô: 350 triệu
- Sơn nước và lót gạch: 30 triệu
- Rèm cửa: 5 triệu
- Giường: 15 triệu
- Tủ bếp: 10 triệu
- Tủ âm tường: 30 triệu
- Salon phòng khách: 10 triệu
- Đèn chiếu sáng: 5 triệu
- Hệ thống cửa sắt: 20 triệu
- Cửa gỗ và cửa nhôm: 15 triệu
- Hệ thống toilet và lavabo: 10 triệu
Tổng cộng khoảng 500 triệu đồng, tùy theo sở thích và điều kiện kinh tế bạn có thể lựa chọn 1 số kiểu nội thất hiện đại khác…


































