Bản vẽ mẫu nhà cấp 4 rộng 7m đẹp Lung Linh. Với hình ảnh chi tiết mẫu thiết kế nhà cấp 4 này bạn có thể đánh giá, đo lường được công năng sử dụng lẫn cách bài trí sao cho phù hợp với nhu cầu sinh sống hiện tại. Căn nhà này được chúng tôi lên phương án với chi phí xây dựng tầm 300 – 350 triệu.

♣ Thông tin chung:
- Diện tích xây dựng: 97m2
- Diện tích khu đất: 400m2
- Kinh phí xây dựng: Nhà đẹp 300 triệu – 350 triệu
- Địa điểm: Đồng Nai
- Chủ đầu tư: Đáo Thanh Nam
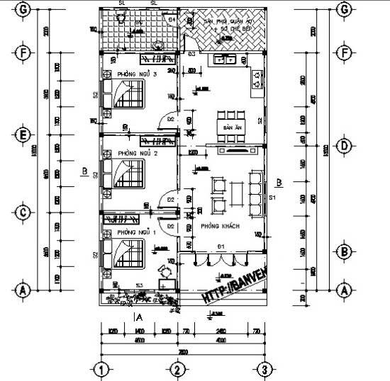
Với lô đất rộng, kiến trúc sư đã sử dụng 100m2 để dành cho việc bố trí phòng ốc cho căn nhà đẹp. Diện tích còn lại tận dụng cho sân bê tông và sân vườn, vừa tạo không gian thoáng mát, còn được bổ trợ làm điểm nhấn cho kiến trúc.

Nhà bố trí 3 phòng ngủ nằm ngay cùng 1 phía, phía còn lại được bố trí dành riêng cho các phòng chức năng như: nhà bếp – phòng ăn – phòng khách…Với việc bố trí không gian hợp lý tận dụng được tối đa diện tích sử dụng.
♣ Đánh giá:
Đây được coi là bản vẽ mẫu thiết kế nhà cấp 4 hiện đại chi tiết nhất, mang được dáng vẽ tự nhiên, không gian thoáng mát từ cây xanh, sân vườn. Kiểu nhà đẹp đơn giản chi phí thi công – xây dựng vừa túi tiền.





















