Mẫu biệt thự có bể bơi thường được xây dựng trong những ngôi nhà có diện tích lớn. Mẫu nhà này đáp ứng cuộc sống tiện tích, thoải mái của những gia đình dư dả. Gia chủ thường có nhu cầu thiết kể bể bơi tại nhà vừa có thể tiết kiệm chi phí đến bể bơi riêng mà còn thuận tiện cho các em nhỏ tập bơi thoải mái. Hồ bơi thường được thiết kế hài hòa với ngôi nhà tạo nên không gian thơ mộng, gần gũi và sang trọng. Cùng Xây Dựng Số tham khảo mẫu biệt thự có bể bơi thông qua bài viết dưới đây nhé
Những điều cần biết khi xây biệt thự có hồ bơi

Vị trí hồ bơi
Phong thủy giúp gia chủ đón được nhiều tài lộc, vì vậy vị trí đặt bể bơi cho biệt thự 3 tầng thường là ở phía trước biệt thự. Nếu nhà bạn hướng sơn thì khi thiết kế sân vườn nên đặt hồ bơi ở phía sau nhà và không phải lúc nào đặt hồ bơi cũng tốt nhất vì nó giúp chuyển hóa năng lượng xấu. Trước cửa nhà. Khoảng cách hợp lý nên thiết kế bể bơi cách nhà 30 m.
Hướng hồ bơi
Một hồ bơi được đặt đúng vị trí sẽ làm giảm năng lượng tiêu cực trong hồ bơi. Vì vậy, các hướng phù hợp nhất để bố trí bể bơi trong biệt thự là hướng Đông và Đông Nam, vì chúng thuộc hành Mộc và tránh hướng Nam (Hỏa) trong phong thủy. Việc chọn hướng đặt hồ bơi rất quan trọng, chọn sai hướng sẽ dễ gây nguy hiểm, hao tài tốn của thay vì tốn sức.
Kích thước của hồ bơi
Khi thiết kế biệt thự 3 tầng có hồ bơi, nếu hồ bơi quá rộng so với ngôi nhà, vì năng lượng âm của hồ bơi lấn át năng lượng dương của ngôi nhà. Kích thước không cố định theo sở thích của gia chủ, tuy nhiên để giữ được sự cân đối về mặt phong thủy, bạn cần cân nhắc xây nhà có diện tích nhỏ hơn diện tích của ngôi nhà.
Hình dạng bể bơi
Hình dạng tốt nhất trong Phong thủy là uốn cong, tròn, bầu dục và cong. Đặc biệt đối với hồ bơi biệt thự, hồ nước trong không gian xây dựng nói chung, việc lựa chọn hình dáng vuông vắn, sắc cạnh tuy đẹp về mặt thẩm mỹ nhưng lại không tốt về mặt phong thủy, dễ mang lại năng lượng xấu. Đặc biệt lưu ý khi thiết kế bể bơi trong nhà nên là hình đa giác, không được có góc nhọn. Nhưng hiện nay những mẫu biệt thự vuông vắn rất được ưa chuộng, gia chủ thường đặt những chậu cây ở những góc nhà để hóa giải những điều xấu nhờ khả năng cân bằng nguồn năng lượng.
Mẫu biệt thự 2 tầng bể bơi hiện đại

Một phần nhỏ phía trước và bên hông làm sân lát gạch đỏ. Tận dụng để xe, chậu cây, khu vui chơi trẻ em. Hồ bơi cạnh nhà có sân vườn rộng và bên cạnh hồ bơi được xếp hàng cau tạo bóng mát. Do nhà có trẻ nhỏ nên giữa hồ bơi và sân trước có hàng rào sắt kiên cố. Điều này chỉ có thể thực hiện được nếu người lớn có thể tập bơi vì lý do an toàn. Ngôi biệt thự 2 tầng có bể bơi được thiết kế mái thái hiện đại. Hình thức kiến trúc vững chãi với các hàng cột đối xứng ở mặt tiền và mặt bên của ngôi nhà rất hút mắt người nhìn. Đây là dòng cuối cùng tạo ra các cạnh của mảng khối.
Tầng 2 có ban công đặt trước nhà, ban công góc chữ L, một số sân chơi đua ra phía ngoài. Các ban công được gia cố bằng lan can khung thép hỗ trợ. Ban công ở góc chữ L có mái che bằng bê tông sơn giả gỗ. Gia chủ có thể dùng để treo chậu lan hoặc chậu trồng cây leo. Vừa tạo năng lượng vừa tạo bóng mát để gia chủ có thể ngồi đây ngắm cảnh. Mái thái hình chữ T, mái che ban công nằm tách biệt với mái chính tạo điểm nhấn ấn tượng cho ngôi biệt thự 2 tầng có bể bơi. Hệ thống mái đổ bê tông đè lên vì kèo sắt sau đó là lớp ngói nung bên ngoài. Nó rất phù hợp với khí hậu nhiệt đới của nước ta. Việc sử dụng mái dốc tiêu chuẩn ngăn chặn nước đọng thoát rất nhanh ngay cả khi có mưa bão, làm giảm tuổi thọ của công trình.
Việc sử dụng kỹ thuật số màu xanh lam trên mái mang lại cảm giác gần gũi nhưng không thiếu đi sự hiện đại. Hệ thống mái thái xanh này nổi bật trên tông màu trắng chủ đạo. Theo yêu cầu của chủ nhân ngôi biệt thự trẻ trung, thanh cao. Màu trắng tương phản với các bậc và sàn đá đen. Hệ thống cửa làm bằng chất liệu khung gỗ màu nâu kết hợp kính cường lực trong suốt; Nó nằm đều ở cả ba mặt của ngôi nhà. Vì vậy, không gian từng phòng chức năng bên trong luôn thông thoáng, mát mẻ.

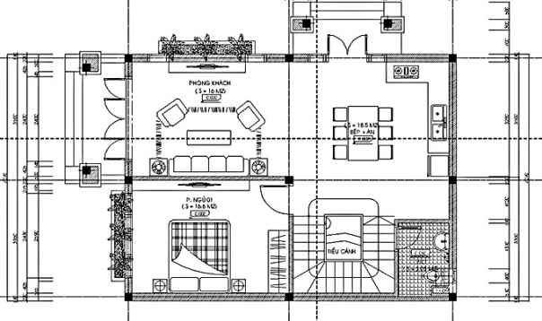
Tầng 1: Được kiến trúc sư thiết kế 3 cửa, khu bếp ăn có 2 cửa ra vào. Cửa bốn cánh rộng rãi dẫn đến khu vực tiếp khách. Cạnh phòng bếp là phòng vệ sinh riêng với một phòng ngủ dành cho ông bà.

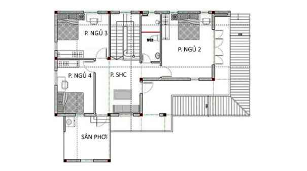
Tầng 2: Khu vực nghỉ ngơi của gia đình quây quần Tầng 2 gồm 3 phòng ngủ, 1 phòng SHC + bàn thờ. Ngoài ra còn có một sân phơi đua ra phía có mái che. Một phòng tắm nằm giữa cầu thang và phòng ngủ của bố mẹ
Mẫu biệt thự sân vườn có hồ bơi

Xung quanh hồ bơi hình chữ nhật có những chiếc ghế dài để chủ nhân và bạn bè có thể tắm nắng và trò chuyện vào cuối tuần. Biệt thự được xây hai tầng theo dạng địa thế tạo sự bền vững đồng thời tiết kiệm tối đa diện tích đất xây dựng và chừa không gian để bố trí sân vườn. Phần cửa sổ được tính toán kỹ lưỡng để đảm bảo ba yếu tố. Phong thủy mang lại tài lộc cho chủ nhân và đủ để đón nắng, gió và thông thoáng khí vào bên trong. Ngôi biệt thự 2 tầng đẹp sở hữu khoảng sân vườn xanh mát với những lối đi bằng gạch bao quanh và được quy hoạch hợp lý theo nhu cầu của gia đình. Cây cối, hoa lá xung quanh mang đến không khí trong lành, hài hòa với thiên nhiên, mang đến sự hài lòng tuyệt đối cho gia chủ.
Ngoài công trình chính, khu biệt thự vườn xung quanh có bể bơi được thiết kế thành nhiều dãy nhà nhỏ san sát phòng ăn ngoài trời, phòng xông hơi, nhà nhân viên càng tăng thêm quy mô và trang nghiêm. Phòng tắm mở và khu vui chơi ngoài trời riêng biệt rất độc đáo và đầy màu sắc. Những chậu hoa nhỏ, thảm cỏ xanh mướt sẽ tạo điểm nhấn cho ngoại thất ngôi nhà của bạn đồng thời là sân chơi lý tưởng để trẻ nhỏ trong nhà phát triển khỏe mạnh và thông minh.
Bản vẽ mặt bằng biệt thự vườn tầng 2

- Tầng trệt biệt thự vườn có hồ bơi có phòng khách, phòng ăn + bếp, thu nhỏ, toilet.
- Leo cầu thang lên phòng khách rộng rãi với đồ đạc sang trọng. Đây là nơi chủ nhà thường xuyên gặp gỡ đối tác và mời bạn bè về nhà chơi game nên nội thất cũng được đầu tư khá kỹ lưỡng.
- Phòng ăn và bếp đặt phía sau dẫn ra sân vườn đảm bảo biệt thự vườn luôn thông thoáng và tràn ngập ánh sáng.
- Phòng ngủ ông bà rộng 16,6m có lối đi dẫn lên cầu thang tạo sự gắn bó giữa ông bà và con cháu.
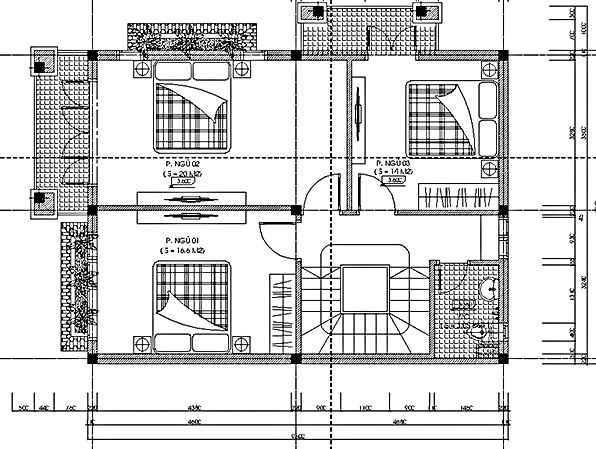
Tầng 2 có 3 phòng ngủ, sảnh tầng và nhà vệ sinh.

- Tầng 2 là khu vực tiếp khách cho các thành viên còn lại trong gia đình, với 1 phòng ngủ rộng 16m dành cho con trai lớn.
- Phòng ngủ 2 rộng 20m do vợ chồng làm chủ. Các phòng đều có ban công rộng rãi mang đến không gian thoải mái để thư giãn và phục hồi năng lượng.
- Trên tầng 2 của Biệt thự sân vườn có hồ bơi Đà Lạt có phòng ngủ rộng 14m cho vợ chồng con út. Tất cả các phòng đều có hướng chung ra cầu thang tạo sự liên kết chặt chẽ.
Thiết kế nội thất bên trong ngôi biệt thự được xây dựng được tính toán để đảm bảo đủ công năng cho nhu cầu sinh hoạt của gia đình, vừa tiết kiệm tối đa diện tích xây dựng vừa mở rộng không gian sân vườn sử dụng. Vì vậy, thay vì bố trí 2 bộ bàn ghế tiếp khách như biệt thự 2 tầng tân cổ điển, biệt thự vườn có bể bơi chỉ sử dụng một phòng khách cạnh cửa ra vào.

Bộ bàn ghế sofa văng nước thấp không cản trở đường đi của ánh sáng và đủ rộng để các thành viên có không gian đọc sách, xem các chương trình giải trí. Nhờ hệ thống cửa kính và kết cấu thông thoáng bên ngoài mà phòng ăn bên trong luôn tràn ngập ánh sáng tự nhiên. Đèn nghệ thuật làm bừng sáng phòng ăn vào ban đêm. Phòng bếp được đặt cạnh bàn ăn và được thiết kế mở giúp không gian nội thất biệt thự thêm thông thoáng và tiện nghi.

Thiết kế bếp thông với phòng ăn không chỉ thuận tiện trong việc di chuyển, nấu nướng mà còn giúp tiết kiệm diện tích, rút ngắn khoảng cách và thời gian từ bếp đến phòng ăn. Nhìn vào phòng ăn của biệt thự vườn có bể bơi, bạn sẽ không khỏi bất ngờ bởi hệ thống đèn chiếu sáng nhấn nhẹ dưới trần và sàn làm nổi bật những điểm nhấn mà các kiến trúc sư mong muốn.

Hoàn toàn đắm chìm trong không gian phòng ngủ chính của biệt thự vườn hiện đại, đầy phiêu lưu. Sự đột phá được tạo nên với chiếc giường thấp, ghế sofa cạnh giường và bức tranh treo tường tạo nên sự khác biệt. Diện tích phòng ngủ 20m2 cũng là yếu tố quan trọng thổi bùng sức sáng tạo của kiến trúc sư, mang đến sự hài lòng tuyệt đối cho vợ chồng chủ nhà.

Ở các phòng ngủ khác trong biệt thự vườn, trần nhà được đẩy từ sàn lên nhờ mảng tường đầu giường được trang trí đặc biệt. Một chiếc bàn được gắn vào tường để tiết kiệm diện tích.

Nhìn chung, căn phòng gọn gàng, đơn giản, không cầu kỳ, kiểu cách và chú trọng đến các tính năng mang đến sự thoải mái tối đa cho người sử dụng để lấy lại năng lượng sau này. Nội thất còn thiếu đã giúp phòng ngủ thứ 3 trở thành nơi yên bình cho con gái gia chủ nghỉ ngơi. Cũng như những không gian nội thất khác trong biệt thự, phòng ngủ của cô gái kỹ tính vẫn trung thành với gam màu trung tính hài hòa, dịu mát tạo cảm giác tươi sáng.
Trên đây là mẫu biệt thự có bể bơi đẹp mà Xây Dựng Số muốn gửi đến bạn. Hy vọng bạn sẽ tìm được nhiều ý tưởng hay cho ngôi nhà sắp tới của mình nhé!


































