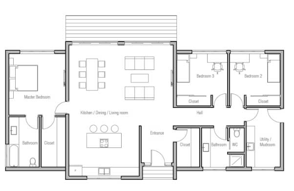
Mẫu biệt thự mái bằng chữ U


Đây là mẫu biệt thự rất sang trọng và đẹp.Mang vẻ đẹp châu âu hiện đại, sử dụng các hình khối cơ bản, trang trí đơn giản nhưng tinh tế. Căn biệt thự có phần tường sơn màu trắng, xám xen kẽ các mảng tường được ốp đá xám, mảng tường sử dụng diện tích kính lớn, tạo tầm nhìn xa từ bên trong . Căn nhà có cấu trúc hình chữ U. 1 bên là 1 dãy 3 phòng ngủ và các nhà vệ sinh riêng. bên còn lại là các phòng khách , phòng bếp , phòng ăn .chính giữa là khu vực sinh hoạt chung và nối liền 2 khối nhà với nhau .trước căn nhà là 1 hồ cảnh chạy dọc đường trục giữa.Xung quanh là sân vườn rộng rãi.
Mẫu biệt thự mái bằng 3 phòng ngủ


Căn biệt thự tạo ấn tượng bởi vẻ ngoài thu hút nhờ cách sử dụng màu sắc và vật liệu. Mặt tường được ốp bằng đá ganit vân nâu, cửa chính rộng, sử dụng các mảng kính lớn , viền kim loại phủ đen . Đem đến 1 tổng thể đơn giản nhưng rất sang trọng. Mặt bằng biệt thự bao gồm 1 phòng khách , phòng bếp và phòng ăn thông với nhau , 1 phòng ngủ lớn + 1 phòng tắm vệ sinh + phòng quần áo , 2 phòng ngủ nhỏ , nhà vệ sinh , tắm , phòng kho
Mẫu biệt thự mái bằng hình chữ T


Căn biệt thự có cấu trúc khá lạ mắt hình chữ T. Phần chan chữ T là tổng 3 phòng sinh hoạt chung : phòng khách , phòng bếp , phòng ăn thông với nhau , 3 mặt đều là kính tạo cảm giác thông thoáng và tầm nhìn rộng . phần canh trên chữ T bao gồm gara ,2 phòng ngủ nhỏ , nhà vệ sinh , 1 phòng ngủ lớn + 2 phòng quần áo cho nam nữ chủ nhà .
Mẫu biệt thự mái bằng hình chữ L


Ưu điểm của dáng biệt thự hình chữ L là tính linh hoạt, phù hợp với nhiều quỹ đất khác nhau, tạo khoảng không gian rất tự nhiên ở lòng hình chữ L làm khu vực sinh hoạt chung , đối với căn biệt thự này , nó được dùng làm hồ bơi và không gian nghỉ dưỡng đặt ghế nằm , tổ chức tiệc ngoài trời cho chủ nhà.
Mẫu nhà hình chữ L giúp việc phân bố các phòng trở nên dễ dàng hơn, đặc biệt là có thể tách biệt các phòng với nhau nhưng vẫn liên thông trong một thể thống nhất chung của ngôi nhà. 1 cạnh của hình chữ L được bố trí làm không gian sinh hoạt chung bao gồm : phòng khách , phòng bếp , phòng ăn , phòng vệ sinh . Cạnh còn lại được bố trí các phòng ngủ + phòng vệ sinh riêng, phòng làm việc , phòng chứa đồ ,…
Mẫu biệt thự mái bằng 1 tầng mini


Một mẫu mã đẹp dành cho những chủ nhà đang có dự định xây biệt thự nhưng diện thích đất có hạn.Cấu trúc ngôi nhà đơn giản , sử dụng màu chủ đạo là trắng , không trang trí cầu kì , đem lại 1 tổng thể gọn gàng , tinh tế . Mặt bằng căn biệt thự bao gồm 2 phòng ngủ, 2 nhà vệ sinh, 1 phòng khách, 1 phòng bếp, 1 phòng ăn. Các căn phòng được bố trí hợp lí, rông rãi và đầy đủ tiện nghi. Phía trước căn biệt thự được xây thêm bể bơi.
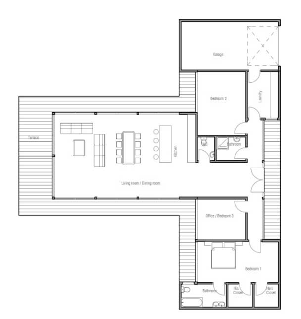
Mẫu biệt thự mái bằng 2 tầng 2 phòng ngủ


Căn biệt thự có cấu trúc vững chắc, đơn giản .Tông màu chủ đạo là trắng, tường sơn trắng được ốp xen kẽ các mảng gỗ, sử dụng nhiều cửa kính lớn . Mặt bằng tầng 1 được bố trí 1 gara lớn ở 1 nửa mặt bằng , bên còn lại là nhà kho , cầu thang bộ dẫn lên tầng 2 . Mựt bằng tầng 2 bao gồm ban công phía trước, không gian sinh hoạt chung thoang nhau : phòng khách , phòng ăn , phòng bếp thông thoáng tiết kiệm diện tích, 2 phòng ngủ kèm nhà tắm + vệ sinh riêng biệt .
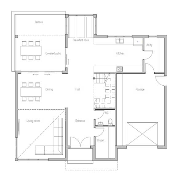
Mẫu biệt thự mái bằng 2 tầng 3 phòng ngủ



Căn biệt thự đem đến cái nhìn đầu về vẻ bề ngoài tiên đầy ấn tượng. Kiến trúc sư đã sử dụng gỗ ốp 70% các mặt tường , phần còn lại là khoảng tường xen kẽ đá đen và các cửa sổ , tường kính lớn được chia thành tỉ lệ đẹp mắt.
Mặt bằng tầng 1 công rình bao gồm phòng khách, phòng bếp , phòng ăn tối , gian ăn sáng ,gara ô tô , phòng kho , sảnh ngoài trời. Mặt bằng tầng 2 bao gồm 1 phòng ngủ chính+ phòng tắm + phòng vệ sinh + phòng thay đồ riêng biệt , 2 phòng ngủ nhr , nhà tắm+ vệ sinh , 1 phòng khách sinh hoạt cho tầng 2.
Mẫu biệt thự mái bằng 2 tầng 4 phòng ngủ


Căn biệt thự mang phong cách châu âu, hiện đại sang trọng , cấu trúc tương đối phức tạp. Bề mặt tường sử dụng ốp đá xen kẽ các khoảng tường sơn xám, sử dụng gôc cho trần nhà, cửa chính và viền các cửa sổ lớn bằng kính .
Mặt bằng căn biệt thự tầng 1 bao gồm 1 gara để xe lớn , 1 phòng ngủ lớn cho chủ nhà + phòng tắm + phòng vệ sinh + phòng thay đồ , phòng khách , phòng bếp + phòng ăn . Oử ngay lối chính vào nhà là 1 cầu thang dẫn lên tầng 2 , mặt bằng tafang2 bao gồm 3 phòng ngủ , 1 căn phòng nhỏ làm bếp và 1 sân sinh hoạt ngoài trời rộng phía trên gara.
Xem thêm:
Mẫu nhà biệt thự 2 tầng mái lệch




















