Trong thời gian gần đây, những thiết kế thi công nhà biệt thự 2 tầng luôn được nhiều gia chủ quan tâm. Bởi khó có mẫu nhà nào lại toát lên sự hiện đại, sang trọng, bề thế đến vậy. Trong phạm vi bài viết này, công ty kiến trúc Wedo trân trọng giới thiệu đến quý bạn đọc một mẫu nhà biệt thự 2 tầng mái lệch kinh phí 2,5 tỷ tại Gia Lâm.
* Thông tin yêu cầu tư vấn:
Vào một buổi sáng đẹp trời, chúng tôi nhận được cuộc gọi của anh Bách đến số máy của công ty. Anh trình bày như sau:
- Chào công ty, mình tên là Bách hiện tại đang sinh sống và làm việc tại Gia Lâm, Hà Nội. Tôi gọi đến đây rất mong được tư vấn một mẫu nhà phù hợp để xây vào năm sau. Diện tích ô đất khoảng 200m, tôi muốn thiết kế một mẫu nhà biệt thự 2 tầng với 3 phòng ngủ và 1 phòng thờ. Công năng dự kiến của tôi định sắp xếp như sau: Tầng 1 bao gồm sân trước, khu vực để xe, phòng khách, phòng bếp, phòng ngủ 1 và 1 nhà vệ sinh chung. Tầng 2 tôi muốn xây 2 phòng ngủ, 1 phòng sinh hoạt chung, 1 phòng làm việc, 1 phòng thờ và 1wc chung
- Nhìn chung do đất ở Hà Nội nên tôi không muốn mẫu nhà bị lỗi thời. Phong cách kiến trúc phải hiện đại nhưng phải độc đáo và khác biệt. Hình khối phải bề thế, vững chắc thể hiện sự ấm cúng và sang trọng. Kinh phí đầu tư mong muốn là khoảng 2.5 tỷ. Đó là những dự kiến ban đầu của tôi. Rất mong công ty sớm lên phương án thiết kế cho gia đình!
Phương án thiết kế mẫu nhà biệt thự 2 tầng mái lệch hiện đại
Sau khi nhận được cuộc gọi của anh Bách, nhân viên chăm sóc khách hàng của chúng tôi đã nhanh chóng thu thập thông tin và hẹn anh Bách 1 buổi sớm nhất để cùng trao đổi. Gia Lâm là một huyện nằm cách trung tâm thành phố không quá xa, thế nên việc di chuyển phía công ty chúng tôi khá dễ dàng. Chúng tôi đã nhanh chóng cử cán bộ sang Gia Lâm để khảo sát và tư vấn trực tiếp cho anh Bách.
Những đánh giá ban đầu về ô đất của anh Bách khá tốt. Đó là ô đất khá vuông và đẹp, nền đất thoáng, có nhiều cây xanh thoáng án, rất thích hợp để thiết kế mẫu nhà biệt thự. Nền đất rất rắn chắc, do đó phương án thiết kế móng băng nhanh chóng được triển khai.

Thi công nhà biệt thự 2 tầng hiện đại với kinh phí đầu tư 2,5 tỷ đồng
Chúng tôi đã lên phương án chọn ngay gạch xi măng cho căn nhà này để đảm bảo sự bền chắc cho khối tường của ngôi nhà. Phương án thiết kế nhà ở biệt thự 2 tầng mái lệch giật cấp 3 khối sẽ là điểm nhấn để tạo nên sự khác biệt của căn nhà so với mặt chung những thiết kế xung quanh đó. Với kết cấu mái này chúng tôi tin rằng hình khối của mẫu nhà sẽ cân đối và kiên cố hơn, sang trọng hơn rất nhiều.
Gặp lại anh Bách tại một quán cafe ở trung tâm thành phố. Anh được chúng tôi đưa ra mẫu thiết kế sơ lược. Anh Bách đã đồng ý ngay lập tức, anh yêu cầu chúng tôi sớm hoàn thiện hồ sơ thiết kế, chuyển sang giai đoạn triển khai thi công cho gia đình anh. Vì đang thời điểm cuối năm, sang đầu năm gia đình anh xây nhà là vừa đẹp.

Phối cảnh mặt tiền căn biệt thự mái lệch
Trao đổi với anh Bách, chúng tôi đã đưa ra những phương án ban đầu cho ngôi nhà hiện đại này. Hình khối kiến trúc ngôi nhà phải cân đối với những khối vuông được phân chia rõ ràng. Khối bê tông tầng 2 và mái được đổ rộng hơn so với tầng 1 lên đến 2m. Chính sự đua rộng của khối trần và sàn này đã giúp cho ngôi nhà cân đối, khỏe khoắn và hiện đại hơn rất nhiều.
Không giống như kết cấu mái thông thường. Đối với ngôi nhà này, mái lệch giật cấp giúp cho ngôi nhà nổi bật hơn so với thiết kế của những mẫu nhà 2 tầng đẹp thường thấy. Việc sử dụng mái lệch với yêu cầu kỹ thuật cao và thời gian thi công lâu hơn, tuy nhiên sẽ giúp cho kết cấu ngôi nhà từ móng cho đến mái nhà luôn đảm bảo sự vững chắc, bền bỉ với thời gian. Ngôi nhà toát lên sự bề thế và kiên cố và hiện đại hơn rất nhiều. Với lối nhà này, chúng tôi sử dụng kính cường lực dày 12m để thiết kế lan can kính cho ban công. Loại kính này rất kén mẫu nhà thế nên lựa chọn phương án này giúp toát lên sự hiện đại, trang nhã và thanh lịch của kiến trúc đương đại.
Toàn bộ ngôi nhà hệ thống kính sẽ chiếm đa số để thể hiện sự hiện đại trong lối thiết kế. Chúng tôi thiết kế cửa nhôm xingfa cho mẫu biệt thự. Toàn bộ hệ thống cửa nhôm được sử dụng trong này đều là cửa mở trượt, giúp tiết kiệm không gian đồng thời dễ sử dụng và có thể lấy ánh sáng tự nhiên và thoáng khí tốt nhất. Một cặp đôi hoàn hảo giữa cửa nhôm màu vân gỗ hiện đại với thiết kế kiến trúc sang trọng đã giúp cho mặt tiền ngôi nhà biệt thự 2 tầng này thực sự thu hút mọi ánh nhìn khi bắt gặp nó.
Việc phối màu cho ngôi nhà cũng khá quan trọng. Màu sắc của nhà biệt thự 2 tầng này khá trang nhã và hài hòa với những tông màu trung tính và gam màu trắng sáng kết hợp với nhau. Công trình này giống như một tòa biệt thự mang đậm dấu ấn và phong cách Châu Âu hiện đại. Các gam màu nổi như vậy chắc chắn sẽ rất phù hợp với ngôi nhà này.

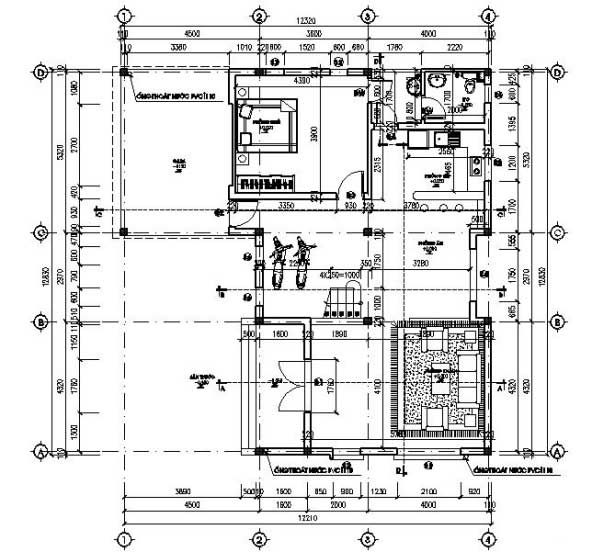
Mặt bằng công năng tầng 1
Đúng như anh Bách mong muốn có một khoảng không gian rộng trước cửa nhà, chúng tôi đã khéo léo thiết kế thêm những chậu cây cảnh và cây hoa vô cùng đẹp mắt. Bên dưới tầng 1 làm nơi để xe ô tô cho anh Bách. Từ chỗ để ô tô có lối đi thông vào khu vực để xe máy cho các thành viên khác trong gia đình, rất thuận tiện, an toàn và sạch sẽ.
Bắt đầu từ sân bước vào đó là không gian phòng khách với bộ bàn ghế sofa hiện đại cùng chiếc bàn trà được cách điệu mang đậm chất nghệ thuật. Sâu bên trong qua cầu thang là không gian phòng bếp kết hợp với bàn ăn rộng 24m. Tiện nghi của ngôi nhà được sắp xếp khoa học, đảm bảo cho quá trình lưu trữ, chế biến thức ăn được thuận tiện nhất có thể cho người nội trợ. Phía trong góc nhà được bố trí 1 nhà vệ sinh chung, với thiết kế rộng 10m, nội thất đầy đủ, đáp ứng nhu cầu sinh hoạt của phòng ngủ tầng 1 và các thành viên khí có nhu cầu.
Tại tầng 1 chúng tôi đã thiết kế phòng ngủ 1 rộng 16m2, đây là không gian phòng ngủ này là phòng ngủ chính cho 2 vợ chồng anh Bách, nội thất được thiết kế sang trọng với gam màu trung tính, 2 tab đầu giường giúp cho không gian thêm cân bằng. Và anh chị sẽ có những phút giây thoải mái nhất trong căn phòng ngủ của mình.

Mặt bằng công năng tầng 2
Chúng tôi đã thiết kế tầng 2 với 2 phòng ngủ, 1 phòng ngủ rộng 12m và phòng ngủ rộng 16m. Phòng ngủ rộng 16m có cửa ra ban công rộng nhất trên tầng 2, chính là khối đua che phần gara ô tô của anh Bách. Phòng ngủ nhỏ 12m cũng có lối ra ban công nhỏ để hóng gió. 2 phòng ngủ này đều được thiết kế dành cho 2 cô con gái của anh Bách. Gam màu tươi sáng và đẹp mắt chắc chắn sẽ khiến 2 cô con gái vô cùng thích thú.
Không gian phòng thờ được thiết kế rộng 12m, có cửa hướng ban công chính mặt tiền để tạo sự thông thoáng và lấy sáng cho căn phòng. Ngay phía cầu thang gần khoảng thông tầng là không gian sinh hoạt chung của cả gia đình mỗi tối, phòng sinh hoạt chung được thiết kế bộ ghế sofa màu ghi, kệ sách âm tường và chiếc tivi màn hình led 100 inch. Từ phòng sinh hoạt chung đi vào trong là phòng làm việc riêng của anh Bách với thiết kế 10m2. Đi sâu vào trong là nhà vệ sinh chung cho cả gia đình.
Chắc hẳn nhiều người thắc mắc tại sao chúng tôi lại không thiết kế khép kín. Bởi muốn tối ưu nhất không gian sử dụng của các căn phòng sao cho rộng nhất, cho nên mỗi tầng chỉ cần thiết kế một nhà vệ sinh rộng, nội thất đầy đủ là được. Và chắc chắn việc vệ sinh chung như vậy cũng không ảnh hưởng đến sinh hoạt chung cho cả gia đình.
Từ khi thiết kế đến lúc hoàn thiện mẫu nhà biệt thự 2 tầng của anh Bách hoàn thiện trong vòng 8 tháng. Một ngôi nhà khang trang, hiện đại và sang trọng đã trở thành hiện thực đối với gia đình anh. Niềm vui của các thành viên gia đình khi được dọn đến nơi ở mới. Nhận chìa khóa trao tay công trình từ công ty chúng tôi.
Đến nay đã gần 3 năm, cả gia đình đang sống và sinh hoạt trong ngôi nhà đẹp mà chưa có bất cứ phàn nàn gì về mẫu thiết kế cũng như là cách bố trí nội thất của chúng tôi. Thỉnh thoảng anh vẫn liên lạc để chia sẻ những điều thú vị về ngôi nhà mới này.
Để được tư vấn chi tiết hơn về những mẫu nhà biệt thự 2 tầng giống như anh Bách, quý khách hàng vui lòng liên hệ với chúng tôi, để được kiến trúc sư tư vấn chi tiết và cụ thể hơn! Hy vọng sẽ được đồng hành cùng bạn trên con đường xây dựng tổ ấm cho gia đình mình.
Nguồn tin: https://wedo.vn/
Có thể bạn muốn xem:
- Mẫu nhà biệt thự 2 tầng 100m2
- Mẫu nhà 2 tầng lợp ngói đẹp 800 triệu
- Mẫu nhà biệt thự 2 tầng mái lệch 8x17m


































