Mỗi tòa nhà được sinh ra với dấu ấn và vẻ đẹp riêng, được thể hiện qua phong cách kiến trúc cũng như phong cách mà dự án hướng đến. Theo đó, bất kỳ thiết kế nào khi được giới thiệu đều không thể làm hài lòng mọi khách hàng, bởi vì tùy thuộc vào sở thích, liệu người ta có thấy phù hợp hay không. Đó là lý do mà dù bản vẽ thế nào, nhận được phản hồi chúng tôi vẫn rất tự hào vì đó là sự nhiệt tình và quá trình nghiên cứu sáng tạo. Dưới đây là một bằng chứng cụ thể cho điều đó, thiết kế biệt thự nhà phố 3 tầng mái thái 8x15m mà chúng tôi giới thiệu là kết quả của quá trình sáng tạo liên tục, mong muốn tạo ra một không gian hợp lý và thuận tiện và tối đa hóa cuộc sống.
Thiết kế biệt thự 3 tầng mà chúng tôi giới thiệu cho khách hàng của mình được xây dựng trên quỹ đất rộng 11x23m, nhưng diện tích xây dựng của biệt thự chỉ là 8x15m bởi chiều dài rộng nhất và ngắn nhất của biệt thự. Biệt thự. Không gian còn lại sẽ được sử dụng để làm vườn, hiển thị cảnh quan nhỏ hoặc quy hoạch hệ thống cảnh quan xanh và sạch hơn.
Một phần của khu vườn của biệt thự sẽ thực hiện chức năng điều hòa không khí cho toàn bộ khu vực, mang lại một cuộc sống yên bình, hòa bình tuyệt đối và lợi ích sức khỏe. Dự kiến chi phí xây dựng biệt thự này khoảng 1,5 tỷ đồng. Diện tích biệt thự: 8 × 15, Tổng diện tích sàn: 330m2; Diện tích lô đất: 11x23m

Phối cảnh biệt thự 3 tầng 8x15m
Mặc dù thiết kế của một biệt thự 3 tầng, tầng hầm được xây dựng bên dưới cũng rất tập trung với quy mô lớn, chắc chắn và có cảm giác như bục hỗ trợ cho toàn bộ ngôi nhà. Các tác phẩm xuất hiện ấn tượng và nổi bật nhờ sự sang trọng và bắt mắt bởi vật liệu trang trí. Tầng hầm của toàn bộ không gian được phủ than đen, sẽ có cầu thang đi lên cấu trúc độc đáo.

Mặt bằng tầng hầm
Tận dụng không gian tầng hầm, nơi các kiến trúc sư đã bố trí thêm 1 phòng chung, 1 gara rộng rãi và thuận tiện. Hệ thống cầu thang được xây dựng đẹp mắt và ấn tượng để kết nối với tầng trệt. 1 nhà vệ sinh chung cho toàn bộ sàn được bố trí và đóng cửa hợp lý. Để phục vụ chủ sở hữu, một hồ bơi thông minh sẽ được xây dựng phía sau nhà, các gia đình có thể ngâm mình thư giãn và thoải mái thư giãn trong khu vực này.

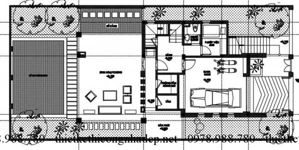
Mặt bằng tầng 1
Trên tầng đầu tiên sẽ bao gồm một phòng ăn, nhà bếp và phòng khách giữa 2 phòng. Đây là không gian cho quá trình sống chung cho cả gia đình. Tầng 1 hoàn toàn ưu tiên xây dựng một nơi để giúp mọi người gắn bó và tập hợp lại với nhau.

Mặt bằng tầng 2
2 phòng ngủ riêng được sắp xếp hợp lý trong không gian này. Vì nằm trong một khu vực rộng lớn, phòng ngủ được xây dựng với một nhà vệ sinh riêng, bao gồm một tủ quần áo lớn. Mỗi không gian có một thiết kế mát mẻ, thoải mái, thế giới mà các thành viên có thể tự mình thư giãn, nghỉ ngơi.

Mặt bằng tầng 3
Mặt bằng công năng tầng 3 của biệt thự sẽ được xây dựng tương tự như tầng hai. Sự khác biệt duy nhất là không gian sàn sẽ thêm một phòng sinh hoạt chung để phục vụ cả gia đình.
Nguồn tin: https://thietkethicongnhadep.net/
Có thể bạn muốn xem thêm:

































