Hiện nay, nhu cầu xây dựng nhà 2 tầng càng ngày tăng cao, nhất là ở khu vực đô thị, thành phố bởi nhà 2 tầng không chỉ mở rộng được không gian sống cho các hộ gia đình mà còn tiết kiệm được một khoảng chi phí xây dựng. Và có lẽ, ý tưởng về mẫu nhà 2 tầng 5m chắc hẳn sẽ là một trong những lựa chọn tối ưu cho các hộ gia đình ở thành thị mà chỉ có trong tay một mảnh đất không quá lớn. Bài viết này nhằm cập nhật, cung cấp một số thông tin về mẫu nhà 2 tầng 5m hiện đại.
Mách bạn những ưu điểm của nhà 2 tầng 5m

Tiết kiệm diện tích xây dựng: vì xã hội ngày càng phát triển, nhu cầu nhà ở cũng ngày một tăng cao nhưng các chủ hộ lại không có quá nhiều đất để xây dựng. Vì thế mà vấn đề mẫu thiết kế nhà ở có yêu cầu nhiều diện tích đất hay không là điều được khách hàng quan tâm hàng đầu.Và tại sao lại không xây nhà 3 – 4 tầng thay vì xây nhà 2 tầng? Bởi lẽ, chỉ với không gian sống 2 tầng đã đủ tiện nghi cho 1 gia đình nhỏ và tiết kiệm được chi phí xây dựng.
Nhà 2 tầng 5m hiện nay đang là giải pháp tối ưu nhất giải quyết rất tốt các vấn đề mà chủ đầu tư đang quan ngại. Vì nhà 2 tầng 5m đa số được xây theo kiểu kiến trúc nhà ống hình chữ nhật, diện tích chiều ngang có thể nhỏ, hẹp hơn rất nhiều so với chiều sâu nên rất phù hợp để xây dựng ở những đô thị, thành phố, nơi có quỹ đất hẹp.
Dễ dàng trang trí, thiết kế: kiểu kiến trúc nhà 2 tầng 5m hiện nay đang rất đa dạng về phong cách cũng như kiểu dáng thiết kế. Bạn có thể tự tay chọn lựa và thiết kế cho mình một căn nhà ưng ý tùy theo sở thích hoặc có thể nhờ đến bàn tay của chuyên gia, các kiến trúc sư để đưa ra bản thiết kế ưng ý nhất.
Tiết kiệm thời gian thi công: đa số các mẫu nhà 2 tầng 5m đều không mất quá nhiều thời gian thi công. Nhưng bạn phải có một đội ngũ công nhân xây dựng lành nghề, chắc tay và nhiệt tình trong công việc thì thời gian xây dựng mới đảm bảo rút ngắn và chất lượng của căn nhà không bị thiệt hại về lâu dài.

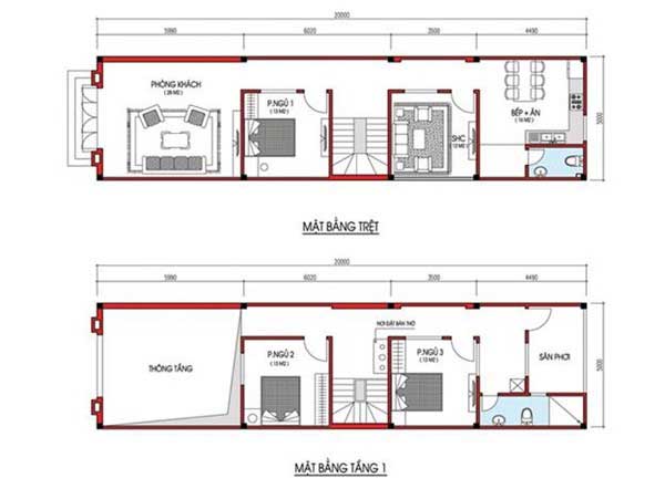
Mặt bằng thiết kế của mẫu nhà 2 tầng 5m:
Tầng 1 bao gồm phòng khách, phòng ăn + bếp, 1 phòng ngủ, phòng vệ sinh chung và toilet chung phía cuối nhà.

Tầng 2 bao gồm 2 phòng ngủ, 1 toilet chung, phòng thờ và sân phơi phía sau nhà.
Các mẫu nhà 2 tầng 5m phong cách hiện đại phù hợp với gia đình trẻ

Mẫu nhà 2 tầng 5m mang vẻ đẹp hài hòa, nổi bật ở nét hiện đại năng động. Mặt tiền tầng 1 được thiết kế lắp đặt hệ thống cửa nhôm kính kích thước lớn, xung quanh áp đá granit màu vàng bóng rất sang trọng. Kiến trúc tầng 2 được thiết kế bởi các mảng khối hình nổi tạo hiệu ứng khỏe khoắn, chắc chắn cho căn nhà. Gam màu xanh nhạt làm chủ đạo cùng màu vàng bóng của tầng dưới làm tăng thêm độ tương phản, khiến căn nhà trở nên thẫm mỹ hơn. Không chỉ hài hòa về vẻ đẹp, căn nhà còn thể hiện được sự thông thoáng nhờ các hệ thống đón ánh sáng tự nhiên và bắt gió. Ban công rộng rãi, có thể tận dụng để trang trí chăm sóc cây cảnh, giúp cuộc sống của chủ hộ thêm hoàn hảo và chất lượng hơn.

Nổi bật bởi vẻ ngoài sang trọng, gam màu nâu bóng, xám, đen và trắng là sự kết hợp hoàn hảo. Ngoại thất của căn nhà được trang trí sinh động, với các đường nét chính là những mảng sọc, hoa văn cơ bản tuy khô khan nhưng khi lồng ghép vào căn nhà lại trở nên năng động, hiện đại. Để tận dụng không gian sống cho căn nhà, phía trên cùng còn có 1 ban công nhỏ, rất tiện nghi mà còn thẫm mỹ. Kiến trúc ban công rộng rãi, có lắp đặt bồn trồng hoa phía trước để đưa thiên nhiên vào trong căn nhà, tạo nên không gian sống mát mẻ, yên bình nơi phố thị đông đúc.

Nét đẹp thanh lịch, khỏe khoắn từ màu sắc cho đến đường nét thiết kế đã gây được ấn tượng tốt trong mắt người nhìn. Lấy màu trắng làm gam màu chủ đạo, căn nhà mang đến sự nhẹ nhàng, đẹp mắt nhưng không quá rườm rà bởi ngoại thất trang trí. Thiết kế mái bằng phù hợp với xu hướng hiện đại, nhìn tổng thể căn nhà rất sang trọng, là ý tưởng mới mẻ cho các hộ gia đình hiện đại ngày nay.

Mẫu nhà 2 tầng 5m mang phong cách năng động hiện đại khỏe khoắn nhưng không quá cầu kì trong khâu trang trí ngoại thất. Căn nhà chủ yếu sử dụng mảng khối bê tông để thiết kế kiến trúc nên nhìn rất năng động, hệ thống kính cường lực được lắp đặt ở các cửa chính, thành ban công rất sang trọng và hiện đại. Gam màu trắng, nâu ha lẫn màu xám đậm tạo lên nét tương phản, khiến căn nhà trở nên tươi sáng hơn và đẹp mắt hơn rất nhiều. Chỉ vỏn vẹn có 5m nhưng căn nhà 2 tầng đã phát huy được những công năng tiện ích, khiến cuộc sống gia chủ trở nên thoải mái trong quá trình sinh hoạt cũng như làm việc.

Với mặt tiền 5m được thiết kế thông thoáng, thoải mái. Kiến trúc của căn nhà được xử lí đơn giản về hình khối cũng như các mảng khối, không cần phải quá rườm rà và cầu kì vì chỉ cần nhìn cho hài hòa đẹp mắt là đã có thể tối ưu được một ít chi phí trong quá trình xây dựng. Ngôi nhà có sân trước, khối dầm tầng 2 và dầm ban công đua rộng, đảm bảo được độ bao phủ cho khoảng sân phía trước không bị hắt nắng vào và có thể tận dụng làm nơi để xe – phương tiện đi lại hàng ngày cho các thành viên trong gia đình. Công năng của căn nhà này khá đơn giản, thiết kế phòng khách, bếp, khu giặt phơi ở tầng 1 và trên tầng 2 được thiết kế 2 phòng ngủ cùng phòng thờ, ban công đảm bảo được một không gian sống thông thoáng, đón nhận được nhiều ánh sáng tự nhiên nhưng vẫn đảm bảo phân bố đều cho các không gian khác ở phía bên trong căn nhà.

Căn nhà 2 tầng 5m có thiết kế tầng 1 khá đơn giản và tận dụng chủ yếu ánh sáng tự nhiên bên ngoài. Nguyên liệu chủ yếu sử dụng để lắp đặt hệ thống cửa là kính cường lực trong suốt nhằm mục đích đón nhận ánh sáng bên ngoài 1 cách tốt nhất. Để đảm bảo an toàn, còn lắp đặt hệ thống cửa sắt – cửa cổng, làm căn nhà trở nên hiện đại, năng động nhưng vẫn phát huy được những công năng tiện ích cho chủ hộ. Bên cạnh đó, căn nhà còn chú trọng đến việc đưa thiên nhiên vào trong không gian sống cho con người, mảng tường được thiết kế có lắp đặt chỗ để trồng cây, nhìn rất mới mẻ mà dễ chịu, phía trên ban công còn có một bồn cây dài để trang trí cho căn nhà thêm đẹp và lạ mắt. Nhìn tổng thể căn nhà khá hài hòa và trẻ trung, là kiểu nhà mà các hộ gia đình đang rất ưa chuộng hiện nay.

Vẻ đẹp đầu tiên đập vào mắt mọi người chính là sự thanh thoát, tinh khôi do gam màu trắng chủ đạo của căn nhà làm nổi bật. Phần kiến trúc dạng khối được thiết kế có mái hiên nhô ra phía trước giúp ban công được che bớt ánh nắng trực tiếp chiếu vào. Hệ thống cửa cổng và ban công được làm bằng sắt rất chắc chắn, vừa đảm bảo được độ thẫm mỹ lại góp phần phát huy được những công năng tiện ích, đảm bảo an toàn, an ninh cho người sống bên trong.

Mẫu nhà 2 tầng 5m được thiết kế rất thông thoáng và thoải mái với hệ thống giếng trời, gạch thông gió và cửa kính cường lực trong suốt. Ngoài ra, căn nhà còn thể hiện nét đẹp thanh lịch và trẻ trung bởi gam màu trắng nhẹ nhàng. Kiến trúc tầng 2 được thiết kế độc đáo, mới mẻ. Vì thế mà căn nhà trở nên hiện đại, độc đáo và năng động, là một ý tưởng hay dành cho các cặp vợ chồng trẻ đang lăn tăn tìm kiếm một tổ ấm mới cho gia đình.

Trong màn đêm tối mịt, căn nhà vẫn sáng rực và nổi bật bởi phong cách thiết kế hiện đại và sang trọng. Phần sân trước mặt tiền khá rộng rãi, có thể đậu vừa ô tô và các phương tiện đi lại hằng ngày. Thiết kế sang trọng, gam màu bắt ánh sáng khiến căn nhà trở nên nổi bật và mới mẻ. Là mẫu nhà đẹp trong các kiểu kiến trúc nhà ở mà các hộ gia đình thường tìm.

Nổi bật với phong cách hiện đại, năng động. Căn nhà được thiết kế rất mới mẻ bởi kiến trúc nhà hình khối. Phía trên có dàn che rất thẫm mỹ và hài hòa với thiết kế ngoại thất của căn nhà. Gam màu trắng nổi bật cùng buồng cây xanh trên ban công tầng 2 tạo nên sự yên bình, thoải mái. Giúp cuộc sống của chủ hộ thêm phần thú vị hơn.

Căn nhà 5m được thiết kế theo kiểu nhà hình ống đa hiện đại. Tạo hình được xây dựng chỉnh chu, thể hiện nét đẹp qua sự sắc sảo trong từng chi tiết trang trí. Sử dụng hệ thống cửa kính và các chi tiết ngoại thất của căn nhà bằng kính cường lực giúp căn nhà trở nên sáng sủa, luôn toát lên vẻ đẹp hiện đại, năng động và trẻ trung.

Được thiết kế theo phong cách mái bằng hiện đại cùng gam màu trắng thanh thoát đã làm căn nhà trở nên thanh lịch, năng động và vô cùng sang trọng. Với thiết kế đơn giản, chủ yếu sử dụng cửa kính để lắp đặt khiến căn nhà trở nên hài hòa, nổi bật, bắt được ánh sáng từ bên ngoài vào trong. Là mẫu nhà đẹp và hot đang được các gia đình Việt ưa chuộng ngày nay.
Bài viết trên nhằm cập nhật, cung cấp những thông tin mới nhất và đầy đủ nhất đến với các hộ gia đình đang tìm kiếm các mẫu nhà ở 2 tầng 5m đẹp, tiện nghi, tiết kiệm được chi phí xây dựng nhưng vẫn đảm bảo được kiến trúc và công năng trong quá trình sử dụng. Hi vọng rằng qua bài viết này, bạn và gia đình sẽ tìm được mẫu nhà ưng ý, góp phần xây dựng một cuộc sống thoải mái, tiện nghi.
Xem thêm tin:

































