Gia chủ không sở hữu diện tích quá lớn mà chỉ sở hữu một diện tích đất 70m2 để xây dựng nhà ở với quy mô 2 tầng. Gia chủ vẫn chưa biết nên xây dựng ngôi nhà này theo kiến trúc như thế nào thì cùng theo dõi bài viết dưới đây để khám phá mẫu nhà 2 tầng 70m2 để tìm ra được mẫu nhà ưng ý.
Thiết kế nhà ống đẹp cho mẫu nhà 2 tầng 70m2
Với thiết kế nhà ống dành cho mẫu nhà 2 tầng 70m2 được xem là mẫu thiết kế được áp dụng rất nhiều hiện nay, được gia chủ quan tâm. Cùng xem bố trí mặt bằng cho mẫu nhà này như thế nào?

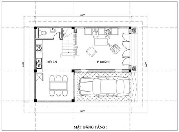
Mặt bằng tầng 1 bố trí: 1 phòng khách, 1 phòng ăn + bếp và 1 nhà vệ sinh.
Gia chủ bố trí sân trước để có thể để được phương tiện cá nhân của mình ngay tại gia. Sau đó mới đến không gian của phòng khách, sử dụng kính cho cửa chính để mang lại không gian thoáng rộng hơn cùng với ánh sáng vào ngôi nhà. Phòng khách được đập thông với không gian bếp + ăn phía sau để mang đến không gian có chiều sâu cho ngôi nhà. Khu vực cầu thang ở giữa để phân cách hai không gian này cùng với nhà vệ sinh được bố trí cùng để tiết kiệm diện tích cho căn nhà. Đằng sau khu vực bếp + ăn là được bố trí cửa ra sân sau, giúp thông thoáng khí và giảm thiểu mùi thức ăn lên không gian phía trước nhà.
Mặt bằng tầng 2 bố trí: 2 ngủ, 2 nhà vệ sinh, không gian thờ.
2 phòng ngủ được bố trí 2 nhà vệ sinh bên trong để đảm bảo độ riêng tư cho người sử dụng. Cầu thang được đặt ngăn giữa 2 phòng ngủ. Ban công trước và sau được sử dụng theo mục đích của gia chủ.

Một mẫu nhà ống ấn tượng với gam màu tối nổi bật lên góc cạnh của khối hình hộp – đặc trưng trong phong cách hiện đại đang được sử dụng cho mẫu nhà 2 tầng 70m2 phía trên. Kiến trúc sư đã chia tách rõ ràng ngôi nhà thành hai phần riêng biệt với 1 bên là nơi để xe với thiết kế gara oto tầng 1 và góc bàn uống nước – đây chính là ban công thứ hai ở khu vực tầng 2 và 1 bên là khu vực sinh hoạt của gia chủ. Mặt tiền tầng 1 sử dụng cửa 1 cánh bằng gỗ kết hợp cửa sổ kính trượt tiện nghi hiện đại. Bên ngoài là hệ thống cửa sơn sắt tĩnh điện đen thông thoáng. Tầng hai với thiết kế lớp chồng lớp, bên ngoài là khung lớn sơn sẫm màu, bên trong là tường sơn trắng với cửa kính 2 cánh trượt, bên trong là lớp rèm khá dày để hạn chế bớt lượng nhiệt vào trong ngôi nhà. Bên ngoài mặt tiền tầng 2, sử dụng ban công với chất liệu kính cường lực hiện đại, chắc chắn, để tăng diện tích cho ngôi nhà. Mẫu nhà này còn sử dụng khối hình dư ra bên tay trái, lắp đặt kính dài dọc theo diện tích này, ốp đá ngăn chân và giữa khu vực 2 tầng.

Kiến trúc tương tự ở mẫu trên, có điểm khác là sử dụng mái ngói thay cho mái bằng. Sử dụng mái ngói thiết kế chữ A, bao phủ toàn bộ bề mặt ngôi nhà, không gây hiện tượng quá đồ sộ về mặt thiết kế, phù hợp với diện tích sàn 70m2. Phần ngăn cách giữa không gian hai tầng cùng với cột trụ ở hàng rào cổng được sơn màu nâu sáng hơn. Ngói chọn màu sẫm phù hợp với tổng thể thiết kế. Với việc sử dụng phần mái, ngôi nhà này mang đến cảm giác cổ điển trong thiết kế.

Vẫn là thiết kế khối chồng khối được sử dụng cho mẫu thiết kế nhà 2 tầng 70m2 nhưng mang đến sự hiện đại. Mặt bằng tầng 1, trước khi bước vào không gian phòng khách sẽ là bậc tam cấp ốp đá hoa cương chắc chắn. Hệ thống cửa kính khung nhôm phân ô chắc chắn, từ bên ngoài có thể thấy được phòng khách bên trong hiện đại, bố trí gọn gàng tiện nghi, cùng với đó là cửa sổ kính nhỏ đặt ở bên trái để thông thoáng khí. Mặt bằng tầng 2, khối bên ngoài ốp đá nâu sẫm hiện đại, ban công kính cường lực, điểm nhấn bồn hoa nhỏ ở cho cửa sổ bên phải, ốp đá vàng sang trọng.

Thiết kế nhà ống cho mẫu nhà 2 tầng 70m2 tiếp theo thu hút bởi việc sử dụng màu sắc khá sặc sỡ bắt mắt.
Mặt tiền cũng có kiến trúc khá giống với hai mẫu phía trên. Khu vực tầng hai gia chủ sử dụng 4 cánh cửa sổ nhỏ để có thể đón lấy ánh sáng cho căn nhà và không sử dụng ban công. Phần diện tích bên gara ô tô ở tầng hai đã sử mái che, ban công sắt sơn tĩnh điện đen tĩnh điện tạo nên không gian thông thoáng. Điểm nhấn là cột trụ ốp đá sần ở khu vực thứ hai này. Không gian nổi bật nhờ vào màu sắc nổi bật, phần nào đó nói lên chủ nhân của ngôi nhà có chút nữ tính, mơ mộng.

Gia chủ hoàn toàn có thể lựa chọn thiết kế với phần ban công rộng ở khu vực tầng 2 dành cho mẫu nhà 2 tầng 70m2 như trên. Với thiết này diện tích ban công tầng 2 đủ để làm nên một khu vườn rộng rãi hoặc trở thành chỗ ăn uống tụ tập bạn bè người thân vô cùng lý tưởng cho gia chủ.
Thiết kế lệch tầng cho mẫu nhà 2 tầng 70m2 xu hướng thiết kế gần đây

Với thiết kế nhà lệch tầng gia chủ có thể tham khảo bố trí như sau:
Với mặt bằng tầng 1: 1 phòng khách, 1 bếp + ăn, 1 phòng ngủ, 1 nhà vệ sinh và 1 gara ô tô.
Kiến trúc sư bố trí gara oto đặt trước nhà vừa thuận tiện lại hợp lý với diện tích sàn 70m2, bên ngoài có hệ thống cổng rào để đảm bảo an ninh cho ngôi nhà. Tiếp đến sau lớp cửa kính cỡ lớn là không gian phòng khách được bố trí với nội thất thông minh. Sau phòng khách là không gian bếp ăn, được nối thông với phòng khách để làm nên không gian thoáng rộng cho ngôi nhà. Gia chủ sử dụng vách ngăn để ngầm ngăn cách hai không gian này với nhau.
Vách ngăn này không làm ảnh hưởng đến ánh sáng vào căn nhà hay lưu thông không khí ngôi nhà. Phòng ngủ được đặt ở vị trí cuối cùng trong căn nhà để không ám mùi và đảm bảo độ riêng tư. Nhà vệ sinh được bố trí bên dưới chân cầu thang, song song với phòng khách để tiết kiệm diện tích.
Mặt bằng tầng 2: 1 phòng thờ, 1 ngủ, 2 nhà vệ sinh, không gian giặt + phơi đồ, 2 phòng ngủ cùng với 2 nhà vệ sinh được bố trí bên trong đảm bảo độ riêng tư cho chính người sử dụng. Không gian giặt và phơi đồ được bố trí cuối nhà. Cầu thang thông tầng được bố trí giữa để phân cách hai không gian phòng với nhau.

Điển hình thiết kế lệch tầng cho mẫu nhà 2 tầng 70m2 sử dụng thêm 1 tum được liệt kê vào top thiết kế xu hướng mới kết hợp không gian xanh hiện nay.

Mặt tiền với nổi bật hệ thống cổng rào với một bên cột trái sơn cam nâu đất, chiếu thẳng vào không gian này phía trong nhà với mặt tiền tầng 2 và tum cũng là màu tương tự - thiết kế đối chiếu ấn tượng. Phần bên phải cột cổng là ốp đá xám màu, ấn tượng sang trọng cùng với sự chắc chắn. Thiết kế lệch tầng được biểu hiện rõ với một bên diện tích hơi nho ra một chút và một bên diện tích lùi vào phía trong, với khoảng hở để làm bên ban công nhỏ cho khu vực tầng hai. Cộng với thiết kế cửa sổ tràn diện tích mang đến không gian thông thoáng, rộng rãi cho khu vực tầng hai của ngôi nhà. Bên trên khu vực tầng tum sử dụng thanh bê tông đặt ngang, sơn trắng với giàn cây leo xanh tạo nên khu vườn xanh, không gian nhà và thiên nhiên được hòa vào nhau một cách tự nhiên.

Mẫu nhà lệch tầng với diện tích sàn 70m2 này lại mang đến nét hiện đại pha lần một chút cổ điển. Với mặt tiền tầng một được bao bọc bên ngoài là cổng rào chắc chắn: Khối hình được sử dụng thành viền khung sơn trắng, lớp cửa sắt 4 cách, điểm nhấn bên trái cổng với lớp tường sơn giả gỗ kết hợp cùng ánh đèn vô cùng nổi bật. Lên không gian tầng 2, khung nhà nối liền với không gian tầng một, diện tích sinh hoạt lùi sâu vào trong để lộ ra ban công với khung bằng kính chắc chắn. Cửa chính với cửa sổ nhỏ được ngăn cách bởi tường được ốp gạch giống như cột nhà, bên ngoài cửa sổ nhỏ là chậu cây với màu sắc nổi bật. Lên trên tầng tum sử dụng ban công khung sắt sơn giả gỗ cùng tone bề mặt trần ốp giả gỗ phía trên. Sử dụng ánh sáng đèn led chiếu sáng điểm mang đến không gian lung linh hơn rất nhiều.

Kiến trúc giống với mẫu nhà phía trên nhưng ở thiết kế này gia chủ bố trí cây xanh nhiều hơn, len lỏi vào từng góc ngách của căn nhà.
Top mẫu nhà 2 tầng 70m2 thiết kế biệt thự chữ L
Với thiết kế chữ L dành cho mẫu nhà 2 tầng 70m2 giúp gia chủ tối đa được diện tích sử dụng, đồng thời kết hợp kiến trúc sân vườn để tăng tính thẩm mỹ cho gia chủ. Vì vậy mà trên diện tích sàn 70m2, người ta hoàn toàn xây dựng căn biệt thự mini đầy đủ tiện nghi, cùng xem cách bố trí mặt bằng cho mẫu nhà này.

Mặt bằng tầng 1 vẫn là không gian: phòng khách, 1 bếp + ăn, 1 nhà vệ sinh và 1 gara oto. Phòng khách với thiết kế rộng rãi, song song là gara oto được đặt kế bên nhà. Khu vực bếp và ăn được bố trí với với hai không gian riêng, rộng rãi, thoải mái cho gia chủ. Nhà vệ sinh đặt cạnh cầu thang, phù hợp với kiến trúc chữ L.

Lên bằng tầng hai được gia chủ bố trí 2 phòng ngủ với 2 nhà vệ sinh bên trong như kiến trúc phía trên để đảm bảo độ riêng tư. Với kiến trúc chữ L, gia chủ sở hữu hai ban công ở mặt tiền, tùy theo nhu cầu cũng như cách bố trí để tăng độ thẩm mỹ cho không gian nhà.

Trên diện tích sàn 70m2, gia chủ lựa chọn xây dựng theo kiến trúc chữ L, phong cách tân cổ điển sẽ làm nên một căn biệt thự mini thu hút.

Gia chủ sở hữu hai ban công, tùy theo sở thích cũng như nhu cầu mà phần ban công này sẽ được bố trí khác nhau. Ví dụ như căn nhà đẹp này, ban công thứ nhất gia chủ sử dụng với tiểu cảnh cây thông thường nhưng đến ban công thứ hai, ngoài cây như ban công thứ nhất, gia chủ còn lắp đặt thêm hệ thống giàn treo với mong muốn làm nên khu vườn treo với bóng cây xanh. Ngôi nhà vừa mang nét đẹp cổ điển vừa mang vẻ đẹp hiện đại

































