Bạn là người chủ gia đình? Bạn có trong tay một khuôn đất đẹp? Tuy nhiên lại băn khoăn không biết nên lựa chọn mẫu nhà nào phù hợp nhất cho các thành viên thân yêu của mình. Vậy quý gia chủ hãy tham khảo ngay mẫu nhà 3 tầng 8x12 đang gây sốt nhất hiện nay. Chúng tôi đảm bảo rằng với bề dày kinh nghiêm và sự tâm huyết trong công việc chắc chắn sẽ không để bạn thất vọng với công trình cả đời này. Hãy tìm hiểu ngay tại bài biết dưới đây để chúng ta cùng có cái nhìn sâu sắc hơn.
Thực tế từ phối cảnh mẫu nhà tầng 8x12m được mong chờ nhiều nhất
Những phối cảnh dưới đây đều là những mẫu nhà 3 tầng 8x12m đẹp nhất và được lựa chọn nhiều nhất cho tổ ấm của mỗi gia đình. Kính mời quý độc giả cùng chiêm ngưỡng.

Đầu tiện là mẫu nhà ống 3 tầng có thiết kế đơn giản, nhưng được gia chủ rát chú ý trồng cây xanh ở mỗi tầng. Điểm nhấn của ngôi nhà là kiến trúc sư đã khéo léo tạo nên những vách tường xếp li rất độc đáo lại làm cho cả công trình thêm mềm mại duyên dáng.

Thiết kế nhà 3 tầng kiểu dáng biệt thự rất sang trọng và nổi bật dưới đây chính là sự góp mặt không thể thiếu của mái thái lợp ngói nghi từ mái cổng cho đến mái nhà. Thêm vào đó là ban công thiết kế kiểu uốn cong hình bán nguyệt cổ điển kết hợp với cổng, tường bao xung quanh cũng đều là những mẫu cổ điển, tân cổ điển được ưa chuộng nhất từ trước đến nay. Một phong cách sống quý tộc đang được diễn ra trong cơ ngơi bề thế này.

Sự khang trang, sang trọng và tiện nghi được thể hiện từ ngoại thất đến nội thất. Không thể rời mắt khỏi ngôi nhà đáng sống như thế này. Tầng 1 được bố trí làm gara để ô tô có lắp cả hệ thống cửa cuốn điện tự động chống trộm an toàn. Phòng khách và phòng ngủ ở trên tầng 2 và tầng 3. Ngôi nhà nổi bật lên sự bề thế qua kiểu kiến trúc hình hộp chắc chắn mà mái thái phân tầng đẳng cấp.

Và đây là một nhà 3 tầng rất phổ biến ở thôn quê. Ngôi nhà bề thế rộng rãi với rát nhiều cửa sổ thông thoáng. Trước mặt tiền phòng khách lắp cửa gỗ thêm sang trọng truyền thống, còn tầng 2 và tầng 3 là một hệ thống cửa nhôm kính khỏe khoắn, trẻ trung và rất kinh tế cho gia chủ. Cũng giống như nhiều ngôi nhà ở quê khác, mẫu nhà 3 tầng 8x12m này cũng chừa hẳn một nửa diện tích tầng 3 làm sân thượng phơi đồ nhất là trong những ngày mưa gió.

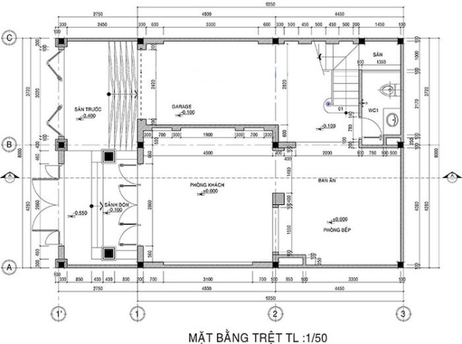
Có gì bên trong bản vẽ mẫu nhà 3 tầng 8x12m
Với những công trình xây dựng ở trình độ cao đòi hỏi đầu tiên chính là bản vẽ chân thực chi tiêt. Đừng ai hoài nghi về tầm quan trọng của nó bởi chính tờ giấy A3 này sẽ quyết định cả một công trình từ khi thi công đến khi hoàn thiện. Đối với mẫu nhà 3 tầng 8x12m mặt tiền khá rộng rãi nên kiến trúc sư đã lên ý tưởng cho việc thiết kế kiểu nhà “ lệch sàn”. Nhà lệch sàn còn được biết đến đến với danh xưng “ăn gian diện tích” vì khi xây nên nó sẽ giúp cho không gian nhà bạn như được mở rộng ra rất nhiều cả chiều dọc cũng như bề ngang. Vì là sàn lệch nên trong cùng một mặt bằng sẽ chia làm 2 phần một phần sàn cao lệch hẳn so với một sàn thấp hơn. Cũng chính vì điều này mà các phòng trong nhà sẽ không thẳng nhau từ tầng 1 lên tầng 3 như sàn bằng kia.

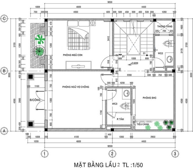
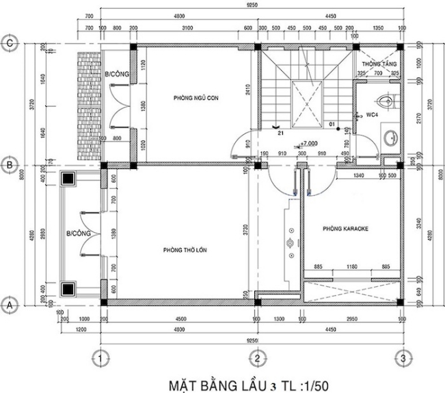
Trong mẫu nhà đẹp này ở mặt bằng tầng 1 được thiết kế với một phòng khách, một phòng bếp và một phòng vệ sinh. Tầng 2 được sắp xếp với 3 phòng ngủ chính và tầng 3 gồm một phòng thờ, hai phòng ngủ và một phòng vệ sinh. Sau sau đâu sẽ là cụ thể cho từng tầng. Đối với mặt bằng tầng 1 dành nguyên một diện tích rộng rãi làm phòng tiếp khách hoặc để gia đình trò chuyện, xem tivi mỗi tối. Phòng khách đối diện cửa chính ra vào có hướng nhìn ra đón ánh sáng rất hợp với phong thuỷ. Tiếp theo là phòng bếp. Đây cũng chính là trung tâm của cả nhà, nơi giữ lửa tổ ấm thiêng liêng của người phụ nữ. Cũng bởi vậy mà nó được thiết kế mất nhiều công sức hơn hẳn những phongd khác với mong muốn sao cho tổ ấm gia đình bạn luôn ấm cúng, sum họp.

Trong phòng bếp được thiết kế thêm một khu vực làm phòng ăn có gắn thêm quạt đồng thời ở đây phải đảm bảo luôn có cửa sổ đi kèm để thoát khí và những mùi nhà bếp ám trong phòng. Và ở cuối là nhà vệ sinh chung cho cả nhà sử dụng. Nhà vệ sinh đa năng có cả phòng tắm, phòng WC, phòng giặt. Lên đến mặt bằng tầng 2, diện tích phòng ngủ phân chia phù hợp với người sử dụng. Phía trước cầu thang là phòng ngủ của bố mẹ cũng là phòng rộng nhất. Trong phòng này có thêm nhà vệ sinh khép kín và thêm một góc làm việc lớn cho bố mẹ yên tĩnh làm việc khi về nhà.

Hai phòng còn lại cho các con có không gian riêng tư của mình để giải trí và học tập hiệu quả hơn. Hai phòng này cũng đồng thời dùng chung một nhà vệ sinh ở gần cầu thang. Còn mặt bằng tầng 3 có đặt một phòng thờ nơi sàn cao nhất trong ngôi nhà và luôn đảm bảo sự trang trọng, thoáng đãng thể hiện sự thành kính của con cháu đối với ông bà tổ tiên. Ngoài ra gia chủ còn bố trí thêm một phòng ngủ nữa ở đây cho khách đến chơi nhà nghỉ qua đêm cũng rất thoải mái.

Qua cách bố trí sắp xếp đầy tính khoa học tại bản vễ trên cho thấy được tài năng và sự sáng tạo của đội ngũ kiến trúc xây dựng trong việc làm hài lòng quý đối tác nhất có thể. Đây cũng là một cách thể hiện trình độ chuyên nghiệp, chuyên môn cao của cả một đội ngũ nhân viên của xaydungso.
Những nội thất không thể bỏ qua của mẫu nhà 3 tầng 8x12m
Trong xu thế hiện đại hóa ngày nay, nhu cầu thẩm mĩ của mỗi người ngày càng được nâng cao nhất là những giá trị tiện ích mang đến cuộc sống thoải mái cho gia đình thì càng được quan tâm hơn nữa. Nói đến đây chắc chắn không thể bỏ qua những đồ dùng nội thất trong ngôi nhà của bạn. Tuy nhiên việc sắp xếp và bày trí nó ra sao cho phù hợp và đẹp mắt lại là điều đáng để lưu tâm. Nếu bạn thực sự đang trăn trở những điều trên thì tại sao thao khảo ngay những không gian nội thất tuyệt vời này.
Đã là mái ấm gia đình Việt thì không thể thiếu đi gian phòng thờ trang trọng thiêng liêng nhất trong mỗi ngôi nhà. Ở đây gia chủ đã thiết kế cho phòng thờ nhà mình gam màu sáng nhã nhặn. Bộ tranh tứ quý treo tường cùng đôi lục bình hai bên như một điểm nhấn trong kiến trúc tâm linh của ta. Luôn để cho căn phòng sạch sẽ, thoáng sáng không chỉ bày tỏ lòng thành kính của con cháu đời sau mà còn là một tâm niệm mong cầu cho một gia đạo yên ấm, an lành.

Điểm đặc biệt nhất của căn phòng khách này chính là được đặt ở tầng 2 rất mát mẻ và có tầm nhìn ra bên ngoài đẹp. Mẫu phòng khách mang kiến trúc hoàng gia sang trọng lại thêm phần trang nhã với gam màu trắng sữa chủ đạo. Nhất là bộ sofa cổ điển rất “được lòng” các gia chủ ưa dùng phong cách này. Từ việc phối màu các đồ dùng cho đến sắp xếp vị trí của nội thất đều hợp lí và cẩn thận nên không gian phòng khách như được mở rộng thêm ra và vô cùng thoáng đãng.

Và đây là một căn phòng ngủ mang tính chất tối giản nhưng rộng rãi và hiện đại. Đơn giản mà đẹp có lẽ không nằm ngoài không gian này. Ấn tượng nhất của không gian này chính là sự tương đồng ngẫu nhiên giữa nền sàn và tường trang trí đầu giường. Đều là gam màu trắng đục nổi vân sang trọng cùng hai chiếc đèn ngủ cây nấm hai bên đã tạo nên sự cân đối về màu sắc, thu hút mọi ánh nhìn.

Đây là một gian vệ sinh khép kín trong phòng ngủ. Mặc dù hạn chế về diện tích sửòng này vẫn dụng nhưng căn phòng này vẫn có đầy đủ những nội thiết cần thiết phục vụ cho sinh hoạt như: một bồn tắm rộng hai chiều cho các cô nàng thích ngâm mình thư gian, bồn rửa tay và chiếc gương nhỏ xịn, bồn WC tế nhị ẩn mình trong một góc đồng thời không thể thiếu những chiếc đèn trang trí nhiều màu sắc. Bạn biết đấy, dù là không gian nào cũng cần phải đẹp.

Mỗi ngôi nhà được xây dựng nên đều là những “đứa con tinh thần” đầy tâm huyết của gia chủ. Tuy nhiên để những “đứa con”” ấy được bền đẹp và tiện nghi mãi là điều mà bạn luôn trăn trở. Hãy để xaydungso làm điều này giúp tất cả chúng ta, chắc chắn sẽ là một sự đảm bảo tốt nhất.
Xem thêm tin:































