Là người chủ gia đình gánh trên vai trò trách to lớn, ban luôn băn khoăn xây dựng cho mái ấm một cơ ngơi khang ttang tiện ích. Thế nhưng việc xây nhà dựng cửa xưa nay chưa bao giờ là điều dễ dàng. Nắm bắt được tâm lí chung của các quý gia chủ chúng tôi đã nghiên cứu và tìm ra một mẫu nhà với đầy đủ tiện nghi, thẩm mĩ và quan trọng nhất chính là giá cả không thể phải chăng hơn. Trân trọng gửi tới mẫu nhà 3 tầng 8x13m đẹp và đây cũng chính là câu trả lời hoàn hảo nhất của chúng tôi.
Chiêm ngưỡng những phối cảnh đẹp nhất của mẫu nhà 3 tầng 8x13m

Tốt gỗ tốt cả nước sơn chính là điều mà quý khách hàng luôn mong muốn cho các công trình của mình. Đây cũng chính là “gương mặt vàng” của những nhà thầu uy tín. Luôn cam kết mang lại những sản phẩm chất lượng nhất chính là điều mà xaydungso hướng tới. Và để hiện thực hóa cho các công trình của mình xin gửi đến quý độc giả những phối cảnh cho mẫu nhà 3 tầng 8x13m của chúng tôi.

Mở đầu là là một mẫu nhà 3 tầng trang nhã với màu sơn trắng kiêu sa nhưng cũng không kém phần vững trãi hiên ngang của những cột trụ vuong, cột trụ tròn sừng sững đang nâng đỡ cho ngôi nhà. Đặc biệt nhất chính là kiểu mái cách điệu tổng hòa giữa mái thái vát lợp ngói và mái bằng đổ bê tông kiên cố trên đỉnh nóc nhà. Với sự thiết kế độc đáo này sẽ mang lại sự bề thế cho cơ ngơi nhà bạn.

Một ngôi nhà 3 tầng hình hộp gần như không có một điểm trừ nào từ kiến trúc hình hộp hiện đại đến màu sơn tinh tế. Điểm nhấn của ngôi nhà này chính là hình ảnh mái dốc lát gạch chống nóng rất tiện lợi mà chủ nhà đã lên ý tưởng rất kĩ càng. Trên tầng áp mái này vừa duy trì được một phòng ngủ lại có cả một sân vườn trên cao để cả nhà cùng thư giãn trò chuyện mỗi ngày. Tuy nhiên để tăng thêm tính thẩm mĩ cho ngôi nhà thì phải đặc biệt chú ý đến sự đồng điệu giữa màu cửa chính và lan can ban công tạo nên sự nổi bật giữa một ngôi nhà trắng tinh khôi như thế này.

Thật lộng lẫy và diễm lệ, ngôi nhà đẹp như một bức tranh này chính là cơ ngơi 3 tầng 8x13m đang được xây dựng nhiều nhất. Tính nghệ thuật ở đây không chỉ ở kiểu mái thái song song lạ mắt mà còn ở chính kết cấu mặt tiền của mỗi tầng. Nổi bật nhất vẫn là tầng 3 với lối kiến trúc uốn vòm cửa cổ điển nhấn thêm một chiếc đèn trùm sang trọng đã thực sự toát lên thần thái mà không phải ngôi nhà nào cũng có được.

Với những gia chủ nào mong muốn có một không gian thoáng đãng trong trẻo thì tuyệt đối không thể bỏ qua mẫu nhà 3 tầng này. Mặc dù là một công trình nhà ở khép kín nhưng kiến trúc sư đã rất khéo léo tính toán sao cho không gian cả 3 tầng luôn được thoáng đãng và mát mẻ qua hệ thống cửa chính 4 cánh luôn rộng mở và thiết kế ban công rất rộng để trồng thêm cây cảnh và hoa. Nhờ vào đó mà không khí ngôi nhà luôn được thanh lọc và quang quẻ.
Bản vẽ có tầm quan trọng như thế nào khi thi công nhà 3 tầng 8x13m
Bản vẽ là phần thể hiện hoàn hảo ngôi nhà thu nhỏ trên giấy. Nhìn vào đây gia chủ sẽ thấy rõ được tổ ấm gia đình mình sau khi hoàn thiện sẽ như thế nào. Quan trọng hơn là từ đó mà đội ngũ thi công có thể tính toán được chính xác nhất những điều cần và đủ cho ngôi nhà. Thứ nhất là phần thô gồm cát, xi măng, bê tông, gạch xây, sơn. Thứ hai là phần nội thất, đây được xem là phần lõi của ngôi nhà gồm có nội thất phòng khách như ti vi, kệ, tủ; nội thất nhà bếp: tủ bếp, bếp ga, bồn rửa bát, ...; nội thất phòng ngủ như giường, bàn trang điểm, tủ quần áo, bàn làm lamf việc, ... mặc dù có rất nhiều thứ nhưng chỉ cần coa một tờ giấy A3 nhỏ là kiến trúc sư đã có thể dễ dàng thể hiện đầy đủ trên đó.

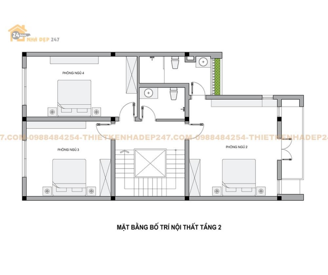
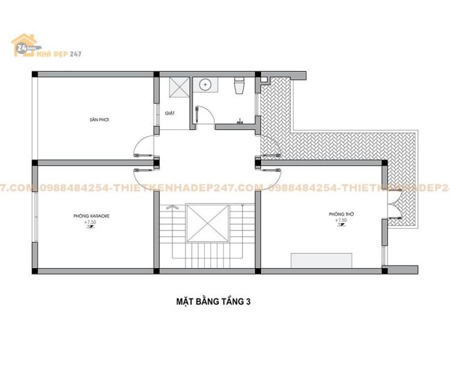
Chính vì vậy mà khi xây dưng nhà ở quý gia chủ tuyêth đối không thể bỏ qua bản vẽ thiết kế nhà của mình. Đây là bản vẽ thiết kế của một ngôi nhà mái bằng với 3 tầng phân khu, phân phòng rõ ràng theo mong muốn của tất cả các thành viên. Quý gia chủ có thể tham khảo bản mô phỏng hình ảnh thu nhỏ đầy đủ nhất của nội thất cũng như ngoại thất mẫu nhà 3 tầng 8x13m tại đây.

Tầng 1 gồm hai gian chính, từ cầu thang ra ngoài cửa chính là phòng khách rộng và được tính toán phù hợp nhất với phong thủy. Từ chân cầu thang trở vào trong là nhà bếp. Khu này chiếm diện tích lớn nhất tầng 1 vì nó còn được chia thành các phòng nhỏ hơn như: phòng ăn, nhà vệ sinh, bếp nấu. Lên đến khu vực tầng 2 được thiết kế tập trung phòng ngủ của các thành viên. Phần sàn thấp được chia làm hai phòng ngủ. Một phòng ngủ của ông bà có nhà vệ sinh khép kín bên trong rất tiện lợi và một phòng ngủ của con có thiết kế thêm một góc học tập. Còn phần sàn cao được đặt làm phòng ngủ của bố mẹ. Gần cầu thang thiết kế một nhà vệ sinh chung.

Riêng trên mặt bằng tầng 3 gia chủ trân trọng đặt phần sàn nhà cao nhất, rộng và thoáng nhất để làm phòng thờ. Phần diện tích còn lại được thiết kế thêm một phòng nhỏ chơi đàn cho bé và khoảng sân thượng rộng để rồng cây cảnh, rau và phơi đồ. Phần sân thượng này là một ý tưởng thông minh khi dành ra một phần không gian cho các thành viên trong gia đình hòa mình vào bầu không khí tự nhiên mát lành, nhất là ở những ngôi nhà phố thì không thể thiếu được phần này.

Ngoài ra trục cầu thang hình xoắn ốc thông lên cả 3 tầng cũng làm nổi bật vẻ đẹp cho cả ngôi nhà. Để tiết kiệm diện tích kiến trúc sư còn tận dụng hết các chân cầu thang để làm một phòng nhỏ. Như chân cầu thang tầng 1 để một bồn rửa tay cho khách tiện lợi sử dựng. Cầu thang tầng 2 đóng thành một tủ nhỏ để các đồ của bé và cầu thang tầng 3 cũng được tận dụng để làm kho.
Nội thất tiện nghi cho mẫu nhà 3 tầng 8x13 bạn đã biết
Nếu chỉ nhìn vẻ bề ngoài mà đánh giá một ngôi nhà thôi chưa đủ bởi sẽ cái cốt lõi của nó còn nằm ở thiết kế nội thất bên trọng. Các bạn biết rằng nếu ngoại thất mang lại sự sang trọng đẹp đẽ thì nội thất tiện nghi lại giúp nâng cao chất lượng cuộc sống của mỗi gia đình.
Một gian phòng khách hiện đại trẻ trung với bộ sofa màu cam yêu thích của gia chủ. Đặc biệt chiếc tủ nhỏ được thiết kế ẩn trong tường giúp cho không gian thêm thoáng và rộng hơn rất nhiều. Phòng khách được đặt ngay ở cửa chính ra vào nên bàn ghế được kê sát tường để chừa ra một lối đi vào trong nhà bếp.

Vẫn là không gian phòng khách nhưng mẫu nội thất này lại mang phong cách cổ điển sang trọng với một sofa bằng gỗ cao cấp nổi bật với vân gỗ tự nhiên. Một chiếc kệ trưng bày những đồ vật quý giá của gia đình cũng được tạc từ nguyên một khối gỗ rất giá trị vừa làm kệ để đồ lại vừa làm vách ngăn với các phòng khác. Khách đến chơi ngồi tại đây sẽ that thích thú khi phóng tầm mắt của mình ra bên ngoài ngắm nhìn một không gian thoáng đãng với những cây thường xuân xanh mướt leo trên tường. Đây chính là dụng ý khi thiết kế hướng phòng khách của kiến trúc sư.

Và đây nưa, một phòng tắm phụ khép kín với đầy đủ các tính năng sử dụng. Bồn tắm để ngâm mình thư giãn sau cuối ngày mệt mỏi được đặt ngay cửa sổ để gia chủ luôn cảm nhận được sự thư thái trong tâm hồn, mà điều này lại vô cùng đáng quý.

Và một không gian không thể thiếu trong gia đình của chúng ta đó chính là nhà bếp. Vẫn luôn được biết đến là nơi “hâm nóng” tình cảm của các thành viên trong gia đình vậy nên nhà bếp có lẽ là nơi đặt nhiều tâm huyết nhất của nhà thiết kế. Lấy cảm hứng từ nền trời bình yên xanh biếc, gần như toàn bộ gạch ốp tường bếp đều là màu xanh da trời đầy ấn tượng. Từ lọ để gia vị cho đến bàn ghế ăn đều được sắp xếp khoa học tiết kiệm diện tích và rất ngăn nắp gọn ngàng. Đây cũng chính là điểm tích cực mà thiết kế nội thất mang lại cho chúng ta.

Tuy cuộc sống của nhiều gia đình còn gặp nhiều khó khăn, việc xây dựng một mái ấm như trên là một điều mơ ước. Thế nhưng niềm tin là điều mà không gì có thể dập tắt được. Các quý gia chủ hãy trao cho xaydungso niềm tin đó để chúng tôi luôn đồng hành cùng bạn.
Xem thêm:
Mẫu nhà 3 tầng 1 tum có gác lửng
































