Ngày nay xu hướng tìm mẫu nhà cấp 4 diện tích 60m2 đang rất thịnh hành đây là sự lựa chọn của rất nhiều người không chỉ ở nông thôn mà cả các thành phố lớn. Kiểu nhà này rất được lòng đại đa số các cặp vợ chồng trẻ bởi nó đáp ứng đầy đủ các tiêu chuẩn về không gian sống thoải mái, tiện nghi và hơn hết là chi phí đầu tư vừa đủ phù hợp túi tiền của hộ gia đình vừa và nhỏ. Không những thế, kiểu nhà này còn có rất nhiều phong cách kiến trúc, thiết kế khác nhau nên bạn có thể dễ dàng lựa chọn mẫu nhà phù hợp với mình mang đến những không gian sống tuyệt vời

Mẫu nhà cấp 4 diện tích 60m2 này thường có diện tích khá rộng nhưng bù lại cách bố trí không gian đáp ứng được nhu cầu của một gia đình trẻ có 1 hoặc 2 con. Do diện tích có hạn nên hiện nay các kiến trúc sư đã tò mò học hỏi từ các địa phương về sự sáng tạo và nhu cầu sử dụng, cho ra những mẫu thiết kế đẹp mắt. Nếu hiện tại bạn đang sở hữu căn nhà có diện tích khoảng 60m2 thì hãy tham khảo một số ý tưởng thiết kế dưới đây để có được mẫu nhà phù hợp hơn.
Trong chủ đề hôm nay, chúng tôi sẽ giới thiệu đến bạn đọc những mẫu thiết kế nhà cấp 4 diện tích 60m2 phong cách đa dạng. Các mẫu đề tài này tham khảo mẫu nhà cấp 4 đẹp 60m2 mái tôn, mái thái, mái bằng, 2 phòng ngủ, 3 phòng ngủ để mọi người có thêm ý tưởng độc đáo cho mình. Nếu bạn cần lựa chọn một thiết kế phù hợp theo sở thích của mình, chúng tôi sẽ mô tả chi tiết nhất có thể cho mẫu về mẫu này.
Mẫu nhà cấp 4 diện tích 60m2 mái tôn.

Ai cũng muốn sở hữu một ngôi nhà đẹp, vừa là nơi che mưa che nắng nhưng hơn hết là nơi vun vén cho tổ ấm nhỏ của mình. Bạn đang sở hữu một mảnh đất chỉ với diện tích 60m2 nhưng kinh tế không dư dả thì đây sẽ là mẫu thiết kế phù hợp nhất hiện nay. Mẫu nhà cấp 4 60m mái tôn được đánh giá là kiểu nhà không tốn quá nhiều chi phí đầu tư, công năng sinh hoạt đầy đủ không thua kém các kiểu nhà khác.
Mẫu nhà cấp 4 diện tích 60m2 mái thái

Tiếp theo, mẫu nhà mái thái 60m2 này chúng tôi muốn đề cập đến nhiều hơn trong bộ sưu tập ngày hôm nay. Nhằm đa dạng hóa kiểu nhà diện tích chỉ 60m2 mà nhiều người đang sở hữu hiện nay, không chỉ phù hợp ở nông thôn mà cả thành thị. Đặc biệt, với những mẫu nhà cấp 4 mái thái thường sở hữu những đặc điểm nổi bật là có thể xây trên mảnh đất rộng, hoặc mảnh đất nhỏ đều có thể xây được.
Mẫu nhà cấp 4 diện tích 60m2 giá thành thấp

Do giá thành rẻ nên nhiều người sẽ thường nghĩ rằng xây nhà cấp 4 diện tích 60m2 sẽ không đủ. Tuy nhiên, điều này ngày nay cũng dễ hiểu, vì hầu hết chi phí xây dựng và giá vật liệu đều cao hơn trước. Không những vậy, nếu biết tiết kiệm chi phí đầu tư và tận dụng nguyên vật liệu, bạn sẽ không thể sở hữu một ngôi nhà đẹp với chi phí thấp phù hợp với những người có thu nhập thấp
Mẫu nhà cấp 4 đẹp 60m2

Đây là thiết kế vật liệu ở mức trung bình khá, nếu bạn biết cách tính toán thì giá thành sẽ thấp hơn bây giờ. Mẫu nhà cấp 4 60m2 này sở hữu kết cấu ấn tượng về góc mặt tiền, từng khối đan xen nhau tạo nên tổng thể rất bắt mắt.
Mẫu nhà cấp 4 diện tích 60m2 hình chữ L

Nhiều gia đình hiện nay thường rất thích kiểu nhà hình chữ L này. Về thiết kế, mẫu nhà tận dụng được nhiều góc cạnh của lô đất để tạo nên công năng sử dụng thuận tiện. Thiết kế của xô ra có những điểm nổi bật từ kết cấu tổng thể, đến cách bố trí công năng tùy theo nhu cầu sử dụng của mỗi gia đình.
Mẫu nhà cấp 4 diện tích 60m2 tiện ích

Nói đến mẫu nhà cấp 4 60m2 có công năng tiện ích không ai là không biết đến mẫu nhà này, nhằm khai thác diện tích sử dụng một cách triệt để phát huy hết công năng mà nó sở hữu. Đặc biệt, về kiểu nhà này, bạn có thể thỏa sức thiết kế nội thất cũng như bài trí không gian theo ý muốn. Nếu gia đình có đông thành viên thì việc sử dụng tầng lửng để bố trí thêm một phòng ngủ sẽ rất tuyệt vời.
Mẫu nhà cấp 4 diện tích 60m2 có 1 phòng ngủ

Mẫu thiết kế nhà cấp 4 1 phòng ngủ diện tích 60m này sẽ rất phù hợp với những cặp vợ chồng trẻ, mẫu được xây dựng trên diện tích 60m2 với công năng bao gồm phòng khách, bếp ăn, nhà vệ sinh và không thể thiếu 1 phòng ngủ cho 2 vợ chồng. Đây là kiểu nhà không chỉ đáp ứng được không gian sử dụng vô cùng thoải mái, đầy đủ tiện nghi mà còn mang lại nguồn cảm hứng cho nhiều cặp vợ chồng trẻ.
Mẫu nhà cấp 4 diện tích 60m2 có 2 phòng ngủ

Đối với một gia đình có từ 1 đến 2 con nhỏ thì đây sẽ là mẫu nhà khá phù hợp với nhu cầu hiện nay, ban đầu cấu trúc tổng thể các công năng sử dụng bên trong ngôi nhà được bố trí khá thuận tiện khi sử dụng. Mẫu nhà cấp 4 60m2 2 phòng ngủ hiện nay đang được ưa chuộng, không chỉ ở nông thôn xây được mà ở thành thị cũng có thể làm được.
Mẫu nhà cấp 4 diện tích 60m2 có 3 phòng ngủ

Ngôi nhà không quá lớn nhưng bù lại nó vẫn hoạt động hoàn hảo, đạt tiêu chuẩn của nhiều gia đình hiện nay. Xu hướng thiết kế nhà 3 phòng ngủ 4 tầng 60m2 được các gia đình có nhiều thành viên cùng chung sống đặc biệt yêu thích.
Mẫu nhà cấp 4 diện tích 60m2 có gác lửng

Mặt tiền của công trình được thiết kế đơn giản với hệ thống mái ngói, thiết kế đối xứng với những đường nét thanh mảnh chạy ngang làm nổi bật những đường nét tinh tế, bền vững của công trình hiện đại. Phần chân trụ phía trước mặt tiền để tăng điểm nhấn và hiệu ứng thẩm mỹ, được thiết kế bằng đá tự nhiên màu ghi sáng. Hệ lam che nắng mặt tiền đi kèm thiết kế sảnh trước rộng và không gian sân trước được lát gạch xám, đảm bảo sự vững chãi cho công trình.
Việc sử dụng gạch lát sân màu xám nhạt đang là một trong những xu hướng thiết kế mới nhất hiện nay, bởi xu hướng thiết kế này thường được ưa chuộng trong các thiết kế biệt thự rộng hoặc biệt thự vườn hiện đại. Toàn bộ cửa trước của mẫu thiết kế nhà cấp 4 có gác lửng 60m2 được xây dựng bằng hệ thống cửa nhôm Xingfa màu nâu cafe hiện đại với kính dán an toàn và hệ thống cột trụ lớn tạo không gian hiện đại. , mới và bề thế cho những công trình đẹp.
Mẫu thiết kế nhà cấp 4 có gác lửng với mục đích mở rộng thêm không gian sử dụng, thiết kế kiến trúc tạo sự đột phá về mặt bằng và nội thất. Chính vì vậy, thiết kế kiến trúc nhà mái thái có sự biến tấu rõ nét so với các mẫu nhà cấp 4 truyền thống. Kiến trúc mái thái dường như có phần nhô cao hơn nhằm ôm lấy không gian tầng lửng được nới rộng ra mà vẫn đảm bảo được tổng thể thiết kế. Với mặt tiền mà chúng tôi đưa ra, chủ đầu tư hoàn toàn ưng ý và bày tỏ sự vui mừng hơn cả mong đợi, bởi nó không chỉ đáp ứng được nhu cầu của bạn mà còn mang đến cho bạn một không gian sống hiện đại, tiện nghi và thoải mái hơn.

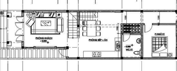
Tầng 1 mẫu nhà cấp 4 đẹp được kiến trúc sư thiết kế không gian sinh hoạt tập trung gồm phòng khách liên thông với phòng bếp và ngăn cách bằng cầu thang của tầng lửng, phía trong là phòng ngủ cho 01, phòng vệ sinh chung được thiết kế ở giữa phòng ngủ và bếp.

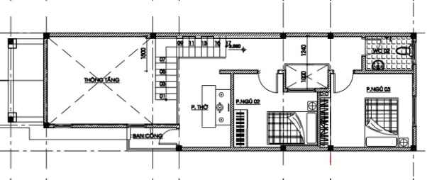
Tầng 2 được bố trí thiết kế cân đối để tối ưu hóa theo nhu cầu. Thiết kế 2 phòng ngủ nhỏ sử dụng chung một nhà vệ sinh ở góc nhà, không gian sảnh tầng lửng được tận dụng để thiết kế phòng thờ nhỏ trang hoàng cho gia đình.
Trên đây là top 10 mẫu nhà cấp 4 diện tích 60m2 đẹp hiện đai mà Xây Dựng Số gửi đến bạn. Hy vọng bạn sẽ tìm được nhiều ý tưởng hay cho ngôi nhà trong mơ của mình nhé!


































