Ngôi nhà cấp 4 hiện nay đang trở nên phổ biến hơn bao giừo hết, kiểu nhà này vừa sở hữ trên mình phong cách hiện đại nhưng chi phí xây dựng tiết kiệm và khá đơn giản. Hãy tìm kiếm một mẫu nhà cấp 4 diện tích 9x10m đơn giản nhưng không kém phần kiểu cách và tiện nghi, đảm bảo sẽ làm hài lòng tuyệt đối cả những gia chủ khó tính nhất. Cùng theo dõi bài viết dưới đây để tìm hiểu rõ hơn về mẫu nhà này nhé.
Mẫu nhà cấp 4 diện tích 9x10m mái thái đẹp, sang trọng

Mẫu nhà cấp 4 đẹp kiểu nông thôn màu đỏ tươi truyền thống, cửa gỗ sang trọng kết hợp với kính sang trọng làm cho ngôi nhà của bạn trông càng sang trọng hơn. Bạn sẽ nhận thấy rằng mái nhà có cửa sổ kính giúp lấy sáng tốt hơn.
Ngôi nhà được kiến trúc sư thiết kế theo phong cách tân cổ điển đẹp, phần mái được thiết kế mái thái màu xanh lam đẹp mắt, ngói trên ngôi nhà được khuyên sử dụng kính tạo cho ngôi nhà thêm phần gần gũi. Thiên nhiên đồng thời mang đến vẻ đẹp hiện đại cho Ngôi nhà cấp 4 rộng 9 m so với những ngôi nhà cấp 4 khác. Kết hợp với hệ thống sân vườn rộng rãi, thoáng mát, ngôi nhà này là nơi nghỉ ngơi lý tưởng cho mọi người. Mặc dù không phải là một biệt thự sang trọng nhưng ngôi nhà thu hút sự chú ý của mọi người trong nháy mắt.
Trong không gian 9x10m, ngôi nhà được thiết kế gồm 1 phòng khách, 1 bếp và 2 phòng ngủ đa năng. Phòng khách được thiết kế ở trung tâm của ngôi nhà mang đến cảm giác gần gũi, nội thất phòng khách hiện đại và trẻ trung giúp tôn lên sự sang trong của ngôi nhà. Phòng bếp được đặt sau phòng khách. Phòng khách và phòng bếp liên thông khiến không gian trở nên ấm áp và thông thoáng hơn. Với hệ thống kính trong suốt ngôi nhà, bạn có thể vừa xem tivi, vừa ngắm cảnh sân vườn trong khi dùng bữa. Hai phòng ngủ được thiết kế đối xứng hai bên của ngôi nhà. Căn phòng luôn tràn ngập ánh sáng tự nhiên tạo cho bạn cảm giác khỏe khoắn và thoải mái nhất. Chi phí xây nhà cấp 4 diện tích 9m x 10m tương đối thấp khiến ngôi nhà này trở thành sự lựa chọn thực sự hoàn hảo cho mọi người.
Mẫu nhà cấp 4 mái thái chữ L 9x10m hiện đại

Mẫu nhà cấp 4 hình chữ L này được thiết kế với diện tích 9x10m có thể sử dụng cho cả gia đình được chia thành 1 phòng khách, 1 phòng bếp, 1 phòng ăn, 2 phòng ngủ, 1 phòng vệ sinh chung. Với chiều ngang 10m và chiều sâu 9m rất phù hợp với những ngôi nhà ở nông thôn có đất rộng rãi thoải mái.
Mẫu nhà cấp 4 mái thái hình chữ L này được thiết kế cho gia chủ ở Vinh, Thái Lan với tổng kinh phí đầu tư là 500 triệu, mẫu nhà cấp 4 mái thái này được xây cho ông bà và có 1 phòng ngủ cho vợ chồng anh chị nghỉ dưỡng tại đây. nhiều chó hơn. Khu vực phòng khách cũng được thiết kế rất rộng rãi, thậm chí bạn có thể kê thêm đệm ra bên ngoài phòng khách để có thể ngủ khi cần. Nhu cầu sử dụng cũng không nhiều nên việc thiết kế nhà cấp 4 chữ L 3 phòng ngủ quá rộng là không cần thiết và đây cũng là một vấn đề nan giải cho gia chủ. Nhìn chung ở quê ai cũng thích nhà cao cửa rộng, phòng khách cũng được thiết kế rộng rãi, chuẩn bị lễ tết và chuẩn bị vài mâm cơm cho gia đình. Có lẽ đây là phong tục tập quán của người Việt Nam chúng ta.
Kiến trúc của mẫu nhà cấp 4 mái thái hình chữ L, mẫu nhà cấp 4 mái thái hình chữ L với phần mái chính là phần thân và phần mái phụ là không gian bếp ăn được đặt bên ngoài. Khi nhà có khách, bếp mở thêm cửa phụ để đi ra ngoài hoặc phụ nữ đi chợ sẽ thuận tiện hơn. Màu chủ đạo của thiết kế vẫn là tone màu trắng tinh khôi sang trọng kết hợp với màu ngói xám tạo nên sự nổi bật cho ngôi nhà.
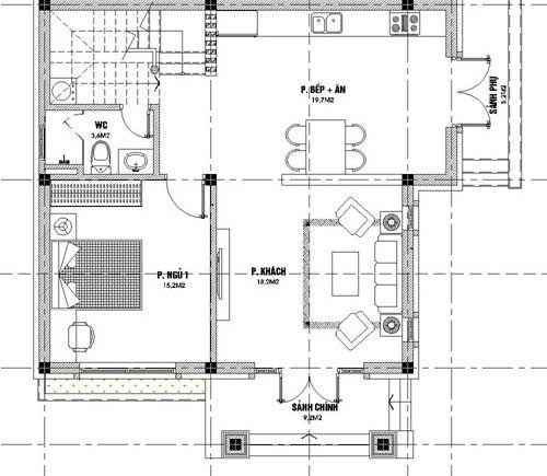
Mẫu nhà cấp 4 diện tích 9x10m đơn giản, tiện ích

Mẫu nhà cấp 4 mái thái phù hợp với xu hướng xây nhà hiện nay, kết hợp với kiến trúc cũng như sân vườn ngoại thất đầy cây xanh trong nhà tạo cảm giác bình yên. Cách phối màu đơn giản mà đẹp mắt này được rất nhiều gia chủ yêu thích. Là một không gian có diện tích khiêm tốn nhưng nó được thiết kế một cách thông minh một cách khoa học để tận dụng tối đa không gian, tạo cho căn phòng một cách hợp lý nhất và tạo cảm giác thoải mái nhất khi sử dụng.

Các kiến trúc sư đã khéo léo thiết kế tiền sảnh rộng rãi để mở rộng không gian cho ngôi nhà và tạo thành khu vui chơi cho gia đình. Cạnh cửa trước là phòng khách rộng rãi tràn ngập ánh sáng từ cửa trước. Phòng khách vẫn được coi là thiết kế đẹp nhất của ngôi nhà, và được gia chủ tự hào về những tiện nghi sang trọng của ngôi nhà. Phòng khách được thiết kế rộng rãi nhất để cung cấp các không gian sinh hoạt, giải trí cho gia đình và khách đến chơi nhà thoải mái.
Ngay phía sau phòng khách là phòng bếp kết hợp phòng ăn rộng rãi, bài trí gọn gàng giúp lưu thông không khí trong phòng bếp. Đối với những mẫu nhà thông minh kiểu mới như thế này, thiết kế phòng bếp rộng, có cửa thoát gió là giải pháp tốt nhất để tạo không gian trong gia đình luôn sạch sẽ, thơm mát. Căn phòng này sẽ trở thành không gian để các thành viên có thể quây quần, ăn uống, chia sẻ sau một ngày làm việc và học tập mệt mỏi. Vì vậy, nó chiếm một không gian khá lớn, chẳng hạn như phòng khách. Phòng ngủ đối diện với phòng khách và có hai phòng ở các không gian khác nhau. Gia chủ có thể phân bố hợp lý các thành viên vào các phòng của mình dựa trên mục đích sử dụng của gia đình.
Giả sử gia đình bạn có người già sống cùng. Vì vậy hãy đặt phòng gần nhà vệ sinh để tiện đi lại. Phòng vệ sinh được bố trí cuối nhà tạo sự thuận tiện và thẩm mỹ cho cả gia đình. Nước chung được sử dụng trong toàn bộ ngôi nhà cùng với nhà vệ sinh cạnh phòng giặt. Cuối cùng là sảnh phụ nhỏ để gia chủ có thể bày đồ phơi hoặc khi nhà đông người. Tuy diện tích nhỏ nhưng có thể nói mẫu nhà cấp 4 9x10m này đã đáp ứng được tối đa mục đích sử dụng của mọi thành viên. Các cặp vợ chồng trẻ còn đang phân vân mà không nắm bắt ngay cơ hội cho tổ ấm của mình mẫu nhà cấp 4 nhỏ xinh đầy đủ tiện nghi rất phù hợp cho số ít người ở. Và đây là hình ảnh mô phỏng cụ thể cho mẫu nhà 9x10m với bố cục tương đối giống với hình trên nhưng không gian này được thiết kế nhỏ gọn hơn.
Hai phòng ngủ chính đối diện nhau. Bên ngoài, có phòng khách và bếp gần cửa chính. Phòng khách còn được dùng làm nơi đặt bàn ăn, vừa tiết kiệm diện tích vừa đảm bảo tính thẩm mỹ cho ngôi nhà và sự sang trọng của phòng khách. Phía trước là cửa trước đủ rộng để kê một bộ bàn ghế để gia chủ và khách đến đây trò chuyện, thư giãn. Cuối nhà là sảnh phụ ngắn và hẹp hơn sảnh chính, mục đích tạo sân sau để gia đình ra sân sau, phơi quần áo hay cất đồ. Không gian tuy nhỏ nhưng ấm áp và bình yên. Các gia đình có cơ hội đoàn tụ, chia sẻ cùng nhau mà không bị ngăn cách trong ngôi nhà tranh vách đất.
Yêu cầu chung để đảm bảo ngôi nhà hiện tại của bạn:

Phòng khách: Là căn phòng rộng và đẹp nhất trong căn hộ, thường thể hiện cá tính và sở thích của gia chủ. Diện tích của phòng khách thường từ 14-30 m2. Các phòng thường dẫn thẳng ra sân và sảnh. Cửa thường rộng 1,2m cao 2,2m còn nếu rộng trên 2m thì mở 2 cánh hoặc 4 cánh.
Phòng ăn: Thiết kế phòng ăn có thể kết hợp với bếp hoặc với không gian tiếp khách. Nếu là phòng riêng thì có vị trí thích hợp gần bếp, liên hệ với phòng khách được thuận tiện. Diện tích phòng ăn tiêu chuẩn từ 12 đến 15 m2.
Phòng ngủ: Các phòng ngủ hiện nay trong nhà, căn hộ chung cư thường bao gồm phòng ngủ vợ chồng (12-18m2), phòng ngủ riêng (khoảng 6m2) và phòng ngủ tập thể (10-12m2). Cách bố trí thiết kế phòng ngủ này sẽ phụ thuộc vào các yếu tố như số lượng người, giới tính, độ tuổi và cấu trúc gia đình.
Văn phòng: Ngày nay, một không gian làm việc riêng tư và yên tĩnh là điều không thể thiếu, vì vậy nó không phải là điều bắt buộc, nhưng hầu hết các nhà phát triển vẫn gặp khó khăn. Luôn thiết lập một không gian làm việc riêng. Phòng làm việc kết hợp với không gian học tập nên nhẹ nhàng, yên tĩnh. Tùy theo điều kiện mà diện tích phòng có thể từ 12-16m2. Hệ số ánh sáng phù hợp cho văn phòng là 1/8-1/5.
Nhà bếp: Người Việt Nam luôn rất chú trọng đến không gian bếp (bếp). Vị trí bếp thông thường thuận tiện cho việc đi chợ về và tiếp xúc trực tiếp với phòng ăn và phòng khách. Phòng bếp cạnh phòng vệ sinh thuận tiện cho việc lấy nước sinh hoạt và thoát nước bẩn.
Khối WC: Chức năng đảm bảo nhu cầu vệ sinh như tắm, giặt, đi tiêu và cần được sắp xếp theo nhu cầu của gia đình. Diện tích thường từ 2-9m2. Thông thường phòng ngủ có khu vệ sinh riêng.
Trên đây là mẫu nhà cấp 4 diện tích 9x10m đẹp, hiện đại mà Xây Dựng Số gửi đến bạn. Hy vọng bạn sẽ tìm được nhiều ý tưởng hay cho căn nhà của mình nhé!


































