Mẫu nhà phố 3 tầng mặt tiền 4m là mẫu nhà phố điển hình, hẹp chiều chiều ngang và có chiều sâu dài. Đây cũng là lý do để những mẫu nhà này luôn thu hút được đông đảo sự quan tâm. Cùng chiêm ngưỡng những mẫu nhà phố 3 tầng mặt tiền 4m được thiết kế như thế nào mà lại có thể dành được nhiều sự quan tâm đến như vậy.
Bản vẽ thiết kế mẫu nhà phố 3 tầng mặt tiền 4m trị giá 800 triệu đồng
Chiều ngang chỉ đúng 4m vô cùng hạn chế, đặc trưng của mẫu nhà phố hiện nay, khiến gia chủ cân nhắc bố trí việc bố trí để đảm bảo không gian cho từng thành viên cũng như không gian chung của cả gia đình.
Để có thể đảm bảo được không gian ấy, những ngôi nhà thường thiết kế theo nhà ống. Ưu điểm của nhà ống mang đến không gian với diện tích tối đa mà căn nhà đang sở hữu. Nhược điểm đó chính là không gian bao quanh bởi 4 bức tường, hạn chế ánh sáng, lưu thông khí không tốt. Nhưng với thiết kế mẫu nhà phố 3 tầng mặt tiền 4m lại được kiến trúc sư cải thiện bằng việc sử dụng hệ thống cửa sổ bố trí tối đa ở các từng, hệ thống cửa chính lớn với chất liệu khung nhôm kính cùng với hệ thống sân trước, sân sau hay giếng trời để khắc phục tối đa nhược điểm này. Cùng theo dõi chi tiết trong bản thiết kế chi tiết phía dưới đây.

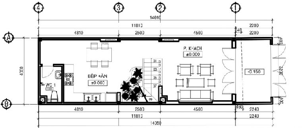
Với tầng 1 sẽ bao gồm 1 phòng khách và 1 phòng bếp ăn, 1 WC và 1 sân trước nhà. Phân cách hai không gian phòng khách và bếp với nhau là khu vực cầu thang và tiểu cảnh cây xanh được bố trí ngay dưới chân cầu thang vừa tiết kiệm diện tích lại vừa mang đến không gian xanh cho ngôi nhà.

Hình ảnh thực tế cho ngôi nhà 3 tầng mặt tiền 4m cho không gian tầng một giúp dễ hình dung. Nội thất bố trí đơn giản, thông minh. Phòng khách được nối liền với bếp giúp ngôi nhà trở nên rộng rãi và thông thoáng hơn.

Đặc biệt nếu chú ý kỹ sẽ thấy sàn không bếp, bàn ăn có phần cao hơn một chút để tạo cảm giác phân chia rõ ràng hơn. Sự phân cách này được thể hiện ở chính khu vực tường, khi khu vực phòng khách lựa chọn sơn màu tối để có cảm giác có chiều sâu vì phòng khách cần không gian rộng và thoáng thì màu sắc tối sẽ mang đến hiệu ứng này.

Căn bên được thiết kế hình chữ L, ốp đá granit sang trọng, bố trí thêm hệ thống cửa sau tránh việc ám mùi thức ăn vào trong không gian nhà. Giải quyết được một trong những nhược điểm ngôi nhà ống – thiếu sự lưu thông khí và ánh sáng vào không gian phía sâu trong nhà.

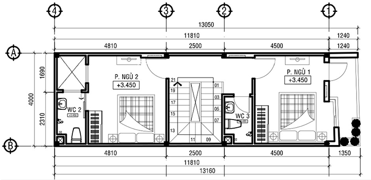
Lên đến khu vực tầng hai được bố trí 2 ngủ cùng với 2 WC bên trong phòng ngủ. Việc bố trí này mang đến sự riêng tư, thuận tiện cho chính người sử dụng. Phân cách hai phòng ngủ là khu vực cầu thang ở giữa.

Mẫu phòng ngủ dành cho nhà phố 3 tầng mặt tiền 4m cho bố mẹ. Phòng ngủ với diện tích không quá lớn nhưng vẫn đáp ứng đầy đủ công năng cho chính người sử dụng. Lựa chọn nội thất với kích thước nhỏ, đa công năng, chất liệu bằng gỗ công nghiệp chính là ưu tiên hàng đầu dành cho những ngôi nhà có diện tích nhỏ.
Căn phòng được đánh giá cao bởi thiết kế thông minh khi không sử dụng hết diện tích, phần diện tích không sử dụng đến đã được sử dụng là giếng trời, bố trí thông với phòng ngủ của bố mẹ, vừa mang đến ánh sáng cho căn phòng, lưu thông không khí giữa các tầng, các phòng. Đặc biệt đây cũng được xem là phần không gian xanh hiếm có khó tìm trong chính không gian phố nhỏ hẹp hiện nay.

Kế phòng ngủ của bố mẹ là phòng ngủ của con. Tùy theo sở thích, cá tính của bé để bố trí nội thất theo ý thích của bé. Tuy nhiên về nội thất của căn phòng vẫn có đặc điểm chung giống với phòng bố mẹ sử dụng nội thất hiện đại, thông minh, nhỏ gọn, phù hợp diện tích nhỏ. Nguyên liệu của nội thất này được sử dụng đa dạng: từ nhựa đến gỗ công nghiệp, đa dạng mẫu mã, màu sắc để gia chủ lựa chọn.

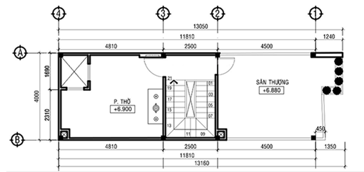
Không gian tầng 3 được bố trí với không gian thờ và sân thượng. Hai không gian này được phân cách với nhau bởi khu vực cầu thang ở giữa. Không gian này với thiết kế mở, giúp lưu thông khí từ tầng 3 xuống các tầng, đảm bảo đúng mặt phong thủy.
Top mẫu thiết kế nhà phố 3 tầng mặt tiền 4m có gì thu hút?
Bố trí không gian cùng với nội thất phía trong nhà được đánh giá thông minh, phù hợp gia đình cơ bản hiện nay, 3 đến 4 thành viên cùng sinh sống. Để hoàn thiện được ngôi nhà và dành được sự quan tâm và đứng đầu trong trong top mẫu thiết kế nhà phố 3 tầng mặt tiền 4m thì cần có mặt tiền thu hút. Cùng xem phần mặt tiền của những ngôi nhà này như thế nào?

Mẫu nhà phố 3 tầng được thiết kế theo phong cách hiện đại với tone trắng chủ đạp xuyên suốt. 3 tầng được phân cách riêng biệt với hình dạng của khối hình học xếp chồng lên nhau. Để tránh sự nhàm chán của những mẫu thiết kế 3 tầng theo phong cách hiện đại trước đấy, kiến trúc sư đã thay đổi kiến trúc đối với khu vực tầng 2 của ngôi nhà khối hộp hình chữ nhật được xếp chéo nhau để tạo nên sự thú vị trong kiến trúc. Với kết cấu lạ mắt của mình đã đem đến mẫu thiết kế vô cùng độc đáo nhưng lại có tác động lớn tránh đi ánh sáng mặt trời chiếu trực tiếp vào ngôi nhà vào ban ngày thay thế lam chống nắng thường thấy.

Vẫn là kiến trúc theo phong cách hiện đại nhưng ngôi nhà này mang nét đẹp của sự khỏe khoắn, dứt khoát khi sử dụng đường kẻ dài nối liền khu vực tầng 2 với tầng 3 lại với nhau. Không gian này được chú ý bởi có khoảng sân nhỏ phía trước nhà, bao bên ngoài bởi hệ thống tường rào và cổng rào chắc chắn. Không gian này gia chủ có thể sử dụng cho nhiều mục đích, cùng với hệ thống cây cảnh phía trước nhà cải thiện rất nhiều về khuyết điểm về không gian bí bách, thiếu màu xanh của thiên nhiên ở phố.
Ở khu vực tầng ba, bỏ bớt phần không gian sân phơi phía sau để dành chỗ cho phần sân phía trước. Thay vì 1 vài chậu cây cảnh nhỏ thì gia chủ ở ngôi nhà này biến thành một khu vườn mini với cây xanh bao phủ. Đây cũng là không gian để cho những ngôi nhà 3 tầng mặt tiền 4m trở thành mẫu nhà luôn nằm trong top thiết kế luôn được lựa chọn của gia chủ dành cho ngôi nhà phố hiện nay.

Tiếp tục là mẫu thiết kế theo phong cách hiện đại, nhưng mẫu nhà này lại có những phần diện tích cực kỳ đáng lưu tâm, cùng theo dõi xem đó là những phần diện tích nào?
Phần không gian thứ nhất chính xuất hiện ngay ở tầng 1 – gara oto. Phần không gian gần như không xuất hiện trong nhà mặt phố có mặt tiền 4m trước đây, nhưng ở mẫu thiết kế xu hướng hiện nay thì đây là phần không gian không thể thiếu, giúp gia chủ để oto ngay trong chính ngôi nhà mà không phải tìm kiếm bãi đỗ xe ở xa khu vực nhà ở, gây ra nhiều bất tiện không đáng có.
Phần không gian thứ hai chính là khu vực tum ở tầng thượng. Thay vì phải tính toán để có thể bố trí không gian phía dưới chật hẹp thì khu vực tum được xuất hiện khắc phục hoàn toàn những lo âu cho gia chủ. Tại không gian này, gia chủ hoàn toàn có thể bố trí không gian thờ vì đây là tầng cao nhất trong căn nhà. Ngoài không gian thờ, tum với cây xanh thì gia chủ bố trí bàn ăn để cả gia đình tụ tập ăn uống vào dịp cuối tuần.

Nếu như cảm thấy nhàm chán với việc mái bằng kết hợp với phong cách hiện đại trong những ngôi nhà này thì sử dụng một mái Thái chắc chắn sẽ thay đổi về mặt thẩm mỹ. Phần mái cao giúp ngôi nhà này trở nên bề thể hơn và cũng đem đến sự lưu thông khí trong ngôi nhà. Với ngôi nhà này gia chủ kết hợp không gian sinh hoạt với không gian kinh doanh. Đây cũng sẽ là mẫu thiết kế dành cho gia chủ đang có ý định tương tự.

Sơ suất nếu như không nhắc đến mẫu thiết kế nhà 3 tầng mặt tiền 4m theo đuổi phong cách tân cổ điển. Màu sắc sử dụng vô cùng nổi bật với gam màu vàng tiểu biểu cho màu sắc châu Âu kết hợp với họa tiết đặc trưng mang đến một màu sắc châu Âu ngay tại khu vực phố thị hiện đại. Phần lan can ngôi nhà cũng được chú trọng bởi họa tiết trang trí thủ công, đơn giản nhưng vô cùng thu hút. Hệ thống cửa bằng khung nhôm kính được sơn trắng phần khung phù hợp với tổng thể căn nhà. Tân cổ điển nhưng không thể thiếu đi những nét hiện đại khi sử dụng phần cây xanh ở không gian các tầng.

Một mẫu thiết kế theo đuổi dòng phong cách tân cổ điển nhưng có phần mái Thái kép chắc chắn cũng khiến gia chủ phải để ý. Thay vì gam màu truyền thống của cổ điển trước đây, thì việc lựa chọn gam màu mới liệu có mang đến sự mới lạ độc đáo. Câu trả lời là có bởi chính gam màu kết hợp với trắng đã làn nên điểm thu hút. Hệ thống cột nhà cũng được chú trọng hơn khi kết hợp cùng với họa tiết cầu kỳ bắt mắt.
Mái Thái kép chính là điểm nhấn tiếp theo bởi mang đến kiến trúc ấn tượng, mang vẻ đẹp của sự bề thế, hoàn chỉnh những nét còn thiếu về kiến trúc tân cổ điển được sử dụng xây dựng nhà ở tại phố.
Nhà 3 tầng mặt tiền 4m
Nhà 3 tầng mặt tiền 4m có thiết kế hiện đại, đầy đủ công năng sử dụng, mang lại giá trị thẩm mỹ cao phù hợp với gia đình.

Không chỉ ấn tượng với vẻ ngoài hiện đại, mà ngôi nhà 3 tầng còn được xây dựng không gian bên trong hợp lý, tạo ra môi trường sống lý tưởng cho gia đình.

Toàn bộ không gian tầng 1 được chia làm hai khu vực chính gồm phòng khách rộng rãi bên ngoài, cầu thang bố trí ở giữa cùng vườn cảnh nhỏ tạo thành ranh giới phân chia. Bên trong là phòng ăn và bếp liền kề giúp việc nấu nướng trở nên thuận tiện hơn.

Tầng hai bao gồm hai phòng ngủ với nội thất hiện đại, tạo không gian nghỉ ngơi hiệu quả cho các thành viên trong gia đình. Các phòng đều được bố trí WC riêng đảm bảo sự riêng tư, thuận tiện cho sinh hoạt của mỗi người.

Phòng thờ được xây dựng tại tầng 3 của căn nhà. Có cả ban công hướng sân thượng rộng rãi nhằm lưu thông không khí tốt hơn.
Cách bố trí không gian nhà như vậy sẽ đảm bảo cho sinh hoạt hàng ngày của gia đình, cũng như mang đến sự thoải mái trong căn nhà.
Mẫu nhà ống 3 tầng mặt tiền 4m hiện đại có ban công thoáng đẹp
Màu sắc lựa chọn và kết hợp trang trí mặt tiền nhà ống hiện đại 3 tầng 4mx13.5m cũng nhẹ nhàng, hài hòa không có gì quá nổi bật. Điều quan trọng là ngôi nhà có hướng lấy sáng và lấy gió mát tự nhiên khá tốt, hướng mặt tiền cũng chuẩn phong thủy. Phương án thiết kế nhà ống 3 tầng mặt tiền 4m hiện đại đang được nhiều gia đình sống ở các khu đô thị lựa chọn.

Mẫu nhà ống 3 tầng mặt tiền 4m hiện đại độc đáo
Mẫu nhà lô phố hiện đại mặt tiền 4m độc đáo tại đáp ứng tốt yêu cầu về mặt thẩm mỹ của CĐT. Bên cạnh đó, ngôi nhà vẫn đảm bảo không gian sống tiện nghi đồng thời đảm bảo yếu tố chuẩn phong thủy. Sự đồng nhất trong cách phối màu sắc giữa các tầng, cụ thể là sự kết hợp tone trắng trang nhã kết hợp xanh, ghi tạo diện mạo độc đáo, cá tính cho công trình nhà phố hiện đại.

Mẫu thiết kế nhà ống 3 tầng hiện đại mặt tiền 4m hẹp thoáng đãng và đầy đủ ánh sáng nhờ cách bố trí các hình khối một cách khéo léo. Thay vì thiết kế ban công hành lang và cửa sổ, giếng trời vẫn thường quen thuộc với mô hình nhà ống, sáng tạo bằng cách thiết kế cửa sổ nhỏ với kính ở mặt tiền tầng 2. Ấn tượng hơn cả thiết kế mặt tiền gạch lỗ thông gió vừa gợi mở không gian thoáng và lấy ánh sáng tốt nhất. Trên cùng là sân thượng với lan công cùng tone đen với cửa sổ nhà phố 3 tầng.
Mẫu nhà ống 3 tầng mặt tiền 4m hiện đại đơn giản thoáng mát
Tiếp theo cũng là một phương án khá thiết thực và rất đáng tham khảo, phù hợp với cặp vợ chồng trẻ chi phí đầu tư có giới hạn. Mẫu nhà ống 3 tầng mặt tiền 4m hiện đại đơn giản đáp ứng được yêu cầu về không gian sinh hoạt đầy đủ công năng, các phòng có độ thoáng nhất định đặc biệt là phòng ngủ có cửa sổ, ban công hút gió và đón ánh sáng hợp lý. Kiến trúc nhà ống hiện đại 3 tầng thiết kế bố cục rõ ràng, mạch lạc cân đối với tone màu trắng chủ đạo đầy trang nhã kết hợp tone nâu ghi đầy cá tính.

Mẫu nhà ống 3 tầng mặt tiền 4m hiện đại không có ban công
Nếu là người thích phong cách hiện đại nhưng cần tối giản hóa ngoại thất, dù là chi tiết nhỏ, thì bạn sẽ rất hài lòng với phương án thiết kế nhà ống 3 tầng mặt tiền 4m. Mặt tiền nhẹ nhàng, phối màu hài hòa với cách tạo hình vuông vắn, mạch lạc. Thiết kế cửa sổ kính cường lực các tầng là điểm nhấn cho mặt tiền ngôi nhà, dù không có ban công hành lang do hạn chế diện tích (4.2mx14.5m) vẫn lấy gió lấy sáng khá tích cực.

Sắc trắng chủ đạo phối màu ghi đậm dịu mắt vừa theo sở thích gia chủ vừa hợp thời.Tầng 1 nhà ống lùi lại vài mét bố trí khoảng sân nhỏ làm cổng tiện cho việc ra vào cũng như để các phương tiện đi lại của gia đình.
Xem thêm:


































