Nếu như bạn đang sở hữu diện tích sàn 8x9m thì điều đó đồng nghĩa là là bạn đang sở hữu một ngôi nhà tương lai với thiết kế nhà vuông. Thiết kế mẫu nhà phố 8x9m có khó không? Và phương án thiết kế đẹp nhưng phải mang được nét tính cách cá nhân của gia chủ, độ đáo, sáng tạo dành cho mẫu nhà phố 8x9m này như thế nào?
Thiết kế nhà vuông mẫu nhà phố 8x9m có khó không?
Mẫu nhà phố 8x9m được xem là mẫu nhà mơ ước của rất nhiều gia chủ bởi phần diện tích 8x9m này được xem là khá vuông vức giúp cho kiến trúc sư dễ dàng cho ra đời những bản thiết kế nhà hiện đại, tiện nghi và độc đáo.

Mẫu nhà phố 8x9m dễ dàng trong việc bố trí không gian trong nhà cho gia chủ sử dụng. Lấy ví dụ minh họa để hình dung rõ ràng hơn về cách bố trí của những mẫu nhà vuông nói chung và mẫu nhà phố 8x9m nói riêng với quy mô xây dựng 3 tầng, ta sẽ có bản thiết kế từng tầng như sau:

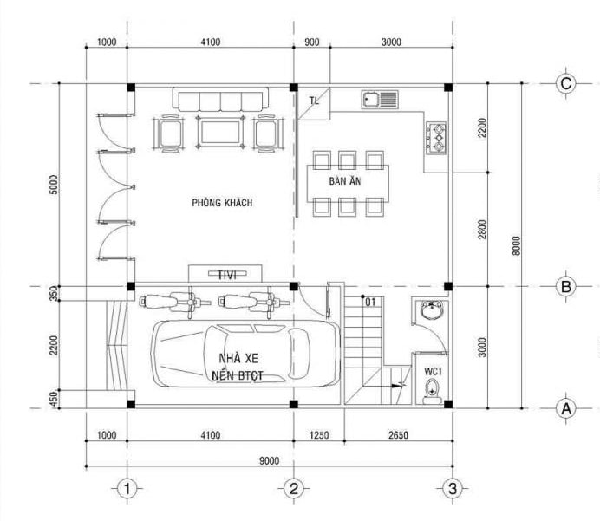
Mặt bằng của ngôi nhà phố 8x9m sẽ được phân chia làm hai diện tích với mỗi bên có chiều ngang tương ứng là 3m và 5m, và không gian bố trí song song để lưu thông không khí, ánh sáng cùng với hệ thống mạng lưới điện nước cũng dễ dàng hơn. Bước vào mặt bằng thiết kế tầng 1 với 1 phòng khách, 1 bếp + ăn, 1 gara oto và 1 nhà vệ sinh.
Phòng khách được bố trí ở bên diện tích có 5m chiều ngang để gia chủ có được một không gian để tiếp đón vị khách tới chơi nhà trong một diện tích rộng rãi. Ngay sau không gian phòng khách sẽ là không gian bếp kết hợp với bàn ăn. Giữa phòng khách và không gian bếp + ăn được nối thông, nếu có ngăn thì sử dụng vách ngăn mỏng để không làm ảnh hưởng đến di chuyển cũng như ánh sáng trong ngôi nhà. 3m còn lại được kiến trúc sư bố trí gara oto, cầu thang thông tầng và nhà vệ sinh cuối nhà để không gây mùi ảnh hưởng đến không gian khác trong nhà.

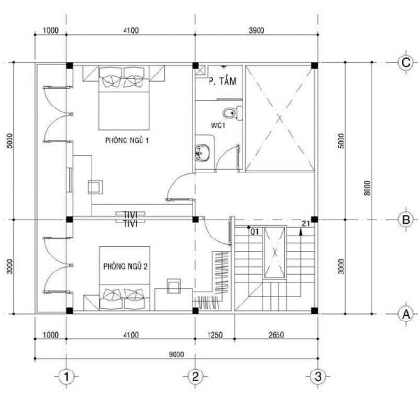
Mặt bằng tầng 2 với 2 phòng ngủ và một nhà vệ sinh chung cho hai phòng tiện nghi, cùng với hệ thống cầu thang thông tầng.

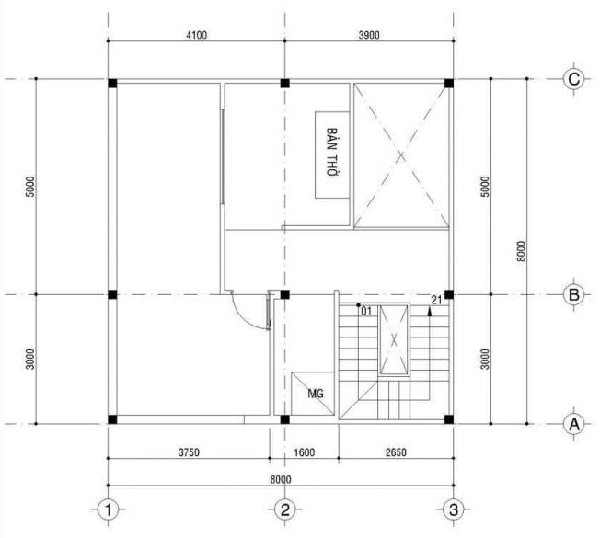
Cuối cùng là mặt bằng tầng 3 với khu vực để bàn thờ, cầu thang thông tầng và toàn bộ diện tích còn lại là sân thượng lớn cho gia chủ tùy ý bố trí.
Với quy mô xây dựng 3 tầng cho mẫu nhà phố 8x9m như trên được xem là đầy đủ tiện nghi, đáp ứng được nhu cầu của gia chủ hiện nay. Đặc biệt mẫu nhà có gara và kiến trúc tầng tum lại càng có được nhiều sự quan tâm vì gia chủ có thể để được oto ngay trong ngôi nhà của mình mà không phải tìm chỗ đỗ xe ở xa nhà như những mẫu nhà thiết kế nhà phố cũ trước đây. Thêm một điểm nữa là mẫu nhà phố đẹp này có được những không gian xanh, thiên nhiên giúp lọc không khí cũng như mang đến không gian nghỉ ngơi tại gia cho gia chủ.

Từ bản thiết kế mặt bằng phía bên trên có thể dễ dàng nhận thấy diện tích sàn 8x9m thuận lợi lưu thông không khí, ánh sáng trong không gian nhà. Với đặc điểm này gia chủ không còn phải lo lắng tình trạng bí bách hay không có ánh sáng trong toàn bộ không gian nhà mà diện tích méo hay khuyết gặp phải.
Mẫu nhà phố 8x9m được chuyên gia xây dựng đánh giá phù hợp với mọi thiết kế, kiến trúc từ cổ điển đến hiện đại, đáp ứng được cái gật đầu cho gia chủ.

Từ đó có thể trả lời được rằng mẫu nhà phố 8x9m không hề khó thiết kế một chút nào, ngược lại có rất dễ dàng để kiến trúc sư bố trí không gian trong nhà và đặc biệt sẽ cho ra được phần phối cảnh mặt tiền cực kỳ ấn tượng và mang đậm dấu ấn cá nhân chính gia chủ sở hữu.
Ngoài ra phải kể đến mẫu nhà phố 8x9m được đánh giá là hợp phong thủy, giúp cho gia chủ thuận lợi trong công việc, sự nghiệp, sức khỏe và hạnh phúc gia đình. Lý do được đưa ra bởi hình vuông là biểu tượng cho đất thì gia chủ đang sở hữu diện tích vuông vức như vậy và hình tròn là biểu tượng cho trời. Từ đó thấy sự dung hòa giữa đất và trời, âm dương hòa hợp sẽ mang lại vượng khí cho gia chủ. Đây cũng chính là lý do vì sao mẫu nhà này được rất nhiều gia chủ quan tâm.
Xu hướng thiết kế mẫu nhà phố 8x9m hiện nay dấu ấn gia chủ được nhấn mạnh

Một mẫu nhà phố 3 tầng 8x9m được hiện diện thực tế mang đến cho gia chủ sự hiện đại tiện nghi ngay trong phối cảnh mặt tiền của ngôi nhà. Lựa chọn phong cách thiết kế theo hướng hiện đại nên nổi bật ngôi nhà này chính là hình khối và việc sử dụng nguyên vật liệu xây dựng thi công rất đa dạng. Với ngay mặt tiền tầng một đã sử dụng hệ thống cửa sắt vô cùng vững chắc cới hai màu đỏ và xám ấn tượng cùng với tường ốp đá nhám thể hiện nét cá tính của gia chủ. Nếu như cổng đã chia làm hai diện tích thì đối chiếu lên tầng 2 và 3 của ngôi nhà sẽ là diện tích tương ứng và trong kiến trúc được gọi với cái tên là kiến trúc đối xứng.
Tầng 2 được gia chủ chia thành 2 diện tích với một bên là cửa chính 4 cánh bằng kính khung nhôm được sơn nâu kết hợp cùng hệ thống ban công bằng sắt với cột trụ bằng gạch, xi măng được ốp đá nhám, thêm vào lam che nắng sơn trắng. Bên còn lại cửa sổ với hai ô cửa sổ nhỏ, bên ngoài ốp đá tạo điểm nhấn, thêm chút tiểu cây xanh tăng tính thẩm mỹ. Lên đến khu vực mặt tiền tầng 3 kiến trúc sư tạo ấn tượng với hệ thống ban công giả mái lệch ấn tượng. Với kiến trúc độc đáo này sẽ như lam che nắng để hạn chế lượng nhiệt lớn vào trong ngôi nhà hiệu quả.

Với phần mặt tiền sử dụng chất liệu kính cường lực, chịu lực, chịu nhiệt, cách âm như vậy cũng mang đến kiến trúc hiện đại cho toàn bộ mẫu nhà phố 8x9m.
Phong cách hiện đại không giới hạn sự sáng tạo của con người, chính vì thế phần mặt tiền ấn tượng với khối hình vuông vực chắc chắn kết hợp sự phối màu sắc trắng nâu. Tăng thêm điểm nhấn, kiến trúc sư sử dụng đường chỉ phào, ốp đá trắng cho cột trụ đặt chìm ở mặt tiền để tăng sự chú ý của bất kỳ vị khách nào đi ngang qua.

Quy mô nhỏ gọn hơn chỉ là mẫu nhà phố 8x9m xây dựng quy mô 1 tầng cùng với kiến trúc sân vườn sẽ là mẫu thiết kế dành cho ngôi nhà ngoại ô thành phố hiện nay mà gia chủ nào cũng muốn sở hữu.
Diện tích sàn nhỏ gọn 8x9m với phối cảnh mặt tiền tối giản, tone màu nâu cam mang đến cảm giác dễ chịu, kiến trúc giả ống khói kết hợp phần mái thái cùng tone màu mang đến ngôi nhà theo kiến trúc châu Âu ấn tượng. Với những mẫu thiết kế như thế này chẳng khác gì một căn vila sang trọng đắt tiền mà gia chủ phải tốn nhiều công sức tiền bạc lại phải di chuyển xa mới có thể tận hưởng được.

Tiếp tục là kiến trúc 1 tầng cho mẫu nhà phố 8x9m với thiết kế 2 phòng ngủ đã đáp ứng được nhu cầu sinh hoạt cơ bản, cần thiết cho mỗi gia chủ cần.
Mặt tiền chỉ đơn giản là khối hộp vuông đặt cạnh vào nhau. Tone màu xám trắng kết hợp cùng cửa kính khung gỗ hiện đại. Dưới cửa sổ gia chủ đặt bộ bàn ghế nhỏ giúp gia chủ có một không gian nhỏ xinh với view vườn thư giãn. Bên phải đặt thêm gara thế là đã có được mẫu nhà phố 8x9m nhỏ gọn nhưng đầy đủ tiện ích, chi phí phù hợp.

Mẫu nhà phố 8x9m với thiết kế tầng tum đặt tại con phố thì đây chắc chắn là kiến trúc kiểu mẫu cho xu hướng thiết kế tương lai. Với thiết kế tầng tum ở sân thượng, gia chủ có ngay không gian xanh bắt buộc cần có cho mẫu nhà có diện tích trên 50m2 hiện nay, đôngg thời đây cũng chính là phần diện tích mà bất cứ gia chủ nào cũng muốn khoe với tất cả vị khách đến thăm nhà. Vì đây là không gian cao nhất, yên tĩnh nhất với cây xanh bao quanh, tất cả hướng đến một không gian nghỉ ngơi, tái tạo năng lượng cho gia chủ ngay tại gia với chi phí siêu tiết kiệm. Hơn hết không gian này đâu chỉ mỗi gia chủ sử dụng mà tại đây buổi tụ tập bạn bè, người thân ăn nướng bbq chẳng phải rất tuyệt vời hay sao?

Với kiến trúc tầng tum nhưng mẫu nhà phố 8x9m này vẫn tiếp tục sử dụng kiến trúc đối xứng thường thấy mẫu nhà có phần mặt tiền khá lớn như này. Phần cổng tầng 1 chia làm hai không gian với một bên là hệ cổng sắt sơn đen cùng phần viền trắng, chân cột xám, phần còn lại rào với tường gạch vững chắc, bên ngoài ốp đá. Bên trên hệ thống cổng rào bố trí thêm thanh sắt chắc chắn để đảm bảo an ninh cho toàn bộ ngôi nhà. Tại rào của ngôi nhà bố trí thêm cây xanh để tạo không gian. Đối chiếu lên mặt bằng tầng hai cũng nét kiến trúc tương tự. Tầng 2 có kiến trúc tiến ra phía trước hơn tầng 1 một chút, phần diện tích đó để gia chủ bố trí thành phần ban công sắt sơn tĩnh điện đen nhỏ và lối ra cửa chính. Phần còn lại được bố trí cửa sổ kính tràn với bồn hoa bên ngoài tạo không gian, thêm phần viền nâu nhấn nhá. Cuối cùng là tầng 3 cới ban công bằng sắt nhưng thiết kế đa dạng với màu sắc khác nhau cùng với lam che năng bên trên mang đến khu vực tầng tum khá đẹp mắt.

Hoặc với tầng tum với thiết kế hở như trên cũng sẽ là sự lựa chọn cho gia chủ xây dựng nhà hiện nay. Mặt tiền của mẫu nhà phố 8x9m này sử dụng thêm sơn giả gỗ mang đến sự sang trọng nhất định trong toàn bộ thiết kế. Hệ thống lam che nắng cũng điểm nhấn cho mặt tiền của ngôi nhà. Thêm nữa gia chủ sử dụng rất nhiều cây rủ để mang lại cảm nhận giống như mặt tiền được bao phủ bởi cây xanh.

Kiến trúc chữ L cũng là kiến trúc không thể không nhắc đến dành cho mẫu nhà phố 8x9m. Với ưu điểm mang đến sân ngay trong kiến trúc nhà ở, những mẫu thiết kế này rất được lòng gia chủ ở khu vực thành phố. Đây là khoảng không gian hiếm hoi để những đứa trẻ sinh sống tại căn nhà phố có được không gian chơi đùa an toàn tại gia.

Ở kiến trúc chữ L này gia chủ hoàn toàn có thể sử dụng phong cách thiết kế tân cổ điển để mẫu nhà phố 8x9m giống như căn biệt thự mini. Như ví dụ trên mẫu nhà mang đậm nét kiến trúc nước Pháp xa hoa, tráng lệ với phần ngói đặc trưng kết hợp với màu xanh thẫm. Ngôi nhà như này sẽ có kiến trúc khá đồ sộ với mặt bằng xung quanh và để lại ấn tượng mỗi vị khách.


































