Cuộc sống hiện đại càng ngày phát triển, nhu cầu sống của mỗi người cũng ngày càng cao. Vì thế, ai cũng mong muốn sỡ hữu 1 căn nhà với diện tích không quá lớn mà lối kiến trúc lại chắc chắn, bền vững, đảm bảo được những công năng tiện ích và một không gian sống thoải mái. Mẫu nhà 2 tầng diện tích 5x20m cũng là 1 lựa chọn thích hợp cho những hộ gia đình sống ở thành phố, các đô thị lớn mà chiều ngang tương đối hạn chế. Bài viết này nhằm cập nhật, cung cấp những thông tin mới nhất về các mẫu nhà 2 tầng 5x20m hiện đại.
Ưu điểm của nhà 2 tầng 5x20m

Là một lựa chọn thiết thực cho những hộ gia đình có diện tích đất không quá lớn, nhưng vẫn đảm bảo được chiều sâu và không gian sống tiện nghi, rộng rãi cho gia đình. Phù hợp cho những hộ gia đình có từ 3 – 4 thành viên cùng sinh sống.
Giúp gia chủ tiết kiệm thời gian trong quá trình thi công, đảm bảo đúng tiến độ, hạn chế phát sinh ngoài ý muốn.
Vì là mẫu nhà có xu hướng mới nên được nghiên cứu và thiết kế đa dạng, đa phong cách, đa kiến trúc, là lựa chọn hoàn hảo để giải quyết bài toán kinh tế cho các hộ gia đình và các bạn trẻ hiện nay.
Một số bản vẽ thiết kế nhà 2 tầng 5x20m
Bản vẽ 1: tầng 1 được thiết kế và bố trí nội thất rất gọn gàng, phòng khách rộng rãi, thoáng mát, bảo đảm được không gian sống sinh hoạt, tiếp khách dễ dàng mà không bị gò bó hay chật hẹp. Tiếp theo là phòng bếp, có bố trí sẵn bàn ghế để tiện sinh hoạt ăn uống rất thoải mái mà không chiếm quá nhiều không gian diện tích. Thiết kế 2 phòng ngủ sát nhau, mỗi phòng đều có toilet riêng rất tiện lợi và 1 toilet chung phía cuối nhà để dễ dàng sinh hoạt.

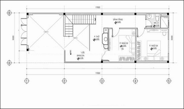
Mặt bằng tầng 2 cũng khá thoải mái và rộng rãi chỉ có 1 phòng thờ, 2 phòng ngủ và 1 toilet, còn lại là ban công thoáng mát thuận tiện cho việc phơi đồ. Cách bố trí rất thoải mái và hợp lí, tuy chỉ có 5x20m nhưng vẫn đảm bảo được không gian sống và các công năng tiện ích.

Bản vẽ 2: Tầng 1 bao gồm: gara để xe, phòng khách, bếp và phòng ăn, toilet chung, phòng ngủ và toilet riêng trong phòng. Thiết kế nhà 2 tầng 5×20m có khoảng sân vườn rộng rãi phía trước dùng để đậu xe và các phương tiện rất thuận tiện. Ngoài ra còn tạo sự thông thoáng, thoải mái cho ngôi nhà. Không gian sinh hoạt phòng khách, bếp và phòng ăn được bố trí trong một không gian mở rộng rãi, nội thất được sắp xếp gọn gàng, hợp lý. Cầu thang được bố trí sát tường, nhà vệ sinh chung tối ưu tiết kiệm được diện tích hiệu quả. Phòng ngủ rộng rãi có nhà vệ sinh khép kín rất thuận tiện cho cặp vợ chồng.

Tầng 2 gồm phòng thờ, 2 phòng ngủ, không gian đọc sách, 2 toilet. Đây là không gian nghỉ ngơi, thư giãn và học tập dành cho các con với 2 phòng ngủ. Một phòng ngủ được thiết kế có toilet bên trong và phòng ngủ còn lại sử dụng nhà vệ sinh bên ngoài. Thiết kế này tạo sự tiện lợi trong quá trình sinh hoạt khi đọc sách và giặt phơi. Phòng thờ được bố trí hướng cửa ra ngoài hợp với phong thủy, đảm bảo tiện nghi và rộng rãi.

Bản vẽ 3: Mặt bằng tầng 1 bao gồm không gian để xe, không gian phòng khách sinh hoạt được bố trí ở gần cầu thang rất thuận lợi cho việc đi lại. Tiếp đến là phòng ăn kết hợp với bếp được bố trí rất rộng rãi kèm toilet khá tiên lợi. Phía cuối nhà là phòng ngủ, không gian phòng ngủ được bố trí tiếp cận theo hai hướng mở của ngôi nhà.

Tầng 2 bao gồm 2 phòng ngủ, 1 toilet, 1 phòng thờ, sân chơi và sân phơi. Tất cả các không gian trên đều được mở cửa ra ngoài để lấy tối đa ánh sáng và gió tự nhiên. Phòng ngủ phía trước giúp lấy ánh sáng tự nhiên nhưng vẫn đảm bảo không bị nắng nóng, nhiệt từ bên ngoài. Ngoài ra ngôi nhà được thiết kế ban công hình chữ L bao quanh, trồng các loại cây xanh che mát đảm bảo không gian sống và sinh hoạt thoải mái, gần gũi với thiên nhiên.

Các mẫu nhà 2 tầng diện tích 5x20m hiện đại

Mẫu nhà 2 tầng chỉ vỏn vẹn 5x20m nhưng được thiết kế rất sang trọng và hiện đại. Ngoại thất được bố trí cân xứng với diện tích của ngôi nhà rất khỏe khoắn, năng động. Gam màu trắng kết hợp với những điểm đen tạo nên nét tương phản làm nổi bật cả căn nhà. Tuy với diện tích chiều ngang tương đối hạn chế nhưng ngôi nhà vẫn đảm bảo được chiều sâu và đem đến không gian sống thoải mái, tiện nghi cho các hộ gia đình.

Mẫu nhà ống 2 tầng 5x20m với lối kiến trúc thiết kế hiện đại, nhã nhặn bởi gam màu trắng thanh khiết kết hợp với những điểm màu xám tạo lên nét tương phản mới mẻ cho căn nhà. Những đường cắt dọc ở ban công tạo nên sự trẻ trung, năng động cho những ai muốn sỡ hữu căn nhà này. Ngoài ra phần hệ thống cửa được lắp đặt bằng kính cường lực chắc chắn, vừa giảm bớt tiếng ồn lại có thể đón luồn ánh sáng tự nhiên vào trong căn nhà, giúp căn nhà trở nên rộng rãi, khang trang và nổi bật hơn.

Cùng với lối kiến trúc hiện đại cách tân, ngôi nhà được thiết kế với gam màu trắng và đen hài hòa, tạo nên sự tương phản mới mẻ cho căn nhà. Phần cửa cổng và hàng rào được lắp đặt bằng hệ thống sắt chống gỉ màu trắng, vừa hiện đại lại vừa mang tới nét thẫm mỹ. Phía cửa kính được lắp đặt bằng hệ thống kính cường lực, dày dặn, chắc chắn, lại có thể chống ồn và góp phần mang luồn ánh sáng vào căn nhà để khiến căn nhà rộng rãi thoáng đãng hơn. Nhìn tổng thể căn nhà trông thật hài hòa, sang trọng. Đang là mẫu nhà với những nét đẹp nổi bật rất được ưa chuộng hiện nay.

“Nhà xanh” được thiết kế lấy ý tưởng từ việc mang thiên nhiên, cây cối vào trong kiến trúc nhà ở. Vừa mang lại nét đẹp hài hòa, thoải mái, phóng khoáng, lại có thể giúp con người gần gũi với thiên nhiên hơn, xua tan mọi mệt nhọc bộn bề của cuộc sống, mang lại cảm giác tích cực cho chủ nhân của căn nhà. Hệ thống kiến trúc được thiết kế hiện đại, chia cắt thành nhiều ô vuông xếp tầng khiến việc trồng và sắp đặt cây xanh trở nên dễ dàng hơn. Gam màu trắng hòa quyện cùng màu xanh của thiên nhiên cây cỏ và cổng màu vân gỗ, khiến chúng ta tưởng tượng như đang ở trong một khu rừng mát mẻ giữa phố thị. Đây là mẫu nhà mới đang được rất nhiều các cặp vợ chồng trẻ và các hộ gia đình yêu thích ngày nay.

Khác với ngôi “nhà xanh” ở trên, căn nhà này độc đáo bởi sự sáng tạo trong lối kiến trúc xây dựng bằng việc lấy ý tưởng từ đàn piano. Gam màu trắng và đen hài hòa khiến căn nhà biến thành một cây đàn piano khổng lồ sang trọng. Các thanh chắn được bố trí và lắp đặt vừa mang lại những công năng tiện ích cho căn nhà, lại tạo nên nét đẹp thẫm mỹ, khiến người khác nhìn vào có thể liên tưởng ngay đến những phím đàn ngân vang. Phần ban công được xây dựng dãy đệm hình chữ nhật phía trước mặt tiền, vừa có thể trồng những bụi hoa xinh xắn, đẹp đẽ lại có thể che chắn cho căn nhà không bị ánh sáng chiếu thẳng vào. Nhìn chung, căn nhà vừa mới mẻ trong lối kiến trúc xây dựng, lại mang nét đẹp hiện đại, thể hiện được những công năng tiện ích đem đến cho các hộ gia đình ngày nay.

Ngôi nhà mái thái được thiết kế với lối kiến trúc tân cổ điển, vừa mang nét đẹp hiện đại lại có những công năng tiện ích đem đến cho người chủ sỡ hữu. Gam màu trắng thanh thoát phối hợp cùng mảng gạch men màu xám vừa tạo nên sự hòa quyện tương phản, lại khiến căn nhà trông trở nên trẻ trung, năng động hơn rất nhiều. Giống với những căn nhà trước, mẫu nhà này sử dụng hệ thống kính cường lực để có thể chống ồn, vừa đảm bảo được sự riêng tư phía bên trong căn nhà, lại có thể chắn được một phần ánh nắng đi vào trong căn nhà.

Đơn giản nhưng hiện đại trẻ trung là phong cách mà lối kiến trúc hiện đại này mang lại cho các hộ gia đình năng động hiện nay. Ngoài phần mái thái sang trọng với những công năng tiện ích cho căn nhà thì lối kiến trúc xây dựng cũng là một nét mới lạ. Cửa cổng được lắp đặt bằng hệ thống sắt chắc chắn, vừa mang lại tính thẫm mỹ lại có thể đảm bảo an toàn, an ninh cho căn nhà. Bố cục trang trí ở mặt tiền và tầng lầu cũng được sắp xếp đối xứng, hài hòa, phù hợp với nhau. Khiến căn nhà trở nên sang trọng, hiện đại, bắt mắt hơn hẳn.

Với những gam màu tối khỏe khoắn, hiện đại, căn nhà tạo nên một vẻ đẹp trẻ trung, năng động. Sự thiết kế mới mẻ trong lối kiến trúc và cách trang trí ngoại thất mang đến những công năng tiện ích cho ngôi nhà cũng như đảm bảo được độ thẫm mỹ, an toàn và vững chắc. Đây là lối kiến trúc nhà ở hot đang rất được ưa chuộng ngày nay.
Với những thông tin hữu ích về mẫu nhà 2 tầng 5x20m hiện đại, hi vọng rằng bạn có thể tìm cho gia đình nhỏ của mình một căn nhà ưng ý, đảm bảo được các công năng tiện ích và góp phần làm cho cuộc sống trở nên thoải mái hơn.
































