Sở hữu một diện tích sàn lên đến 9x12m gia chủ có rất nhiều phương án thiết kế cho ngôi nhà của mình. Nhưng cũng bởi có quá nhiều phương án thiết kế khiến gia chủ chưa biết lựa chọn như thế nào cho ngôi nhà tương lại của mình thì cũng theo dõi bài viết dưới đây để xem thiết kế mẫu nhà phố 9x12m để có thể quyết định mẫu nhà phù hợp.
Mẫu nhà phố 9x12m có sân vườn sánh ngang với biệt thự vila sang trọng
Diện tích sàn 9x12m hoàn toàn có thể làm nên một mẫu nhà có sân vườn cực chất, cực sang và xứng với cái tên biệt thự vila nghỉ dưỡng hiện đại bậc nhất hiện nay.

Đặc điểm chung của mẫu nhà phố 9x12m có sân vườn sẽ xây dựng tại khu vực ngoại ô thành phố - nơi có diện tích lớn, không gian xung quanh rộng rãi, không có nhiều nhà cao tầng xây dựng xung quanh làm ảnh hưởng đến tầm nhìn chung.
Quy mô xây dựng nhà 1 tầng hoặc 1 tầng có gác lửng hay 1 tầng có kết hợp với kiến trúc mái. Phong cách xây dựng cũng rất đa dạng: từ hiện đại đến cổ điển, tân cổ điển, hoặc lựa chọn kiến trúc mang đậm nét đặc trưng của nước Pháp cổ kính và hoa lệ cho ngôi nhà của mình.

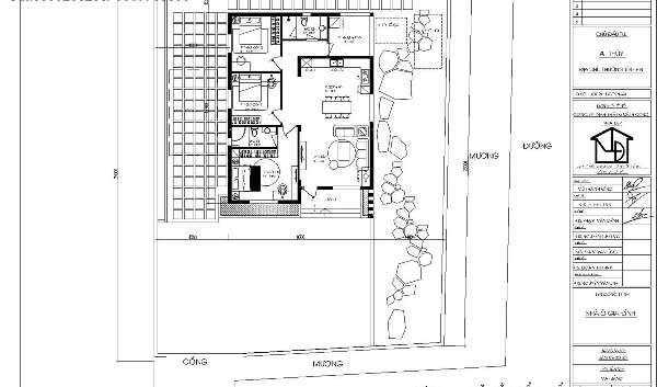
Nhìn vào mặt bằng thiết kế cho mẫu nhà phố 9x12m được chia thành 2 diện tích, không gian song song với nhau đáp ứng được nhu cầu từ chính gia chủ. Một bên là diện tích không gian phòng khách, tiếp đến khu vực bếp + ăn, cuối cùng là phòng vệ sinh, khu vực giặt đồ cùng lối ra cửa sau thông ra vườn. Bên kia diện tích được bố trí 3 phòng ngủ liền kề với nhau trong đó có 1 phòng ngủ master có nhà vệ sinh bên trong mang lại sự kín đáo riêng tư cho thành viên trong gia đình sự dụng.

Mẫu nhà phố 9x12m có sân vườn nằm trong top thiết kế được săn đón của các gia chủ bởi vừa đạt được hiệu quả thẩm mỹ lại vừa phù hợp sự phát triển thiết kế hiện nay.
Mẫu nhà phố 9x12m xây dựng theo lối tân cổ điển, mang đặc trưng kiến trúc Pháp với nét đặc trưng như sau: Hệ thống cột trụ vững chắc được đặt tại khu vực cửa chính ngôi nhà, phần chân ốp đá chắc chắn, sang trọng, đồng thời bảo vệ trước sự tác động của thời tiết, phân thân có đường sẻ sọc sâu kết hợp với đèn để tạo điểm nhấn. Bức tường được sơn trắng cùng nét chỉ phào tạo nên điểm nhấn cho tổng thể thiết kế. Cửa chính bằng gỗ tự nhiên vô cùng sang trọng được đặt chính giữa, hai cửa sổ hai bên cùng với hệ thống bồn hoa ốp đá nhám thiết kế chạy dài theo khung cửa mang đến không gian cho ngôi nhà. Mẫu thiết kế sử dụng hệ thống bậc tam cấp tạo ấn tượng chiều cao cho ngôi nhà. Cuối cùng là hệ thống mái ngói xanh dương hoàn chỉnh nét kiến trúc sang trọng pha lẫn nét hiện đại.

Phong cách thiết kế hiện đại cũng là sự lựa chọn cho mẫu nhà phố 9x12m với không gian vườn xung quanh chắc chắn sẽ khiến bạn phải thích thú. Vẫn giữ nguyên nét kiến trúc bên nhưng thay vì hệ thống cột trụ vuông vực thù mẫu nhà này lại thiết kế với khối hộp được ốp gạch nhám màu xám bên ngoài. Hệ thống cửa chính được làm bằng gỗ tự nhiên, còn lại hai khung cửa sổ sử dụng kính khung nhốm chắc chắn chắn. Phần mái của ngôi nhà lựa chọn tone mà xám trầm khá lạ mắt.

Một thiết kế cho mẫu nhà phố 9x12m với phong cách hiện đại, mái bằng tạo nên không gian nghỉ dưỡng cao cấp cho gia chủ. Ấn tượng ngay bên ngoài của ngôi nhà này chính là không gian xanh được bao phủ. Gia chủ sử dụng cây leo giàn, cây cảnh chậu cho mặt tiền phía trước và hai bên của ngôi nhà. Đặc biệt phần mái bằng, gia chủ đã thiết kế để trở thành không gian sân thượng rộng rãi, với view cao hướng ra xung quanh trông chẳng khác gì một quán café nhưng chỉ phục vụ cho nguyên gia chủ sở hữu căn nhà này.
Mẫu nhà phố 9x12m phù hợp không gian tiện nghi cho cả gia đình

Trên một phần diện tích sàn 9x12m, mẫu nhà phố lựa chọn xây dựng trên quy mô 2 tầng. Theo đánh giá chuyên gia xây dựng đây là quy mô xây dựng phù hợp, đáp ứng được nhu cầu sinh hoạt của thành viên trong gia đình. Hơn hết nguồn ngân sách xây dựng căn nhà này phù hợp với thu nhập của đại gia đình sinh sống tại thành phố hiện nay.

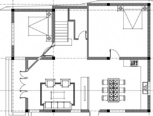
Mặt bằng thiết kế cho mẫu nhà phố 9x12m cho tầng 1 bao gồm: Phòng khách, bếp + ăn, 2 phòng ngủ và nhà vệ sinh.
Vì diện tích mặt tiền lên đến 9m nên kiến trúc sư quyết định chia đôi diện tích này 2 phần diện tích, đặt không gian song song với nhau: 1 bên là phòng khách nối liền với không gian bếp + ăn để gia chủ có thể đón tiếp vị khách trong một không gian rộng rãi và thông thoáng. Diện tích còn lại là hai phòng ngủ được ngăn cách với nhau bởi khu vực cầu thang và không gian nhà vệ sinh được đặt cạnh cầu thang để tiết kiệm diện tích.
Ngoài phương án thiết kế này thì gia chủ có thể lựa chọn đặt gara oto tại vị trí phòng ngủ đối diện với phòng khách, phù hợp hơn với nhu cầu của gia đình.

Mặt bằng diện tích tầng 2 là 3 phòng ngủ, phòng sinh hoạt chung và một nhà vệ sinh chung. Với cách bố trí mặt bằng như thế này phù hợp với gia đình nhiều thế hệ sinh sống. Cùng với mặt bằng vô cùng tiện nghi như thế này thì cùng xem phương án phối cảnh mặt tiền như thế nào để đạt được top thiết kế nhiều người yêu thích.

Mẫu nhà phố 9x12m rất được ưu chuộng từ chính gia chủ hiện nay đó là mẫu nhà theo phong cách hiện đại sử dụng kiến trúc mái xéo lệch. Vị trí mặt tiền tầng một được bao bọc bởi hệ thống cổng rào bằng sắt vô cùng chắc chắn, hiện đại với một bên là cổng sắt khung đen, thanh ngang đỏ và một bên là hệ thống tường rào gạch kết hợp với thanh sắt dọc bên trên. Từ vị trí cổng nhìn vào bên trong nhà sử dụng kiến trúc đối xứng tương tự cho vị trí tầng 2 với một bên là hai cửa sổ bằng kính đơn giản với bồn hoa đặt liền kề bên dưới và một bên là cửa kính 4 cánh dẫn ra ban công có lan can bằng kính cường lực chắc chắn. Cuối cùng là hệ thống mái xéo kết hợp kiến trúc mái ấn tượng. Kiến trúc sư để lại một khoảng không gian sân thượng nhỏ để làm thành một không gian giống với quán café trên cao để gia chủ thư giãn sau ngày làm việc.

Vẫn tiếp tục là mái xéo được sử dụng trong thiết kế của mẫu nhà phố 9x12m. Lần này kiến trúc sư sử dụng kiến trúc chữ L cho mẫu nhà này để có thể kết hợp thêm sân vườn ngay trong khuôn viên nhà để gia chủ có thể biến thành khu vực để xe hay không gian sân chơi cho trẻ con trong nhà.
Thiết kế chia làm hai khu vực: Một khu vực lối vào không gian nhà với mặt tiền tầng 1 là hệ thống cửa kính khung nhôm hiện đại, bên ngoài ốp đá đen sang trọng, bên trên tầng sử dụng hệ thống cửa tương tự nhưng ốp gạch nhám, ban công kính và mái lam che hạn chế ánh sáng. Phần diện tích xây dựng lùi bên trong. Phần diện tích còn lại của căn nhà là hệ thống ô cửa sổ bằng kính cùng với chậu cây được thiết kế dọc theo khung cửa.

Mẫu nhà phố 9x12m gia chủ hoàn toàn có thể xây dựng theo quy mô xây dựng 3 tầng theo phong cách hiện đại như trên. Mặt tiền tầng một là hệ thống cổng rào vô cùng chắc chắn được sơn trắng khá nổi bật kết hợp hệ thống cây xanh phù hợp. Tầng 2 và 3 là sự kết hợp chất liệu bằng kính hiện đại với điểm nhấn bức tường sơn giả gỗ mang đến cảm giác sang trong cho toàn bộ ngôi nhà. Tại vị trí tầng 3, kiến trúc sư bố trí phần sân thượng rộng rãi, mái che bên trên cùng hệ thống cây cảnh bên dưới mang lại không gian thư giãn tuyệt vời.

Nét kiến trúc độc đáo cho mẫu nhà phố 9x12m nằm trong top thiết kế không thể bỏ qua. Mẫu thiết kế này đáp ứng tiêu chí độc lạ mang lại sự thích thú cho bất cứ vị khách đến tham quan ngôi nhà. Với diện tích mặt tiền là 9m, kiến trúc sư chẳng gần ngại mà cưa đôi diện tích này để làm nên thiết kế đối xứng tuyệt vời từ cổng vào đến không gian nhà. Việc sử dụng tốt đặc trung hình khối cùng hệ thống lam che nắng mang đến kiến khá ấn tượng, không lẫn đi đâu được nếu bạn đang sở hữu một kiến trúc tương tự.

Một mẫu nhà phố 9x12m có sân vườn rộng rãi bao quanh là thiết kế nổi bật hiện nay. Lựa chọn cho mình phong cách thiết kế tân cổ điển với cột trụ kết hợp với kiến trúc mái, mẫu nhà này vẫn nổi bần bật với thiết kế khá đồ sộ.
Điểm chú ý của mẫu nhà này nằm ở phần mái. Nếu như mẫu thiết kế sử dụng hệ thống mái giật cấp chỉ với mục đích đơn thuần nhấn mạnh vào sự đồ sộ thì ở mẫu nhà này phần mái kết hợp với không gian tầng hai để làm nên nét kiến trúc đặc biệt. Với phần diện tích mái lớn hơn kiến trúc sư để hở khoảng diện tích để làm nên sân vườn mini ngay trong không gian sinh hoạt của gia đình. Vì thế nhìn tổng thể ngôi nhà được bao bọc bởi hệ thống cây xanh.

Vẫn là phong cách tân cổ điển cho mẫu nhà phố 9x12m nhưng xây dựng với quy mô 2 tầng nhỏ gọn hơn so với mẫu thiết kế phía trên. Mẫu thiết kế nhà đẹp này biểu chưng cho nét kiến trúc Pháp được áp dụng tại mẫu nhà ở Việt Nam hiện nay. Hệ thống cột trụ được sử dụng linh hoạt từ cột trụ vuông đến cột trụ trong kết hợp hệ thống mái vòm cổ điển. Phần cửa chính cũng linh hoạt khi sử dụng hệ thống cửa mái vòm ở khu vực tầng hai. Điểm đáng chú ý chính là cây xanh được sử dụng từ tầng 1 đến tầng 2 với hệ thống giàn leo và chậu cây liền kề với khung cửa sổ tầng 1. Phần mái ngói xanh dương tiêu biểu cho nét kiến trúc Pháp, hoàn chỉnh nét thẩm mỹ cổ kính cho ngôi nhà.

Gây ấn tượng bằng tone trắng chủ đạo cũng chính là nét thiết kế nổi bật cho mẫu nhà phố 9x12m theo phong cách tân cổ điển. Với việc sử dụng tone màu như thế này mang đến cảm giác như một cung điện châu Âu xưa kia. Nhưng nếu để nguyên sắc trắng như thế này sẽ gây nhàm chán nên kiến trúc sư đã thêm điểm nhấn với phần gạch ốp vàng cho cửa chính mặt tiền tầng 1, khu vực kiến trúc mái ốp đá, hay thêm cây xanh cho không gian ban công nhà. Nét chỉ phào đơn giản ở tường cũng mang đến điểm nhấn cho toàn bộ thiết kế.
Xem thêm => Mẫu nhà phố 9x10m





























