Xu hướng xây nhà tiết kiệm chi phí được nhiều cặp vợ chồng trẻ ưa chuộng. Những mẫu nhà cấp 4 ngang 7m đã và đang trở thành cơn sốt ứng dụng phổ biến ở các vùng nông thôn và vùng ven. Hãy cùng Xây dựng tham khảo một số mẫu nhà cấp 4 ngang 7m dưới bài viết này nhé!
Ưu điểm của nhà cấp 4 ngang 7m
- Mẫu nhà cấp 4 ngang 7m thiết kế phù hợp với kiểu khí hậu nước ta. Dù là mẫu nhà cấp 4 hay mẫu nhà cấp 4 có gác lửng nói chung đều rất phù hợp với điều kiện khí hậu nước ta cũng như thị hiếu thẩm mỹ của người Việt.
- Ngoài ra, hầu hết mẫu nhà cấp 4 mặt tiền 7m còn phù hợp với lối kiến trúc truyền thống, mang lại cảm giác thân thuộc cho người sử dụng.
- Các mẫu nhà cấp 4 hiện nay khá đa dạng và phong phú về diện tích, từ những mẫu nhà cấp 4 nhỏ xinh diện tích 60-70m2 cho đến những mẫu có thể lớn hơn 100m2.
- Thông thường với những mẫu này thường có thể có từ 2 đến 5 phòng ngủ tùy theo nhu cầu sử dụng, số lượng thành viên trong gia đình của gia chủ.
- Với kiến trúc 1 tầng, mẫu nhà cấp 4 được xem là mẫu nhà lý tưởng nhất kết nối hoàn hảo với thiên nhiên xung quanh mà khó có mẫu nhà nào làm được. Đặc biệt khi nó được kết hợp với những vật liệu hiện đại như kính trong suốt càng làm cho không gian trở nên thông thoáng và gần gũi với thiên nhiên hơn.
- Do kiến trúc xây dựng của các mẫu nhà cấp 4 khá đơn giản nên chi phí xây dựng của các mẫu nhà cấp 4 cũng tương đối thấp. Vì vậy nó cũng phù hợp với nhiều kiểu gia đình khác nhau, kể cả những người có thu nhập trung bình.
Mẫu nhà cấp 4 mái thái ngang 7m

Mẫu nhà ngang 7m đầu tiên hứa hẹn gây sốt không gì khác chính là những mẫu nhà mái thái quen thuộc. Thoạt nhìn, mẫu nhà này không khác gì những mẫu nhà ở nông thôn, nhưng nhìn kỹ thì chắc chắn nó sẽ mang đến cho bạn rất nhiều điều thú vị. Ngôi nhà là sự kết hợp của ba chất liệu gỗ, kính và gạch lát nền ấm cúng. Mái ngói xám đen bên trên đã làm tốt nhiệm vụ bảo vệ bức tường sơn trắng bên dưới được ốp gỗ và cửa kính hiện đại. Tất cả kết hợp nhuần nhuyễn tạo nên một ngôi nhà ống rộng 7m đẹp mà ai cũng muốn sở hữu ngay từ cái nhìn đầu tiên.
Mẫu nhà cấp 4 mái bằng ngang 7m

Góp mặt trong danh sách những mẫu nhà gây sốt không thể thiếu những mẫu nhà cấp 4 mái thái. Bởi nó là một mẫu nhà rất phù hợp với cuộc sống hiện đại và mang lại nhiều tiện nghi và thú vị cho người sử dụng, đặc biệt là với thiết kế mái bằng. Mẫu nhà cấp 4 mái thái ngang 7m được chúng tôi giới thiệu sau đây với lối kiến trúc hiện đại, khỏe khoắn. Mặt tiền ngôi nhà gây ấn tượng với những đường nét thiết kế đơn giản cùng những mảng tường gạch trắng, nâu, vàng nhạt tạo nên một không gian mới nổi bật và cuốn hút.
Mẫu nhà cấp 4 mái lệch ngang 7m

Mẫu nhà mái thái rộng 7m dưới đây là sự lựa chọn tuyệt vời cho những gia chủ thích sự đột phá ấn tượng đồng thời mang lại tính thẩm mỹ và công năng sử dụng. Ngôi nhà là sự kết hợp của những khối hộp vuông vắn khỏe khoắn với mái thái thanh mảnh tạo nên bước đột phá mới cho mẫu nhà cấp 4 mái thái. Màu sắc cũng là một yếu tố quan trọng tạo nên sức hấp dẫn của mẫu nhà ngang 7m này. Thay vì sử dụng những gam màu sáng, ngôi nhà được thiết kế với bộ đôi trắng - nâu mang đến cảm giác ấm cúng và trang nhã cho không gian.
Mẫu nhà cấp 4 ngang 7m có sân vườn

Trong những năm gần đây, xu hướng thiết kế nhà ở gắn liền với thiên nhiên đang là xu hướng thiết kế được ưa chuộng. Vậy không có lý do gì mà mẫu nhà cấp 4 mặt tiền 7m có sân vườn lại không bùng nổ trong năm 2019 này. Xung quanh là những khu vườn xanh mát không chỉ mang đến không gian sống yên bình, thoáng mát. Nơi đây còn là nơi tuyệt vời để bạn nghỉ ngơi, thư giãn sau những giờ làm việc căng thẳng.
Mẫu nhà cấp 4 ngang 7m có gác lửng

Để tăng thêm diện tích sử dụng cho mẫu nhà cấp 4 mặt tiền 7m thì mẫu nhà có gác lửng này là một lựa chọn không tồi cho gia đình bạn. Tầng lửng phía trên gia chủ có thể làm phòng ngủ, phòng thờ hoặc kho chứa đồ để tăng công năng sử dụng mà không ảnh hưởng đến giá trị thẩm mỹ của ngôi nhà.
Mẫu nhà cấp 4 ngang 7m phong cách Châu Âu

Bạn đã từng nghe câu thành ngữ “ăn cơm Tàu, sống Tây, lấy chồng Nhật” chưa? Thật thú vị phải không? Trong đó “to the West” là về những ngôi nhà được thiết kế theo phong cách Châu Âu sang trọng và lịch lãm. Và nó cũng là một trong những xu hướng kiến trúc nhà đẹp hứa hẹn sẽ mang đến nhiều điều bất ngờ trong năm 2021. Những mẫu nhà ngang 7m 4m được thiết kế theo phong cách Châu Âu thường có phần mái ngói rộng với những ống hình khối lớn như mẫu nhà đẹp này. Hơn nữa, nó được bao quanh bởi sân vườn xanh mát tạo nên một khung cảnh vô cùng lãng mạn và yên bình như những khu biệt thự cao cấp.
Mẫu nhà cấp 4 ngang 7x10m

Không quá to lớn, đồ sộ nhưng ngôi nhà cấp 4 dài 7m ngang 10m này lại chiếm được cảm tình của nhiều người với sức hút không thể nào sánh bằng. Ngôi nhà là sự kết hợp nhịp nhàng giữa những hình khối đơn giản và những mái nhà xếp chồng lên nhau tạo cảm giác thanh thoát cho không gian.
Mẫu nhà cấp 4 diện tích 7x20m

Có diện tích xây dựng 7x20m là một lợi thế để xây nhà cấp 4 khang trang Mẫu nhà cấp 4 ngang 7m sâu 20m dưới đây được thiết kế với tông màu trắng chủ đạo kết hợp với mái tôn đỏ. Viền mái được đổ bê tông. Sàn sân trong được sử dụng làm phông nền bằng đá cẩm thạch để tôn lên đường nét kiến trúc của ngôi nhà cấp 4 mái Thái này. Phối cảnh chim bay hoa lá hiên gạch, mái tôn đỏ.

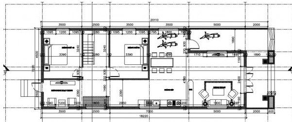
Tầng 1 bao gồm phòng khách ngoài trời. Có thêm một cửa để dắt xe và dẫn vào bếp. Sau đó là 2 phòng ngủ. Ở giữa hai phòng ngủ là cầu thang dẫn lên gác lửng. Cuối sảnh là một phòng khách nhỏ khác.

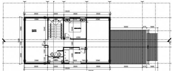
Tầng lửng của mẫu thiết kế này gồm 1 phòng thờ và 1 phòng ngủ. Ngoài ra, một phần thông tầng được kết nối với bể cá ở phía sau và một bộ bàn ghế sofa để uống trà.
Mẫu nhà cấp 4 diện tích 7X15m

Mẫu nhà cấp 4 mái thái ngang 7m dài 15m được thiết kế theo khối kiến trúc hiện đại, đơn giản và trang nhã. Kiến trúc cho thấy một sự tươi mới và khá bền trước các thiết kế nhà khác. Tông màu ghi xám được chọn làm kiểu mái của thiết kế ngôi nhà. Ngôi nhà được thiết kế đủ cao với độ dốc lớn tạo nên sức hút lớn cho người đối diện. Để tạo sự thu hút cho mẫu nhà, kiến trúc sư đã lựa chọn thiết kế và lắp đặt hệ thống cửa gỗ màu cafe kết hợp với kính dán an toàn nhiều lớp tạo nên một không gian khá sang trọng và hiện đại

Từ sảnh chính đi vào là phòng khách với thiết kế không gian khá cao và thoáng. Khu bếp nấu, bàn ăn lớn và kho chứa đồ đi sâu vào bên trong. Không gian sinh hoạt chung này được thiết kế tách biệt với khu sinh hoạt và ngủ nghỉ riêng biệt. Đối diện phòng khách lần lượt là phòng thờ, 3 phòng ngủ. Phòng vệ sinh chung được thiết kế ở góc nhà, đảm bảo ngăn cách khu vực sinh hoạt và ngủ nghỉ của các thành viên khác. Phòng thờ được thiết kế tách biệt với phòng khách do diện tích xây dựng lớn và dài. Vì vậy, kiến trúc sư đã ngăn cách sảnh phòng thờ với phòng khách để đảm bảo mật độ cho không gian nội thất chung. Điều này thuận tiện cho việc thờ cúng của gia đình.
Mẫu nhà cấp 4 diện tích 7x14

Mẫu thiết kế nhà cấp 4 này có thể phù hợp với nhà ở thành phố. Bởi vì diện tích mảnh đất về chiều dài và chiều rộng không cần quá lớn nhưng vẫn đảm bảo được công năng, số lượng phòng và chỗ để xe.

Mẫu nhà 7m 1 tầng này được thiết kế với đầy đủ các công năng cần thiết. Phòng khách và phòng cảm ơn được chia thành 2 khu vực phía trước riêng biệt. Sau đó đến phòng ăn và sau đó là 3 phòng ngủ. 2 phòng vệ sinh được bố trí phía sau nhà để ngăn cách với khu vực riêng tư của các thành viên.
Trên đây là mẫu nhà cấp 4 ngang 7m mà Xây Dựng Số gửi đến bạn. Hy vọng bạn sẽ tìm được ý tưởng mới cho ngôi nhà trong mơ của mình nhé!



















