Nhà vườn 1 tầng tân cổ điển được xem như một lựa chọn hoàn toàn phù hợp dành cho mọi gia đình có nguồn thu nhập cao. Thể hiện mạnh mẽ giá trị từ thẩm mỹ, chúng còn là một công trình được săn đón rất nhiều trong năm 2024 này. Khi bạn yêu thích công năng và lối tổ chức xây dựng từ phong cách này thì bài viết này sẽ là một lời gợi ý hoàn hảo cho những ý tưởng xây dựng của bạn trong thời gian tới.

Khi nói đến thiết kế nhà vườn, người ta sẽ nghĩ ngay đến các công trình được bao quanh là các tiểu cảnh, cây xanh hay các khung cảnh được hiện lên từ một cách rừng. Chúng được rất nhiều người yêu thích và chọn cho mình là một thiết kế chính cho không gian sống. Kết hợp với phong cách tân cổ điển, chắc chắn kiến trúc này sẽ mang đến một “Làn gió mới” cho phong cách xây dựng nhà vườn 1 tầng.
Những lợi thế từ kiến trúc nhà vườn 1 tầng tân cổ điển :
Thực sự mà nói kiến trúc nhà vườn 1 tầng không khác gì quá nhiều về các mẫu biệt thự mà bạn thường thấy, với những thửa đất rộng hệ thống thực vật bao quanh và cả giá trị thẩm mỹ hiện diện phía ngoài mặt tiền lẫn nội thất luôn là ưu điểm nổi bật để đánh giá cho sự toàn diện của chúng. Không những thế kiến trúc nhà vườn 1 tầng còn kèm theo với những lợi thế sau đây :
1. Khi khí hậu đang bị ô nhiễm ngày càng trầm trọng, thì việc thiết kế cho mình từ một công trình tiện nghi 1 tầng luôn mang đến những lợi ích thiết thực cho gia đình bạn. Tạo nên nguồn không khí sạch cho việc hít thở mỗi ngày của bạn mà còn là một tấm lá chắn hoàn hảo mà các tác nhân khác mang đến.

2. Khi các đô thị, thành phố ngày càng trở nên phát triển đa ngành, kéo theo là dân số được gia tăng theo từng năm, nhu cầu cho việc sinh sống và làm việc của các gia đình tại các trung tâm ngày càng trở nên khó khăn. Rất nhiều gia đình đã chọn cho mình với một vị trí ngoại ô hay nông thôn để thay đổi môi trường. Khi các mẫu nhà vườn luôn là sự lựa chọn hàng đầu của họ.
3. Với xu hướng thiết kế biệt thự nhà vườn từ nhiều năm về trước thực sự chưa phát triển mạnh. Nhưng ngày nay,các mẫu nhà vườn đã trở nên ngày càng độc đáo và ấn tượng, cũng như việc được được đầu tư một cách bài bản hơn mà chúng cũng là những tác nhân để kiến trúc này mở rộng hơn. Mà các gia đình tìm đến với kiến trúc này thường có xu hướng mong muốn, tìm kiếm sự yên bình hơn, tìm kiếm những giây phút nghỉ ngơi thoải mái nhất.

4. Với một biệt thự nhà vườn nếu như được đầu tư, thiết kế một cách hợp lý chắc chắn chúng sẽ là không gian lý tưởng cho những dịp cuối tuần mà cả nhà được quây quần bên nhau trong những giây phút bình yên. Đây cũng là một điều kiện phù hợp cho việc gắn kết các mối quan hệ hay các thành viên trong gia đình ngày càng được khăn khít.
5. Nhờ sự phát triển vượt bậc từ các kiến trúc nhà vườn, thì trong năm 2024 này bạn hoàn toàn có thể lựa chọn với một phong cách phù hợp với công năng sử dụng, lối sinh hoạt của từng gia đình hay sở thích của bạn đang theo đuổi cho kiến trúc nhà vườn 1 tầng.
6. Khi nhà vườn kết hợp với phong cách tân cổ điển thực sự sẽ mang đến nét tinh tế, sang trọng và thể hiện được sự giá trị của chủ đầu tư. Khẳng định được đẳng cấp của mình ngay tại nơi mà minh đang sinh sống.

Tham khảo nhà vườn 1 tầng tân cổ điển kèm bản vẽ chi tiết :
Thiết kế số 1 :
Thông tin về mẫu nhà vườn 1 tầng tân cổ điển
- Dự án thiết kế : mẫu nhà vườn 1 tầng tân cổ điển
- Chủ đầu tư: Vũ Thành Văn sinh năm 1987
- Phong cách xây dựng : “Mong rằng với những điều kiện mà gia đình mang đến, công trình sẽ đạt được giá trị thẩm mỹ cao kèm lối tiện nghi bên trong nội thất” Theo chủ đầu tư chia sẻ
- Địa chỉ : Quận Thủ Đức – thành phố Hồ Chí Minh
- Thời gian thi công: ~ 3.5 tháng.
Việc sử dụng phong cách tân cổ điển đòi hỏi khá nhiều đến nét tạo hình từ các chi tiết mang tính nghệ thuật cao. Nhưng với thiết kế này, gia chủ không yêu cầu quá nhiều từ phong cách ở phía ngoài, nhưng đủ để thể hiện giá trị mà chúng luôn hiện hữu ở các vị trí hợp lý. Sau thời gian trao đổi và bàn bạc cụ thể giữa 2 bên chủ đầu tư và đơn vị thiết kế thì công trình đã được tiến hành một cách suôn sẻ để mang đến cho mọi người cùng tham khảo.

Nhà vườn sử dụng với gam màu trắng sáng được cho là đặc điểm dễ dàng nhận diện từ nét tân cổ điển. Phần mái nhật được kết hợp với màu sắc bắt mắt làm từ hệ thống chắc chắn và vật liệu cao cấp để bảo quản công trình theo thời gian. Các chức năng từ gian phòng luôn được kết hợp với các ô cửa sổ tạo nên sự thông thoáng hiệu quả. Các chi tiết tạo hình cổ điển vẫn được kết hợp phía bên hông nhà, trên các mảng tường như càng làm thành công cho công trình nhà vườn.

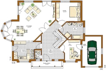
Bản vẽ thiết kế nhà vườn được hiện diện đầy đủ theo các chức năng sinh hoạt mà gia đình đã trao đổi với kiến trúc sư để từ đó mà chúng có thể hoàn thiện hơn. Chức năng được sắp xếp với các vị trí khá lạ mắt so với các bản vẽ thông thường mà bạn được thấy khi 4 góc là gian phòng khác nhau. Phòng khách, nhà bếp bàn ăn, 1 phòng ngủ, nhà vệ sinh và 1 không gian làm việc riêng biệt của chủ đầu tư. Và không thể thiếu kết cấu từ gara ô tô nằm cạnh phòng làm việc.

Kết cấu từ phần gác lửng sẽ mang đến cho gia đình chủ đầu tư thêm nhiều hơn từ chức năng sinh hoạt. Khi chúng có thể là một khoảng không gian riêng biệt nhằm phục vụ cho việc thư giãn, nơi nghỉ ngơi hoặc nơi để chứa các vật dụng, đồ dùng cho việc sinh hoạt mà còn giảm tải đi cho các gian phòng chức năng phía bên dưới.
Theo những đánh giá từ cá nhân, công trình đã hoàn thành tốt nhiệm vụ được giao từ không gian sinh hoạt hoàn toàn hợp lý, vẻ ngoài bắt mắt và được kết hợp với những giá trị mà cây xanh mang đến cho công trình. Điểm thiếu sót là việc chúng chưa thực sự mang đến giá trị rõ nét từ dấu ấn mang tên “Tân cổ điển”.
Thiết kế số 2 :
Thông tin về mẫu nhà vườn 1 tầng tân cổ điển
- Chủ đầu tư: Cao Bá Hưng sinh năm 1987
- Phong cách xây dựng : “Gia đình tôi rất yêu mến công năng và thẩm mỹ từ nhà vườn, đây là công trình đầu tiên mà tôi xây dựng rất mong kiến trúc sư sẽ mang đến cho chúng tôi một ngôi nhà hoàn hảo nhất.” Theo chủ đầu tư chia sẻ
- Địa chỉ : Quận 2 – thành phố Hồ Chí Minh
- Thời gian thi công: ~ 3.5 tháng.
Ngôi nhà tiếp theo được chúng tôi giới thiệu đã được hoàn công trong năm 2024 này và nhận được rất nhiều phản ánh tích cực từ chủ đầu tư lẫn các thành viên trong gia đình. Khi chúng đã thực hiện khá tốt vai trò của công năng từ nhà vườn, kết hợp với các điểm nhân tấn cổ điển cụ thể ở các vị trí để tạo nên nét tổng quan giá trị cho một công trình nhà ở.

Từ hướng chụp ở vị trí mặt tiền ngôi nhà, nét tân cổ điển hiện diện rõ nhất chắc chắn là phần mái trước nơi mà các chi tiết tạo hình đã làm rất tốt nhiệm vụ của mình với các đường chỉ phào nhẹ nhàng và uyển chuyển thêm cho công trình. Màu sắc được hiện lên từ một gam sáng trắng nơi được tích hợp hoàn hảo với các ô cửa phụ, cửa sổ hay cửa chính để bước vào bên trong ngôi nhà.

Phía sân phía sau ngôi nhà đã hoàn toàn được thay thế bằng một màu sắc riêng biệt và đối lập so với mặt tiền của ngôi nhà. Khi hệ thống mái như càng làm tô điểm cho màu sắc nhẹ nhàng nhưng đầy sức hút cho vẻ ngoài. Mà với góc nhìn này bạn hoàn toàn có thể cảm nhận được mọi công năng, lợi ích từ mẫu nhà vườn 1 tầng một cách chân thực nhất.

Với chiều dài ngôi nhà chỉ 9m nhưng chiều ngang lại xấp xỉ với 14m mà nhờ đó việc phân bổ các chức năng cũng trở nên thuận tiện hơn theo chiều ngang. Nhìn vào bản vẽ từ cửa ra vào chúng ta có thể tách biệt ra 2 gian với các chức năng. Gian bên phải : Là 1 nhà kho, nhà bếp, phòng khách, kèm theo là 1 bàn ăn. Gian bên trái là : 3 phòng ngủ kèm 1 nhà vệ sinh đã được sắp xếp ở các vị trí phù hợp, nhờ đó mà việc sinh hoạt của gia đình cũng thuận tiện hơn rất nhiều.

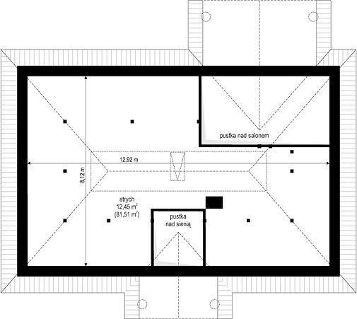
Mặt bằng mái, là các chi tiết với các số liệu cụ thể mà với những ai có nhu cầu về chúng thì đây chính là một tư liệu khá bổ ích. Mà bạn có thể trực tiếp sử dụng cho chính công trình của mình trong tương lai. Với các tư liệu mà chúng tôi mang đến, hy vọng bạn sẽ dễ dàng cảm nhận được phong cách tân cổ điển khi được kết hợp với nhà vườn 1 tầng.
Xem thêm :



























