Chi phí xây dựng là điều quan tâm của bất cứ chủ đầu tư nào khi có ý định xây nhà. Một ngôi nhà 4 tầng là công trình khá lớn đòi hỏi các chủ đầu tư có sự tính toán kĩ lưỡng để từ đó có thế dự trù được kinh phí xây dựng đến khi hoàn thiện ngôi nhà sẽ không bị hao hụt tài chính hoặc phải bỏ dở công trình khi đang xây dựng mà lại hết kinh phí. Trong phạm vi bài viết này của chúng tôi giúp quý khách tính toán rõ ràng chi phí xây nhà 4 tầng 30m2.
Hình ảnh 3D, phối cảnh bản vẽ, mặt bằng tổng thể ngôi nhà 4 tầng 30m2

Mẫu nhà 4 tầng 30m2 được xem là ngôi nhà khá hẹp. Đòi hỏi phải có lối thiết kế hợp lý, có cách sắp xếp gọn gàng thì mới đảm bảo không gian rộng rãi, thoáng đãng đảm bảo sinh hoạt của gia đình không quá chật trội, bí bách. Cũng chính vì diện tích hẹp nên việc lựa chọn ngôi nhà 4 tầng là giải pháp tối ưu nhất để đảm bảo cuộc sống của các thành viên mỗi người sẽ có không gian riêng tư, việc bố trí các phòng chức năng được thuận lợi.

Trên đây là hình ảnh 3D của mẫu nhà 4 tầng 30m2. Kiểu dáng nhà 4 tầng mái bằng là lựa chọn phổ biến nhất. Không gian nhà phố thường thiên về chiều dài và hẹp về chiều ngang nên nhà ống là phù hợp nhất. Mẫu nhà này mang đến vẻ đẹp hiện đại, ưa nhìn, thuộc nhiều gu thẩm mĩ của nhiều chủ đầu tư. Hơn nữa mẫu nhà ống này có chi phí thuộc loại hình tiết kiệm và thấp nhất trong các mẫu thiết kế hiện nay.

Kiểu dáng nhà 4 tầng 30m2 có sân thượng là nhu cầu tất yếu ở khu vực thành phố hiện nay. Như chúng ta biết rằng khu vực thành phố đất chật người đông, sự ngột ngạt bức bách bởi một bầu không khí khói bụi bên ngoài thì việc sở hữu một ngôi nhà 4 tầng có sân thượng trồng cây xanh, có mái che thông thoáng để bạn có thể kê đặt một chiếc bàn trà nhỏ xinh, trồng xung quanh rau xanh và hoa, cây cảnh chắc chắn sẽ là nơi thư giãn tuyệt vời của bạn và gia đình sau một ngày dài làm việc.

Lựa chọn một mẫu nhà 4 tầng 30m2 có gara ô tô ở tầng trệt theo phong cách tân cổ điển cũng là sự lựa chọn của rất nhiều chủ đầu tư trên cả nước. Với màu sắc chủ đạo là màu trắng tạo nên sự rộng rãi, mới mẻ cho ngôi nhà. Với lối thiết kế đơn giản không quá cầu kì như mẫu thiết kế kiểu cổ điển vì mẫu nhà kiểu tân cổ điển vừa thừa hưởng nét đẹp của phong cách cổ xưa nhưng cũng tiếp thu rất hài hòa của phong cách hiện đại. Tạo nên sự kết hợp hài hòa, bắt mắt.

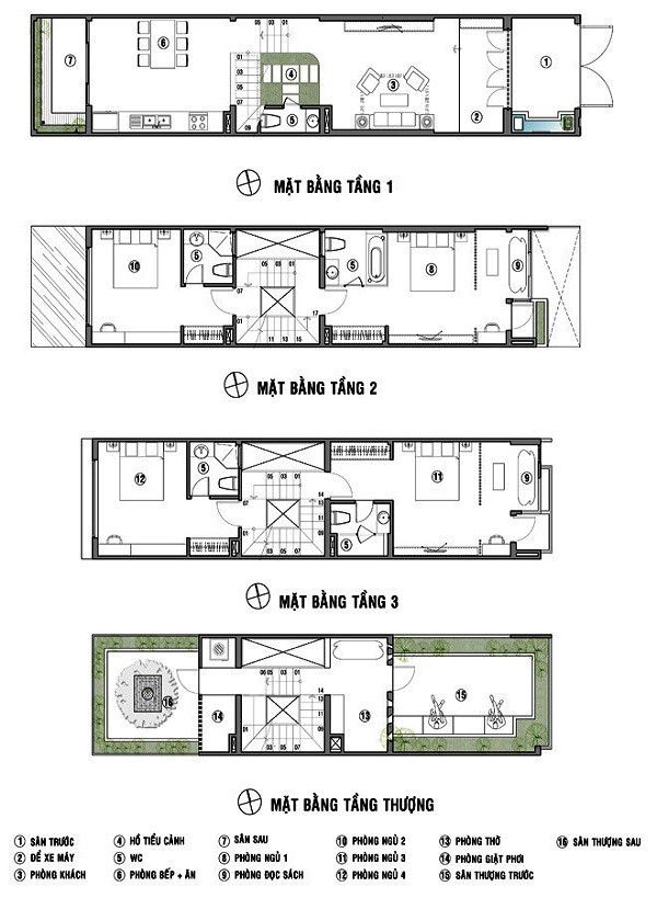
Với diện tích không quá rộng chỉ với 30m2 nhưng bằng sự sắp xếp hợp lý bạn vẫn hoàn toàn có thể thiết kế như mẫu mặt bằng trên đây của chúng tôi với 4 phòng ngủ, một phòng thờ, một phòng khách, 1 phòng ăn, 1 phòng bếp, 1 phòng đọc, cùng các khu vực cần thiết kế chỗ để xe, sân trước, sân thượng, nơi phơi đồ, giặt đồ...

Xây dựng nhà 4 tầng 30m2 hết bao nhiêu tiền?

Bạn đang có một lô đất chỉ với 30m2 và có nhu cầu xây dựng một ngôi nhà 4 tầng thì việc tìm hiểu chi phí xây dựng là điều tất nhiên. Đây là công việc rất quan trọng trước khi bạn tiến hành khởi công xây dựng. Khi đã có sự chuẩn bị, dự trù kinh phí xây dựng thì bạn hoàn toàn yên tâm là công trình được diễn ra suôn sẻ, không bị gián đoạn công trình do kinh phí hết hoặc bị hao hụt kinh tế, nợ nần khi hoàn thiện công trình.
Tuy nhiên khi nắm được cụ thể số tiền cho một ngôi nhà 4 tầng diện tích 30m2 bạn cũng nên dự trù thêm khoảng 20 triệu tiền chi phí phát sinh. Bởi lẽ chi phí xây dựng mà chúng tôi giúp bạn tính toán chỉ mang tính chất tham khảo bởi trên thực tế chi phí để hoàn thiện một ngôi nhà còn ảnh hưởng bởi rất nhiều yếu tố. Chẳng hạn như vị trí, địa hình của lô đất có thuận lợi hay không? Thời giá vật liệu xây dựng khi đó có giữ vững hay thay đổi lên xuống liên tục, việc bạn lựa chọn nhà thầu ra sao?... tất cả những yếu tố đó đều có thể tác động trực tiếp đến giá thành của ngôi nhà 4 tầng 30m2.

Để các chủ đầu tư thuận lợi cho việc tính toán chúng tôi xin được giới thiệu cụ thể đến các chủ đầu tư cách tính diện tích xây dựng nhà 4 tầng 30m2 như sau: Đầu tiên là diện tích móng có 3 hình thức. Thứ nhất là móng đơn loại hình này đã nằm trong đơn giá xây dựng của tất cả các gói thầu. Thứ 2 là loại hình móng băng 1 phương thì hiện nay được tính = 50% diện tích. Thứ 2 là hệ móng cao nhất là móng băng 2 phương được tính = 70% diện tích.
Cách tính diện tích ở các lầu được tính = 100% diện tích ở tất cả các lầu. Từ tầng trệt đến tầng 4 với mỗi tầng đều nhân = 100%. Cuối cùng là hạng mục không thể thiếu của một ngôi nhà nói chung, nhà 4 tầng 30m2 nói riêng là phần mái. Thì cũng tùy thuộc chất liệu của mái mà các chủ thầu có mức báo giá cụ thể. Hiện nay cao nhất hiện nay là mái ngói theo kiểu mái thái được tính = 70% diện tích. Hệ mái có cách tính diện tích thấp nhất là mái tôn = 30% diện tích, ở mức phổ biến nhiều gia đình lự chọn nhất là mái bằng = 50% diện tích.

Hạng mục không bắt buộc mà chỉ là do sự lựa chọn của các chủ đầu tư là cách tính diện tích sân trước và diện tích sân sau của ngôi nhà 4 tầng 30m2 = 50% diện tích, Từ đó ta có tổng diện tích xây dựng nhà 4 tầng 30m2 = Diện tích móng + tổng diện tích các tầng từ tầng 1 => tầng 4 + Diện tích mái + Diện tích xây dựng các hạng mục khác nếu có như sân trước, sân sau, sân thượng..
Các chủ đầu tư dễ dàng hơn trong việc dự trù kinh phí chúng tôi đưa ra mức chi phí thuê nhân công, trọn gói trên thị trường hiện nay như sau: Giá hoàn thiện chỉ dành cho nhân công chưa có nguyên vật liệu xây dựng hiện nay sẽ dao động từ 1.200.000 triệu đồng – 1.700.000 triệu /m2. Thứ 2 là đơn giá thi công phần hiện nay có giá dao động khoảng từ 3.200.000VNĐ – 5.000.000 Triệu /m2. Đơn giá trọn góic chìa khóa trao tay đã bao gồm cả nhân công và vật tư có giá dao động từ 5.500.000 triệu (Phong cách hiện đại đơn giản) – 10.000.000 triệu/m2 ( Phong cách cổ điển, biệt thự đòi hỏi kĩ thuật cao)

Qua đó ta dễ dàng thực hiện tính toán chi phí của ngôi nhà 4 tầng 30m2, ta chỉ cần lấy tổng diện tích sàn x với đơn giá thi công hoàn thiện trên mét vuông tùy theo hình thức, gói thầu mà bạn lựa chọn. Chẳng hạn như bạn xây nhà 4 tầng 30m2 với đổ móng băng 1 phương, lựa chọn mái bằng ta mất chi phí như sau:
Diện tích móng băng 1 phương là 50% x 30m2 ta có 15 m2. Diện tích tầng trệt, tầng 2 tầng 3 và tầng 4 là: 100% x 30m2 x 4 ta được 120 m2. Diện tích mái bằng là 50% x 30m2 ta có 15m2.
Thật dễ dàng ta có tổng diện tích sàn xây dựng là 15m2 + 120m2 + 15m2 = 150m2. Áp dụng vào đơn giá xây thô tính đến thời điểm hiện tại là 3.200.000 VNĐ/m2 =>Tổng diện tích nhà 4 tầng 30m2 là 150m2 x 3,200.000VNĐ/m2 = 480.000.000 triệu đồng. Chi phí hoàn thiện trọn gói theo phong cách hiện đại giá thấp nhất hiện nay là 150m2 x 5.500.000/m2 = 825.000.000 triệu đồng.
Xây dựng số giúp bạn biến ước mơ trở thành hiện thực
Để ngôi nhà 4 tầng diện tích 30m2 hoàn thiện một cách trọn vẹn từ chất lượng đến thẩm mĩ thì đòi hỏi bạn phải tìm được một đơn vị uy tín, chuyên nghiệp. Đến với xây dựng số bạn hoàn toàn có thể đặt niềm tin tuyệt đối vào chúng tôi khi đã có bề dày kinh nghiệm với vô vàn công trình thành công.
Tại xây dựng số - sàn giao dịch thương mại điện tử xây dựng. Cung cấp đến cả chủ đầu tư hệ thống nhà thầu chuyên nghiệp trên toàn quốc, tư vấn miến phí, cung cấp miễn phí bộ sưu tập các mẫu thiết kế mới nhất theo thời gian.
Nhà thầu được tuyển chọn chất lượng, có đầy đủ cam kết, chi phí xây dựng hợp lý, đội ngũ kiến trúc sư tài năng, nhân công xây dựng khéo léo, lành nghề... Xây dựng bằng cái tâm, cái tầm mang đến sự hài lòng cho khách hàng trên cả nước.


































