Bởi sự phù hợp cả về thiết kế và chi phí xây nhà ống 2 tầng 70m2 được nhiều gia đình trẻ lựa chọn. Với kích thước vừa phải mà vẫn đáp ứng được nhu cầu sử dụng, mang lại sự tiện nghi cho gia đình bạn trong quá trình sinh hoạt hàng ngày. Tuy nhiên, không phải gia đình nào cũng biết cách tính toán để tiết kiệm chi phí xây nhà, đây luôn là một bài toán khó. Cùng lắng nghe giải pháp tư vấn từ KTS giàu kinh nghiệm nhé!

1. Chi phí xây dựng nhà ống 2 tầng 70m2
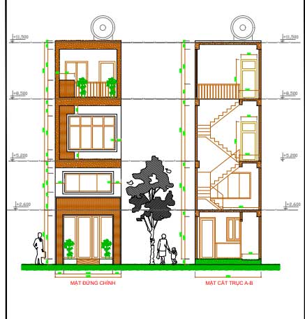
Với diện tích 5×14m=70m2. Mặt bằng công năng nhà ống 2 tầng có thể bố trí như sau:
- Tầng 1 có phòng khách, phòng bếp ăn, 1 phòng ngủ.
- Tầng 2 có 2 phòng ngủ với vệ sinh khép kín và có 1 phòng thờ.

2.1 Tính diện tích thi công
Diện tích xây dựng được hiểu là phần diện tích được tính từ mép tường bên này kéo dài đến mép tường bên kia của khu đất. Đơn vị đo lường của diện tích xây dựng là m2. Diện tích sàn xây dựng là tổng diện tích (bao gồm ban công nhô ra của các tầng) sàn xây dựng, thường được sử dụng vào việc dự toán chi phí đầu tư xây dựng công trình. Diện tích sàn xây dựng = Diện tích sử dụng từng sàn + diện tích ngoài (móng, mái,…)
Ta tính toán sơ bộ như sau:
- Tầng 1:70m2 × 100%dtxd = 70m2 - Tầng 2: 70m2 × 100%dtxd = 70m2 - Mái bằng: 70m2 × 50%dtxd = 35m2
Vậy tổng diện tích sàn cần thi công (tầng 1, tầng 2, mái bằng) sẽ là: (70+70+35)=175 m2.
2.2 Đơn giá thi công
Tùy thuộc vào diện tích sàn cho thiết kế mà bên thi công sẽ nhân theo đơn giá tại thời điểm đó, tại khu vực đó. Hiện nay, các nhà thầu thi công có một nguyên tắc áp dụng rộng rãi và dần trở thành xu hướng phổ biến đó là diện tích sàn xây dựng càng lớn thì đơn giá thi công xây dựng (phần thô + trọn gói) sẽ càng giảm dần. Khái quát chung thì thị trường có 2 gói đơn giá phổ biến, dao động tùy theo khu vực và tùy vào chất lượng vật tư thi công.
- Đơn giá nhân công xây dựng (nguyên vật tư và nội thất chủ nhà tự lo) dao động từ 1 triệu đến 2 triệu đồng.
Chí phí đầu tư dự tính với đơn giá nhân công xây dựng là 1,1 triệu sẽ là = 175m2 x 1,1 triệu = 193 triệu
- Đơn giá thi công trọn gói (chủ thầu lo toàn bộ nguyên vật tư và nội thất cơ bản, chủ đầu tư chỉ việc vào ở) dao động từ 4 triệu đến 5 triệu đồng.
→ Nếu bạn sử dụng vật tư trung bình: 4,2 triệu đồng/m2:
Chi phí xây dựng = 175 m2 x 4,2 triệu = 735 triệu (trọn gói chìa khóa trao tay). Như vậy, để có thể sở hữu được một ngôi nhà ống 2 tầng 70m2 hiện đại, với công năng sử dụng khoa học và tiện nghi thì bạn cần đầu tư trọn gói khoảng 735 triệu đồng.
Tất cả các mức giá ở trên chi mang tính chất dự kiến sẽ thay đổi theo nhu cầu và mong muốn của gia chủ
2. Những lưu ý cần biết để có nhà ống 2 tầng 70m2 đẹp, không tốn kém
1.1 Phong thủy cho nhà ống 2 tầng 70m2

Việc cân bằng phong thủy là một yếu tố phải quan tâm đến khi xây nhà ống 2 tầng 70m2. Điều này có nghĩa là bạn phải bố trí làm sao cho các hệ thống công năng thông thoáng, gọn gàng hay đơn thuần là hình dáng, màu sắc của nội thất trang trí trong nhà phải cân đối để đảm bảo sự hài hòa năng lượng âm dương, ánh sáng, bóng tối…
1.2 Vẻ đẹp thẩm mỹ ấn tượng của nhà ống 2 tầng 70m2
Khi xây nhà cần chú ý đến phong thủy nhưng cũng không vì thế mà bỏ qua tính thẩm mỹ. Cách đơn giản nhất để tạo được vẻ đẹp cho ngôi nhà là bạn cần có một định hướng kiến trúc nhà 2 tầng 70m2 theo một phong cách nhất định rồi dựa theo những đặc trưng của xu hướng ấy để trang trí.
Tuy nhiên, bạn có thể tham khảo ý kiến của những KTS chuyên nghiệp. Với kiến thức chuyên môn được đào tạo bài bản cùng kinh nghiệm thực tế nhiều năm, họ sẽ giúp cho ngôi nhà của bạn mang một dấu ấn riêng, một vẻ đẹp đặc biệt hơn bao giờ hết.
1.3 Xây nhà ống 2 tầng 70m2 tối ưu nhất?
Đó là câu hỏi phổ biến nhất khi xây nhà ống 2 tầng 70m2. Để có một ngôi nhà phù hợp với túi tiền của chính mình, trước tiên bạn cần phải xác định được nhu cầu sử dụng của gia đình bao gồm những gì?
Ví dụ, bạn mới lập gia đình và có 1 hoặc 2 con, bạn cần có một không gian ấm cúng, tiện nghi, hiện đại phù hợp với mức thu nhập còn hạn chế. Do vậy bạn nên trang trí ngoại thất sẽ theo phong cách đơn giản, gần gũi, không cầu kì, tránh lãng phí không cần thiết. Phần thiết kế nội thất hãy lựa chọn những màu sắc trang nhã, có thể sử dụng mảng kính lớn ốp trên mặt tiền để tạo ra sự ấm áp, tăng cường yếu tố ánh sáng và điều hòa không khí.

Ngoài ra, những vách ngăn cách điệu tạo sự kết nối các không gian sinh hoạt. Cầu thang cho nhà ống 2 tầng 70m2 được dựng sát tường vừa đảm bảo phong thủy, vừa tiết kiệm diện tích cho các nhu cầu khác của gia đinh, đồng thời ngôi nhà trở nên rộng hơn và không bị chia cắt thành quá nhiều mảng.

Tông màu trong phòng ngủ tầng 1 với tông màu sáng hài hòa với 1 số đồ trang trí nhấn nhá màu đen nổi bật cho không gian trở nên sang trọng và ấm cúng thân thiện hơn. Có thể thiết kế phòng ngủ lùi vào phía trước để 1 khoảng diện tích phía sau tạo khu vườn nhỏ trồng rau sạch hoặc để những chậu cây cảnh cho không gian xanh và trong lành.

Trên tầng 2 bao gồm 1 phòng ngủ, 1 sân phơi, phòng giặt và khu vực phòng thờ được bố trí tại khu vực riêng biệt đảm bảo sự yên tĩnh, được bố trí thêm bộ bàn ghế đơn giản làm nơi trò chuyện sinh hoạt trong những ngày lễ tết của gia đình...



Mẫu thiết kế nhà 70m2, 2 tầng sắp xếp công năng khoa học, phát huy nhu cầu trong quá trình sử dụng. Đối với mẫu nhà ống có chiều ngang hạn chế nên cần tạo hệ thống cửa rộng mở để hạn chế ngột ngạt, bí bách. Ánh sáng tự nhiên từ cửa sổ mang đến cảm giác thư thái, dễ chịu cho ngôi nhà.


Sau đó, bạn cần dự toán chi phí xây dựng nhà phố 2 tầng 70m2 như các tính chúng tôi cung cấp phía trên để quá trình thi công được diễn ra liên lục, không bị ngừng trệ. Do đó sẽ không có phát sinh chi phí khác.
Hi vọng bài viết giúp ích cho các anh chị tham khảo xây nhà ống 2 tầng 70m2 với chi phí tiết kiệm nhất. Chúc anh chị sớm thành công, có một không gian sống thoải mái, phục vụ đầy đủ nhu cầu sinh hoạt cho gia đình mình nhé!
Xem thêm:







