Nhà ống 2 tầng không chỉ sở hữu kiểu dáng sang trọng hiện đại với những khối hộp song song vuông vức mà còn đem lại không gian sống thoáng đãng giữa những ngột ngạt của thành phố. Chính vì vậy mà mẫu thiết kế nhà ống 2 tầng đã chiếm được sự ưu ái của các gia đình nên ngày càng được lựa chọn.

Khi lựa chọn xây nhà 2 tầng, chi phí xây dựng là yếu tố quan trọng trước tiên. Tùy vào diện tích xây dựng nhà 2 tầng là bao nhiêu, kiến trúc thiết kế đơn giản hay phức tạp, vị trí và thời điểm xây dựng cũng sẽ có những ảnh hưởng nhất định tới giá cả vật liệu và nhân công… do đó mà chi phí xây dựng nhà 2 tầng sẽ có sự chênh lệch ít nhiều.
Để cụ thể hơn, trong bài viết này chúng tôi đề xuất cách tính dự toán xây dựng nhà ống 2 tầng 80m2 hợp lý nhất để các gia đình nắm rõ chi phí xây dựng. Từ đó có thể sự tính toán rõ ràng các khoản tiền cần chi cho vật liêu, nhân công, hoàn thiện nội thất… chuẩn bị ít nhất đủ khoản tiền này để việc thi công không bị ảnh hưởng tiến độ.
1. Diện tích nhà 2 tầng 80m2
- Diện tích móng: 50% = 40m2
- Diện tích tầng 1: 100% = 80m2
- Diện tích tầng 2: 100% = 80m2
- Diện tích mái: 50% = 40m2
→ Tổng diện tích thi công: 240m2
2. Đơn giá thi công
- Đơn giá thi công phần thô: 3.000.000 vnđ/m2
- Đơn giá thi công trọn gói: 5.000.000 vnđ/m2
- Đơn giá sẽ tùy theo từng nhà thầu mà chủ đầu tư hợp tác thi công.
→ Dự toán chi phí xây dựng phần thô
- 240 x 3.000.000 = 720.000.000 vnđ
→ Dự toán chi phí xây dựng trọn gói
- 240 x 5.000.000 = 1.200.000.000 vnđ
Như vậy với cách tính trên, thì tổng chi phí xây dựng nhà 2 tầng 80m2 trọn gói nằm trong khoảng từ 1 tỷ đến 1 tỷ 2.
3. Thiết kế nhà 2 tầng 80m2 tiết kiệm chi phí nhất
Đối với mỗi bản vẽ thiết kế sẽ có sự bố trí khác nhau để đảm bảo công năng sử dụng cho gia chủ, bên cạnh đó còn thể hiện nét riêng, nét độc đáo cho từng ngôi nhà theo đúng cá tính của chủ nhà. Với thiết kế của mẫu nhà ống 2 tầng 80m2 dưới đây, hi vọng bạn có thêm thông tin tham khảo khi tiến hành xây dựng căn nhà mơ ước cho mình và những người thân yêu một cách tiết kiệm và tiện nghi nhất.
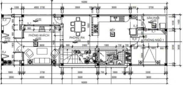
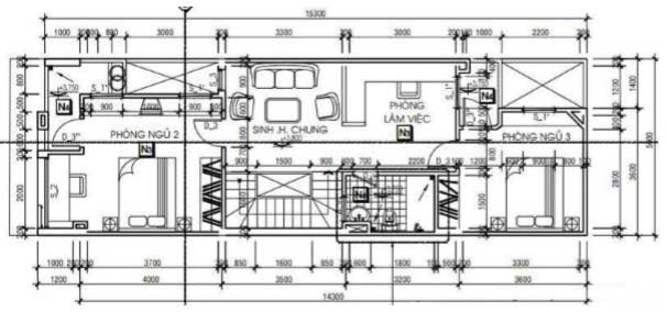
Bố trí mặt bằng nhà 80m2 đáp ứng nhu cầu của gia đình cần 3 phòng ngủ, phòng khách, phòng sinh hoạt chung, bếp và phòng ăn nên tại tầng 1 ngoài bố trí phòng khách, phòng bếp và phòng ăn, thì có thêm 1 phòng ngủ ở phía cuối nhà. Trên tầng 2 là 2 phòng ngủ, phòng sinh hoạt chung và phòng làm việc.

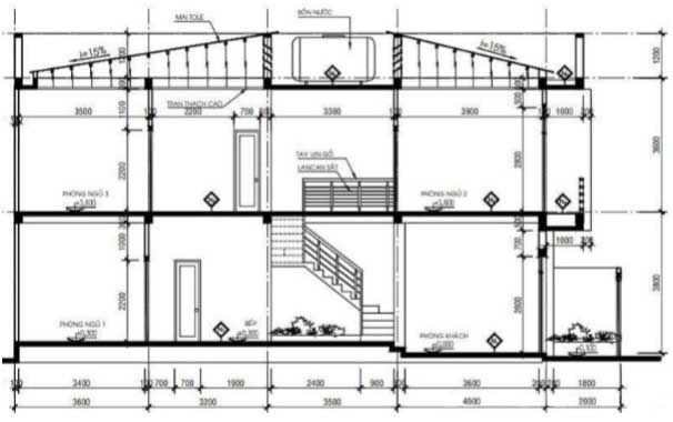
Mặt bằng tầng 1: gồm phòng khách, phòng bếp, phòng ăn và phòng ngủ ở phía trong cùng. Ở ngay cạnh phòng ngủ là sân phơi quần áo và phía trên tầng 2 là thông tầng.
Với những ngôi nhà phố đẹp, một giải pháp tiết kiệm không gian là thay vì sử dụng bức tường bê tông để ngăn chia các phòng thì người ta lựa chọn vách ngăn mỹ thuật CNC.
Những vách ngăn này vừa xóa tan cảm giác bí bách, chật chội, vừa góp phần giúp cho ngôi nhà thêm đẹp mắt, thông thoáng. Do đó, bạn cũng có thể cân nhắc nếu muốn tận dụng không gian cho những mục đích khác trong ngôi nhà của mình.
Ngoài sân phơi có thể đặt một vài chậu cây xanh, hoa tạo sự vui mắt khi nhìn từ ô cửa sổ của phòng ngủ, điều đó có ảnh hưởng tích cực đến sức khỏe, nhờ thế, các thành viên trong phòng sẽ ngủ ngon giấc hơn.

Mặt bằng tầng 2: gồm 2 phòng ngủ, 1 phòng sinh hoạt chung, ngay cạnh phòng sinh hoạt chung là phòng làm việc.
Cầu thang được đặt ngay cạnh phòng khách tầng 1, dưới chân cầu thang là tiểu cảnh, di chuyển theo cầu thang lên tầng 2 có thể nhìn thấy phòng sinh hoạt chung ở phía đối diện. Thiết kế này giúp các thành viên trong gia đình dễ dàng di chuyển từ tầng 1 lên tầng 2 hoặc từ các phòng xung quanh đến đây một cách ngắn nhất và nhanh nhất.
Thông tầng là nơi lấy ánh sáng, lưu thông không khí trong nhà nên có thể trồng thêm cây xanh để ngôi nhà của bạn đến gần với thiên nhiên hơn, giúp tổng thể căn nhà toát lên vẻ sang trọng và hài hòa trong bố cục.

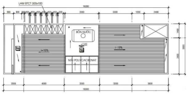
Mặt bằng tầng mái: mái tôn một phần mái được làm mái bằng để chứa bồn nước, một phần mái được lợp bằng tôn trong lấy ánh sáng cho tầng 2.
Mặt tiền ngôi nhà ống 2 tầng 80m2 được thiết kế thêm phần chắn mái giúp che đi phần mái tôn của ngôi nhà. Chúng ta nhìn từ phía trước thì không thể nào phát hiện ra được phần mái tôn này tăng thâm tính thẩm mỹ của thiết kế nhà ống này.

Tổng diện tích sàn thiết kế nhà ống 2 tầng 3 phòng ngủ 80m2 và thi công xây dựng nhà 2 tầng này cho cả phần móng, tầng 1 và tầng 2 cùng phần mái là 240m2, nên phần thi công trọn gói cho mẫu nhà 2 tầng 4 phòng ngủ 80m2 này là 1,2 tỷ đồng.
4. Các lưu ý khi tính chi phí nhà ống 2 tầng 80m2

4.1 Hoạch định rõ ràng, chi tiết tất cả các chi phí xây dựng nhà.
Thực tế cho thấy rằng, thị trường vật liệu luôn có sự biến động giá cả theo thời gian, vì thế bạn không nên chờ vật liệu giảm giá mới tiến hành khởi công. Tại thời điêm này một vài vật liệu đang tăng cao, nhưng sự chênh lệch đó có thể không đáng kể so với việc bạn mất thêm thời gian chờ đợi, điều này thậm chí tốn kém hơn vì nó ảnh hưởng trực tiếp tới tiến độ thi công ngôi nhà của bạn.
4.2 Ký hợp đồng trọn gói, quy định rõ từng chủng loại vật tư sử dụng trong hợp đồng.
Ngày nay, thay vì phải tự mày mò thiết kế, quay cuồng với việc quản lý chi phí, kiểm soát tiến độ, thanh toán tiền theo từng đợt, khối lượng công việc… khá nhiều chủ nhà khi xây nhà 2 tầng 80m2 đã tin tưởng và lựa chọn thuê nhà thầu xây dựng trọn gói. Việc xây nhà 2 tầng 80m2 thuê trọn gói các công ty thiết kế xây dựng giúp phân chia các khu vực công năng hợp lý hơn, tiết kiệm công sức và tiền bạc hơn.
Tuy nhiên, nếu bạn có yêu cầu cụ thể về chủng loại vật tư thì cần trao đổi trực tiếp và ghi chú lại trong hợp đồng cho các bên liên quan biết được để giảm thiểu rủi ro phát sinh chi phí, tránh sự xung đột trong thi công, gây ngừng trệ và tác động xấu tới chất lượng công trình trong tương lai.
Hi vọng qua bài viết dự toán chi phí xây dựng nhà 2 tầng 80m2 có thể giúp bạn tính toán xây nhà 2 tầng 80m2 hết bao nhiêu tiền. Mong rằng phương án thiết kế của chúng tôi hữu ích. Chúc bạn có được không gian hiện đại, ngôi nhà bền vững và hạnh phúc với những người thân yêu!
Xem thêm:
- Chi phí xây nhà phố 3 tầng
- Chi phí xây nhà phố có gác xép
- Chi phí xây nhà phố 2 tầng 1 tum
- Cách tính diện tích xây dựng nhà ống









