Diện tích 30m2 là lô đất khá nhỏ về diện tích bề ngang. Giải pháp xây nhà cao tầng thêm các phòng chức năng có lẽ là phương án hữu hiệu được nhiều chủ đầu tư lựa chọn nhất. Khi quyết định xây một ngôi nhà 4 tầng thì có lẽ câu hỏi đầu tiên đặt ra trong đầu đối với các chủ đầu tư là việc xây nhà 4 tầng 30m2 hết bao nhiêu tiền? Trong phạm vi bài viết này của chúng tôi sẽ mang đến cho các chủ đầu tư câu trả lời chính xác nhất.
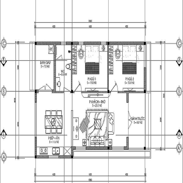
Phối cảnh bản vẽ và mặt bằng tổng thể nhà 4 tầng 30m2

Xây một ngôi nhà 4 tầng chắc chắn sẽ tốn kém một khoản tiền khá lớn, bạn cần có phương án tính toán hợp lý, nắm được các tuyệt chiêu của chúng tôi để xây nhà tiết kiệm tối ưu nhất.
Đầu tiên là chọn đất dễ thi công, xây dựng. Trong trường hợp bạn có sẵn đất trước khi xây nhà do cha ông để lại thì khó khăn buộc chúng ta phải bỏ chi phí để khắc phục. Tuy nhiên, trong trường hợp bạn chưa có sẵn đất phải đi mua thì hãy cân nhắc thật kỹ càng. Tốt hơn hết khi đi mua bạn nên nhờ người có kinh nghiệm đi xem và lựa chọn cùng với bạn.

Một mảnh đất được xem là thuận lợi bạn nên mua để chọn làm nơi gắn bó cả đời phải là lô đất có vị trí giao thông thuận tiện, hệ thống điện, đường, trường, trạm đảm bảo, hơn hết phải có giấy tờ pháp lý đầy đủ, rõ ràng. Nên chọn những mảnh đất bằng phẳng, vuông vức, nền đất chắc khỏe. Điều này sẽ giúp bạn rất nhiều trong việc san lấp, đầm nền tốn kém khá nhiều chi phí.
Thứ 2 là chọn thiết kế nhà tiết kiệm chi phí nhưng bạn cũng đừng nhầm tưởng với thiết kế nhà giá rẻ vì chúng khác nhau hoàn toàn. Điều chúng tôi muốn đề cập ở đây là cần có sự cân nhắc mẫu thiết kế nhà 4 tầng sao cho phù hợp, mỗi tầng sẽ được bố trí công năng sử dụng sao cho hợp lý, thuận tiện, do diện tích hẹp nên phong cách đơn giản tinh tế là sự lựa chọn hoàn hảo nhất.

Thứ 3 là tiết kiệm chi phí bằng cách chồng tầng. Do diện tích hẹp nên việc lựa chọn một ngôi nhà 4 tầng để khắc phục sự chật hẹp là hoàn toàn hợp lý. Vì chỉ với 30m2 của một ngôi nhà 4 tầng thì việc chồng thêm tầng sẽ là giải pháp cho những gia đình đông thành viên, phục vụ mục đích kinh doanh...
Việc chọn phong cách đơn giản vừa mang đến sự thanh thoát cho ngôi nhà cao tầng có diện tích nhỏ vừa tiết kiệm được chi phí xây dựng nhà 4 tầng. Thông thường với ngôi nhà 4 tầng mà chỉ có 30m2 thì các chủ đầu tư thường lựa chọn ngôi nhà theo phong cách nhà ống kiểu hiện đại mang đến vẻ bề ngoài thanh thoát, tiết kiệm không gian, phát huy hết công năng sử dụng, đồng thời tiết kiệm tối đa chi phí xây dựng. Còn nếu lựa chọn phong cách cổ điển sẽ tốn nhiều chi phí, thời gian thi công lâu hơn vì có quá nhiều họa tiết, đường phào chỉ, hoa văn.

Để tiết kiệm được chi phí thì bạn cũng cần xác định được nhu cầu sử dụng của gia đình mình từ đó tính toán được cụ thể diện tích xây dựng, phân bổ số phòng cho hợp lý tránh lãng phí và hơn hết
Thứ 4 là việc lựa chọn vật liệu xây nhà làm sao để tiết kiệm được chi phí? Tất nhiên, chọn liệu xây nhà tiết kiệm không có nghĩa là chọn vật liệu rẻ tiền để làm ảnh hưởng đến chất lượng của công trình mà cần lựa chọn, đầu tư vào những thứ mang lại giá trị, đẳng cấp, an toàn tuyệt đối cho ngôi nhà, tránh sử dụng quá nhiều vật liệu chỉ mang ý nghĩa trang trí hoặc chỉ mang tính chất tạm thời vừa tốn chi phí, khiến người nhìn cảm thấy dối mắt với không gian chật hẹp chiều rộng của ngôi nhà chỉ 30m2.

Thứ 5 là lựa chọn nhà thầu uy tín chất lượng để xây nhà tiết kiệm chi phí một cách tối ưu nhất. Hiện nay trên thị trường có muôn vàn những nhà thầu lớn nhỏ ở khắp các tỉnh thành trên cả nước cung cấp các gói xây dựng với chi phí cạnh tranh ở cả gói xây thô và trọn gói. Giá cả chính là yếu tố mà bất cứ chủ đầu tư nào cũng quan tâm khi có dự định xây nhà nhưng điểm mấu chốt để quyết định đó là làm sao để lựa chọn được một nhà thầu vừa có tâm có tầm.

Bạn không cần quá lo lắng bởi cảm thấy khó khăn khi tìm kiếm một đơn vị uy tín, chuyên nghiệp bạn có thể đến với sàn giao dịch thương mại điện tử - xây dựng số. Tại đây các chủ đầu tư sẽ được cung cấp hệ thống nhà thầu uy tín có đầy đủ hồ sơ năng lực, minh bạch rõ ràng, có đội ngũ nhân công lành nghề, chất lượng, có bề dày kinh nghiệm với hàng nghàn công trình thành công nhận được sự tin tưởng của biết bao chủ đầu tư...
Chi phí xây dựng nhà 4 tầng 30m2 hết bao nhiêu tiền?

Để dự trù được kinh phí xây dựng thì các chủ đầu tư cần nắm được cụ thể công thức tính chi phí với 2 sự lựa chọn. Thứ nhất là việc báo giá xây dựng phần thô có mức giá khoảng từ 2.600.000VNĐ đến 3.500.0000 VNĐ/m2 xây dựng. Thứ 2 là mức giá xây nhà theo hình thức trọn gói có giá giao động là 4.000.000VNĐ đến 7.000.000 VNĐ/m2 xây dựng. Mức giá này giao động sẽ tùy theo quy mô và vật liệu hoàn thiện mà chủ đầu tư lựa chọn.

Các cách tính chi phí theo mét vuông ngôi nhà 4 tầng 30m2 được các đơn vị thiết kế thi công áp dụng cho các công trình và các chủ đầu tư dự trù kinh phí như sau:
Móng băng của ngôi nhà 4 tầng được tính bằng 50% đơn giá xây thô. Mái bằng 50% khi lựa chọn mái bê tông. Diện tích xây dựng các tầng từ tầng 1 đến tầng 4 của ngôi nhà được tính 100% đơn giá. Cụ thể là quy mô công trình nhà phố 4 có diện tích 30m2 nếu tính theo đơn giá trọn gói là: 5.500.000 VNĐ/m2. Còn tính theo đơn giá xây thô là 3.200.000VNĐ/m2.
Như vậy từ đó ta có cách tính giá là: Diện tích lầu 1 = 30m2. Diện tích lầu 2 = 30m2. Diện tích lầu 3 = 30m2. Diện tích lầu 4 = 30m2 tổng là 120m2.
Móng tính 50% đơn giá xây thô/m2 = 15m2. Mái bằng 15m2.
Tổng giá thành xây dựng là: 150m2 x 5.500.000 = 825.000.000 VNĐ đối với hình thức xây dựng nhà trọn gói. Tuy nhiên chưa bao gồm phần trang trí, hoàn thiện nội thất. Còn đơn giá xây dựng nhà xây thô là 150m2 x 3.200.000 = 480.000.000 VNĐ chưa bao gồm phần hoàn thiện công trình.
Hình ảnh 3D mẫu nhà 4 tầng 30m2
Nhiều chủ đầu tư còn rất phân vân về những mẫu thiết kế 3D cho mẫu nhà 4 tầng 30m2 có mặt tiền nhỏ. Với không gian của ngôi nhà 4 tầng tuy hẹp nhưng bạn hoàn toàn có thể thiết kế đầy đủ công năng sử dụng. Thậm chí mỗi tầng bạn có thể bố trí được 2 phòng ngủ để phục vụ cho hoạt động kinh doanh. Nếu chỉ để ở thì bạn chỉ cần mỗi tầng 1 phòng ngủ.

Thiết kế nhà 4 tầng 30m2 với phương án tối ưu nhất hiện nay đó là làm sao để vừa có thể đảm bảo yếu tố thẩm mĩ nhưng cũng vẫn tiện lợi thông thoáng đầy đủ không gian sinh hoạt tiện nghi. Để làm được điều này thì đã khiến biết bao kiến trúc sư rất đau đầu để đưa ra phương án tối ưu nhất.

Khuôn viên bên trong của ngôi nhà 4 tầng bạn cần lưu ý các chi tiết để mang đến không gian thoáng đãng. Với hệ cầu thang bạn có 2 cách bố trí thang cho ngôi nhà 4 tầng 30m2 nhỏ hẹp đó là bố trí cầu thang cặp hông và bố trí cầu thang 3 vế ở cuối nhà đang là sự lựa chọn của rất nhiều người được các chủ đầu tư lựa chọn. Cả 2 cách bố trí cầu thang này đều có thể tận dụng được khu vực gầm cầu thang để tăng tối đa diện tích xây dựng cho ngôi nhà 4 tầng chỉ có diện tích 30m2.

Trên đây là toàn bộ câu trả lời của chúng tôi về việc xây nhà 4 tầng 30m2 hết bao nhiêu tiền? Mặc dù còn ảnh hưởng bởi rất nhiều yếu tố như là ví trí lô đất, thời giá thị trường, lựa chọn nhà thầu... Tuy nhiên về cơ bản với cách tính này là bạn đã có thể dự trù được kinh phí gần nhất cho ngôi nhà trong tương lai của gia đình mình.
Xem thêm:

































