Quy Nhơn đang thu hút được một lượng lớn khách du lịch trong nước và ngoài nước bởi vẻ đẹp thiên nhiên đến say lòng người. Để đáp ứng nhu cầu nghỉ dưỡng, du lịch đòi hỏi tiến hành xây dựng khách sạn tại Quy Nhơn. Xu hướng xây dựng khách sạn tại Quy Nhơn như thế nào, về phong cách thiết kế, quy mô xây dựng, mặt bằng thiết kế và chi phí bao nhiêu?
Xây dựng khách sạn tại Quy Nhơn ấn tượng bởi sự đầu tư chỉnh chu của gia chủ sở hữu ngay mặt tiền

Xin được giới thiệu tới quý gia chủ một trong những khách sạn có phối cảnh mặt tiền cực thu hút ánh nhìn của mọi người khi đi ngang qua được xây dựng với tiêu chuẩn 3 sao tại Quy Nhơn hiện nay.
Sử dụng phong cách kiến trúc tân cổ điển mang đến sắc thái sang trọng, một chút cổ kính xen lẫn với cái hiện đại. Nhìn từ bên ngoài sẽ ấn tượng bởi quy mô lớn, đồ sộ, đặc biệt vào buổi tối khi ánh sáng mặt trời tắt, chiếc đèn led bên ngoài khách sạn được bật sáng, cả công trình như bừng sáng, nổi bật giữa đường phố tập nập, hoa lệ.
Lựa chọn tone màu trắng nhẹ nhàng, trang nhẽ. Những chi tiết được làm nổi bật, những đường chỉ phào xuyên suốt khu vực mặt tiền mang đậm nét cổ điển Pháp. Bậc tam cấp dẫn vào sảnh chính cùng hai bên tường ốp đá tự nhiên mang đến vẻ đẹp tự nhiên khoẻ khoắn cho toàn bộ không gian.

Ở khách sạn tại Quy Nhơn này ở khu vực tầng thượng được thiết kế với quán café trên cao thay vì đổ mái bằng hay mái. Ý tưởng thiết kế này hoàn toàn phù hợp với loại hình kinh doanh khách sạn phục vụ vị khách nghỉ dưỡng tại đây có thể vừa nhâm nhi ly café vừa ngắm nhìn toàn cảnh thành phố Quy Nhơn vào đêm, thật bình yên, thư giãn.

Một phối cảnh mặt tiền khi xây dựng khách sạn tại Quy Nhơn mà gia chủ có thể tham khảo cho công trình tương lai của mình. Mẫu khách snạ này áp dụng lối kiến trúc Pháp cổ điển với những đặc điểm nổi bật như: Hệ thống cột trụ tròn ở phần thân và cột trụ vuông ở phần chân, kiến trúc mái ở tiền sảnh với những chi tiết cầu kỳ, đường chỉ phào xuyên suốt các tầng, nhấn nhẹ nhưng vô cùng nổi bật. Hay đó là những ô cửa sổ bằng kính vòm và kiến trúc mái hình thang sử dụng ngói xanh đặc trung của phong cách kiến trúc này.
Ở kiến trúc này điều đáng nói chính là xây dựng theo hình dáng chữ L, 13 tầng đáp ứng công năng của 1 khách sạn tiêu chuẩn hạng sang hiện nay: Tầng hầm : để xe, bếp, hành chính. Tầng 1: lễ tân, khách chờ, cafe. Tầng lửng : phòng tiếp khách đoàn, phòng ngủ, bếp ăn và khách. Tầng 2: nhà hàng. Tầng 3 đến 10: phòng nghỉ. Tầng áp mái: giặt phơi, spa. Tầng mái: cafe trong nhà và ngoài trời.

Xây dựng khách sạn tại Quy Nhơn với thiết kế được áp dụng phong cách kiến trúc hiện đại là ý tưởng thiết kế thu hút các gia chủ sở hữu.
Với phong cách thiết kế không bó buộc trong một khuôn khổ nhất định, vì thế thoả sức sáng tạo từ chính gia chủ sở hữu và kiến trúc sư đảm nhận công trình và điều này thể hiện rất rõ ở ví dụ bên trên. Khách sạn xây dựng với tiểu chuẩn 4 sao, vẫn là những khối hình được xếp chồng lên nhau nhưng không góc cạnh mà lại được bo tròn lại gần giống cột trụ tròn.
Tại khách sạn xây dựng như thế này thì 4 tầng đầu tiên sẽ bao gồm: Sảnh chính với diện tích lớn, khu vực ăn uống dạng buffet, phòng tập với đầy đủ trang thiết bị phục vụ nhu cầu thể thao cho khách nghỉ dưỡng, khu vực uống trà, café và thậm chí bao gồm khu vực mua sắm bên trong và khu vực hồ bơi rộng lớn có tầm nhìn ra phía biển.
Mặt bằng thiết kế bố trí không gian thông minh, thẩm mỹ cao
Khách sạn tại Quy Nhơn thường sẽ được xây dựng với quy mô nhiều tầng và trên một diện tích tương đối lớn, cùng xem các bố trí không gian phòng tại đây như thế nào?

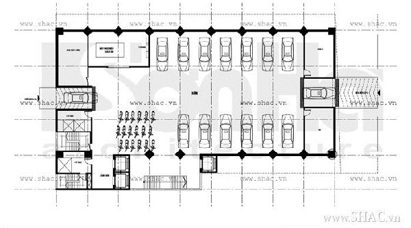
Đây là mặt bằng tầng hầm khách sạn tại Quy Nhơn hiện nay. Kiến trúc sư sử dụng toàn bộ diện tích để phục vụ việc để phương tiện bao gồm: xe máy, oto của khách thuê phòng khách sạn của mình. Không gian này đảm bảo đáp ứng tương đương với số lượng khách đến thuê phòng.

Lên đến không gian tầng 1 của khách sạn tại Quy Nhơn để xem việc bố trí không gian như thế nào? Với một diện tích lớn như thế này việc bố trí từng không gian, sắp xếp lựa chọn nội thất như thế nào đều phải tính toán thật cẩn thận. Từ cửa chính bước vào, vị khách bắt gặp quầy lễ tân lớn để có thể phục vụ tối đa nhất lượng khách đến đây. Phía bên tay phải cửa chính là bàn nhỏ để vị khách nghỉ chân trong lúc chờ đợi. Kế tiếp là khu vực phòng trà, nhà vệ sinh, khu vực hội trường,… Tại đây nhiều khách sạn kinh doanh thêm loại hình thuê địa điểm tổ chức tiệc cưới, hội nghị.

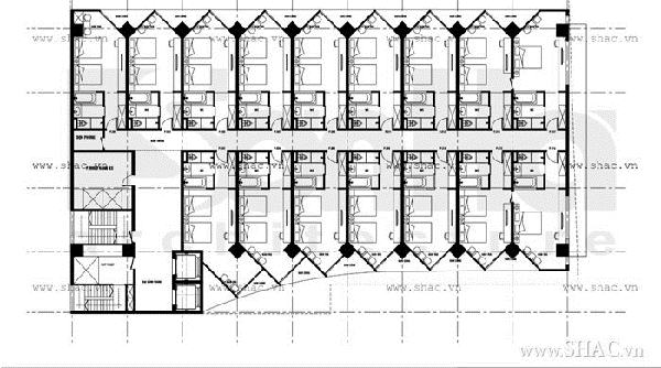
Một trong gợi ý bố trí các phòng khách sạn tại Quy Nhơn tham khảo. Có thể nhận thấy khách sạn này được xây dựng với diện tích lớn, lên đến 1000m2 nên kiến trúc sư bố trí 16 phòng nghỉ trên 1 không gian tầng, sử dụng 2 cầu thang bộ và 1 thang máy để đảm bảo việc di chuyển thuận lợi nhất, có cả phòng kho tại mỗi tầng. Trong không gian phòng có thể nhìn thấy 2 giường đơn hoặc 1 giường đôi, nhà vệ sinh, có thêm cả ban công tiện ích, hoàn toàn ngắm được cả thành phố biển Quy Nhơn vào ban đêm.

Phòng khách sạn tại Quy Nhơn với cách bố trí đơn giản tham khảo với đầy đủ tiện ích: giường, tủ đầu giường, bộ bàn ghế nhỏ đủ để ngắm toàn cảnh thành phố, một ban công đủ rộng, thoáng để cảm nhận hết được mùi vị thiên nhiên Quy Nhơn đã đủ để du khách có 1 trải nghiệm cực kỳ tuyệt cho kỳ nghỉ của mình.

Một không gian phòng có thiết kế đơn giản nhưng thu hút được nhiều sự chú ý từ khách hàng. Trong không gian này, kiến trúc sư sử dụng đồ nội thất với thiết kế đơn giản, nhẹ nhàng, không sử dụng nhiều chi tiết cầu kỳ phức tạp, tone màu trầm vừa tạo độ sâu cho toàn bộ không gian nhưng mang đến cảm giác ấm áp cho vị khách nghỉ dưỡng. Giường, tủ, bàn trang điểm, tivi, ghế sofa nhỏ,… đầy đủ tiện nghi cho 1 chuyến du lịch hứa hẹn đầy sự hấp dẫn.

Khi đi đến một thành phố biển với nước biển xanh, không khí trong lành thì điều du khách đều muốn ở gần biển nhất thì đây là một trong những gợi ý xây dựng khách sạn tại Quy Nhơn với không gian phòng có kết hợp bể bơi mini, hướng nhìn ra biển. Tại không gian này, khách hàng được trải nghiệm tiện ích về du lịch với đầy đủ tiện nghi, sang trọng, đẳng cấp bậc nhất, mở mắt mỗi sáng là nhìn thấy biển, được tận hưởng không khí biển tràn ngập khắp căn phòng.
Xây dựng khách sạn tại Quy Nhơn chi phí hợp lý, nguồn thu lâu dài
Chi phí xây dựng khách sạn tại Quy Nhơn có mức giá như sau:
- Dịch vụ xây dựng trọn gói có mức giá:
Diện tích <500m2 có đơn giá 200.000 đồng/m2
Diện tích từ 500m2 đến 1000m2 có đơn giá 180.000 đồng/m2
Diện tích 1000m2 – 1500m2 có đơn giá 170.000 đồng/m2
Diện tích >1500m2 có đơn giá 160.000 đồng/m2
Với dịch vụ xây dựng trọn gói, gia chủ không phải lo lắng quá nhiều, hay có mặt tại công trình bởi đã có đội ngũ bên nhà thầu thực hiện các công việc liên quan. Dịch vụ này rất phù hợp với việc xây dựng khách sạn tại Quy Nhơn hiện nay, nhanh chóng, tiện ích.
- Dịch vụ xây dựng thuê nhân công có mức giá:
Diện tích <500m2 có đơn giá 150.000 đồng/m2
Diện tích từ 500m2 đến 1000m2 có đơn giá 130.000 đồng/m2
Diện tích 1000m2 – 1500m2 có đơn giá 120.000 đồng/m2
Diện tích >1500m2 có đơn giá 110.000 đồng/m2
Với dịch vụ này từng bước xây dựng đều có sự tham gia và giám sát của gia chủ, tuy nhiên đòi hỏi gia chủ phải có kinh nghiệm và tầm hiểu biết về xây dựng đảm bảo chất lượng cũng như độ thẩm mỹ.
Để có được chi phí xây dựng khách sạn tại Quy Nhơn chính xác nhất, gia chủ truy cập vào link xaydungso.vn – Sàn giao dịch và thương mại điện tử liên quan xây dựng hàng đầu Việt Nam hiện nay. Tại đây gia chủ hoàn toàn có thể tìm kiếm được tất cả thông tin liên quan đến xây dựng, nơi đăng tìm nhà thầu uy tín với chất lượng xứng tầm, giá cả hợp lý.
Xem thêm

































