Đáp ứng nhu cầu tìm hiểu và lựa chọn của chủ nhà, chúng tôi sẽ gợi ý cho độc giả 1 số mẫu biệt thự 2 tầng đẹp dưới đây. Những năm gần đây , việc nhiều gia đình có điều kiện thay vì mua 1 căn chung cư trên những tòa nhà cao tầng mà xây riêng cho gia đình 1 căn biệt thự riêng ngày càng phổ biến bởi nhiều ưu điểm mà nó mang lại:
- Tính tiện dụng, riêng tư.
- Đẹp, sang trọng, rộng rãi
- Linh hoạt trong việc thiết kế kiến trúc khác nhau, độc lạ, khác biệt và phù hợp với sở thích của mình. Áp dụng được các vật liệu mới , công nghệ mới nhất trong kết cấu tòa nhà.


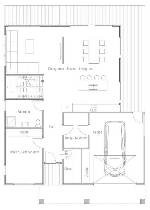
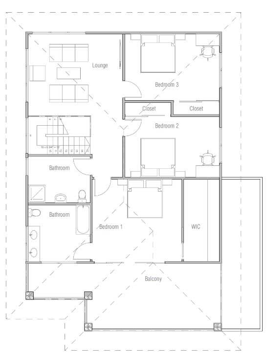
Bên ngoài, biệt thự có bể bơi ở phía trước , thảm cỏ rộng cùng các bộ bàn ghê để thư giãn tổ chức tiệc ngoài trời. Mặt bằng tầng 1 bao gồm 1 phòng khách , 1 phòng bếp , 1 phòng ăn ,1 phòng ngủ , phòng làm việc , phòng sinh hoạt . các phòng đều rất rộng rãi . Mặt bằng tầng2 bao gồm 2 phòng ngủ đơn,1 phòng ngủ đôi , nhà tắm , phòng làm việc.
Căn biệt thự sử dụng mái bằng . Kiến trúc đơn giản nhưng lối thiết kế mang đến màu sắc của biệt thự kiểu pháp. Do tổng thể đơn giản nhưng thanh lịch của nó. Sử dụng màu trắng làm chủ đạo .Thiết kế thú vị , phần hiên nhô ra vửa làm hiên cho tầng 1 vừa làm ban công cho tầng 2 . Căn biệt thự sử dụng rất nhiều cửa kính để lấy ánh sáng, tạo cảm giác thoáng và rộng rãi, tầm nhìn rộng từ bên trong . Các chậu cây được bố trí có chủ đích đem lại vẻ đẹp riêng cho căn nhà.


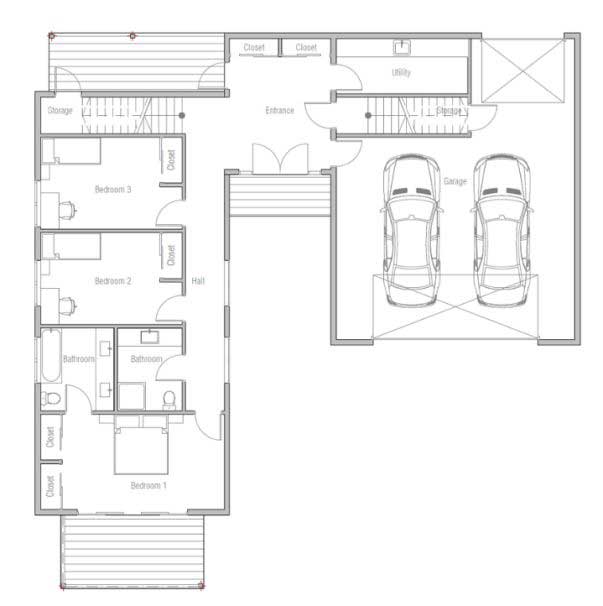
Mặt bằng tầng 1 bao gồm phòng khách , phòng ăn và phòng bếp thông với nhau , nhà vệ sinh ,… Mặt bằng tầng 2 bao gồm 3 phòng ngủ , 1 phòng ngủ lớn bao gồm cả phòng để đồ , 2 phòng ngủ nhỏ hơn , nhà tắm , nhà vệ sinh.
Đây là 1 mẫu biệt thự rất đẹp chúng tôi muốn giới thiệu. Biệt thự 2 tầng mái bằng , theo phong cách hiện đại . Trang trí đơn giản không cầu kì tuy nhiên rất thu hút . Kiến trúc sư khéo léo trong việc sử dụng các vật liệu . Tường sơn trắng , các mảnh tường cột và trần nhà được ốp bằng gỗ , mặt trước được ốp bằng đá granit xám . Cửa chính và cửa sổ , tường được dựng bằng các mảng kính lớn . Tổng thể kiến trúc bên ngoài sang trọng , thu hút , thanh lịch .



Mặt bằng tầng 1 bao gồm gara lớn để đỗ xe, phòng ăn , phòng bếp , phòng khách thông nhau chiếm diện tích lớn rộng rãi , nhà tắm , phòng ngủ cho khách , phòng kho chứa đồ và các phòng nhỏ tùy nhu cầu sử dụng. Tầng 2 bao gồm 3 phòng ngủ lớn , 2 phòng tắm vệ sinh , 1 phòng sinh hoạt chung . Trước phòng ngủ 1 có ban công lớn.
Đây là 1 mẫu thiết kế khá lạ mắt về cả thiết kế và cách bố trí các phòng của căn biệt thự. Căn biệt thư như 2 khối nhà riêng nối liền nhau bởi 1 khối nhà nhỏ ở giữa . Tổng thể bên ngoài căn nhà sử dụng gỗ được sơn trắng và các cửa kính lớn viền kim loai đen . Màu sắc đối lập, hình dáng đặc biệt đầy thu hút .



Điểm đặc biệt nhất là các bố trí các phòng của kiên trúc sư. Ở phần nhà bên phải , tầng 1 là gara lớn chứa xe , nối sang khối nhà bên phải , mặt bằng tầng 1 bao gồm 3 phòng ngủ và nhà tắm + vệ sinh riêng cho mỗi phòng . Từ mặt bằng tầng 1 này có cầu thang dẫn lên tầng 2 , nơi có phòng khách , phòng ăn và phòng bếp thông với nhau . Từ gara hay khối nhà nhỏ ở giữa cũng có cầu thang để đi đến mặt bằng tầng 2 này . Tầng trên gara là 1 phòng gủ và phòng làm việc lớn có phòng tắm + vệ sinh riêng .
Xem thêm:
Mẫu nhà biệt thự 2 tầng mái lệch





















