Lấy cảm hứng từ kiến trúc cổ điển kết hợp với sự tươi mới và sáng tạo của phong cách thiết kế hiện đại. Thiết kế của biệt thự 3 tầng dưới đây không chỉ toát lên vẻ đẹp quý phái mà còn tạo cảm giác như một tòa lâu đài cổ kính xinh đẹp và tráng lệ. Mẫu biệt thự tân cổ điển 3 tầng đẹp này được xây dựng để mang đến không gian sống sang trọng và ấn tượng cho người có nhu cầu. Điều này sẽ bao gồm 3 tầng và 1 tầng hầm để xe, việc sử dụng gạch màu xám đen để lát đá bên ngoài các bức tường tầng hầm đã góp phần tạo nên diện mạo, sự uy nghi và cổ kính của biệt thự này. Điểm nổi bật của thiết kế là việc xây dựng các mạch trên tường của tầng một và tầng hai.
Thay vì sử dụng các phương pháp thiết kế thông thường để làm ống khói trên nóc biệt thự, thiết kế này đã quyết định tạo ấn tượng riêng bằng cách thiết kế ống khói giả. Giống như các mô hình biệt thự độc lập khác, kiến trúc biệt thự sẽ được thiết kế thành 2 mặt tiền. Theo đó, tầng hầm sẽ được xây dựng một nửa chìm một nửa, tạo cảm giác như đôi chân nâng đỡ toàn bộ ngôi nhà, tạo nên sự mạnh mẽ và đồ sộ. Một cầu thang sẽ được bố trí để kết nối từ dưới lên sảnh, mặt tiền phụ sẽ là lối vào tầng hầm và lối vào xe.
Phối cảnh mặt tiền mẫu biệt thự tân cổ điển 3 tầng đẹp

Mặt tiền biệt thự 3 tầng phong cách cổ điển
Đây là một trong những dự án nhiệt tình của chủ sở hữu cũng như kiến trúc sư. Bởi vì mô hình được xây dựng tỉ mỉ và chú ý đến từng chi tiết, mặt tiền của hai bên được bao phủ hoàn toàn bằng đá, tạo cảm giác như một thành trì mạnh mẽ và cứng cáp. Mặt khác và mặt sau của bức tường được sơn nhẹ nhàng với các tông màu nhẹ nhàng tinh tế. Nhìn chung tạo ra một công trình bắt mắt và cực kỳ ấn tượng chắc chắn nổi bật trong không gian.

Bản vẽ mặt bằng tầng hầm
Một khu vực với diện tích lớn sẽ được bố trí tại tầng hầm, sẽ có một không gian để lưu trữ hàng hóa gia đình. Ở đây có bố trí thêm một nhà vệ sinh cho tầng hầm nằm cạnh cầu thang kết nối với tầng trên.

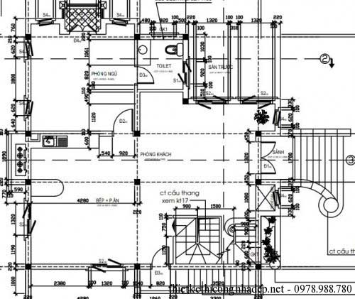
Bản vẽ mặt bằng tầng 1
Với mặt bằng tầng 1 sẽ là không gian sinh hoạt chung của cả gia đình bao gồm: 01 phòng khách, 1 bếp có phòng ăn, 1 toilet chung cho cả tầng. Sở hữu một quỹ đất lớn, các không gian được ưa chuộng để xây dựng thoải mái rộng rãi và thoáng mát, có 1 phòng ngủ nhỏ được bố trí hợp lý tại đây.

Bản vẽ mặt bằng tầng 2
02 phòng ngủ sẽ được bố trí tại không gian này. Theo đó, 1 phòng ngủ dành cho con cái và không gian riêng dành cho bố mẹ. Khu vực phòng ngủ của bố mẹ sẽ bao gồm phòng vệ sinh riêng thuận tiện. Toàn khu vực tầng 2 sẽ sử dụng chung 1 nhà WC và 1 phòng sinh hoạt cho cả gia đình. Nhằm mang lại không gian mát lành, giúp các thành viên được tận hưởng nguồn năng lượng từ nhiên nhiên, các phòng ngủ đều có ban công rất thoáng mát.

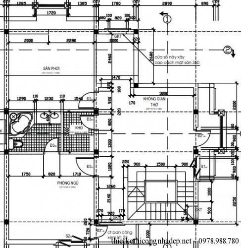
Bản vẽ mặt bằng tầng 3
Ngay tại trung tâm của kế hoạch tầng 3 sẽ là một khu vực thờ cúng yên tĩnh và trang nghiêm. Phòng ngủ thứ 4 của gia đình được xây dựng rộng rãi ở đây với lối ra ban công và phòng WC riêng biệt. Đằng sau ngôi nhà là sân thượng, nơi treo quần áo hoặc bố trí khu tiểu cảnh. Đây là một trong những mẫu biệt thự 3 tầng cổ điển được đánh giá cao về mặt thẩm mỹ và kỹ thuật xây dựng vì yêu cầu chuyên nghiệp và tỉ mỉ, do đó chi phí xây dựng khá lớn.

Bản vẽ mặt bằng tầng mái
Mẫu biệt thự được xây dựng trên diện tích 9.7×9.7m. Tại đây sẽ có 1 phòng khách, 4 phòng ngủ, 1 gara để xe, 1 kho dưới tầm hầm, 1 phòng thờ và 1 khu vực dành riêng cho các gia đình cùng nhau sinh hoạt.
Nguồn: thietkethicongnhadep.net
































