- Bạn đang tìm kiếm phương án thiết kế nhà phố tiện nghi?
- Nhà phố thiết kế trong không gian diện tích nhỏ hẹp, cải thiện diện tích sử dụng tốt nhất?
- Nhà phong cách hiện đại, đáp ứng đầy đủ nhu cầu sinh sống cho tất cả thành viên yêu quý?
Thì phương án mẫu nhà phố 4 tầng 60m phong cách hiện đại được nhiều gia chủ chú ý ngay tại đây là sự lựa chọn tuyệt vời. Nhà xây dựng trên tổng diện tích chỉ có 60m2, nhưng nhờ đến kinh nghiệm lâu năm của các kiến trúc sư thâm niên đã bố trí công năng một cách tối ưu nhất. Tuy diện tích không quá rộng rãi, nhưng kiểu dáng nhà phố đã giúp việc tận dụng không gian một cách khoa học. Các căn phòng sắp xếp liên kết nhau chặt chẽ, hứa hẹn sẽ đem lại cảm giác tốt nhất cho các thành viên trong gia đình. Lựa chọn phong cách hiện đại kết hợp với kiểu mái bằng là một trong những kiến trúc nhà phổ biến, phù hợp với nếp văn hóa và phong tục tại Việt Nam. Đặc biệt với diện tích 60m2, phương án thi công nhà phố 4 tầng hiện đại có chi phí hoàn thiện không quá tốn kém, phù hợp với nguồn kinh tế nhiều hộ gia đình tầm trung. Không gian sinh sống thoải mái, kiểu dáng sang trọng, chi phí xây dựng giá rẻ, kiến trúc không bao giờ lỗi thời là những gì mẫu nhà phố 4 tầng 60m2 này đem lại cho các gia chủ thiện chí thiết kế trong tương lai. Cùng chúng tôi xem ngay quá trình thiết kế mặt tiền và công năng bên trong nhà phố 4 tầng khiến chủ đầu tư rất hài lòng.
*Thông tin phương án thiết kế nhà 4 tầng:
- Kiến trúc: Nhà mái bằng phong cách hiện đại.
- Thời gian hoàn thiện công trình: Khoảng 4 tháng.
- Diện tích đất: 82m2 – Diện tích xây dựng 60m2 (4×15).
- Chi phí hoàn thiện dự kiến: Khoảng 1.500.000.000 (1.5 tỷ).
Phương án thiết kế nhà phố 4 tầng 60m2 trên diện tích nhỏ hẹp

Từ màu sắc sáng sủa cho đến các chi tiết trang trí mặt tiền phía trước nhà phố 4 tầng được thiết kế một cách tỉ mỉ, đem đến cái nhìn ấn tượng cho những ai lần đầu nhìn thấy. Đối với những gia chủ nào xây dựng trên mặt tiền đường đông dân sinh sống và nhiều người qua lại đều có thể thiết kế nhà đẹp này. Thuận tiện cho việc kinh doanh buôn bán thuận lợi, dễ dàng áp dụng mô hình sinh sống lâu dài cùng các thành viên. Mặt tiền dành riêng diện tích nhỏ làm sân để xe hơi riêng, bao quanh đó là cổng cao bằng sắt thép kiên cố. Lan can ban công sử dụng kính cường lực loại tốt nhất, góp phần tăng tính thẩm mỹ và giá trí cho cảnh quan phía trước.

Mặt bằng tầng 1: Sân để xe riêng – phòng khách – phòng vệ sinh chung, không gian nấu nướng liền kế bàn ăn.

Mặt bằng tầng 2: Phòng ngủ cho bố mẹ rộng rãi – phòng làm việc riêng của gia chủ – phòng vệ sinh – ban công.

Mặt bằng tầng 3: 2 phòng ngủ yên tĩnh (cho con gái và con trai) – phòng vệ sinh chung – ban công thoáng mát.

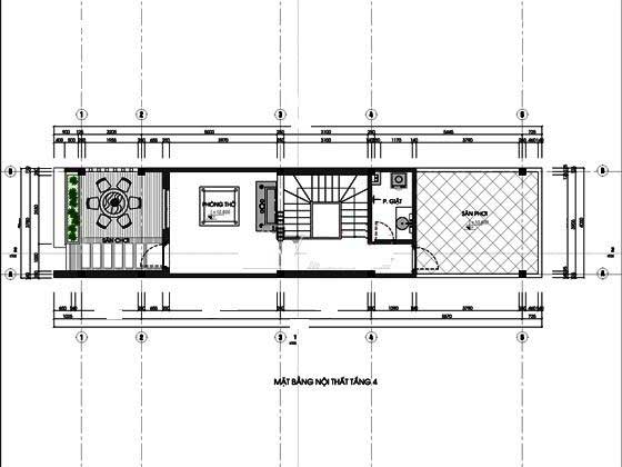
Mặt bằng tầng 4: Sân chơi cho gia đình mát mẻ – phòng thờ nằm khu vực riêng – phòng giặt ủi – sân thượng.
Như bạn cũng có thể thấy, ban công của các tầng được bố trí cây tiểu cảnh nhỏ khá bắt mắt đúng không nào. Vừa tăng nét đẹp sinh động cho mặt tiền, cây xanh đặt ở ban công còn mang đến nguồn không khí mát mẻ cho cả gia đình. Các chi tiết trang trí theo khối hình vuông đơn giản, pha trộn các màu sắc trung tính hài hòa. Ưu điểm nổi bật của nhà phố 4 tầng 60m2 này đó là có thể xây dựng trên nhiều khu đất khác nhau, từ vị trí trong đường hẻm cho đến các khu dân cư nhà sang trọng liền kề nhau.
Nguồn tin: https://wedo.vn/
Mời quý đọc giả cùng xem thêm:































