Mỗi mô hình mà chúng tôi giới thiệu cho khách hàng của chúng tôi có phong cách và sự cuốn hút khác nhau. Với mục tiêu mang đến sự hài lòng tuyệt đối cho khách hàng, lần này chúng tôi tiếp tục giới thiệu mẫu biệt thự nhà vườn 2 tầng mái thái đẹp phong cách ấn tượng, thanh lịch và bắt mắt là những gì có thể được tìm thấy trong kiến trúc này.

Mặt tiền căn biệt thự nhà vườn 2 tầng mái thái hiện đại
Ngôi nhà xuất hiện nổi bật trong không gian khi mang đến vẻ đẹp quý phái, hiện đại và vô cùng thanh lịch. Giống như một quý cô đáng yêu, mẫu biệt thự này chắc chắn sẽ là nơi vun đắp hạnh phúc, mang lại sự ấm áp cho cả gia đình. Các khung cửa được thiết kế theo hình chữ nhật dài và thẳng đứng, mang lại sự thú vị và khác biệt. Mái nhà khá đơn giản nhưng vẫn thể hiện sự tinh tế với màu sắc trang nhã và nhẹ nhàng. Ở đây bố trí nhiều hoa với nhiều màu sắc bắt mắt. Không quá cầu kỳ nhưng toàn bộ căn hộ vẫn rất kiên cố, bệ đỡ góp phần nâng biệt thự cao hơn, trở nên mạnh mẽ và chắc chắn.

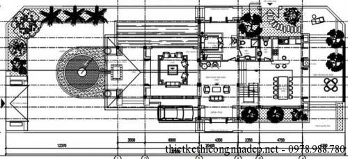
Bản vẽ mặt bằng tầng 1
Là một thiết kế biệt thự sân vườn, ngay từ sân đài phun nước được xây dựng là một điểm nhấn độc đáo và khác biệt. Cùng với đó, tầng trệt sẽ bao gồm phòng khách ở không gian phía trước từ sảnh vào, tiếp theo là phòng sinh hoạt chung và phòng ngủ đối diện nhau, cuối cùng là nhà bếp và khu vực ăn uống. Phòng ngủ sẽ được tích hợp với một nhà vệ sinh riêng để tạo sự thoải mái và thuận tiện.

Bản vẽ mặt bằng tầng 2
Mặt bằng tầng hai sẽ hẹp hơn diện tích tầng một vì không gian phòng khách ở phía dưới sẽ được thay thế bằng mái khuôn. Chức năng của tầng này sẽ bao gồm 3 phòng ngủ, phòng ngủ của bố mẹ sẽ có nhà vệ sinh riêng, phòng ngủ của con sẽ dùng chung WC đặt đối diện cầu thang lên xuống.

Bản vẽ mặt bằng áp mái
Tầng áp mái sẽ là nơi thờ cúng tổ tiên, không gian yên tĩnh và thanh lịch. Tiếp theo sẽ có một khu vực cho một bồn nước bằng thép không gỉ, cách bố trí chức năng hợp phong thủy nhà ở.

Bản vẽ mặt bằng tầng mái
Mô hình nhà vườn 2 tầng mà chúng tôi giới thiệu ở trên là một kế hoạch khá mới và nhận được nhiều sự quan tâm và ưa thích từ khách hàng. Điểm nổi bật của thiết kế này là phần sảnh lớn, dành riêng cho một phòng khách rộng rãi, sẽ có hai con đường đi lên tiền sảnh được bố trí ở hai bên. Trong đó, một bên được kết nối với khu vườn và một bên là nơi để ô tô, đài phun nước bán kính 1,9m sẽ được đặt ở trung tâm của sân trước của biệt thự 2 tầng, được bao quanh bởi cỏ xanh tuyệt đẹp.
Một bục nước tràn trong sảnh được kết nối với đài phun nước, bố trí một bể cá để tăng tính thẩm mỹ và đảm bảo thú vui của chủ nhà đã được đặt bên phải. Vật liệu thủy tinh trong suốt sẽ được xây dựng trong phòng khách, nơi khách hàng có thể nhìn thấy cảnh quan bên ngoài, tận hưởng hoàn toàn khu vực hồ cá. Cầu thang đến sảnh và cửa bên được phủ bằng đá tự nhiên, nhìn chung ngôi nhà là một không gian được xây dựng công phu và bắt mắt.
Nguồn: thietkethicongnhadep.net
Tin mới trong ngày:
Mẫu nhà biệt thự 2 tầng diện tích 8x17m
Mẫu biệt thự 2 tầng 4 phòng ngủ kết hợp sân vườn
































