Trong những năm gần đây xây dựng biệt thự là một trong những lĩnh vực xây dựng có xu hướng phát triển mạnh tại nước ta. Bạn đang có dự định xây biệt thự để sống và đang tìm hiểu về một số mẫu biệt thự đẹp, bạn đang băn khoăn lo lắng về công trình tiền tỷ này đúng không ạ? Bài viết của chúng tôi hôm nay sẽ giúp giải tỏa những băn khoăn lo lắng của quý vị về vấn đề này thông qua việc giới thiệu tới các bạn về mẫu biệt thự tân cổ điển Pháp đẹp nhất hiện nay.
Hình ảnh 3D mẫu biệt thự tân cổ điển kiểu Pháp sang chảnh nhất hiện nay.
Những mẫu biệt thự kiểu Pháp sang chảnh luôn là mơ ước của chúng ta khi có ý định xây dựng mái ấm cho gia đình mình. Bởi mẫu nhà này kén đối tượng và cũng một phần chi phí xây dựng khá cao vậy nên mẫu nhà này luôn có một điểm thu hút riêng. Trong phần này chúng tôi sẽ giới thiệu đến các bạn những mẫu biệt thự tân cổ điển kiểu Pháp sang chảnh đẹp nhất hiện nay nhé.

Đến với mẫu thiết kế biệt thự kiểu Pháp có diện tích là 400m2 với phong cách thiết kế kiểu Pháp màn đến một không gian sống rộng rãi, xa hoa và bề thế. Quan sát hình ảnh cho chúng ta thấy đây là một công trình lớn do vậy cần sự chuẩn bị kỹ lưỡng của chủ đầu tư cũng như chủ thầu xây dựng. Chuẩn bị về tài chính là một phần và khâu chuẩn bị lựa chọn mẫu thiết kế sao cho phù hợp với tài chính càng khó hơn. Bởi lẽ mỗi phong cách thiết kế lại có mức giá chi phí khác nhau, bởi độ kỹ thuật của công trình với thiết kế khác nhau đòi hỏi khác nhau. Sau đây chúng tôi cung cấp những hình ảnh đẹp về mẫu biệt thự tân cổ điển kiểu Pháp mới hiện nay được nhiều người yêu thích nhất.

Mẫu biệt thự đầu tiên chúng tôi muốn gửi đến các bạn đó là mẫu biệt thự kiểu Pháp mới mẻ nhất năm 2021 này. Đến với mẫu biệt thự này chúng ta thấy vẻ đẹp hào hoa và sang trọng được thể hiện rõ trên mặt tiền của biệt thự. Được thiết kế 3 tầng khá đồ sộ, khi quan sát hình ảnh về căn biệt thự chúng ta có thể hình dung ngay ra sự bề thế của căn nhà. Một không gian sống lý tưởng được bao bọc kín đáo và khỏe đẹp. Hệ thống cửa kính cường lực có mặt tất cả các phòng trong ngôi biệt thự, chính điều đó đã mang đến tính thẩm mỹ cao cho ngôi biệt thự và mang đến không gian sống thoáng mát, không những vậy mà còn khiến cho ánh sáng tự nhiên tràn ngập khắp căn phòng.

Căn biệt thự sở hữu tông màu trắng có khả năng ăn gian diện tích cho ngôi biệt tự. Với tông màu trắng cùng sự kết hợp của thiên nhiên mang đến không gian sống lý tưởng cũng như vẻ đẹp sang trọng cuốn hút tất cả ánh nhìn với căn biệt thự kiểu Pháp này. Hệ thống cột được xây dựng cân xứng đăng đối với tổng thể biệt thự mang đến vẻ đẹp rạng ngời cho mẫu biệt thự kiểu Pháp. Nếu bạn đang đi tìm một mẫu biệt thự với vẻ đẹp mang tính cổ điển và phá chút hiện đại thì đây chính là mẫu biệt thự bạn đang tìm kiếm. Bởi lẽ ở mẫu thiết kế này mang phong cách tân cổ điển, có chút cổ điển nhưng pha cùng hiện đại tạo nên vẻ đẹp tân cổ điển sang trọng.

Mẫu biệt thự theo phong cách tân cổ điển kiểu Pháp kết hợp mái lệch hiện đại đang là xu hướng thiết kế được rất nhiều các chủ đầu tư quan tâm. Căn biệt thự này được thiết kế với 2 mặt tiền và sử dụng hoàn toàn tông màu trắng tự nhiên mang đến nét đẹp tự nhiên quyến rũ cho mọi ánh nhìn hướng tới nó. Hàng rào được lựa chọn là các song sắt tĩnh điện bền màu, khỏe đẹp cùng thời gian, song sắt còn khiến cho chúng ta có cảm giác thông thoáng, khi chiêm ngưỡng căn biệt thự từ bên ngoài, cũng như thành viên trong gia đình nhìn từ bên trong ra bên ngoài. Tuy nhiên với hệ mái lệch có độ dốc nên đòi hỏi khi gia cố móng bạn phải tuyệt đối cẩn trọng, đảm bảo độ chắc chắn tuyệt đối vì thường hệ mái lệch có trọng lực thường dồn về một phía nên dễ xảy ra hiện tượng sụt lún. Do vậy khi gia công móng cẩn thận thì bạn có thể hoàn toàn yên tâm về công trình.

Đến với phong cách tân cổ điển kiểu pháp sang trọng, lộng lẫy là sự lựa chọn của tất cả những chủ đầu tư có thế mạnh, tiềm lực kinh tế. Như cha ông ta có câu trong dân gian “Đắt xắt ra miếng”. Đúng như vậy các bạn ạ. Do vậy những ngôi biệt thự khi thi công sẽ có chi phí cao. Bởi lẽ mỗi căn biệt thự xây dựng theo phong cách tân cổ điển kiểu Pháp có mức báo giá chi phí lên đến 7.000.000 VNĐ đến 9.000.000 VNĐ/m2 nhưng đổi lại bạn sẽ sở hữu được một căn biệt thự mang tầm cỡ, quy mô lớn. Khi hoàn thiện căn biệt thự sẽ là điểm nổi bật cả một vùng, khẳng định được tiếng tăm, đẳng cấp của gia chủ.
Phối cảnh bản vẽ cùng mặt bằng tổng thể nội thất mẫu biệt thự tân cổ điển kiểu Pháp đẹp.
Giúp các bạn hình dung về mẫu biệt thự được rõ ràng và chi tiết hơn, sau đây chúng tôi gửi đến các bạn mẫu phối cảnh biệt thự tân cổ điển kiểu Pháp đẹp nhất hiện nay.

Phối cảnh biệt thự tân cổ điển được thiết kế 3 tầng với phong cách thiết kế độc đáo và mang đến không gian sống như ý cho các hộ gia đình. Đến với phối cảnh biệt thự các bạn có thể hình dung tổng thể biệt thự và hình dung các căn phòng với nội thất hoàn hảo bên trong căn biệt thự. Mẫu biệt thự được xây dựng 3 tầng với các căn phòng công năng khác nhau. Toàn bộ hệ thống lan can và cổng nhà được thiết kế và gia công bằng sắt nghệ thuật chống rỉ mang đến nét đẹp tự nhiên và bền vượt thời gian.

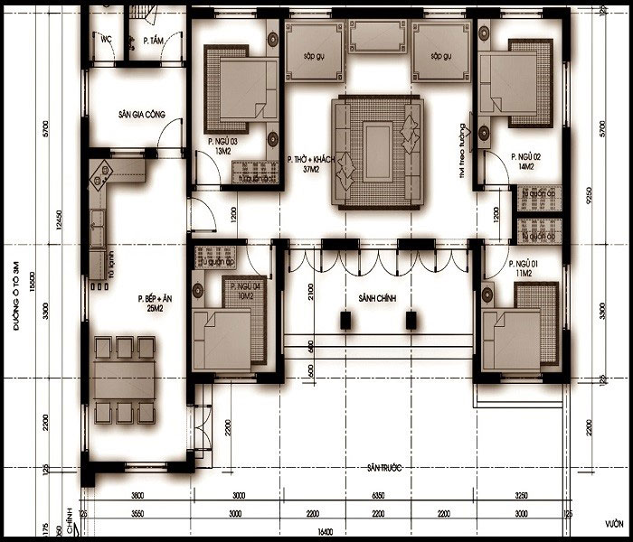
Hình ảnh về bản thiết kế nội thất căn nhà biệt thự với phong cách tân cổ điển được thiết kế 3 tầng với các thông số kỹ thuật và các chỉ dẫn chi tiết giúp cho bạn dễ dàng nhận biết cũng như hình dung ra tổng thể nội thất của căn biệt thự. Sự kết hợp mái thái mang đến vẻ đẹp hiện đại cho biệt thự. Vẻ đẹp của căn biệt thự và sự thừa hưởng của phong cách thiết kế cổ điển, tuy nhiên đây cũng là sự cộng hưởng của thiết kế hiện đại mang đến nét đẹp tân cổ điển cho mẫu biệt thự kiểu Pháp này.

Hình ảnh trên đây là cụ thể cho một bản vẽ của căn biệt thự kiểu Pháp. Phía trước không gian của căn biệt thự là khoảng sân trước rộng rãi, tại đây bạn có thể trồng nhiều cây xanh vừa tạo bóng mát, thẩm mĩ vừa mang đến một bầu không khí trong lành cho cuộc sống của gia đình bạn.
Để các chủ đầu tư có cái nhìn toàn diện về mẫu thiết kế biệt thự tân cổ điển kiểu Pháp ngoài hình ảnh 3D, phối cảnh bản vẽ, chúng tôi còn giới thiệu đến các chủ đầu tư cụ thể những mặt bằng tổng thể nội thất căn biệt thự kiểu Pháp đẹp nhất hiện nay.

Hình ảnh về nội thất của mẫu biệt thự kiểu Pháp sang trọng bề thế và nguy nga mang đến nét đẹp riêng độc đáo cho người nhìn. Chắc hẳn khi sở hữu không gian sống này các bạn với những ai từng đặt chân đến căn biệt thự đều không khỏi trầm trồ về vẻ đẹp của ngoại cảnh lẫn nội thất bên trong ngôi nhà. Với mẫu thiết kế biệt thự tân cổ điển này mang đến vẻ đẹp tự nhiên và mới mẻ cho nền xây dựng kiến trúc Việt Nam.
Sàn xây dựng số.vn nơi giúp bạn gửi gắm niềm tin với những mẫu biệt thự đẹp nhất

Khi bạn đã chuẩn bị đầy đủ về chi phí và ý tưởng và giờ bạn cần tìm nhà thầu xây dựng uy tín nhất trên cả nước để giao phó công trình tiền tỷ. Bạn hãy đến với chúng tôi sàn giao dịch thương mại điện tử Xây dựng số.vn.
Những băn khoăn của bạn khi tìm đến chúng tôi – sàn giao dịch thương mại điện tử xây dựng số sẽ được giải quyết. Bởi lẽ tại sàn xây dựng số chuyên lĩnh vực xây dựng của chúng tôi có tất cả những công ty thầu uy tín và có hồ sơ minh bạch. Tại đây bạn sẽ được chúng tôi tư vấn miễn phí về việc lựa chọn một nhà thầu xây dựng uy tín nhất trên 64 tỉnh thành trong nước ta. Tất cả các tỉnh thành trên nước Việt Nam chúng tôi đều có mặt và cung cấp đến những dịch vụ liên quan đến xây dựng tốt nhất.
Qua các thông tin chia sẻ về hình ảnh 3D mẫu biệt thự kiểu pháp sang chảnh trên bài viết, chúng tôi hy vọng đây là nguồn kiến thức bổ ích nhất cho các bạn và đây là những thông tin uy tín nhất đối với bạn.
Xem thêm


































