Mặt tiền 8m được xem là mặt tiền đủ lớn để gia chủ có thể thoải mái lựa chọn kiểu thiết kế sao cho phù hợp với yêu cầu và mục đích sử dụng của bản thân gia chủ. Cùng xem thiết kế dành riêng cho những mẫu biệt thự 4 tầng mặt tiền 8m như thế nào trong bài viết dưới đây.
Những phối cảnh chỉ dành cho mẫu biệt thự 4 tầng mặt tiền 8m
8m gia chủ có thể lựa chọn 1 trong 3 phong cách thiết kế như sau: hiện đại, tân cổ điển hoặc cổ điển. Cùng đi lần lượt khám phá 3 phong cách này để thấy mỗi phong cách sẽ mang đến những cảm nhận khác nhau cho chính gia chủ sở hữu và cho cả những người đi ngang qua.

Mẫu biệt thự 4 tầng mặt tiền 8m đầu tiên được giới thiệu trong bài viết sẽ có phối cảnh mặt tiền theo phong cách cổ điển mang đến mặt tiền mang đậm của kiến trúc nhà Châu Âu thế kỷ 17. Nhìn tổng thể phong cách kiến trúc này giúp cho mẫu biệt thự 4 tầng mặt tiền 8m trở nên đồ sộ, cao lớn hơn so với phối cảnh xung quanh, thu hút ánh nhìn của bất cứ ai đi ngang qua.
Toàn bộ mặt tiền 8m của ở tầng 1 mẫu biệt thự 4 tầng mặt tiền 8m này là phần cổng của công trình. Phần cổng có kiến trúc khá ấn tượng khi tạo nên từ cột trụ trắng vuông vững chãi có phần chân được ốp đa đen tạo nên một sức hút huyền bí, lại có khả năng chống ẩm rất tốt nhất là trong môi trường có thời tiết nhiệt đới gió mùa ẩm ở nước ta hiện nay. Cột trụ này liên kết với nhau tạo thành cổng vòm lớn với lối đi chính giữa và hai cổng phụ vòm nhỏ ở hai bên. Chú ý vào cổng chính với họa tiết cực nổi thể hiện đậm nét đôi tay tài hoa, kinh nghiệm lâu năm của những người thợ chuyên thi công mẫu công trình này.

Phối cảnh mặt tiền phía bên trong nhà lựa chọn kiến trúc chữ L nâng cao diện tích sử dụng cho gia chủ. Mỗi một ban công tương ứng với không gian phòng bên trong của gia chủ - kiểu kiến trúc này mang đến cho thành viên sở hữu không gian có được không gian thông thoáng, mỗi sáng thức dậy căn phòng tràn ngập ánh sáng mặt trời, tràn đầy năng lượng cho ngày làm việc phía trước. Mặt tiền mỗi căn phòng sơn nâu và trắng cùng tiểu cảnh cây tùng bên ngoài giúp không gian ấy mang đậm tính cổ điển. Kiến trúc mái tương tự giống với phần cổng đã tạo nên một thể thống nhất, tạo ấn tượng lớn cho mỗi người đi ngang qua công trình.

Với phong cách thiết kế hiện đại trong mẫu biệt thự 4 tầng mặt tiền 8m sẽ có phối cảnh như thế nào?
Có thể nhìn thấy rằng mẫu biệt thự 4 tầng mặt tiền 8m được đưa ra trong bài viết hiện đang sở hữu 2 mặt tiền vì thế kiến trúc sư tính toán kỹ lưỡng để làm nổi bật cả hai mặt tiền này với vị khách đi ngang qua.
Mặt tiền tầng 1 được ốp đá granit màu vàng đầy sang trọng cùng với cửa cuốn bên ngoài và phần cửa kính ở bên trong cùng với bậc thang xéo giúp gia chủ dễ dàng di chuyển ô tô hay xe máy của mình. Phối cảnh tầng 2 và 3 giống nhau với 2/3 diện tích là phần cửa kính nối thông ra ban công của mẫu biệt thự 4 tầng mặt tiền 8m. Phần này có viền xám làm nên hệ lam che nắng hiệu quả. Lan can ban công bằng khung sắt đơn giản tạo ra không gian rộng thoáng. 1/3 diện tích còn lại là phần tường sử dụng gạch hoa lạ mắt và có tác dụng giống như hệ lam che nắng giúp không gian bên trong nhà có thể tránh nắng hiệu quả.
Tầng 4 của mẫu biệt thự 4 tầng mặt tiền 8m được thiết kế thành tầng tum với khoảng sân rộng rãi. Phần diện tích này tùy thuộc vào nhu cầu của gia chủ mà thiết kế sao cho phù hợp.

Sự kết hợp giữa hiện đại và cổ điển được thể hiện gói gọn trong mẫu biệt thự 4 tầng mặt tiền 8m có phối cảnh như sau: Cổ điển thể hiện trong cột trụ vuông vững chãi cùng với phần chân được ốp đá vàng sang trọng, hay kiến trúc mái có phần đồ sộ, là khung cửa vòm mang đậm tính cổ điển. Hiện đại thể hiện khi tại những cột trụ ấy lược bớt họa tiết hoa văn hay lan can ban công vẫn là chất liệu sắt sơn đen tĩnh điện nhưng có thiết kế đơn giản. Nhưng mẫu biệt thự 4 tầng mặt tiền 8m vẫn lên với kích thước đồ sộ, nổi bật và thu hút ánh nhìn bởi sự sang trọng, nét đẹp hiện đại phù hợp với nhịp sống xung quanh.
Mặt bằng không gian trong mẫu biệt thự 4 tầng mặt tiền 8m như thế nào?

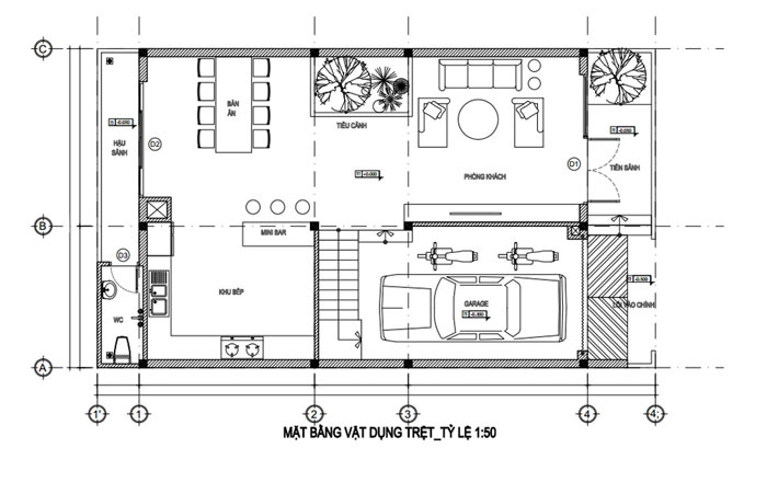
Mặt bằng công năng tầng trệt của mẫu biệt thự 4 tầng mặt tiền 8m được bố trí như sau: Sở hữu 8m, kiến trúc sư quyết định chia đôi phần diện tích thành 2 phần bằng nhau: 1 bên là lối dẫn vào phòng khách của gia đình, và 1 bên là lối dẫn vào gara. Từ vị trí gara có thể lối cửa thông vào phòng khách vô cùng thuận tiện. Từ phòng khách đi vào sâu bên trong là giếng trời với tiểu cảnh cây xanh được bố trí bên dưới. Tiếp tục đi sâu bên trong là không gian bếp + bàn ăn của gia chủ. Nhà vệ sinh được bố trí ở vị trí sau cùng của mẫu biệt thự 4 tầng mặt tiền 8m cùng với tiểu cảnh phía sau nhà.
Mặt bằng tầng 1 của mẫu biệt thự 4 tầng mặt tiền 8m này sử dụng giếng trời đặt ở giữa nhà giúp lấy sáng hiệu quả, hạn chế tối đa lượng điện năng tiêu thụ vào buổi sáng, điều hòa luồng không khí trong nhà như: mùi gara xe vào không gian sinh hoạt, mùi đồ ăn từ không gian bếp lên các khu vực xung quanh.

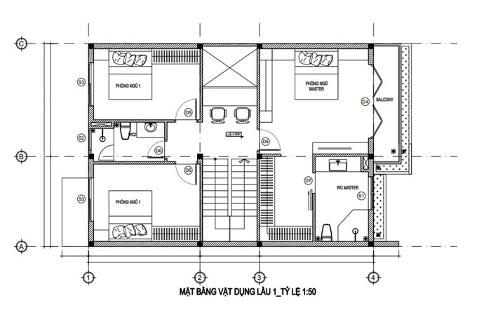
Mặt bằng lầu 1 mẫu biệt thự 4 tầng mặt tiền 8m có 3 phòng ngủ cùng 1 nhà vệ sinh. Trong 3 phòng ngủ này có 1 phòng ngủ master có nhà vệ sinh bên trong cùng với ban công vô cùng tiện nghi, thuận tiện cho gia chủ sử dụng. Hai phòng ngủ còn lại sử dụng chung 1 nhà vệ sinh được đặt giữa không gian.

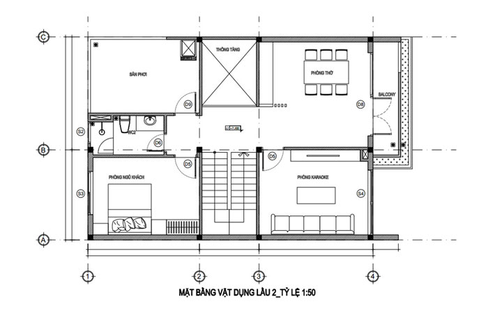
Không gian mặt bằng tầng 3 của mẫu biệt thự 4 tầng mặt tiền 8m với: phòng thờ, phòng karaoke, phòng ngủ, nhà vệ sinh và khu vực sân phơi.
Cuối cùng là tầng 4 với không gian tầng tum được xây dựng. Không gian tầng tum này gia chủ có nhiều kiểu bố trí, thiết kế khác nhau, có thể tham khảo ý kiến từ kiến trúc sư, chuyên gia để có lựa chọn phù hợp.
Nội thất trong biệt thự 4 tầng mặt tiền 8m có điểm gì khác biệt?

Gợi ý nội thất cho mẫu biệt thự 4 tầng mặt tiền 8m như sau: Nhìn vào hình ảnh gợi ý, kiến trúc sư lựa chọn phong cách kiến trúc hiện đại, đồ nội thất có thiết kế đơn giản: bộ ghế sofa bọc da sang trọng màu xám cùng với chiếc bằng đá trắng đơn giản nhưng đầy nét hiện đại. Tường đằng sau sofa ốp đá trắng cùng với bức tranh đen trắng tạo chiều sâu cho không gian, hai bên tường sử dụng thanh gỗ ép công nghiệp hiện đại. Trần nhà thạch cao đánh đèn vàng bên trong tạo chiều sâu cùng với chiếc đèn có thiết kế đơn giản nhưng đủ để làm điểm nhấn. Chiếc tủ để sách nhỏ xinh đi bên dưới cầu thang tiết kiện diện tích nhưng hiệu quả.

Vẫn tiếp tục sử dụng phong cách hiện đại trong mẫu biệt thự 4 tầng mặt tiền 8m nhưng tone màu trầm mang đến cảm giác ấm áp hơn. Vẫn bộ bàn ghế sofa nhưng bọc nhung mang màu kem trang nhẽ kết hợp với chiếc bàn gỗ ép công nghiệp nâu sẫm đủ tạo điểm nhấn cho toàn bộ không gian. Tường đằng sau sofa sử dụng thanh gỗ ghép để tạo nên bức tranh đơn giản nhưng đủ tạo điểm nhấn. Đèn thả với hình tròn ghép lại với nhau tạo thu hút.

Hay một không gian phòng khách trong mẫu biệt thự 4 tầng mặt tiền 8m sử dụng đồ nội thất bằng gỗ đầy sang trọng, nổi bật trong không gian đậm chất hiện đại. Không gian lựa chọn đồ nội thất làm bằng gỗ nhưng với thiết kế nhỏ gọn, xinh xắn làm nên không gian phòng khách vừa đủ để gia chủ tiếp đón vị khách đến chơi nhà với những ấn tượng khó phai.

Xem thêm nhiều mẫu biệt thự 4 tầng mặt tiền 8m với sự tư vấn trực tiếp từ chính đơn vị thiết kế, nhà thầu uy tín chất lượng hàng đầu Việt Nam trong lĩnh vực xây dựng tại: Sàn giao dịch và thương mại điện tử - Xây dựng số.
Gia chủ khi vào website của Xây dựng số, chỉ cần đưa ra những yêu cầu, mong muốn của mình cho công trình tương lai của mình, ấn đăng tìm thì vài giây sau kết quả tương ứng xuất hiện phù hợp. Nếu như có bất cứ câu hỏi gì liên quan có thể chat trực tiếp với nhân viên tư vấn để được giải đáp ngay lập tức.
Xây dựng số cam kết chất lượng, chi phí xây dựng hợp lý nhất trên thị trường xây dựng hiện nay.
Xem thêm


































