Mẫu nhà phố 3 tầng đang là xu hướng nhà hiện đại và được nhiều người yêu thích cũng như ưa chuộng chọn làm mẫu nhà cho gia đình mình. Bởi lẽ mẫu nhà 3 tầng 6x11m là mẫu nhà có lợi ưu điểm và lợi ích nhất cho những bạn sống trên phố và nơi đông dân cư. Vậy bạn có đang quan tâm về mẫu nhà này không? Trong bài viết hôm nay chúng tôi xin phép được giới thiệu về những mẫu hình ảnh đẹp của mẫu nhà 3 tầng 6x11m đẹp sang trọng hiện đại nhất năm 2021.
Hình ảnh 3D cho mẫu nhà 3 tầng 6x11m đẹp hiện đại và sang trọng.

Có thể thấy hiện nay ở nước ta mẫu nhà 3 tầng 6x11m luôn được ưa chuộng, đặc biệt ở thành phố, thành thị những nơi dân cư đông đúc, đất chật người đông. Đó cũng là lý do vì sao mà mẫu nhà 3 tầng lại được yêu thích đến thế. Với sự sang trọng và hiện đại luôn mang đến những mẫu thiết kế độc, đẹp và lạ cho khách hang. Trong bài viết này hãy cùng tham khảo thêm những mẫu nhà đẹp nhất 2021 để các bạn lựa chọn. Sau đây chúng tôi sẽ chia sẻ với các bạn về những mẫu nhà 3 tầng với diện tích 6x11m đẹp sang trọng mang đến không gian sống hiện đại nhất cho bạn.

Những mẫu nhà 3 tầng chân thực và rõ nét không những thế mà tất cả những mẫu về nhà 3 tầng 6x11m đều mới mẻ độc đáo. Hình ảnh về mẫu nhà 3 tầng trên chúng tôi muốn gửi đến quý vị và các bạn về mẫu nhà theo phong cách thiết kế hiện đại phương tây. Với hình ảnh 3D trên chúng tôi muốn chia sẻ tới các bạn mẫu nhà với vẻ đẹp vừa hiện đại và sang trọng và gần gũi chan hòa với thiên nhiên. Tính hiện đại của ngôi nhà được thể hiện ở chỗ đó là ba bên bốn bề của ngôi nhà đều được sử dụng kính cường lực cao cấp, điều đó không chỉ mang đến nét đẹp hiện đại cho ngôi nhà và còn giúp ngôi nhà có nguồn ánh sáng dồi dào và phong phú từ thiên nhiên, mang đến từng không gian phòng với các chức năng khác nhau và được mọi người yêu thích.

Đối với gần gũi thiên nhiên đó là hình thức thiết kế cây xanh xung quanh nhà mang đến không gian ấm áp và trong lành cho tất cả mọi người trong gia đình. Ngay cả không gian các phòng của nhà đều có sự xuất hiện của cỏ cây hoa lá mang đến cảm giác gần gũi và thân quen. Khiến cho bạn hay bất cứ ai đến với không gian ngôi nhà đều không khỏi bất ngờ trước vẻ đẹp của ngôi nhà mà không đâu có được.

Bạn sở hữu mảnh đất với diện tích là 6x11m thì bạn hoàn toàn có thể lựa chọn mẫu nhà trên của chúng tôi. Với mẫu thiết này thì phù hợp cho tất cả các bạn cho dù bạn ở nông thôn hay thành phố đi chăng nữa, mẫu thiết kế mang đến sự hợp lý nhất định cho chủ đầu tư. Phần mặt tiền của mẫu thiết kế này được bố trí cửa ra vào bằng gỗ tự nhiên và đều được trang trí hoa vân gỗ mang đến cảm giác gần gũi nhất cho các thành viên trong gia đình. Nhưng có lẽ điều làm nên sự khác biệt và mới mẻ nhất cho mẫu nhà này chính là cách thiết kế và trang trí vẻ đẹp từ ngoại thất cho đến mẫu nội thất bên trong ngôi nhà đều mang tính đặc biệt và sang trọng độc đáo. Các căn phòng với thiết kế bố trí nội thất hài hòa và bắt mắt, thuận lợi cho sinh hoạt hàng ngày. Chính điều ấy đã khiến cho mẫu nhà này đang trở thành xu hướng kiếm tìm của các chủ đầu tư mặt phố trong những năm gần đây.

Đến với hình ảnh 3D trên về mẫu nhà 3 tầng diện tích 6x11m với kiểu dáng thiết kế nhà theo phong cách hiện đại nhẹ nhàng cũng là mẫu thiết kế được nhiều người quan tâm nhất trong năm nay. Ngôi nhà được cấu tạo và kết hợp mái bằng mang đến vẻ đẹp hiện đại cũng như bề thế hơn cho ngôi nhà. Kết hợp với giếng trời trên tầng 3 là khoảng không mang đến ánh sáng cũng như khí trời cho ngôi nhà và chính điều đó đang được các chủ đầu tư lựa chọn làm mẫu thiết kế cho nhà của mình.
Mẫu thiết kế nhà được đặc biệt thiết kế chi tiết rèm cửa của tầng 1 và tầng 2 mang đến những không gian sống riêng tư cho gia đình và sự kín đáo trong sinh hoạt của các thành viên trong gia đình.

Mẫu thiết kế nhà này mang đến sự tiện lợi và hiện đại được nhiều chủ đầu tư yêu thích. Không gian nhà được thiết kế sang trọng và tiện nghi với các phong đầy đủ tiện nghi cũng như đồ dùng sinh hoạt hàng ngày, cửa chính nhà được thiết kế làm cửa kéo tạo nên sự tiện dụng cho sinh hoạt và có thể đây chính là điểm nhấn của ngôi nhà với diện tích rộng mở.

Bạn là người đang đi tìm kiếm những mẫu nhà 3 tầng 6x11m ở thành phố, vậy với những mẫu thiết kế trên đây của chúng tôi chắc hẳn sẽ không làm bạn thất vọng và khiến cho các chủ đầu tư phải ngất ngây trước vẻ đẹp của những mẫu nhà này.Với tông màu trắng huyền thoại kết hợp cùng mái thái đã phát huy tối đa diện tích sử dụng của lô đất và đay cũng là sự lựa chọn phù hợp nhất cho ngôi nhà. Nơi đất chật người đông thì với mẫu thiết kế nhà này các bạn yên tâm về công năng cũng diện tích sử dụng của các căn phòng. Một không gian sống hiện đại và gần gũi với thiên nhiên đang là mẫu thiết kế được rất nhiều chủ đầu tư ở thành phố săn tìm trong năm vừa qua.

Đến với mẫu nhà này chúng ta có thể thấy ngay màu trắng mang đến vẻ đẹp sang trọng cho ngôi nhà cũng như có thể an gian diện tích cho ngôi nhà bởi lẽ gam màu trắng được mệnh danh là gam màu ăn gian diện tích nhất trong các gam màu sáng. Các mẫu thiết kế nhà phố 3 tầng 6x11m hiện nay không chỉ đáp ứng nhu cầu sử dụng và còn mang đến giá trị cao về thẩm mỹ cho ngôi nhà. Do vậy mẫu nhà trên chính là một điển hình cho vẻ đẹp thẩm mỹ độc đáo ấy.
Phối cảnh bản vẽ, mặt bằng tổng thể nội thất mẫu thiết kế nhà 3 tầng 6x11.

Đến với hình ảnh về phối cảnh bản vẽ cũng như mặt bằng tổng thể nội thất nhà 3 tầng có diện tích là 6x11 bạn hoàn toàn có thể bố trí và sở hữu một không gian với đầy đủ chức năng sử dụng của ngôi nhà. Tại mẫu thiết kế nhà này được bố trí 1 phòng khách, 1 phòng bếp + phòng ăn, 3 phòng ngủ , nhà vệ sinh… và các công năng khác của ngôi nhà như tầng thượng phơi đồ phòng giặt…Với phong cách thiết kế mái bằng ấn tượng mang đến không gian sống lý thú nhất cho chủ đầu tư.

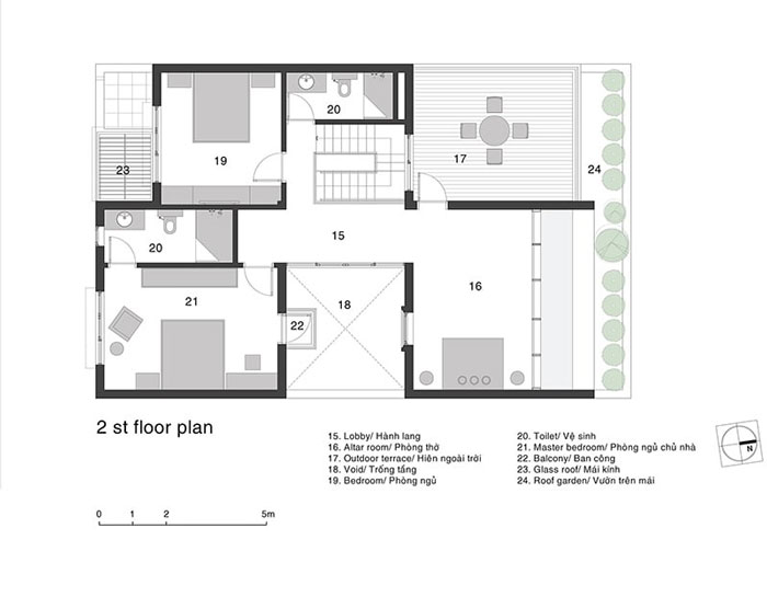
Hình ảnh về bản vẽ với các thông số chính xác cũng như rõ ràng giúp bạn có thể dễ nhận biết các căn phòng nhanh hơn và dễ dàng hơn. Bản vẽ cùng với 24 ghi chú về các căn phòng cũng như công năng của các căn phòng được nhà thiết kế kê khai rành mạch.

Sau đây chúng tôi mời các bạn cùng khám phá nội thất bên trong ngôi nhà 3 tầng diện tích là 6x11m với không gian sống tiện nghi và sang trọng. Với bản hình vẽ trên chúng ta thấy ngay không gian phòng khách với không gian phòng bếp được nối thông với nhau. Tất cả đều sang trọng lịch lãm, sử dụng nội thất với tông màu nhẹ nhàng là điểm nhấn cho không gian phòng này. Khi bạn sở hữu một ngôi nhà như vậy khiến cho chính bạn cùng bất cứ ai đến với ngôi nhà đều có cảm giác sống thật tuyệt vời và ý nghĩa hơn bao giờ hết.

Để các bạn có thể hiểu rõ hơn về nội thất bên trong ngôi nhà chúng tôi mời các bạn cùng tham quan về mẫu thiết kế bản vẽ nội thất nhà 3 tầng 6x11m.
Một không gian phòng bếp vô cùng nhẹ nhàng với các nội thất gọn nhẹ nhưng không hề đơn sơ bởi vẻ đẹp sang trọng thanh cao của chính nội thất mang đến cho căn phòng. Đến với không gian tổng quát về các căn phòng chúng ta thấy vẻ đẹp ngất ngây của tổng thể không gian nhà 3 tầng 6x11m được nhà thiết kế kỳ công thiết kế nên. Với mong muốn mang đến không gian sống tiện nghi nhất cho chủ đầu tư.
Sàn xây dựng số.vn

Đến với sàn xây dựng số.vn các bạn sẽ được cộng tác với đội ngũ chuyên nghiệp với cách chỉ dẫn và chăm sóc nhiệt tình của nhân viên tư vấn tại sàn. Bạn yên tâm về các dịch vụ tại sàn và chúng tôi cam kết mang đến những công trình đẹp như mơ cho bạn. Đây cũng chính là lý do mà sàn xây dựng số được hàng ngàn người tin dùng và tìm đến. Chúc các bạn có được những mẫu nhà đẹp nhất từ sàn giao dịch số.vn.
Xem thêm


































