Mẫu nhà 2 tầng 6mx15m xuất hiện rất nhiều bởi đây là phần diện tích phổ biến, và khi tiến hành xây dựng nhà ở phù hợp với nguồn ngân sách của gia đình Việt Nam hiện nay. Vậy mẫu nhà 2 tầng 6mx15m nên xây dựng 3 hay 4 phòng ngủ mới phù hợp với diện tích xây dựng này?

Để có thể xác định việc xây dựng 3 hay 4 phòng ngủ cho mẫu nhà 2 tầng 6mx15m tùy thuộc vào nhu cầu sử dụng của chính gia chủ. Nếu như gia chủ xây dựng mẫu nhà 2 tầng 6mx15m với 3 phòng ngủ thì có thể kết hợp giữa sinh hoạt gia đình với tự kinh doanh hoặc cho thuê để có thể thu được nguồn lợi cho chính bản thân gia chủ. Với không gian 3 phòng ngủ rất phù hợp cho những hộ gia đình cơ bản: 4 thành viên cùng nhau sinh sống hiện nay. Còn ngược lại với mẫu nhà 2 tầng 6mx15m 4 phòng ngủ sẽ phù hợp với gia đình sinh sống nhiều thế hệ từ 4 đến 6 thành viên sinh sống dưới một mái nhà. Cùng xem bản vẽ thiết kế của hai mẫu nhà 2 tầng 6mx15m 3 phòng ngủ và 4 phòng ngủ dưới đây để có thể lựa chọn được mẫu thiết kế ưng ý.
Mẫu nhà 2 tầng 6mx15m 3 phòng ngủ xây dựng mẫu gia đình cơ bản
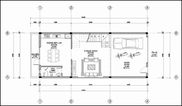
Đây mẫu nhà đẹp với 3 phòng ngủ được xây dựng phù hợp sinh hoạt của một gia đình cơ bản có 4 thành viên. Mặt bằng thiết kế tham khảo cho mẫu nhà này như sau:

Đối với mặt bằng tầng 1 có 1 khách, 1 bếp + ăn, 1 ngủ và 1 nhà vệ sinh.
Bước chân vào ngôi nhà là không gian phòng khách được bố trí gọn ngàng, hiện đại. Cầu thang bố trí phân cách khu vực phòng khách với các không gian còn lại với nhau. Kế tiếp là phòng ngủ, bếp + ăn được bố trí liền kề, sau cùng là nhà vệ sinh. Việc bố trí như thế này giúp gia chủ tách biệt rõ ràng giữa các không gian với nhau và có sự riêng tự nhất định, phù hợp với mục đích của gia chủ khi tiếp đón cái vị khách tới nhà.

Mặt bằng tầng 2 được bố trí với 1 phòng thờ, 2 ngủ, 1 nhà vệ sinh.
Ở không gian này, 2 ngủ được bố trí liền kề với nhau, cuối cùng là nhà vệ sinh được bố trí cuối nhà. Phòng thờ được bố trí ở ngay nơi bố trí ban công nhà, phù hợp phong thủy, là nơi cao nhất cũng là mặt tiền của ngôi nhà.

Bắt đầu mẫu nhà 2 tầng 6mx15m 3 phòng ngủ với một thiết kế có lẽ khá quen thuộc với tất cả mọi người. Đây là kiến trúc theo phong cách hiện đại với những nét thiết kế mang đậm phong cách này, được xem là top thiết kế phổ biến với giá cả hợp lý cho tất cả hộ gia đình tại Việt Nam hiện nay.
Hình khối biểu thị rõ ràng nhất tại khu vực tầng hai của ngôi nhà khi kiến trúc sư đã xếp hai khối chữ nhật vuông vực lại sát nhau, có sự chênh lệch về kích thước cũng như vị trí: 1 bên hơi nhô ra, 1 bên lùi vào phía trong hơn. Với cách bố trí như vậy phân cách rõ ràng hai không gian nhà, từ bên ngoài có thể dễ dàng nhận ra được.
Thay vì việc bố trí tiểu cây cảnh như thông thường: xuất hiện ở khu vực ban công nhà thì thiết kế nhà này lại bố trí thêm cây xanh ở khu vực cửa sổ. Như vậy, gia chủ chỉ cần mở cửa sổ ra, nhìn ngắm ra ngoài là có thể thấy thiên nhiên ngay trước mắt. Cây xanh được xuất hiện tại khu vực cổng rào của căn nhà. Thay vì để phần cổng rào mái ngói hay không sử dụng mái thì gia chủ lại khéo léo bố trí thêm cây xanh trên mái của cổng nhà với hàng cây rủ. Tất cả làm nên một không gian tràn ngập thiên nhiên trong căn nhà này.

Mẫu nhà 2 tầng 6mx15m đặt gara oto phía trước nhà cũng là mẫu thiết kế mà gia chủ rất quan tâm. Với thiết kế gara đặt trước nhà này, gia chủ để hở, không xây dựng mái che hoặc sử dụng mái che bằng lam che nắng. Việc làm này giúp thông thoáng khí, không ám mùi vào trong nhà cũng như mang đến ánh sáng cho ngôi nhà 2 tầng 6mx15m.

Nếu như bạn nghĩ rằng, những mẫu nhà 2 tầng 6mx15m không thể nào bố trí được gara ở một bên nhà thì bạn đã nhầm, với mẫu thiết kế trên đây chắc chắn khiến bạn phải suy nghĩ lại về kiến trúc này.
Với mặt tiền 6m đã đủ để gia chủ bố trí một không gian gara song song với phòng khách của căn nhà. Nhìn vào mẫu thiết kế trên mặt tiền ở khu vực tầng 1 đã được gia chủ tách làm đôi, 1 bên là khu vực cửa chính được làm bằng khung nhôm kính, và một bên sử dụng cửa cuốn dành riêng cho gara oto.
Khu vực tầng 2 của căn nhà này lấy kiến trúc đối xứng với tầng bên dưới, chia lầm 2 phần riêng biệt giữa một bên là cửa chính 4 cánh được làm bằng khung nhôm kính, và 1 bên là cửa sổ trải 2 mặt của khu vực phòng ngủ. Với việc sử dụng rất nhiều kính ở mặt tiền đã giải quyết được một vấn đề xảy ra ở mẫu thiết kế nhà nhỏ trước đây chính là thiếu đi ánh sáng cho căn nhà. Việc sử dụng tấm kính lớn mang cảm giác không gian phòng rộng hơn rất nhiều so với không gian thực.
Khu vực tầng hai gia chủ sử dụng ban công với kính cường lực với mục đích tương tự như trên. Ngoài ra sử dụng chất liệu này còn có độ bền tương đối cao, dễ vệ sinh. Ở khu vực tầng thượng gia chủ sử dụng hệ thống lan can bằng sắt chắc chắn. Việc sử dụng lan can này phù hợp với mục đích của gia chủ cho việc trồng cây xanh tại đây cũng nhu việc đặt bàn ăn để tụ tập cuối tuần, đảm bảo an toàn cao.

Mẫu nhà 2 tầng 6mx15m đã quá quen thuộc với hình ảnh mái bằng thì hãy thử lựa chọn mái xéo xem sao, biết đâu ngôi nhà với lựa chọn khác biệt mang ngôi nhà lọt top thiết kế xu hướng tương lại.
Khu vực mặt tiền theo đuổi phong cách hiện đại sẽ không nhắc quá nhiều bởi có chung thiết kế giống như mẫu trên. Vậy nên hãy chú ý vào phần mái của ngôi nhà này. Thay vì một phần mái bằng đã quá quen thuộc thì thay bằng một phần mái xéo kép, bên trên được lợp ngói giống với mái Thái. Phần mái này được xây dựng cao hơn để mang đến cho ngôi nhà độ cao ráo, thông thoáng, chống nóng và lưu thông khí hiệu quả. Phần mái xéo, lớp ngói bên trên sẽ tốn công sức, thời gian cũng như phần chi phí sẽ đắt hơn so với mái bằng thông thường nhưng bù lại là hiệu quả thẩm mỹ, cũng như khắc phục được nhược điểm ứ đọng nước mà mái bằng đang gặp phải hiện nay.

Vẫn tiếp tục sử dụng thiết kế mái xéo nhưng là mái xéo lệch ghép lại với nhau cho mẫu nhà 2 tầng 6mx15m. Với thiết kế ấn tượng này, nhìn lướt qua trông mái này không khác gì phần mái Thái thông thường. Với thiết kế này ngôi nhà cũng trở nên đồ sộ hơn hơn rất nhiều.
Mẫu nhà 2 tầng 6mx15m 4 phòng ngủ phù hợp với gia đình nhiều thế hệ
Trước khi vào đến mặt tiền ấn tượng của mẫu nhà 2 tầng 6mx15m 4 phòng ngủ, chúng ta cùng xem mặt bằng thiết kế của những mẫu nhà này để xem cách gia chủ bố trí không gian cũng như nội thất trong căn nhà này như thế nào?

Mặt bằng tầng 1 bao gồm: 1 gara oto, 1 phòng khách, 1 phòng bếp + ăn, 1 nhà vệ sinh.
Vị trí gara oto được đặt trước nhà, sau đó mới đến phòng khách. Khu vực khách và bếp ăn được đập thông với nhau để tạo chiều sâu cho căn nhà. Nhà vệ sinh được bố trí cùng với khu vực bếp ăn nhưng nằm gọn ở phía ngôi nhà. Sau nhà để thừa một khoảng trống nhỏ để làm khu vực sân sau phục vụ nhu cầu của gia chủ.

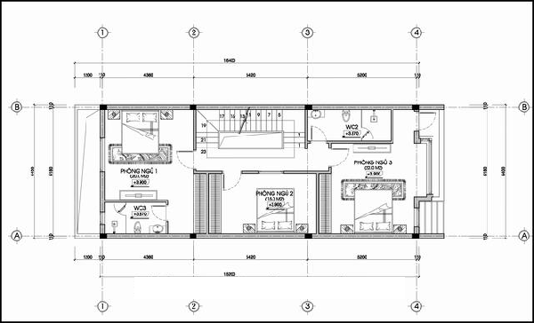
Mặt bằng tầng 2 bao gồm: 3 ngủ trong, 2 nhà vệ sinh, trong đó 1 nhà vệ sinh được bố trí trong ngủ master để tạo sự riêng tư cho người sử dụng. Ngoài ra, một số mẫu nhà 2 tầng 6mx15m xây dựng thêm tầng tum.

Không gian tầng tum này gia chủ bố trí 1 phòng thờ, 1 ngủ và 1 nhà vệ sinh cùng với 2 sân phơi đồ. Với không gian tầng tum này gia chủ hoàn toàn bố trí được thêm một phòng ngủ với nhà vệ sinh khép kín vừa tạo được một không gian xanh cho cả căn nhà.

Mẫu nhà 2 tầng 6mx15m 4 phòng ngủ đầu tiên được giới thiệu chính là mẫu nhà 2 tầng với thiết kế phổ biến hiện nay. Tập trung vào những điểm nhấn trong ngôi nhà: tầng 1 được ốp đá màu đen để làm nổi bật khu vực cửa kính khung nhôm sơn trắng, từ đó mọi người chú ý vào không gian phòng khách phía trong nhầ. Điểm thứ hai là viền xung quanh nhà được ốp đá. Và khu vực tầng tum được bố trí với một nửa diện tích với mái che chiếm 2/3 diện tích bề ngang 6m.

Mẫu thiết kế thứ hai cho mẫu nhà 2 tầng 6mx15m 4 phòng ngủ với khu vực tầng tum được thiết kế giống như vườn treo. Không sử dụng giống cây trồng trong chậu dễ dàng bắt gặp mà gia đình đang sử dụng hiện nay. Gia chủ ngôi nhà này kết hợp giữa cây trồng mặt đất và cây trồng giàn treo để mang đến một khu vườn trong mơ của rất nhiều người.

Điểm làm nên kiến trúc đặc biệt cho ngôi nhà này chính là mặt bằng tầng 2, không sử dụng ban công. Gia chủ bố trí hệ thống cửa kính có khung rèm bên trong và bề mặt bê tông được cách điệu giống như lam che nắng. Gia chủ tối đa diện tích ở và hạn chế ánh nắng chiếu.

Mẫu nhà 2 tầng 6mx15m 4 phòng ngủ với tum phía tầng thượng gây ấn tượng hệ thống lam che nắng ô vuông được sử dụng. Để không gây nhàm chán, lam che nắng bố trí so le, giữa một ô với lam dọc và một ô lam ngang được đặt cạnh nhau. Lam này giúp cây xanh không bị quá nắng. Ngoài ra lam che nắng được sử dụng như là một khu vực nối liền tầng 2 và 3 với nhau với bố trí tương tự tạo nên nét kiến trúc độc đáo.
Xem thêm:

































