Những mẫu nhà phố 5x12m không còn là khái niệm quá xa lạ đối với các hộ gia đình và các chủ đầu tư hiện nay. Bởi không chỉ phát huy được những công năng tiện ích, mà với diện tích hạn chế như vậy nhưng căn nhà vẫn mang đến một không gian sống và các trải nghiệm thú vị. Nếu ai còn đang thắc mắc không biết nên chọn căn nhà nào để có được một thiết kế tối ưu nhất ngay giữa lòng thành thị chật vật thì những mẫu nhà phố 5x12m tuyệt đẹp này chính là 1 giải pháp sáng suốt. Bài viết này nhằm cung cấp và hỗ trợ 1 số thông tin đến độc giả về những mẫu nhà phố 5x12m tuyệt đẹp.

Tìm hiểu thông tin công trình xây dựng công trình nhà phố 5x12m
Chủ đầu tư: anh Nguyễn Ngọc Sang
Công trình: nhà phố
Diện tích: 5x12m
Công năng: phòng khách, phòng ăn, 3 phòng ngủ, phòng thờ và ban công.
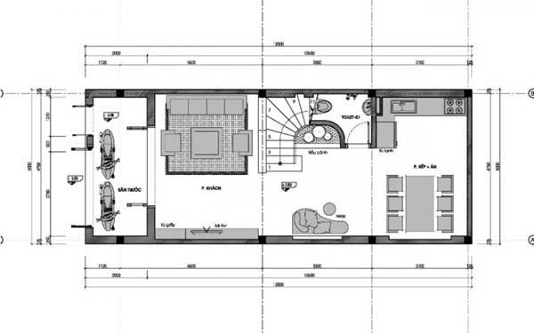
Bản vẽ mặt bằng công trình nhà phố 5x12m

Tầng 1 bao gồm không gian để xe và các phương tiện đi lại hàng ngày. Tiếp theo đó là không gian phòng khách được thiết kế đảm bảo rộng rãi. Toilet được lắp đặt ngay cạnh cầu thang và tiểu cảnh được bố trí riêng 1 khoảng giữa của căn nhà. Cuối cùng là phòng bếp và ăn. Nhìn chung, không gian sống đã được tối ưu và bố trí đơn giản sao cho tiết kiệm được diện tích mà vẫn đảm bảo các thành viên trong nhà anh Sang đều có thể sinh hoạt một cách thoải mái và thuận tiện.

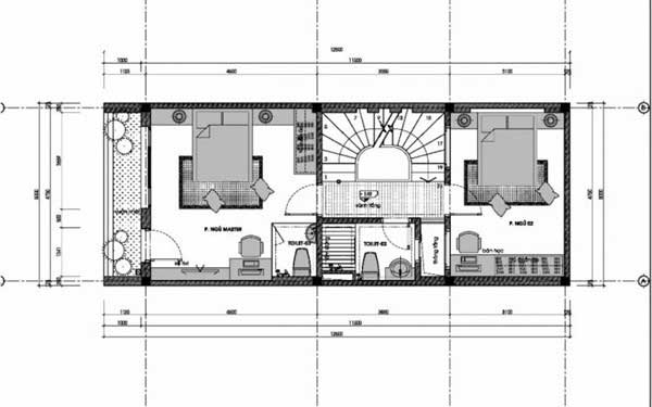
Tầng 2 bao gồm 2 phòng ngủ, phòng lớn dành cho vợ chồng anh Sang được thiết kế rất rộng rãi và có toilet ngay bên trong rất tiện nghi. Phòng ngủ nhỏ hơn dành cho con và được bố trí thêm toilet chung bên ngoài đặt ở gần không gian thông tầng.

Tầng 3 bao gồm ban công, phòng thờ được thiết kế song song với khu giặt đồ. Ngoài ra phía cuối còn được xây dựng 1 phòng ngủ cho con trai lớn. Nhìn chung, mặt bằng tầng 3 tương đối rộng rãi và thoáng mát. Là thiết kế tối ưu nhất giải quyết được tình trạng diện tích chật hẹp mà vẫn đảm bảo không gian sống cho tất cả thành viên trong gia đình.
Những mẫu nhà phố 5x12m tuyệt đẹp

Mẫu nhà phố 5x12m được thiết kế theo lối kiến trúc nhà ống 3 tầng hiện đại. Phần mặt tiền được xây dựng hệ thống cổng có 2 cánh, cánh nhỏ để ra vào bên trong căn nhà, cánh rộng còn lại để di chuyển xe ô tô cũng như các phương tiện đi lại hàng ngày. Tầng 2 và 3 được thiết kế chia thành 2 nhánh, 1 nhánh là ban công được bố trí lan can bằng kính cường lực, nhánh còn lại được lắp đặt một dãy chắn bằng gạch thông gió và hệ thống màn che bằng sắt song song rất đẹp mắt. Vừa che chắn được lượng ánh sáng hắt vào bên trong nhà, còn thể hiện nét thẩm mỹ cao. Nhìn chung, mẫu nhà được thiết kế theo kiến trúc tối giản mà vô cùng sang trọng, đang là mẫu nhà được rất nhiều hộ gia đình săn đón hiện nay.

Được thiết kế khéo léo theo kiểu kiến trúc tân cổ điển sang trọng. Mẫu nhà phố 5x12m sử dụng phương án thiết kế mái thái giật cấp nhẹ để tạo nên độ cao vừa phải mà vững chắc cho căn nhà. Khối đua rộng phía trên giúp cân đối hình khối chung và góp phần tạo nên hiệu ứng thẩm mỹ cao khiến căn nha trở nên năng động, mới mẻ. Mặt tiền của căn nhà được ốp đá granit màu vân nâu kết hợp cùng các họa tiết phào chỉ, đường gờ ở tầng 2 và 3 tạo nên một điểm nhấn ấn tượng và đẹp mắt khi nhìn vào. Hệ thống lan can ban công được lắp đặt bằng kính cường lực trong suốt chắc chắn cùng lam bê tông tạo nên sự mềm mại mà khỏe khoắn cho căn nhà. Vì có sân vườn rộng, nên căn nhà được thiết kế hệ thống cổng 2 cánh rất tiện lợi, vừa đảm bảo được các phương tiện đi lại hàng ngày an toàn, mà còn mang đến cho căn nhà một nét đẹp hiện đại. Nhìn chung, mẫu nhà này là một ý tưởng độc đáo mà những ai đang tìm kiếm không thể nào bỏ qua.

Được xây dựng với 3 lớp mái lớn nhỏ xếp tầng khác nhau và có 2 cột trụ vững chắc nâng đỡ ở tầng 2. Mẫu nhà phố 5x12m mang lại nét đẹp sang trọng và cuốn hút không khác gì những căn biệt thự đồ sộ. Gam màu trắng phối ghi nhạt và kem hòa quyện, khoác lên căn nhà một chiếc áo vô cùng nổi bật và trẻ trung. Tầng lửng và tầng 2 được xây dựng với thiết kế có những đường nét ngoại thất tỉ mỉ mà vô cùng điêu luyện, các đường kẻ roan và các đường phào chỉ đắp nổi, những mảng âm tường ốp gạch thô tạo nên sự mềm mại và góp phần làm cho căn nhà nổi bật. Vì căn nhà được bố trí tầng lửng nên nhìn bên ngoài ta cảm giác được căn nhà trông rất cao, rộng rãi và thoáng mát.

Nếu bạn là một người đầu tư muốn tiết kiệm chi phí xây dựng thì không nên bỏ lỡ mẫu nhà phố 5x12m được xây dựng theo kiểu nhà ống đơn giản như thế này. Với phong cách kiến trúc hiện đại, căn nhà được thiết kế với những công năng ngoại thất vô cùng thẩm mỹ mà mang lại những chức năng tuyệt vời. Hệ thống cổng đươc xây dựng khá đơn điệu, các thanh đổ khối bê tông được lắp đặt song song và xếp tầng tạo nên sự mới mẻ mà vô cùng hiện đại cho căn nhà. Phía trên tầng được xây dựng 1 giàn lam chắn bằng sắt vừa đón được nắng cho căn nhà lại có thể tận dụng để treo cây cảnh nếu như chủ nhà muốn. Mẫu nhà này khá phù hợp cho các hộ gia đình vừa và nhỏ đang có nhu cầu xây nhà với chi phí tiết kiệm.

Với thiết kế hiện đại và sang trọng, mẫu nhà phố 5x12m được xây dựng bởi các đường nét ngoại thất mạnh mẽ và dứt khoát. Các đường thẳng nối tiếp với nhau tạo nên nét thẩm mỹ và sự năng động cho ngôi nhà. Gam màu trắng và xám kết hợp cùng với nhau tạo nên sự tương phản đối lập để làm căn nhà trở nên nổi bật hơn. Tầng 2 và 3 tuy có ban công tương đối nhỏ nhưng được lắp đặt hệ thống cửa kính cường lực trong suốt dày đặc, vẫn đảm bảo đón nhận được nguồn ánh sáng từ bên ngoài vào trong căn nhà. Góp phần tạo nên không gian sống sinh hoạt thoải mái và thuận tiện cho các hộ gia đình sinh sống tại đây.

Kiến trúc đơn giản với những hình khối vuông kết hợp cùng các chi tiết ngoại thất đã tạo nên sự đồng nhất hoàn mỹ trong công trình xây dựng. Gam màu be kết hợp cùng màu trắng với những đường gờ phào chỉ được trang trí mềm mại ở mặt tiền khu vực tầng 2 đã tạo nên sự trang nhã, thanh lịch và sang trọng cho ngôi nhà phố. Góp phần tạo nên một không gian sống nhẹ nhàng, thoải mái mà đảm bảo mang đến được các công năng tiện ích cho những ai đầu tư xây dựng.

Mẫu nhà phố 5x20m là mẫu nhà ống 2 tầng 1 tum được thiết kế theo phong cách hiện đại và năng động. Gam màu trắng chủ đạo kết hợp cùng hệ thống cửa kính rộng đã góp phần đưa luồn ánh sáng tự nhiên đi vào bên trong căn nhà giúp cho không gian ở bên trong thoáng mát, thoải mái. Tường rào và cổng được thiết kế đơn giản nhưng lại góp phần tạo điểm nhấn cho căn nhà trở nên hiện đại, sang trọng. Bờ tường rộng kết hợp cùng gam màu xám chạy thẳng từ tầng trệt lên tầng 3 khiến cho ngôi nhà trở nên mới mẻ, tạo nét độc đáo riêng mà không thể nào trộn lẫn với bất kì một căn nhà khác.

Nổi bật bởi 2 gam màu trắng và đen tương phản, tuy khác biệt nhưng khi kết hợp vào nhau đã tạo nên sự mới mẻ và hiện đại cho căn nhà phố 5x12m. Tầng 1 dược lắp đặt hệ thống cửa kính, mảng tường được ốp đá granit màu vàng nhạt tạo nên sự sang trọng, hiện đại cho căn nhà. Tầng 2 được thiết kế khối ban công đua rộng góp phần tạo nên một không gian mở thông thoáng cho căn nhà. Thiết kế lam chắn được ghép từ các thanh sắt màu đen xếp song song lấp đầy vừa khít nhau tạo nên nét đẹp thẩm mỹ cho căn nhà.

Mẫu nhà phố 5x12m được thiết kế nổi bật bởi phong cách tối giản mà vô cùng hiện đại. Với thiết kế 2 tầng 1 tum, tầng 1 ốp đá granit màu xanh giúp cho ngôi nhà luôn cảm giác mát mẻ và tươi mới. Đồng thời còn rất dễ lau chùi và làm sạch trong quá trình sinh hoạt. Hệ thống cửa được làm bằng khung nhôm mạ kẽm, lắp đặt kính cường lực để giúp căn nhà trở nên sáng sủa, đẹp hơn. Tầng 2 và tầng tum có ban công tương đối rộng rãi, thoáng mát kết hợp cùng trang trí và trồng thêm cây xanh trong nhà sẽ góp phần nâng cao chất lượng sống hơn.

Được thiết kế mặt tiền khá đơn giản với cửa và vách kính lớn chiếm gần trọn bề ngang, mẫu nhà phố 5x12m vẫn thể hiện được nét đẹp hiện đại và mới mẻ. Lam gỗ được thiết kế ở tầng 2 có tác dụng chắn bớt ánh nắng gắt cũng như góp phần làm tăng thêm nét đẹp thẩm mỹ cho căn nhà. Sân thượng được bảo vệ bởi hệ thống lan can lắp đặt kính chắc chắn, hệ thống mái che bên trên góp phần làm cho quá trình sinh hoạt diễn ra thoải mái hơn. Đây là mẫu nhà khá mới, nhưng được rất nhiều chủ hộ đầu tư hiện nay.
Qua những thông tin bổ ích được cung cấp trong bài viết, có lẽ các bạn độc giả cũng hiểu hơn về mẫu nhà phố 5x12m hiện nay. Tùy vào nhu cầu và kinh tế của mỗi người, mẫu nhà này được xây dựng đa dạng, đa phong cách, mang tới những tiềm năng rất lớn cho những ai muốn sỡ hữu. Chúc các bạn sẽ tìm được mẫu nhà ưng ý cho mình trong tương lai.


































