Với sự phát triển như hiện nay, mỗi gia đình đều có thể sở hữu một chiếc oto từ đó nhu cầu mẫu nhà có gara oto thu hút rất nhiều gia chủ đang có ý định xây nhà trong tương lai. Mẫu nhà phố 7x10m liệu có thể xây dựng được gara oto và nếu đặt thì nên đặt ở vị trí nào?
Lựa chọn thiết kế nào cho mẫu nhà phố 7x10m có gara otô
Để có thể xây dưng được một gara thì một trong những điều kiện đầu tiên là đáp ứng chiều dài của gara tối thiểu là 5m. Với kích thước như vậy thì mẫu nhà 7x10m tại phố hoàn toàn có thể đáp ứng được tiểu chuẩn. Tuy nhiên cứ như vậy là có thể xây dựng bởi nếu không biết bố trí không gian hợp lý sẽ dẫn đến việc gara không được thông thoáng, gây mùi ám lên không gian sinh hoạt của gia đình. Nếu gia chủ không tìm hiểu kỹ việc bố trí gara oto gây ảnh hưởng đến không gian sinh hoạt bên trong nhà, đặc biệt là những mẫu nhà phố thường có phần diện tích xây dựng khá hạn chế, việc tối ưu diện tích sinh hoạt là điều gia chủ luôn hướng đến và đặt lên đầu tiên.

Bài viết giới thiệu mẫu nhà phố 7x10m có gara oto quy mô xây dựng 2 tầng phổ biến hiện nay để gia chủ tham khảo cho ngôi nhà tương lai của mình.

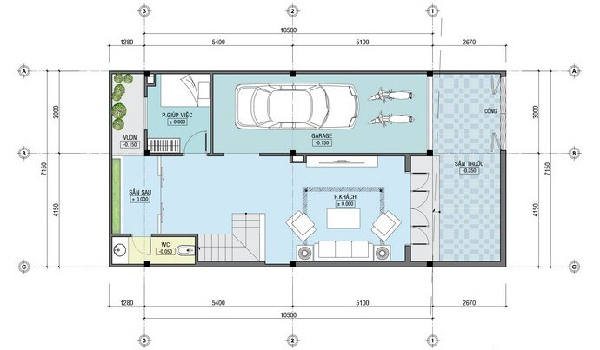
Mặt bằng tầng 1 kiến trúc sư chia diện tích sàn ra thành hai phần song song với nhau. Bắt đầu là phòng khách song song với gara oto. Tại vị trí phòng khách sẽ được bố trí hệ thống cửa kính bốn cánh để lấy được ánh sáng tối đa nhất vào trong căn nhà khi trời sáng. Cuối gara oto có cửa nối vào khu vực bếp + ăn rất thuận tiện cho gia chủ khi về nhà. Phía sau nhà bố trí khu vực bếp + cùng nhà vệ sinh một bên và bên còn lại là phòng ngủ. Cầu thang bố trí phía sau cùng nhà ở vị trí nhà vệ sinh để tiết kiệm diện tích.

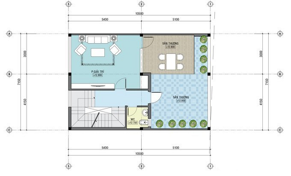
Lên đến mặt bằng tầng 2 của mẫu nhà phố 7x10m có bố trí không gian tương tự như ở tầng 1. Bắt đầu bằng không gian hai phòng ngủ được đặt song song, bên ngoài có ban công trước nhà. Trong hai phòng ngủ này có một phòng ngủ master có nhà vệ sinh bên trong. Phần còn lại của không gian bố trí một phòng ngủ và một nhà vệ sinh giữa hai phòng cùng với khu vực cầu thang.
Ngoài phương án thiết kế quy mố 2 tầng phổ biến thì mẫu nhà phố 7x10m với quy mô 2 tầng có 1 tầng thượng hoặc tầng tum cũng đang gia chủ quan tâm bởi:
- Mẫu nhà này đang đáp ứng được yêu cầu của mẫu nhà có diện tích sàn trên 50m2 hiện nay phải có không gian xanh.
- Mẫu nhà lưu thông không khí, nguồn ánh sáng cho không gian bên trong nhà rất tốt.
- Cuối cùng là mẫu nhà này tạo độ thẩm mỹ màu xanh của thiên nhiên, màu còn thiếu trong những ngôi nhà phố hiện nay.

Không gian tầng 1 được bố trí với 1 phòng khách, 1 nhà vệ sinh, 1 ngủ và 1 gara oto. Do quy mô rộng rãi hơn mà việc bố trí mẫu nhà này trở nên thoải mái. Kiến trúc sư bố trí mặt sân khá rộng trước khi tiến vào không gian sinh hoạt. Một bên là gara oto diện tích lớn đủ để đỗ được oto cùng hai chiếc xe máy của gia chủ. Cửa gara được cạnh bên để nối vào không gian phòng khách bên trong. Bên cạnh là không gian phòng khách và khu vực cầu thang. Sau gara là một phòng ngủ nhỏ và có lối dẫn ra sân vườn sau vô cùng thông thoáng. Nhà vệ sinh được đặt ở vị trí cuối nhà, đối diện với phòng ngủ. Cầu thang đặt ngay sau phòng khách giống như vách ngăn ngầm giữa phòng khách và khu vực phía sau nhà.

Tầng hai bố trí hai phòng ngủ trong đó có 1 phòng ngủ master. Cả hai phòng ngủ đều bố trí nhà vệ sinh bên trong để đảm bảo độ riêng tư cho từng người sử dụng phòng ngủ. Ban công đặt trước phòng ngủ master. Cầu thang bố trí đối diện phòng ngủ nhỏ và cạnh phòng ngủ master.

Cuối cùng là khu vực tầng 3 với một phòng sinh hoạt chung, 1 nhà vệ sinh và khu vực sân thượng cực kỳ rộng rãi. Ở khu vực này gia chủ bố trí một không gian thờ tâm phù hợp với phong thủy của người Á Đông là vị trí cao nhất trong nhà cũng là nơi hướng về mặt tiền. Bên trên đều là mẫu nhà với quy mô xây dưng từ 2 tầng trở lên vậy với một ngôi nhà cấp 4 xây dựng trên diện tích 7x10m liệu có thể đặt được gara oto?

Hình ảnh phía trên chính là lát cắt mặt bằng khi tiến hành xây dựng nhà cấp 4 diện tích sàn 7x10m tại khu vực thành phố hiện nay. Nhìn vào mặt bằng này thì gara oto không thể tiến hành xây dựng vì tối ưu diện tích ở mới chính là điều mà gia chủ cần. Vì thế gara oto không thể xây dựng đối với mẫu nhà phố 7x10m quy mô cấp 4 (1 tầng)
Top thiết kế mẫu nhà phố 7x10m có gara oto đơn giản, chi phí thấp

Mặt tiền cực kỳ ấn tượng mang đậm nét hiện đại được thể hiện rõ nét qua ô cửa kính được làm cách điệu cho mẫu nhà phố 7x10m quy mô xây dựng 3 tầng.
Sử dụng khối liến nét cho toàn bộ công trình được sơn trắng để thể hiện nét tinh khôi kết hộp cùng ô cửa kính tràn toàn bộ mặt tiền cùng với hệ thống rèm cửa phía trong mang đến ánh sáng vừa đủ cho không gian nhà vào buổi sáng và hé lộ một phần bên trong của ngôi nhà với sự lung linh, sang trọng khi tối đến. Nếu như để như thể thì không khác biệt với những thiết kế thường thấy, điểm nhấn nằm bên phải của ngôi nhà. Kiến trúc sư sử dụng khung sơn đen, tiến về phía trước so với phần bên trái keeyts hợp cùng với lam che nắng cách điệu bên ngoài cửa kính của ngôi nhà, lắp đặt thêm hệ thống đèn hắt từ dưới lên tạo ra chiều sâu về không gian. Mặt tiền tầng một bố trí một bên là gara oto để hở và một bên cửa kính cường lực hiện đại dẫn vào phòng khách. Bên ngoài phối cây vườn xanh đáp ứng được sự kết hợp giữa không gian nhà và thiên nhiên – xu hướng thiết kế nhà hiện nay.

Đặt vị trí gara giống với mẫu thiết kế phía trên nhưng sử dụng thanh dọc với khoảng hở như thiết kế cũng mang sự thông thoáng, không ám mùi oto vào diện tích sinh hoạt. Ngôi nhà này chú ý đến ban công tầng hai kéo dài mang đến không gian độ thoáng và phần tum trên tầng thượng mang đến không gian tiện ích cho gia chủ.

Lựa chọn sắc màu bắt mắt như mẫu thiết kế trên cho mẫu nhà phố 7x10m khiến ngôi nhà nổi bật giữa khu phố tập nập. Ngôi nhà này tại góc đều được bo tròn lại mang đến sự nữ tính kết hợp với sắc hồng phù hơp với gia chủ là nữ giới sở hữu.

Ấn tượng mẫu nhà phố 7x10m có gara oto theo phong cách sang trọng lôi cuốn. Ngôi nhà sử dụng tone màu trắng chủ đạo mang đến sự nhãn nhặn, phù hợp với lỗi thiết kế tối giản hiện nay. Ngôi nhà hiện lên đầy sự sang trọng bởi hệ tống cột kép: 1 trụ vuông với 1 trụ tròn vừa vững chãi lại vừa mang nét đẹp uyển chuyển, cổ điển. Dưới chân cột được ốp đá sẫm màu tăng thêm nét cổ điển, sang trọng. Lan can ban công tầng hai sử dụng sắt được uốn mang đậm dấu ấn của những ngôi nhà theo phong cách tân cổ điển hiện nay. Phần gỗ giữ nguyên màu tự nhiên chính là điểm nhấn trong tổng thể của căn nhà: Từ việc sử dụng khung gỗ kinh ở cửa chính đến ô cửa sổ đến cửa gara oto. Phần mái ngói lựa chọn màu xanh dương vô cùng phù hợp với những ngôi nhà theo hướng cổ điển.
Ngôi nhà sử dụng thiết bậc thềm tam cấp cho lỗi vào cổng chính, hay bậc phù hợp cho việc di chuyển tiến lùi của oto cho cửa gara. Trước nhà đặt hai chậu câu vạn tuế khá lớn, với phần chậu được ốp gạch vô cùng cuốn hút.

Gara oto vẫn được đặt kế bên nhà cho mẫu nhà phố 7x10m hiện lên với khối hình mạnh mẽ, cùng với màu xanh thiên nhiên bao phủ. Mặt tiền tầng một được bao ngoài bởi hệ thống cổng rào kín đáo, chia thành hai phần: một bên là tường làm nhám để tránh ẩm mốc bởi phần chậu xanh bên dưới và phần cây xanh bên trên cổng rào, phần còn lại cổng với song sắt thiết kế đơn giản. Nhấn cổng chính là cây xanh được trồng hết 7m cổng, bên trong là hê lam che nắng.
Ngôi nhà sử dụng thiết kế đối xứng từ cổng đến nhà, chiếu từ cổng vào, ngôi nhà chia thành hai phần: 1 bên là ban công và một bên là mặt phẳng bê tông lớn. Ban công tầng hai sử dụng sắt với bồn cây được đặt chính giữa, còn ban công tầng ba sử dụng vật liệu kính cường lực. Dù hai chất liệu khác nhau nhưng cùng mục đích mang đến không gian rộng hơn. Bên còn lại ngôi nhà với không gian tầng hai là mảng tường lớn, bố trí cửa kính tràn tăng diện tích bên trong. Lên đến tầng 3 hệ thống cửa sổ kính lớn, bên ngoài chậu cây xanh tạo nên không gian thoáng cùng với hướng nhìn thiên nhiên. Tại không gian này kết hợp hệ thống mái với sơn giả gỗ bên trong, sang trọng và cuốn hút.

Nếu gia chủ muốn tối đa diện tích sử dụng thì đặt gara oto tại sân trước của ngôi nhà với hệ thống cổng rào chắc chắn bên ngoài.

Khu vực sảnh trước nhà phù hợp để trở thành gara oto: ban ngày có thể để trẻ con trong gia đình là sân chơi, còn ban đêm để gia chủ để tô cùng phương tiện cá nhân khác. Mẫu thiết kế nhà phố 7x10m với hệ thống cửa cuốn hiện đại, bao viền ốp đá granit sang trọng cũng là mẫu thiết kế đơn giản bắt mắt.

Tương tự có mẫu thiết kế sân trước thành gara oto đơn giản để gia chủ lựa chọn cho mẫu nhà phố 7x10m tương lai của mình. Với sân trước thiết kế hở, thông thoáng, ngôi nhà này kết hợp kinh doanh vô cùng thuận tiện.


































