Trên một diện tích sàn 7x15m gia chủ chưa biết nên bố trí bao nhiêu phòng ngủ phù hợp? Cùng xem cách bố trí không gian nhà 3, 4, 5 phòng ngủ tham khảo dưới đây để có thể lựa chọn được phương án thiết kế sáng tạo, phù hợp với ngôi nhà tương lai của chính mình.
Nên thiết kế mẫu nhà phố 7x15m bao nhiêu phòng ngủ?
Việc thiết kế bao nhiêu phòng ngủ trong căn nhà 7x15m sẽ phụ thuộc vào số lượng thành viên cũng như nhu cầu gia chủ sử dụng. Từ đó kiến trúc sư sẽ bố trí không gian sao cho phù hợp trên diện tích, hoàn thiện mẫu thiết kế hoàn hảo từ trong ra ngoài, tiện nghi, hiện đại và đạt độ thẩm mỹ.

Bài viết này đưa ra mẫu thiết kế tham khảo cho gia chủ trên mẫu nhà phố 7x15m trên quy mô xây dựng 2 tầng. Lựa chọn quy mô xây dựng 2 tầng bởi đây là mẫu thiết thiết kế có chi phí phù hợp với nguồn ngân sách của gia đình Việt Nam hiện nay. Hơn hết với quy mô 2 tầng gia chủ đã sở hữu một diện tích sinh hoạt phù hợp nhu cầu sinh hoạt cá nhân và cả gia đình.
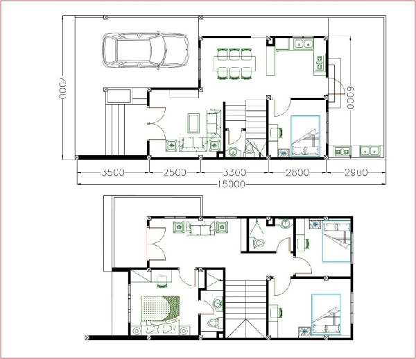
Ví dụ đầu tiên về mẫu nhà phố 7x15m được thiết kế 3 phòng ngủ xây dựng quy mô 2 tầng sẽ được bố trí như thế nào?

Mặt bằng lát cắt tầng 1 sẽ bố trí: 1 gara oto, 1 phòng khách, 1 bếp + ăn, 1 phòng đọc sách, 1 nhà vệ sinh.
Trước khi bước vào không gian nhà sẽ là bậc thềm tam cấp, nhìn từ bên ngoài thấy ngôi nhà cao ráo, thông thoáng hơn. Sau bậc thềm là vị trí phòng khách với phần cửa lớn làm bằng chất liệu kính mang đến ánh sáng cho không gian nhà, đặt cạnh phòng khách là gara oto. Sau phòng khách là khu vực cầu thang ngăn cách không gian bếp + ăn với nhau, dưới cầu thang bố trí nhà vệ sinh để tiết kiệm diện tích. Khu vực phòng đọc sách bố trí song song với khu vực cầu thang, yên tĩnh, phù hợp với mục đích sử dụng của gia chủ.
Lên đến mặt bằng tầng 2 bố trí tương tự không gian như tầng 1 với 3 phòng ngủ, trong đó 1 phòng ngủ master với nhà vệ sinh được bố trí bên trong, 1 nhà vệ sinh chung cho 2 phòng ngủ còn lại, 1 phòng sinh hoạt chung và gian thờ bố trí phù hợp.
Cũng trên diện tích này, gia chủ bố trí tới 4 phòng ngủ như sau:

Mặt bằng tầng 1 cũng không có quá nhiều thay đổi so với kiến trúc phía trên. Để thêm 1 không gian ngủ gia chủ bố trí vị trí ngủ tại tầng 1 song song với khu vực bếp, bếp lúc này thu gọn lại so với bản thiết kế 3 phòng ngủ phía trên. Ở khu vực tầng 2 mọi thứ không có khì thay đổi với cách bố trí tương tự bên trên.
Vậy còn bố trí 5 phòng ngủ thì như thế nào?

Với cách bố trí 5 phòng ngủ cho mẫu nhà phố 7x15m mặt bằng thiết kế không có nhiều thay đổi. Vị trí tầng 1, phòng ngủ bố trí tương tự như mẫu thiết kế 4 phòng ngủ, đặt song song với khu vực để oto hoặc có thể đặt phía sau song song với khu vực bếp, tùy thuộc vào ý muốn của gia chủ. Lên đến mặt bằng tầng 2, thay vì để một phòng sinh hoạt chung như hai mẫu thiết kế phía trên thì gia chủ bố trí không gian phòng ngủ thứ 5 của ngôi nhà tại vị trí này.
Với 2 mẫu thiết kế 4, 5 phòng ngủ phù hợp với gia đình có nhiều thế hệ sinh sống dưới một mái nhà, từ 4 đến 6 người. Thiết kế nhiều phòng ngủ như vậy đáp ứng được nhu cầu sinh hoạt, không gian riêng tư của mỗi người trong gia đình.
Top thiết kế đẹp mẫu nhà phố 7x15m mê mẩn, xu hướng thiết kế mới nhất

Nói đến xu hướng thiết kế hiện nay thì chắc chắn không thể bỏ qua mẫu nhà với thiết kế tầng tum. Sự xuất hiện của tầng tum đã giải quyết một vấn đề rất lớn mà tất cả những mẫu nhà phố trước đây gặp phải đó là thiếu không gian xanh trong căn nhà, thiếu đi sự trao đổi khí cùng với ánh sáng cho không gian bên trong.
Hơn nữa việc xây dựng tầng tum cũng giải quyết phần nào nó cho mẫu nhà lựa chọn mái bằng trước đây. Mái bằng rất được ưu chuộng cho mẫu nhà mặt phố bởi lẽ phù hợp với không gian chật hẹp, không chiếm diện tích xung quanh nhưng gặp nhược điểm dễ bị ứ đọng nước bởi độ dốc mái này rất nhỏ. Việc sử dụng tum cho mẫu nhà đẹp như này sẽ hạn chế tối đa tình trạng ứ đọng nước, ảnh hưởng trần nhà cũng như đồ vật bên trong.

Mẫu nhà phố 7x15m với 3 tầng 1 tum thiết kế chữ L theo phong cách hiện đại mang đến kiến trúc khá đồ sồ. Với thiết kế chữ L gia chủ sẽ có một khoảng sân ngay trong khuôn viên nhà. Khoảng sân này được gia chủ tận dụng như một chỗ vui chơi cho trẻ nhỏ, là sân vườn nhỏ hay là khu vực để xe oto. Tại maaix thiết kế này gia chủ thiết kế thêm mái che bên trên để hạn chế ánh nắng ở khu vực này.
Mặt tiền tầng 1 được bao bên ngoài bởi hệ thống cổng rào, đảm bảo không gian riêng tư. Khu vực tầng hai làm nhô ra đằng trước với phần khung bên ngoài màu trắng bố trí cây xanh giống như vườn cây nhỏ trước khu vực cửa sổ tầng hai, bên trong khu vực sinh hoạt được sơn xám, kết hợp đèn đèn chùm được lắp đặt hai bên. Khu vực tầng 3 được bao bên ngoài với lớp lam gỗ bên ngoài để chống nắng cũng như mang đến hiệu quả thẩm mỹ về tính sang trọng cho ngôi nhà. Bên mặt tiền chính với tầng 2 và tầng 3 được bố trí nguyên kính cách âm, cách nhiệt và mang đến ánh sáng vào bên trong không gian nhà, giải quyết được vấn đề thiết kế chữ L gặp phải. Tại không gian tầng 4 bố trí một phần không gian sinh hoạt ngôi nhà và phần còn lại bố trí không gian tum với phần mái che bên trên để gia chủ sử dụng không gian để tụ tập ăn uống với bạn bè, hay là không gian nhỏ để thư giãn sau những ngày làm việc mệt mỏi.

Không cầu kỳ như thiết kế phía trên, mẫu nhà phố 7x15m này với này mang đến màu sắc của sự trang nhã khi sử dụng tone màu trắng chủ đạo cho toàn bộ mặt tiền của ngôi nhà. Điểm nhấn nằm ở vị trí được ốp đá nhám cho chậu cây ở các tầng, và phần khung cửa kính khung sắt được sơn xám. Khu vực tầng tum với thiết kế nửa hở nửa kín theo nhu cầu của gia chủ

Hoặc một tầng tum với thiết kể hở như trên cũng sẽ mang lại nhiều sự thích thú cho gia chủ. Tại không gian này gia chủ bố trí bàn nướng ngoài trời cực xịn, cực sang chỉ phục vụ riêng cho gia chủ cùng với bạn bè và người thân.
.
Một mẫu thiết kế cực sang cực xịn cho mẫu nhà phố 7x15m được giới thiệu trong bài viết này lọt top thiết kế nhà phố ấn tượng với không gian được gọi với cái tên biệt thự mini. Ngôi nhà được chia thành hai khu vực: Khu vực bên tay phải là cổng rào bằng song sắt với thiết kế đơn giản hiện lên mặt tiền tầng một ấn tượng với ốp đá sang trọng, lên đến tầng hai hệ khung cửa kính lớn với chậu cây thiết kế trải mặt tiền, lên đến tầng 3 là không gian tum với mái che nắng và ban công bằng kính cường lực hiện đại. Bên trài của ngôi nhà hệ thống cửa cuốn cho không gian gara oto hiện đại. Do gara này được làm nhô ra phía trước nên bên trên gia chủ bố trí thành ban công khá rộng để đặt được bàn nhỏ. Lên đến tầng 3 có được một phần ban công bên phía tầng tum dành cho cửa chính nối ra bên ngoài này. Điểm hay cần chú ý đó chính là tum gia chủ bố trí lệch sang một bên để tạo nên diện tích có chiều dài sau 15m.

Nếu gia chủ chưa có đủ tài chính để xây dựng tum cho ngôi nhà mình thì mẫu thiết kế nhà phố 7x15m phía trên sẽ lựa chọn hợp lý với điều kiện tài chính của gia đình. Tại khu vực tầng 2 của ngôi nhà này, kiến trúc sư sử dụng lớp chồng lớp, bên ngoài với lớp lam che nắng bằng bê tông được làm cách điệu mang đầy tính thẩm mỹ cho ngôi nhà, sau đó mới đến sinh hoạt bên trong. Tại lớp lam che nắng này, gia chủ bố trí thêm cây leo để mang đến kiến trúc xanh cho ngôi nhà. Tại mặt tiền tầng 1 của ngôi nhà sử dụng ốp đá nhám vừa gây ấn tượng lại vừa bảo phần tường cho ngôi nhà với độ thẩm mỹ cao.

Mẫu nhà phố 7x15m với thiết kế 3 tầng không có tum thì thiết kế với lam che nắng và sử dụng cây dạng leo cũng đã mang đến không gian xanh cho ngôi nhà. Ngôi nhà sử dụng thiết kế đối xứng, từ cổng nhìn vào ngôi nhà chia làm hai phần: 1 bên hệ thống cửa cuốn thì chiếu theo với tầng phía trên sử dụng tone màu xám cùng với màu cửa cuốn, bên còn lại cửa gỗ công nghiệp hiện đại, chiếu lên các tầng kiến trúc sư sử dụng cửa cùng khung cửa gỗ có màu tương tự.

Với thiết kế đơn giản hơn cho mẫu nhà phố 7x15m thì thiết kế 2 tầng theo kiến trúc hiện đại nổi bật khối hình vuông vực và phần mái bằng thường thấy. Không gian xanh ngôi nhà xuất hiện như một điểm nhấn trong thiết kế tại sân trước, tại ban công, chậu cây thiết kế khung cửa sổ tầng hai và giàn treo cũng tại vị trí này.

Với mẫu thiết kế nhà phố 7x15m gây ấn tượng mạnh bởi khối hộp vương vức, đường nét sắc cạnh. Tưởng như sẽ mang đến khối hình thô cứng thì kiến trúc sư bố trí tiểu cảnh cây xanh tại mái bên trái của ngôi nhà. Thêm một vài cây xanh ở mặt sân trước ngôi nhà cũng phá đi khối gạch thô.

Không gian xanh đâu nhất thiết ở trên cao mà có thể bố trí ngay mặt sân trước của ngôi nhà. Ngoài sử dụng cây trồng trong châu, gia chủ ngôi nhà này sử dụng hệ thống giàn treo với cây xanh leo giàn tạo nên sân trước nhà tỏa bóng mát, phần tường cũng được gia chủ trồng loại hoa quân tử ấn tượng.

Xu hướng thiết kế xanh cho mẫu nhà phố 7x15m không chỉ nằm ở phong cách hiện đại mà ngay cả phong cách tân cổ điển cũng được áp dụng mang đến sự sáng tạo trong thiết kế, trở thành mẫu nhà thu hút sự chú ý.





























